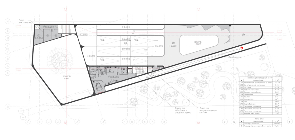
Протяженный прямоугольный участок 92 х 31 м разделен по диагонали, не пополам, но почти, оставляя большее пятно для здания, меньшее – для клиновидной площади, месту традиционного для почти всех EXPO ожидания посетителей перед входом в павильон. Эта часть расположена слева и отдана лесу, причем лес и зона ожидания осмыслены как «тело», и все, что внутри павильона – «душа». Кроме того лес это образ природы России, хотя внутри павильона о природе тоже пойдет речь.
Павильон на EXPO в Осаке. Русская душа. Форма
© Архитектурное бюро ASADOV
Павильон на EXPO в Осаке. Русская душа. Функциональная схема
© Архитектурное бюро ASADOV
Лес – искусственный, авторы предложили напечатать хвойные деревья либо на тканевых конструкциях, либо на полотнах из укрепленного картона с силуэтом, вырезанным по контуру. В обоих случаях лес, что совершенно очевидно, – не настоящий, но высокий и большой, сценографичный. Похожий на декорации для «Сна в летнюю ночь», особенно в первом варианте, где прозрачная подоснова сохранена, зримо проявляет свое искусственное происхождение, а восьмилопастные конструкции «деревьев» расчерчивают пространство довольно-таки регулярно, умножаясь в отражении изогнутого зеркального фасада здания павильона.
Вся нижняя растительность, впрочем, была запланирована живой, из настоящих растений.
В конце леса, там где сходится перспектива лесного экзонартекса, поставлен дом, похожий на традиционный деревенский: несколько идеализированный – или, скорее, театрализованный, зато легко узнаваемый образ лесной избушки.
Сюжет основан на контрасте: по словам авторов русская душа это, с одной стороны, поля, просторы, избы и простые люди, – а с другой стороны, идеи совершенно футуристического плана, техника и космос. Авторы иллюстрируют свою идею коллажем: в картину Вячеслава Самарина «Напарник» (1979), где таежный исследователь сидит перед буржуйкой в избе, встроен, вместо снежного леса с собакой, вид орбитальной станции от советского художника-фантаста Андрея Соколова «Очередной Союз идет на стыковку».
Так получается, что, когда из интерьера таежной избы мы видим космические дали – это и есть парадокс русской души.
А мерцающий коридор, который должен был открываться сразу за фасадом русской избы, это почти буквальное воплощение авторской идеи о противоречиях и контрастах – это «кротовая нора», образ пространственно-временного прокола, гиперперехода из фантастики. Отсюда начинается световая линия на полу, которая ведет посетителя, подсказывая ему дорогу, через всю экспозицию.
Вполне логично, что такой «прокол» приводит посетителя в зал с Деревом Времени. Здесь оно составлено из гибких светящихся нитей, а вокруг «сугробы» из серебристых термических одеял, которые колышутся благодаря поддуву. Под условными сугробами одеял – сиденья, самые высокие «холмы» искусственного ландшафта. К веткам, согласно брифу, подвешены VR-очки с фильмами о достижениях России.
Следующая часть экспозиции, в середине павильона, организована как зигзаг, дающий максимальную длину прохода. В общей сложности здесь пять пандусов: Арктика, тайга, степь, субтропики и пустыня. Стены-медиаэкраны показывают жизнь людей в разных климатических средах страны. Меняется и время суток, от рассвета до заката, подчеркивая спектр часовых поясов страны: посетителю предлагают в ускоренном режиме медийной выставки погрузиться в природу России и познакомиться с населяющими ее народами. Что-то похожее вспоминается в экспозиции павильона ОАЭ в Дубае 2020, там были и песчаные барханы, и история девочки, жившей в пустыне.
В данном случае задача погружения – помочь понять русскую душу.
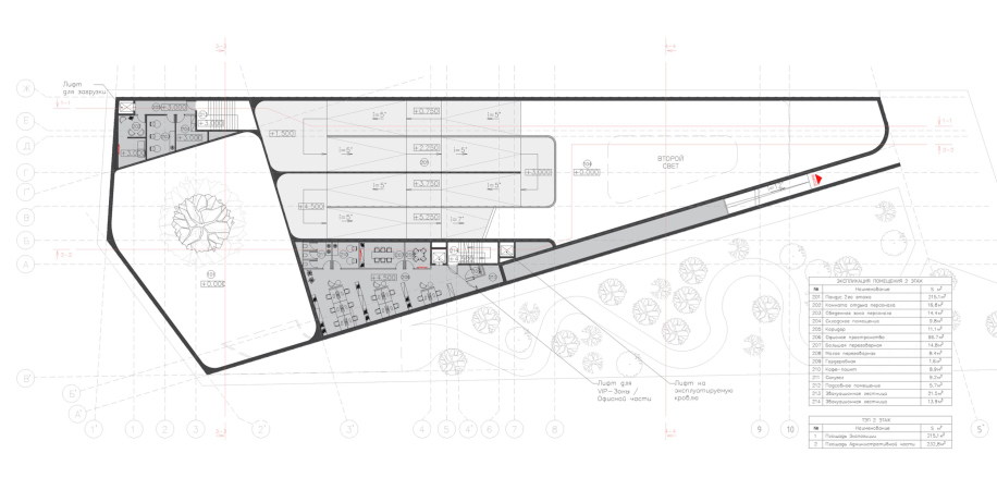
После пандусов, посвященных природе, посетитель попадает в двухъярусное пространство со скульптурой Русской души. Она сплетена из одной нити с пульсирующим светом, которая в верхнем ярусе складывается в объемные контуры женского лица.
Таким образом, светящаяся нить от дерева из медийных нитей ведет нас к другой инсталляции, обозначающей Душу, понимание которой подготавливается проходом по пандусам с чередованием разных сред существования разных русских душ. Замечу, что, согласно авторскому описанию, Дерево при входе кажется ростком, а когда зритель приближается, оно вырастает, – и Душу мы тоже видим на сразу: сначала клубок неких корней, и только поднявшись на второй ярус посетитель увидел бы лицо Русской души.
Для перемещения внутри, помимо пандусов, планировался травалатор или лестница.
Последний зал – лента времени, стена, совмещающая несколько тем: инновации, медицина, хобби, технологии, транспорт, – по одному медийному сюжету в каждом изгибе.
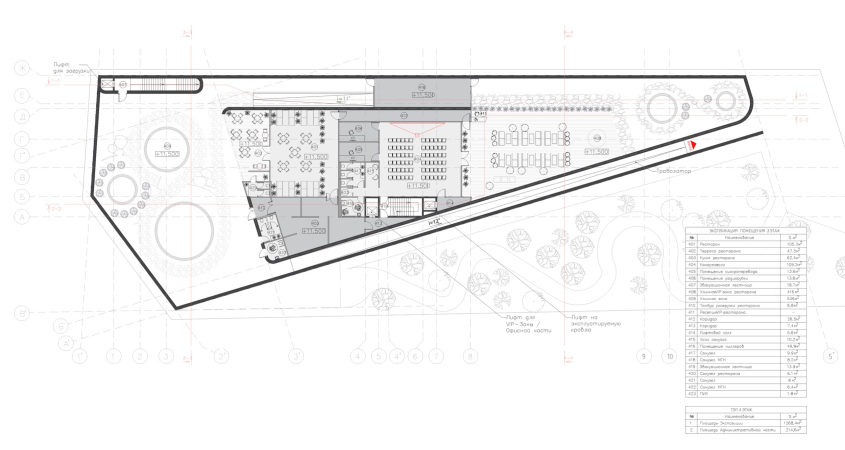
Наконец, небольшой зал перед выходом отдан временным выставкам, а кроля в проекте предполагалась эксплуатируемая, с террасой кафе и панорамным видом на EXPO.
Таким образом, АБ ASADOV с большим вниманием отнеслись к идеям, изложенным в конкурсном брифе, и уделили много внимания режиссуре собственно выставки, выстроив ее как последовательную смену погружений в вереницу декораций на грани инсталляции и кинопоказа, нанизанных на нить, из которой в ключевых местах сплетаются «клубки» двух световых скульптур.
Здание же в данном случае не так важно, оно только помогающее умножить лесные декорации преддверия спектакля. Авторы говорят, что в нем заключена душа, и технически так и есть, поскольку скульптура внутри; но мне кажется, точнее будет сказать, что оно – зеркало души.




