MULTISPACE, здание «гибкого офиса» в 1-м Щипковском переулке
Фотография © Илья Иванов / предоставлена T+T architects
Что не помешало, однако, очень ощутимо преобразить здание, построенное сравнительно недавно, по проекту 2007 года. Сохранив пропорции и даже форму окон, здание стало, по ощущениям, намного более современным, и в то же время более контекстуальным – новое решение лучше коррелирует с соседним модернистским корпусом бывшего научно-инженерного центра электромеханического Завода имени Владимира Ильича (ЗВИ), основные здания которого расположены на противоположной стороне переулка.
Соседние здания, справа ЗВИ, слева его Научно-инженерный центр
Исходное здание было пятиэтажным, с одним ярусом подземной парковки и облицованными керамогранитом «двухслойными» фасадами: с выступом со стороны улицы и нишей-уступом во дворе. Кроме того, окна уличного фасада имели разную глубину: нижний ярус отступал от красной линии, третий этаж выступал вперед, и, наконец, 4 и 5 этажи вновь ступенчато отступали.
Архитекторы T+T, не изменяя этой особенности, привели уличный фасад к одной плоскости. Это упрощение пластики парадоксальным образом усилило скульптурные качества здания: окна схожего формата, но разной глубины обернуты цельной фактурной «кожей», что создает интригу. Внутри образуется некая волна стеклянных поверхностей – посередине она выступает вперед, вверху и внизу углубляется.
MULTISPACE, здание «гибкого офиса» в 1-м Щипковском переулке
Фотография © Илья Иванов / предоставлена T+T architects
Поверхность узкого прямоугольного выступа на западном торце и ниши во дворе получила более сложный рельеф – здесь в шахматном порядке, через ряд, чередуются выступающие вперед плитки, так возникает простой, но выразительный орнамент, который хорошо реагирует на косой свет, помогая заново осмыслить форму и расставить акценты.
О самой плитке, который покрыты все фасады обновленного здания, надо сказать отдельно. Плитка бетонная, горизонтального формата – для изготовления матриц были использованы ригельные кирпичи Petersen Kolumba, протяженного формата и с живой рельефной поверхностью. По словам Сергея Труханова, в матрицы архитекторы «вложились», несколько раз их переделывали и так же тщательно подбирали замес «теста». Нашли производителя плитки, который работает с относительно малыми объемами и был готов обеспечить качество – которым авторы, в конечном счете, остались довольны. Для создания шахматно-рельефной кладки были изготовлены плитки большей толщины. В результате относительно экономичный фасад из бетонной плитки стал своего рода «слепком» кирпичной поверхности, «тенью» сродни черно-белой фотографии, которая, как известно, обладает свойством проявлять и усиливать светотень.
Согласно первоначальному замыслу T+T architects фасад, однако, должен был быть черным: «мечта каждого архитектора построить черный дом», но от идеи пришлось отказаться, поскольку она требовала более сложных согласований. Если не черный – то белый, и фасады стали светло-светло-серыми, отчего приобрели некоторую «метафизичность», поддержанную простотой формы.
MULTISPACE, здание «гибкого офиса» в 1-м Щипковском переулке
Фотография © Илья Иванов / предоставлена T+T architects
Черными остались оконные переплеты и подоконники, чье присутствие, впрочем, минимизировано, также как и обрамление входной лоджии. В этом последнем случае T+T architects использовали любимый материал – горячекатную сталь со следами выплавки. В интерьерах также присутствуют элементы из горячекатной стали и вход, таким образом, в полной мере выстраивает связь между внутренним и внешним пространством.
Между тем все самое интересное сосредоточено внутри здания.
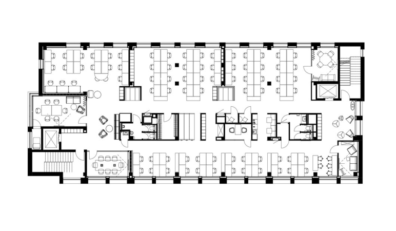
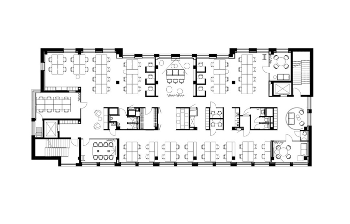
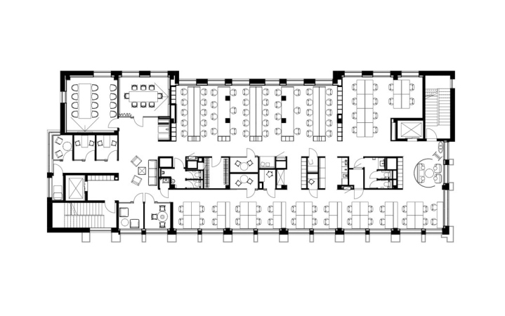
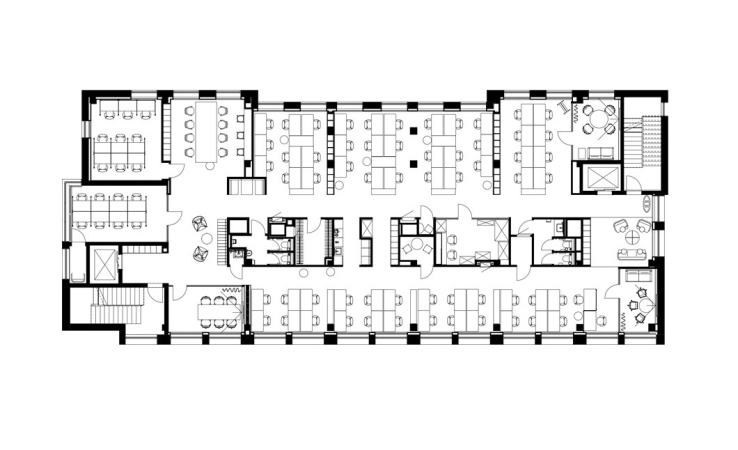
Компания INEX специализируется на создании «гибких» офисов с развитой электронной начинкой, которая позволяет сочетать разнообразие типов рабочих пространств с возможностью для сотрудников ежедневно менять свое место, резервируя те или иные возможности (сейчас T+T architects проектируют, также по заказу INEX, в офисной башне ВТБ Арена Парка). Офис реализован для сдачи в аренду, причем арендовать можно либо все здание, либо один или несколько этажей – иными словами, речь не о коворкинге, куда может прийти каждый, а об удобном настраиваемом офисе для компании, штат которой, как это теперь нередко бывает, не привязан к конкретным рабочим местам, способен работать удаленно и в целом предпочитает гибкость и возможность выбора обстановки, комфортной для конкретного рабочего момента.
Над структурой здания, набором и распределением функций архитекторы внимательно работали вместе с заказчиками. Немалую роль сыграло участие команды программистов – «умная» электроника, распознающая лица, не только открывает и закрывает двери и бронирует места – она еще и проводит анализ используемых рабочих форматов и делает выводы относительно того, как их следовало бы трансформировать исходя из реального запроса: что пустует, что перегружено. Таким образом здание гибкое не только в смысле выбора между возможностями, а еще и потому, что само настроено чутко реагировать на рабочий процесс.
Openspace соседствует не только с переговорными, полузакрытыми офисными ячейками, зум-комнатами и софт-зонами из кресел и журнальных столиков – здесь есть архив, есть ячейки-локеры, в которых можно сложить личные вещи, так как рабочее место, также как и сам локер, каждый сотрудник бронирует на время. Имеются даже «комнаты для крика», они разместились на месте балконов исходного здания, их стены обиты мягким звукопоглощающим материалом. Строго говоря, в них можно не только покричать, но и поработать в тишине.
Кабинета босса, напротив, нет, – рассказывает Сергей Труханов, и добавляет, что сам отказался от постоянного кабинета в своем бюро, превратив его в переговорную.
Дизайнерское решение интерьеров соответствует современным трендам: открытые вентконструкции потолков прикрыты контурными светильниками в виде простых фигур и линий, которые нет-нет, да и сложатся во что-то наподобие крестиков-ноликов. Горячекатная сталь соседствует с натуральным деревом, серым поглощающим шум войлоком и яркими ацентами. Ощущается преобладание черного цвета, как будто недоиспользованного на фасадах, – впрочем, не всегда, свою роль играет белый, красный, оранжевый, синий, обозначающие отличия этажей.
В центральной части каждого этажа группируются как небольшие кухонные элементы, так и пространства для неформального общения: диваны с высокими спинками, а также небольшой амфитеатр.
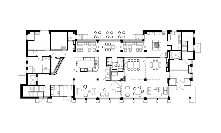
Каждый этаж чем-то отличается от других и имеет свою специализацию. Первый – общественный, здесь расположен не только ресепшн, но и кофе-поинт и столики. Здесь можно перекусить, интерьер напоминает отчасти кафе, отчасти лобби гостиницы. Впрочем, как подчеркивают архитекторы, и здесь можно сесть за столик и проработать целый день, к примеру ведя переговоры. В летнее время несколько столиков планируется выставлять в нише со стороны двора, тогда здесь образуется небольшая терраса.
Но главная «фишка» всего проекта спрятана на 5 этаже. Здесь под кровлей архитекторы предложили выстроили световой фонарь, который, как неразорвавшийся снаряд, пронизывает под углом потолок. Это широкая труба с металлическим каркасом и обшивкой, с наружной поверхностью черного, а внутренней – вишневого цвета. Она пропускает внутрь столб света, вокруг расставлены кресла, как у камина, только свет идет сверху. Проектирование этого, казалось бы, совершенно необязательного, элемента не было простым – но после реализации и сами архитекторы, и заказчики сошлись в том, что «под трубой» получилось «место силы», куда можно приходить для восстановления сил и внутренней энергии. Это очень хорошо, что такое место есть, оно как необходимая точка: резюмирует всю многофункциональность и «гибкость» офисного пространства новой формации, направляя, хотя бы иногда, энергию и мысли куда-то вверх.
Реализация кажется очередным шагом T+T architects в сторону работы с супер-современными офисными пространствами – области, в которой архитекторы уже накопили заметный опыт. В данном случае удивительно, как авторам удалось не только ответить на сложные запросы актуального формата, предложив «микс» разнообразных пространств и акцентов, но и трансформировать здание в целом так, что оно кажется новым, только что построенным.






