There were quite a lot of such projects, which made it possible to rank and subsequently award them, holding a contest, and combining it with an architectural festival/conference. The task of the latter was to explain the “rules of the game”, to stipulate the level of design solutions and criteria for their evaluation to everyone who designs and builds in the Moscow region or plans to work there.
About the Festival
The festival was opened by a strategic session devoted to trends and innovations of the Moscow Region in the field of mass housing construction. According to Alexandra Kuzmina, in recent years Mosoblarchitecture has paid somewhat less attention to this area than it has to social facilities, and it is not surprising that the topics for discussion have arisen. One of the topics is CRT, another is modernization of house-building plants, yet another is standards recently approved by the region, to name but a few. The largest builders in the Moscow region are actively using panel house-building technologies.
Social Rehabilitation Center for Support for Young Deaf-Blind Persons with Disabilities/ Project
Copyright: Photograph: provided by Mosoblarchitecture
The prejudice against panelized housing construction, as well as the very qualitative line between panel housing construction and monolith construction, continues to blur. It was heard at the festival that a paradox arises: with the developers who develop territories by hectares, even monolith construction resembles lookalike panel districts – while modernized house-building plants move in the opposite direction: they offer modern panel technology, which allows creating truly customized projects, tied to the architectural context.
Meanwhile, Mosoblarchitecture, regardless of the chosen technology, strives to monitor compliance with urban planning regulations, which are now mandatory in the Moscow region. The architects are also expected to ensure a “third function”, i.e. service and leisure infrastructure, recreational spaces, urban public gardens, amphitheaters, squares, sports hubs, and the like.
Examples of their work at the festival were shared by the developer companies PIK, FSK and KROST: PIK showcased a new facade concept, which (thank God!) finally lost the geometric patterns familiar to everyone, but received instead scalloped fragments, accent completions and textured first floors, where the panel is combined with monolith. Representatives of FSK talked about urban planning and technological searches for the sake of transition to flexible compositional solutions combining what they called “beacon buildings” – high-rise and visual dominants – with background development. FSK is now actively experimenting with the aesthetic side of panel construction. KROST is building standard medical and obstetric stations on the basis of its own industrial technology by order of the Moscow Region – and some of them are already complete. On the other hand, the head of the company, Alexey Dobashin, has called for the start of integrating buildings for small and medium-sized industry into new residential neighborhoods, thus creating a variety of jobs and reducing pendulum migration.
Festival Best Projects for Moscow Region, 2023
Copyright: Photograph: provided by Mosoblarchitecture
In the second part of the festival, not developers, but architects, the award winners, shared their projects. This award, just like the Moscow Mayor’s Award, was organized on the basis of the presence of an architectural solution agreed by the committee approving the architectural and town-planning image of the project. 90 projects competed in 5 nominations, two of which were related to housing, and another three covered social facilities, public buildings and industrial complexes.
The authors of the projects that scored the top places presented their solutions to the audience of the architectural festival.
Below, we are covering projects by all the 15 winners.
Residential Multistory Real Estate
Dolina Yauzy (“Yauza Valley”) housing complex
| where: | Russia, Mytishchi | |
| date | 2022 — 2023 / 2023 — | |
| function: | Residential / Residential complex | |
| studio: | https://bbm-project.ru/ | |
| architect: | Nikolay MakarovAlexander Brovkin |
The winner in the Residential Multistory Real Estate nomination was the first renovation project in the Moscow Region – the three towers of the Yauza Valley Residential Complex, which the Samolet Group is currently building in Mytishchi on Trudovaya Street. What makes it surprising is definitely the fact that we are facing a renovation project, which at the same time looks like “comfort plus”: there are bay windows forming the facade plastique and relief surfaces enlivening it, as well as rental areas in the first floors for cafes, stores and other local businesses.
The first tool of transition to a new level of architecture of a residential building – in this case, by way of renovation – are balconies. Samolet is probably the only one of Moscow region’s developers who not only uses balconies in their projects, but has three types of them – French balconies, so-called “balconies of a lonely smoker” and balconies for tea parties. In this case, the balconies and loggias are assembled vertically two by two and form bay windows with a different outlook: they noticeably liven up the building’s plastique. The bay windows are especially active at the corners, and above them, again two by two, corner windows are situated. All these techniques compensate for the essentially unassuming shape of the towers – thanks to the balconies, they really seem to come alive. Another “vitalizing” technique is relief brickwork, in this case striped. The bricks are angobed, Russian-made, with a different color on each tower.
One more thing: the complex consists of three towers; their plastique is identical, it’s only the color that’s different. Curiously, it was only Tower #3 that got awarded, the one built of the brown brick.
The first tool of transition to a new level of architecture of a residential building – in this case, by way of renovation – are balconies. Samolet is probably the only one of Moscow region’s developers who not only uses balconies in their projects, but has three types of them – French balconies, so-called “balconies of a lonely smoker” and balconies for tea parties. In this case, the balconies and loggias are assembled vertically two by two and form bay windows with a different outlook: they noticeably liven up the building’s plastique. The bay windows are especially active at the corners, and above them, again two by two, corner windows are situated. All these techniques compensate for the essentially unassuming shape of the towers – thanks to the balconies, they really seem to come alive. Another “vitalizing” technique is relief brickwork, in this case striped. The bricks are angobed, Russian-made, with a different color on each tower.
One more thing: the complex consists of three towers; their plastique is identical, it’s only the color that’s different. Curiously, it was only Tower #3 that got awarded, the one built of the brown brick.
Seventh heaven residential complex
| where: | Russia, Pushkino | |
| date | 2020 — 9.2020 / 2021 — | |
| function: | Residential / Residential complex | |
| studio: | KPLN http://www.kpln.ru/ | |
| architect: | Sergey NikeshkinAndrew Mikhailov |
Second-placed in this nomination was the housing complex on the Turgenev Street in Pushkino, designed by KPLN, headed by Sergey Nikeshkin. We already gave a detailed coverage of it here.
The complex has similarities with the already mentioned Yauza project – first of all, it is also a three-tower composition. The towers stand at the edge of woodland; their stylobate unites different public spaces. Elegant “pin-tucks” of the crowning part of each volume are formed by the gradual deepening of the last three floors.
The complex has similarities with the already mentioned Yauza project – first of all, it is also a three-tower composition. The towers stand at the edge of woodland; their stylobate unites different public spaces. Elegant “pin-tucks” of the crowning part of each volume are formed by the gradual deepening of the last three floors.
Building #3 in Otrada housing complex
| where: | Russia, Otradnoe | |
| date | 2020 — 2022 / 2022 — | |
| function: | Residential / Residential complex | |
| studio: | StalСЊnoe WС‹mya | |
| architect: | Sergey Savchuk |
Third place in the nomination was scored by the mid-rise part of the Otrada housing complex designed by Chelyabinsk’s architectural company named “Stalьnoe Wыmya” (so spelled!) – neighborhoods with facades built on a combination of dark brick and white surfaces.
Residential Multistory Real Estate
The housing complex on the Sinichka River
| where: | Russia | |
| date | 2019 — 2022 / | |
| function: | Residential / Residential complex | |
| studio: | StalСЊnoe WС‹mya | |
| architect: | Sergey Savchuk |
The winner in this nomination was a residential project on the Sinichka River, near the village of Maryino, also by Stalьnoe Wыmya architects. This project is an example of virtuoso work with the relief: on a narrow, awkward plot with a drop to the river of up to 15 meters and a maximum height of 6 floors, the authors were able to accommodate 15 000 m2 of housing. The houses are characterized by a carefully thought-out vertical layout. We have already told you about the project, so we will only remind you that the relief here is used as an advantage: it hides a three-level parking lot with a ramp-free access to each tier, and its roof is used as a public terrace with sightseeing platforms. The arrangement and angles of the sections are well thought out: the architects managed to find such a solution that the views of the Krasnogorsk forest park are not blocked either by neighboring apartments or nearby housing estate.
It is possible that this project was ahead of the other applicants in terms of scores precisely because the design conditions were not as extreme.
It is possible that this project was ahead of the other applicants in terms of scores precisely because the design conditions were not as extreme.
Novaya Shcherbinka housing complex, Stage 2
| where: | Russia | |
| date | — 2023 / | |
| function: | Residential / Residential complex | |
| studio: | Archproekt http://arch-project.ru/ |
City blocks with a stepped silhouette, ranging from 4 to 8 floors high, alternate white facades with thin faceting, red and dark bricks, projections and ledges – all this makes them look both restrained and diverse at the same time. The houses with low height look fresh and clean, and this is how a comfortable residential environment actually emerges. The peculiarity of the project is that the surface of the courtyards is elevated above the city sidewalk by 60 cm, which made it possible to place the first floor windows high enough, while the entrances to the entryways both at the street level and at the courtyard level are barrier-free.
The housing complex in Shatura
| where: | Russia | |
| date | — 2023 / | |
| function: | Residential / Apartment building | |
| studio: | Architectural bureau of Yuri Vissarionov http://www.pamvissarionov.ru | |
| architect: | Yuri Vissarionov |
This brick house with an L-shaped plan has only four floors in it – the paragon of mid-rise construction. The natural material of the facades and the low height make the house cozy, while the triangular bevels above the loggias disguise the protrusions of the technical floor and enliven the silhouette.
Social Infrastructure
Mayak Adaptation Center for young deaf-blind people
| where: | Russia, Sergiev Posad | |
| date | 2019 — 2020 / — 2025 | |
| function: | Hospitality / Health / Health Centre | |
| studio: | PIK-Project https://www.pik.ru/ATRIUM http://atrium.ru/ | |
| architect: | Vera ButkoAnton Nadtochiy |
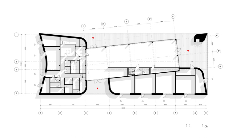
The winner in the nomination of social facilities – the Mayak Center for the adaptation of deaf-blind people with disabilities by AB ATRIUM – is quite expectable: it is a unique building born out of a unique function. For the architects, the project was definitely a challenge, as here it was necessary to propose architecture capable of working as a unique one-of-a-kind simulator. The architects conducted an in-depth study of the possibilities of materials, textures and their combinations, which formed the basis of a navigation system specially designed for the complex. A few years ago, the project became a WAF nominee.
The task of this complex is to teach people with visual and hearing disabilities to live in the real space of the city, and to teach them with the help of architecture itself, which should give blind and deaf people living here this system of adaptation, as well as real spatial experience. For this reason, the building is not a compact volume, but a complex structure – it consists of different functional blocks connected by a circular route. It is a mini-city, where there is a sports block, assembly hall, workshops, a swimming pool, and each building is highlighted with its own material, which helps develop orientation skills inside.
The task of this complex is to teach people with visual and hearing disabilities to live in the real space of the city, and to teach them with the help of architecture itself, which should give blind and deaf people living here this system of adaptation, as well as real spatial experience. For this reason, the building is not a compact volume, but a complex structure – it consists of different functional blocks connected by a circular route. It is a mini-city, where there is a sports block, assembly hall, workshops, a swimming pool, and each building is highlighted with its own material, which helps develop orientation skills inside.
The Sports Cluster in Domodedovo
| where: | Russia, Domodedovo | |
| date | — 2021 / | |
| function: | Sport / Sports complex | |
| studio: | Architectural bureau of Yuri Vissarionov http://www.pamvissarionov.ru | |
| architect: | Yuri Vissarionov |
The second place in the nomination went to a sports complex in Domodedovo designed by Architectural Bureau of Yuri Vissarionov with an indoor soccer arena and an ice rink. The project is interesting because it is a relatively new model of public space for the Moscow region – it integrates sports facilities into a large recreational area. Thus, the city will have a sports mini-district with its own promenade for family recreation.
The Medical Center in Noginsk
| where: | Russia, Noginsk | |
| date | 2022 — 2023 / 2.2023 — | |
| function: | Hospitality / Health / Polyclinic | |
| studio: | A2M https://a2m.moscow/ | |
| architect: | Dana MatkovskayaAndrey Adamovitch |
The 3rd place winner is also interesting – it is a medical center in Noginsk designed by A2M architects. Seemingly, you cannot design anything fundamentally new terms of form when you design a medical center of local significance. However, A2M never ceases to amaze with formal searches and memorable objects. In this case, the architects “molded” an oval building with an inner courtyard from rectangular volumes, each of which consists of a window and a blank wall: the cells reflect the layout of the medical rooms inside and alternate in a staggered order – the building seems to be literally “forming” before our eyes. The layout is thought out in such a way that the courtyard will be convenient to get to any of the six departments of the polyclinic.
The project is designed for duplication, so the facades can be finished with both fiber-cement panels and metal cassettes.
The project is designed for duplication, so the facades can be finished with both fiber-cement panels and metal cassettes.
Public buildings and Complexes
The multifunctional complex of “Russia Today” news agency
| where: | Russia, Pokrovskoe | |
| date | — 2021 / 2023 — | |
| function: | Hospitality / Health / Resort | |
| studio: | Reforma https://archreforma.ru/ |
The best in the category “Public Buildings and Complexes” was recognized the multifunctional suburban complex of the Russia Today International Information Agency designed by Reforma architects. It is being built on the site of an unfinished recreation center, which was started and abandoned at the turn of the 1980-90s. Showing their project to the audience, the architects said that compositionally the complex is “assembled” from its constituent functions: the front and quiet zone, restaurant, administration and media hall. At first, the authors distributed these functions on the territory based on logistical considerations; then, according to the architects, they began to attract and merge one into another “like drops”, forming a bionic shape. A grid of lamellae was “stretched” on top, their frequency and inclination varying in different parts of the volume, so that the buildings somewhat resemble lamellar mushrooms.
The restaurant in Novogorsk
| where: | Russia, Khimki | |
| date | 2022 — / 2023 — | |
| function: | Commercial and Retail / Restaurant | |
| studio: | A2M https://a2m.moscow/ | |
| architect: | Dana MatkovskayaAndrey Adamovitch |
The second place went to the project of a restaurant on the bank of a pond near the Alpamed cottage settlement in Novogorsk, Khimki District – however, the entire northern part of the microdistrict consists of cottage settlements, and a restaurant with a view terrace and glass walls should definitely be in demand. The light, long building is laconically reminiscent of the Zoya museum by the same A2M architects: it has both modernist traditions and a modern note – the smooth curves of the walls and the sharpening of the corners of the two volumes adjacent to the glass parallelepiped of the restaurant hall are responsible for it, as well as the facing with half-brick masonry with an alternating western row, thanks to which the facades become textured and striped.
A multifunctional service building on the Novorizhskoe Highway
| where: | Russia, Krasnogorsk | |
| date | 2022 — 2023 / | |
| function: | Mixed-use / Mixed-use complex | |
| studio: | Mezonproekt http://www.mezon.pro | |
| architect: | Ilia Mashkov |
The building is interesting because it is truly multifunctional: a supermarket on the first floor, a fitness center on the second, and an office on the third, with no function clearly prevalent. In addition, the shape of its volume stretched along the highway is streamlined, with a hint of sculpture; greenish trapezoids, smoothly changing their size, form a pattern on the facades, which helps to level out the scale and adds to the form not only relevance but also integrity.
Industrial Estate
The pharmaceutical and logistics complex
| where: | Russia, Solnechnogorsk | |
| date | — 2022 / | |
| function: | Education / | |
| studio: | RuSkom Project https://ruscomproject.ru/ |
The pharmaceutical and logistics complex
The nomination of industrial estate was pretty intriguing because for decades industrial architecture was not considered to be architecture – it was all just utilitarian buildings that had no business being at an architectural competition. However, now the structure of industrial complexes has started to change – more and more often the choice falls on the light industrial format, and the production facilities themselves are united into industrial multifunctional parks, where the issue of competent organization of the environment is finally coming out of the shadows.
The winner in this nomination – the pharmaceutical and logistics complex (designed by RuSkom Project) – is situated in one of Moscow-region industrial parks “Esipovo”, not far away from the town of Solnechnogorsk. The project had in fact several clients, but the architects ultimately convinced them to make a mono volume, which houses multipurpose premises and a large front office that looks more like a business center. The architects confessed that the construction budget was minimal, but they wanted to make the facility comfortable enough: thus, the office has a fitness center, an event area and other public functions. All of those are grouped around the central lobby and represent a system of courtyards and rooms of various configurations, creating a living environment with flexible functionality, which is quite unusual for the industrial sector.
The clients also wanted to save a lot of money on the facades, but even here the architects found a way out: they made them snow-white and broke up the monotony with mosaics. The simple sandwich panels and panoramic glazing made a pretty cool architecture.
The nomination of industrial estate was pretty intriguing because for decades industrial architecture was not considered to be architecture – it was all just utilitarian buildings that had no business being at an architectural competition. However, now the structure of industrial complexes has started to change – more and more often the choice falls on the light industrial format, and the production facilities themselves are united into industrial multifunctional parks, where the issue of competent organization of the environment is finally coming out of the shadows.
The winner in this nomination – the pharmaceutical and logistics complex (designed by RuSkom Project) – is situated in one of Moscow-region industrial parks “Esipovo”, not far away from the town of Solnechnogorsk. The project had in fact several clients, but the architects ultimately convinced them to make a mono volume, which houses multipurpose premises and a large front office that looks more like a business center. The architects confessed that the construction budget was minimal, but they wanted to make the facility comfortable enough: thus, the office has a fitness center, an event area and other public functions. All of those are grouped around the central lobby and represent a system of courtyards and rooms of various configurations, creating a living environment with flexible functionality, which is quite unusual for the industrial sector.
The clients also wanted to save a lot of money on the facades, but even here the architects found a way out: they made them snow-white and broke up the monotony with mosaics. The simple sandwich panels and panoramic glazing made a pretty cool architecture.
Bus station in Bronnitsy
| where: | Russia, Bronnitsy | |
| date | 2021 — 2023 / 2022 — | |
| function: | Transport / | |
| studio: | Archproekt http://arch-project.ru/ |
The Bronnitsy bus station from ARCHPROEKT, which took 2nd place, is a small but beautiful silhouetted building with a folded roof on supports, which certainly deserves an award for following the best traditions of modernist bus stations.
Overland garage in Lesnaya Otrada Residential Complex
| where: | Russia | |
| date | 2019 — 2021 / 2022 — 2023 | |
| function: | Transport / Garage | |
| studio: | StalСЊnoe WС‹mya | |
| architect: | Sergey Savchuk |
Third-placed was an overland parking garage in the village of Svetlye Gory, designed by Stalьnoe Wыmya, which has been mentioned here many times. Its peculiarity is the pattern of the metal fence; it really turned out to be beautiful, which transferred a utilitarian building into the category of creativity.
Hotel and recreational complex in Vereya
| where: | Russia, Vereja | |
| date | — 2022 / | |
| function: | Hospitality / Health / Hotel | |
| studio: | Lozinsky | |
| architect: | Igor Lozinsky |
In addition to the five nominations, the jury awarded one special prize in the category Public Buildings and Complexes – a hotel and recreational complex in Vereya by Lozinsky & Partners. The project is indeed outstanding, but it was not eligible to participate in the main competition due to the lack of an agreed architectural and town-planning image. Earlier we have already written about it – the complex is being built on the bank of the Pakhra River, with a panorama to the historical Vereya on the opposite side. The project is complex and unusual, mixing ecological theme with palace traditions of Russian manor and romantic spirit of Bazhenov. Such an atypical conglomeration of ideas eventually gave birth to a hotel composition in the form of a symmetrical arc, partially dug into the relief, with spa and conference zone blocks docked to it, and residential modules covered with shingles, reminiscent of Kizhi domes.
