Restoration and modernization of the Mayakovsky Public Library
                Copyright: Photograph © Margarita Yavein / provided by Studio 44
        The Labyrinth
In 2018, the library, through the efforts of its director Zoya Chalova, finally got into the targeted reconstruction program: by this time, repairs had not been carried out for about 40 years, the engineering systems were worn out, and the complicated logistics system made it difficult not only to access books, but also for different departments to interact with one another. The competition for the development of the project was won by Studio 44.
To give you a better idea of the complexity of the task that the architects were faced with, we must first of all say that the library is situated literally two steps away from the “Horse Tamers” sculptures on the Anichkov Bridge, next to the Beloselsky-Belozersky Palace – in the buildings that formerly belonged to the compound of the Trinity-Sergius monastery, the land site for which was allotted by Peter the Great himself back in 1714. For two hundred years, the monastery abbots who came from Moscow to imperial St. Petersburg stayed in the courtyard.
In the Soviet time, the complex changed its function and was transformed to fit the needs of the library, but it was done in a way a bit too pragmatic and straightforward – today, however, the authors of the new restoration and renovation project were required, on the one side, to keep the current functions of the buildings and at the same time reveal the beauty of their architecture, somewhat spoiled by the alterations made in the 1969’s, and, on the other side, to adjust the complex to meet the needs of a modern library, literally “jamming” innovative solutions – both architectural and organizational – in the interiors of the old buildings. In addition, it must be noted that the compound did not arise at once back in the day – in actuality, it is a group of buildings of different functions and years of construction, very much like a volumetric jigsaw puzzle on the inside. Spoiler: the difference in years of construction is something that the architects also emphasized.
Restoration and modernization of the Mayakovsky Public Library
                Copyright: Photograph © Margarita Yavein / provided by Studio 44
        The three main buildings of the former courtyard are the cell building stretched along the Fontanka embankment, the Church of Sergius of Radonezh next to the Beloselsky-Belozersky Palace and the volume of the late Trinity Church located deeper inside the site.
The cells and the Church of Sergius of Radonezh mostly refer to the mid-18th century, but this predominantly applies to the material of the walls, floors, and general outline of the plan. As for the facades, they were repeatedly changed, buildups were constructed over the main volumes, new entrances, staircases, windows, and rooms appeared. Two capital rebuilds refer to the middle of the 19th century. Architect Alexey Gornostaev decorated the front facade in the Russian style: window frames appeared in the form of figured columns with cornices and cherubs in tympanums, while the courtyard facades retained the Baroque decoration (1856-1857). Architect Sergey Sadovnikov added a third floor to the cell building and added the Trinity Church (1870).
Подворье Троице-Сергиевой лавры, 1860-е
                Copyright: Photograph by A. Lorens ©
        The courtyard of the Trinity-Sergius Lavra, photo of the 1880s – 1890s
                        Most of the changes to the monastery compound took place – for obvious reasons – in the 1930’s: at that time, the domes were dismantled, the facade and interior decoration was destroyed, which included an oak-carved iconostasis designed by Joseph Charlemagne and icons painted by Alexei Venetsianov. In the 1940’s, the library moved to the building, but it was only later, in 1968, that the building was reconstructed to fit its needs: the single-volume spaces of both churches were divided into three stories, some of the bearing structures were replaced, extra staircases were added, and the basement floor was deepened.
The decoration of the facades was returned only in 1995, but for some reason, specifically on the Fontanka, i.e. in the grand-facade part, it was done in a simplified format.
Photograph 1973
                        Restoration and modernization of the Mayakovsky Public Library
                Copyright: © Studio 44
        The library building is a cultural heritage site. Despite the fact that it keeps its function, the task of adjusting it to modern realities was nothing short of rocket science: considering all the applicable restrictions, the architects were to “fine-tune” the old premises for the new regulations, making them inclusive and convenient for all the users, at the same time keeping and highlighting the historical value of the building.
        Throughout the entire course of reconstruction, we worked closely with both builders and architects. First of all, the historic building was not originally intended for a library, and the main task was to make the project modern, versatile, and comfortable for the employees and visitors. Constant dialogue with contractors helped to achieve excellent results; all our wishes were carefully listened to and taken into account. The architects of Studio 44 offered us eight options for the project, and it seems to us that we have chosen the best one.    
The Starting Point
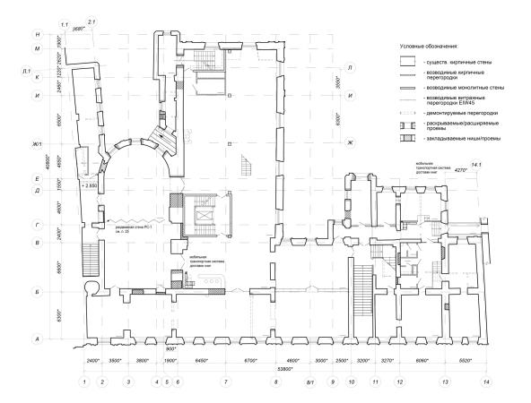
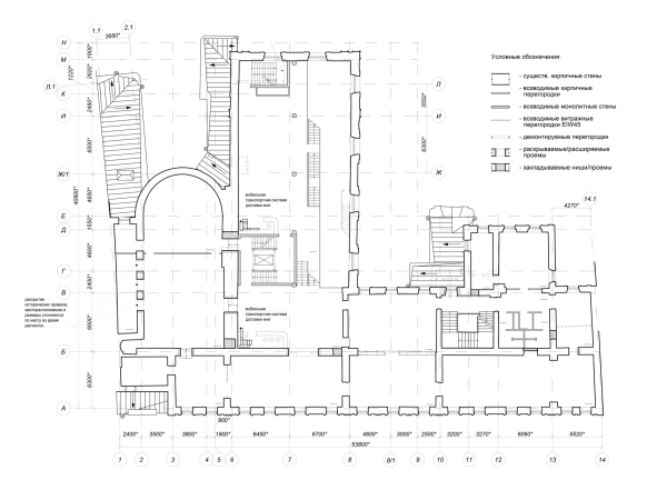
The project started developing from purely pragmatic tasks: in order to ensure two emergency exits from any given point of the building, it was required a staircase-and-elevator nucleus. There was only one place for it – the vault that curiously did not have a protected status. Having established the “nucleus”, the architects could get down to other rooms.
The second most difficult problem was connected with the utility lines: in order to find room for all of them, the architects had to sink the basement floor by 30cm, and the proximity of the Fontanka River was making the whole thing even more exciting. Eventually, however, everything did work out: the load from the existing walls was carried over to a new foundation of reinforced concrete, the historical masonry was repaired and reinforced, and the utility lines were hidden under the plaster floor slabs. The condition of the masonry of the basement floor did not allow the architects to leave it exposed, demonstrating to the visitors the authentic masonry of the 18th century – the walls in the interiors of the lower tier are covered with stucco, which, on the other hand, brings out the plastique of the vaults, and also looks dramatic in its own way. In addition, after the later additions in the basement floor were removed, the outlines of the 18th-century historical plan and volumetric design of the embankment building became clearly visible.
Today, under the vaults of the basement, there is a reader reception area, a “smart” cloakroom, restrooms and an information sector. There are also boxes at the main entrance where books can be picked up or left at any time of the day, after submitting an application. At the level of the basement, the flow of visitors is split in two: from here you can get to the multifunctional hall for 300 people, which occupies the volume of the former church of St. Sergius of Radonezh, or you can take the main staircase to get to the main halls of the open storage.
Restoration and modernization of the Mayakovsky Public Library
                Copyright: Photograph © Margarita Yavein / provided by Studio 44
        The Temple of Books
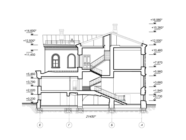
The newsroom is situated in the former Trinity Church, the tallest and the most spacious room of the complex, and here the main challenge was presented by the intermediate floors of the Soviet period that divided the church volume into several floors, cutting into the windows without thinking twice about it. These were replaced by a system of “loft” levels, connected along the longitudinal axis with semitransparent staircases.
Restoration and modernization of the Mayakovsky Public Library
                Copyright: Photograph © Margarita Yavein / provided by Studio 44
        The green glass – particularly, the green glass of the steps – makes the interior seem fresh and modern, becoming a certain kind of “hi-tech” axis of the revised space. It makes a good neighbor of the old brick walls, yet it does not let you forget about the 21st century, including thanks to the tactful character of the modern elements added by the architects. It is not by chance that the loft divides the northern part of the hall, that stops against the wall less lit; the southern part is opened up as much as possible, filling up the entire hall with natural light, which is really abundant on this side – we hope we don’t have to explain to anyone how important the sunshine is in St. Petersburg. And the staircases end up at the border between the two spaces, standing with their sides to the sun, making the most of the light to expose the aesthetic quality of the glass that they are made of.
We will note here that the staircases with steps and barriers of greenish glass and wooden railings are a signature technique of Studio 44 and Nikita Yavein: things that come to mind are the glass “beam” of the staircase in the amphitheater of the Joint Staff (2002-2014), the Higher Management School of the St. Petersburg State University (2007-2015), the Dance Academy (2008-2013), the Nevsky 38 business center (2000-2004), and many other projects. This is like the author’s signature.
Restoration and modernization of the Mayakovsky Public Library
                Copyright: Photograph © Margarita Yavein / provided by Studio 44
        The air-like quality of the renovated space is highlighted by chandeliers composed of pieces of glass, asymmetrically “hanging in the air” on the ceilings of the upper tiers.
The open storage now contains more books than it used to, while the closed stock shrank a little: now it is hosted in the mansard premises, where it was necessary to replace the wooden roof truss system with a metal one and install a climate control system.
The staircases lead not only to the bookshelves but also to the coworking zone with long tables standing near the windows overlooking the Fontanka. This space takes a little bit of getting used to: when you find yourself here for the first time, you can get mixed up and be surprised at the fact that after you enter at the first floor, you suddenly exit at the third; next time it will be easier to get your bearings.
Restoration and modernization of the Mayakovsky Public Library
                Copyright: Photograph © Margarita Yavein / provided by Studio 44
        Restoration and modernization of the Mayakovsky Public Library
                Copyright: Photograph © Margarita Yavein / provided by Studio 44
        Deus ex Machina
The special pride of the renewed library is the telelift system that speeds up the process of delivering the books from storage: a monorail, along which a “trolley” with the book moves, connects all the floors. The construction is partially concealed behind the suspended ceiling; it was necessary to calculate the place for it, as well as for the supply and exhaust ventilation system, literally with millimeter precision, since the walls were weakened during historical alterations. It is expected that in the future the telelift will be extended to the neighboring building, a pseudo-baroque mansion of Duchess Carlova, which is situated nearby, south of the former compound, at Fontanka 46, and also belongs to the library.
Restoration and modernization of the Mayakovsky Public Library
                Copyright: Photograph © Margarita Yavein / provided by Studio 44
        Restoration
As for the restoration work itself, it gave the building a cared-for look, at the same time helping to visually divide volumes built at different times. The cement details of the facade decor of the Soviet time were replaced by plaster casts, executed by archive photographs and drafts. The authentic masonry of the Trinity Church was repaired and reinforced; the windows, which used to be clogged up, were opened once again.
Restoration and modernization of the Mayakovsky Public Library
                Copyright: Photograph © Margarita Yavein / provided by Studio 44
        Restoration and modernization of the Mayakovsky Public Library
                Copyright: Photograph © Margarita Yavein / provided by Studio 44
        Restoration and modernization of the Mayakovsky Public Library
                Copyright: Photograph © Margarita Yavein / provided by Studio 44
        It was not without a few unexpected discoveries: on one of the arches, a surviving painting was discovered. The old tiles on the staircase were restored and complemented by a modern analogue – the architects deliberately highlighted the latter with a brighter color. The small-sized volume on the side of the Beloselsky-Belozersky Palace, where an extra entrance and maintenance rooms are situated, hosted a “museum corner” showcasing artifacts found in the process of restoration – a fragment of the gate leaf, the grating of the window opening and the stamp of the window grating with the date from 1748.
Restoration and modernization of the Mayakovsky Public Library
                Copyright: Photograph © Margarita Yavein / provided by Studio 44
        The third place
Remarkably, after the reconstruction the Mayakovsky Public Library considerably broadened its range of services but stopped short of becoming a tourist attraction where you can do just about anything but read books. Quite the opposite: everything here is meant to help you focus – there is plenty of light and air, softened colors, complete absence of unwanted sounds, and inspiring architecture both inside and outside. And, of course, the books – always within an arm’s reach.
Restoration and modernization of the Mayakovsky Public Library
                Copyright: Photograph © Alyona Goreglyad / provided by Studio 44
        
 
                                                                                                                                     
                                                                         
            
         
                            
 
                             
                             
                             
                    
                     
                             
                                         
                                         
                                         
                                         
                                         
                                         
                                         
                                         
                                         
                             
                             
                             
                             
                             
                             
                             
                             
                             
                             
                             
                                                                                 
                                     
                                                                        
                                                                     
                                                                        
                                                                     
                                                                        
                                                                     
                                                                        
                                                                     
                                                                        
                                                                     
                                                                        
                                                                     
                                                                        
                                                                     
                                                                        
                                                                     
                                                                        
                                                                     
                                                                        
                                                                     
                                                                        
                                                                     
                                                                        
                                                                     
                                                                        
                                                                     
                                                                        
                                                                     
                                                                        
                                                                     
                                                                        
                                                                     
                                                                        
                                                                     
                                                                        
                                                                     
                                                                        
                                                                     
                                                                        
                                                                     
                                                                        
                                                                     
                                                                        
                                                                     
                                                                        
                                                                     
                                                                        
                                                                     
                                                                        
                                                                     
                                                                        
                                                                     
                                                                        
                                                                     
                                                                        
                                                                     
                                                                        
                                                                    