Architectural concept for the comprehensive development of the Rowing Channel waterfront in Nizhny Novgorod.
Copyright: © ASADOV Architects
The architects set themselves the ambitious task of creating a third landmark to join the ranks of major structures on the Volga side of Nizhny Novgorod – after the Kremlin and the Pechersky Ascension Monastery, founded back in the 14th century. In search of inspiration, the authors of the project analyzed the city’s architecture, from stone chambers to modern residential complexes, with a particular focus on the morphology of wooden construction.
Architectural concept for the comprehensive development of the Rowing Channel waterfront in Nizhny Novgorod. The master task
Copyright: © ASADOV Architects
They then turned their lens to the Podnovye district, adjacent to the site. This settlement was the birthplace and home of the inventor Ivan Kulibin – his house no longer exists, but the setting remains as evocative as in Alexander Ostrovsky’s “The Storm”: a high bank, modern “manor houses” nestled in lush greenery. The area is also famous for its cucumbers, which local farmers – take note, food enthusiasts – used to pickle in pumpkins and then pay as rent to the same monastery. While this detail may not directly influence the architecture, well, “If you could know what gibberish empowers, the verse that grows, from all abashment freed…”
A wealth of data is always more than what ultimately finds its way into a book, film, or building, for that matter.
Architectural concept for the comprehensive development of the Rowing Channel waterfront in Nizhny Novgorod.
Copyright: © ASADOV Architects
During the research phase, a symbolic image emerged to connect the past and future – a comet crashing directly into the Kremlin. The aftermath left behind ruins of the old and fragments of the new and unknown.
Vladislav Lipadat, lead architect at ASADOV Architects
The image of a meteorite came to mind due to the unique terrain: roughly in the middle of the site, there’s a small “island” and what looks like a depression it formed on the shoreline. When we were brainstorming the concept, we created a myth about how long ago a “cucumber-shaped meteorite” fell onto this site. Some of its “fragments” are reflected in the façades.
The resulting mood board, imbued with the spirit of Nizhny Novgorod and the intervention of contemporary architecture, feels akin to a medieval manuscript.
Architectural concept for the comprehensive development of the Rowing Channel waterfront in Nizhny Novgorod.
Copyright: © ASADOV Architects
Architectural concept for the comprehensive development of the Rowing Channel waterfront in Nizhny Novgorod. The basic idea
Copyright: © ASADOV Architects
Another step before massing and planning the urban axes and street network was to upload all collected data into MidJourney, which provided some visual guidance. The terracotta elements represent the past, while the light ones symbolize the future.
Architectural concept for the comprehensive development of the Rowing Channel waterfront in Nizhny Novgorod. Proto-image search
Copyright: © ASADOV Architects
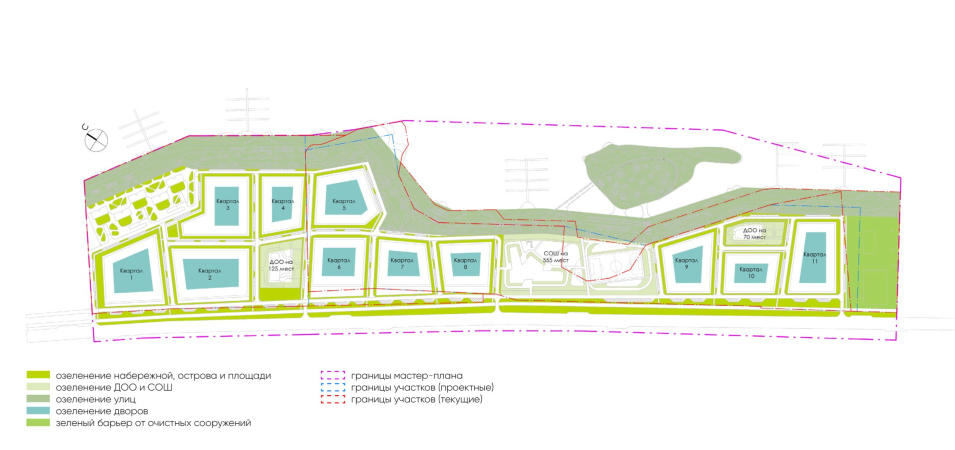
Continuing the meteorite metaphor, the master plan reveals a “crater” – a football field adjacent to a school building. On either side of it, fragments of the celestial body – light-colored, smaller-scale buildings – are scattered. Meanwhile, the “Kremlin walls” – multi-section houses and towers clad in terracotta and wood – remain standing. These structures feature characteristic decorations reminiscent of merlons, zakomaras, gables, and kokoshniks, lending some visualizations the appearance of collages striving to define a new Russian style. A similar, though more restrained, design was proposed by ASADOV Architects for their Kemerovo project.
Architectural concept for the comprehensive development of the Rowing Channel waterfront in Nizhny Novgorod.
Copyright: © ASADOV Architects
Architectural concept for the comprehensive development of the Rowing Channel waterfront in Nizhny Novgorod. Development drawing
Copyright: © ASADOV Architects
Architectural concept for the comprehensive development of the Rowing Channel waterfront in Nizhny Novgorod. The viewing characteristics of the development
Copyright: © ASADOV Architects
The variety of sculptural forms is exceptionally rich and evokes more than just a “Russian spirit”: diamond-shaped windows, “Egyptian” pylons characteristic of Art Deco, crowns that can be traced back to Soviet modernism, rustication and keystones, pointed arches, and “metabolic cells” – all of Nizhny Novgorod’s history seems to converge and transform here. It’s hard to imagine such diversity in a completed project, but it seems that buyers would appreciate it – this housing stands out with its vivid individuality, making each building distinct and leaving virtually no room for monotony.
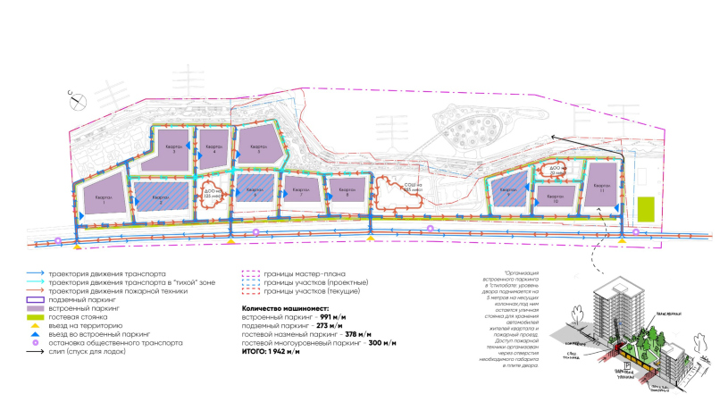
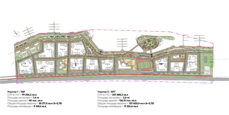
In terms of urban planning, the solutions are much more grounded, traditional, and realistic. On either side of the “crater”, there are “islands” of podium-based blocks, each comprising a unique set of sections of varying heights. Their orientation ensures both views from the apartments and vistas of the Volga from the sidewalks and roads. A uniform network of transportation “capillaries” ensures convenient access and route variations. Along the road, a classic “street frontage” is formed with a rhythmic arrangement of towers, while intersections and visual axes are anchored by high-rise accents.
Spaces for public life are created through commercial premises in the podiums and, of course, through the wide, multi-level embankment complete with piers. The “island” is connected to the embankment via three bridges, extending the promenade. Schools and kindergartens are distributed to ensure all residents have convenient and short routes to these facilities. The podium courtyards are secluded and filled with light throughout the day.
For more details about the project, click here –>
Architectural concept for the comprehensive development of the Rowing Channel waterfront in Nizhny Novgorod.
Copyright: © ASADOV Architects
