Выпускные работы выполнены бакалаврами Кафедры архитектуры и градостроительства Вологодского государственного университета под руководством доцента кафедры Сергея Рыбакова и старших преподавателей Елены Никитиной и Ивана Магарева.
Реновация учебного корпуса №3 ВоГУ
Дарина Зыкова
Руководитель: Сергей Рыбаков
Цель работы – учитывая роль университета в провинциальном городе, превратить ВоГУ в «точку роста», которая будет привлекать молодежь и тем самым снижать миграцию, вызывать интерес у местных жителей старшего поколения, а также менять среду района и разнообразие социальных взаимодействий. Корпус инженерно-строительного института располагается в деградирующей среде, ничем не привлекательной для будущих и настоящих студентов. Проект, в подготовку которого вовлекались студенты и городские сообщества, предусматривает комплексную реновацию, создание экспозиционных пространств и кластеров для разных групп жителей Вологды.
Реновация учебного корпуса №3 ВоГУ. Аксонометрия
© Дарина Зыкова
Комментарий руководителя: «Работа посвящена актуальной и насущной проблеме – реновации учебного корпуса N3 , расположенного в депрессивной среде окраины Вологды. Здание неподходящего для обучения назначения превращается в место, стимулирующее развитие обучающихся. Проблема создания, поддержания и воспроизводства творческого сообщества крайне важна для небольшого города. Автор предлагает блок решений по реновации среды, насыщению пространств мозаикой функций, выставочными площадками, созданию сложного полифункционального объекта. Решение опирается на широкую аналитическую базу: проведенное автором исследование современных трендов в образовании, разбор блока аналогов и их экономики, функционирования, достоинств и недостатков. Интересен подход автора к открытости пространства жителям, ввод параметрических элементов, восприятие которых важно для будущих студентов инженерных специальностей».
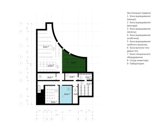
Реновация научной библиотеки ВоГУ
Ирина Кузнецова
Руководитель: Сергей Рыбаков
Переизбыток информации и развитие технологий привели к тому, что популярность библиотек снизилась, а поток посетителей сократился. Проект реновации Научной библиотеки Вологодского государственного университета отвечает на этот вызов. Комплексное переосмысление функций, наполнения, смыслов позволяет создать пространство, нужное городу и жителям, со средой для обучения, общения и отдыха. Автор остановился на варианте работы с временной архитектурой, закладывая возможность изменений и перестройки. Концепция опирается на объекты художников-авангардистов: Александры Экстер, Казимира Малевича, Ильи Чашника, Эль Лисицкого и Всеволода Мейерхольда. Работа с исторической средой характеризуется строгостью, геометризмом и лаконичностью форм.
Реновация научной библиотеки ВоГУ. Генеральный план совмещенный с планом 1 этажа
© Ирина Кузнецова
Комментарий руководителя: «Проблема реновации объектов, функции которых уже отжили свое, важна и актуальна. Автор предлагает превратить пространство бывшей библиотеки в творческий кластер, открытый городу – площадку для генерации и обмена идеями, с функциями коворкингов, экспозиции и всевозможных услуг. Интересен подход автора к соседству с исторической средой и диалогические элементы, обращение к русскому авангарду, проявившееся в объеме. Решение автора работает в диалоге как с «модернистской» пристройкой к историческому зданию, так и с исторической средой».
Пространство для социальных контактов работников промышленных предприятий
Лилия Зуй
Руководитель: Иван Магарев
Цель исследования заключается в решении проблемы выгорания личности на рабочем месте с помощью многофункциональной окружающей среды. Проектируемое пространство находится в Вологде на территории старого вагоноремонтного завода. В результате анализа территории было выявлено, что район оснащен инфраструктурой, расположен в пешеходной доступности от остановок общественного транспорта, обильно озеленен и в рамках ПЗЗ разрешает новое строительство.
Новая архитектурная группа из трех объемов обрамлена пешеходными осями. Форма складывается из модульной трансформации образа железных путей, в результате чего сами объемы становятся отсылкой к вагонам. Между осями создаются три блока, в них располагаются коммуникативные площадки, которые включают оздоровительные объекты для активного отдыха, зоны для экскурсантов, зоны общественного питания, барбекю, опенспейс, места для сна, теплицы для выращивания овощей и зелени. В зеленых зонах предлагается расположить спортивные площадки, лужайки для пикника, зоны для летучек и переговоров, амфитеатр для просмотра спортивных игр или фильмов. Объект может использоваться как работниками завода, так и его посетителями.
Разработка пространства для социальных контактов работников промышленных предприятий
© Лилия Зуй
Комментарий руководителя: «Работа демонстрирует гармонично-состоявшийся результат включения современной архитектуры в исторический промышленный контекст. Проект предполагает строительство полу-общественного центра на территории завода для отдыха рабочих, их коммуникации между собой, а также их коммуникации с горожанами, которые приходят сюда на экскурсии, так как завод является достопримечательным местом. Особое внимание уделялось архитектурной гармонизации между существующими зданиями завода и вновь возводимыми корпусами общественного пространства.
Лилия грамотно осмыслила данные из социологических исследований, сделав обдуманные планировки, отвечающие ключевому требованию – социальным коммуникациям, разработала верные конструктивные решения, связанные с нестандартным способом отделки фасадов (обожженное дерево и стекло), разработала насыщенное благоустройство и подобрала многолетние растения для высадки на участке. Архитектура получилась пропорциональной, сомасштабной и современной».
Проект МФК в Вологде. Открытое строительство на примере реновации типографии.
Дарья Федоркова
Руководитель: Сергей Рыбаков
Работа иллюстрирует пример решения проблемы освоения деградированных промышленных территорий центра города в условиях деиндустриализации. В ходе анализа было выявлено, что заложенная инвестором модель как правило со временем кардинально меняется. Поэтому за основу проектирования были взяты принципы открытого строительства Николаса Джона Хабракена. Была составлена модель «стартовых» функций и мозаика их возможного изменения. Разработанная схема представляет собой два основных блока – «жилой» и «общественный» – и обеспечивает возможности сложных взаимодействий между ними. Здание было поделено на систему модулей, что в будущем позволит осуществить гибкое освоение и перестройку при смене пользователей. Здание интегрировано в систему центра города и решает ряд ключевых на данный момент проблем. Представленный проект может лечь в основу освоения многих заброшенных объектов и превратить их в сложные динамические, меняющиеся во времени социопространственные структуры.
Проект МФК в Вологде. Открытое строительство на примере реновации типографии
© Дарья Федоркова
Комментарий руководителя: «Проблема реновации и конверсии территорий индустриального наследия XX века в центре города представляет большую важность сегодня. Вместе с тем, проблема выбора эффективных функций и нового наполнения такого рода пространств зачастую ведет к неэффективным решениям. Автор предложила использовать методику «открытого строительства» как базу для концептуальной модели и наполнения такого рода объектов мозаикой функций, превращения здания в «динамический объект», способный меняться с течением времени. Данная идея поддержана автором на всех уровнях: от планировочных решений до концепта фасада. Объект становится «динамической» структурой, сочетающей жилые и общественные функции, с возможностью их балансировки во времени, прорастанием друг в друга и формированием сложных сочетаний жилья, работы и досуга».
Редевелопмент промышленных территорий: проект образовательно-досугового комплекса в Вологде
Дарья Ярославцева
Руководитель: Елена Никитина
Цель работы – изучение возможностей редевеломпента и перспектив применения данного подхода в Вологде, на территории бывшей фабрики «Северный коммунар», а также разработка архитектурной программы и проекта образовательно-досугового комплекса. Автор проработала единый подход для адаптации промышленного объекта к новым функциям – образовательно-досуговому комплексу по популяризации высотного CLT-домостроения для Segezha Group. Комплекс включает мозаику функций: производство, работу, досуг, а также формирует «зеленый коридор», связывающий фрагменты района и открывая пространство набережной.
Редевелопмент промышленных территорий: проект образовательно-досугового комплекса в Вологде
© Дарья Ярославцева
Комментарий руководителя: «Формирование Вологды длилось столетиями. В центральной части оказались деградирующие, криминогенные территории с отслужившими свой срок заводами, фабриками, складскими зонами. При этом они имеют большой потенциал развития: ценность этих территорий повышает их расположение в центре города, транспортная доступность, развитая инфраструктура, а также инженерное обеспечение. Дарья провела качественные предпроектные исследования проблем заброшенных заводских территорий Вологды, принципов и методики их адаптации к современным потребностям.
Благодаря точному пониманию изученных проблем абсолютно правильно выбрана территория проектирования – депрессивный район восточного Заречья, практически в центре активно растущего города – бывший завод «Северный коммунар». Получилось рационально продуманное проектное предложение – и функционально-технологическое, и объемно-пространственное. Рассмотрен и учтен блок аспектов, необходимых для успешного функционирования нового образовательно-досугового комплекса: возможности оптимальной реконструкции сохранившихся цехов, благоустройство территории завода с организацией зоны экспозиции продукции из CLТ-панелей, особенности их производства. Решены проблемы транспортной инфраструктуры, создана развитая спортивная зона».
