Дипломная работа создавалась для норвежского проекта «Национальные туристические дороги» – в его рамках дороги снабжаются инфраструктурой от смотровых площадок до отелей и мемориальных комплексов с тем, чтобы повысить туристическую привлекательность различных уголков страны.
Предложенный Ариной туристический комплекс расположен в деревне викингов Гудванген, на западном побережье Норвегии – ландшафт включен в Список всемирного наследия ЮНЕСКО и представляет собой деревню с фьордом и горами высотой более 1700 метров. Деревня окружена природными и культурными достопримечательностями, также ее пересекает знаменитая Фломская железная дорога.
По словам научного руководителя, профессора кафедры «Дизайн архитектурной среды» Оскара Мамлеева, «работа содержит исследовательский проектный анализ исторической и современной скандинавской архитектуры», а «отменный вкус придает проекту эстетическую привлекательность».
Арина Андросова, бакалавр кафедры «Дизайн архитектурной среды», МАРХИ
Гудванген является отправной точкой путешествий по фьордам Норвегии. Благодаря круизным и автобусным турам, а также железнодорожным маршрутам, деревня ежегодно принимает тысячи туристов. Однако, несмотря на высокий туристический потенциал на территории отсутствует развитая инфраструктура, способствующая длительному и качественному пребыванию гостей.
Проект направлен на решение этой проблемы, предлагая комплексную туристическую инфраструктуру, которая не только продлит пребывание туристов, но и укрепит связь между архитектурой и уникальной природой фьорда, создавая устойчивую модель взаимодействия человека и ландшафта.
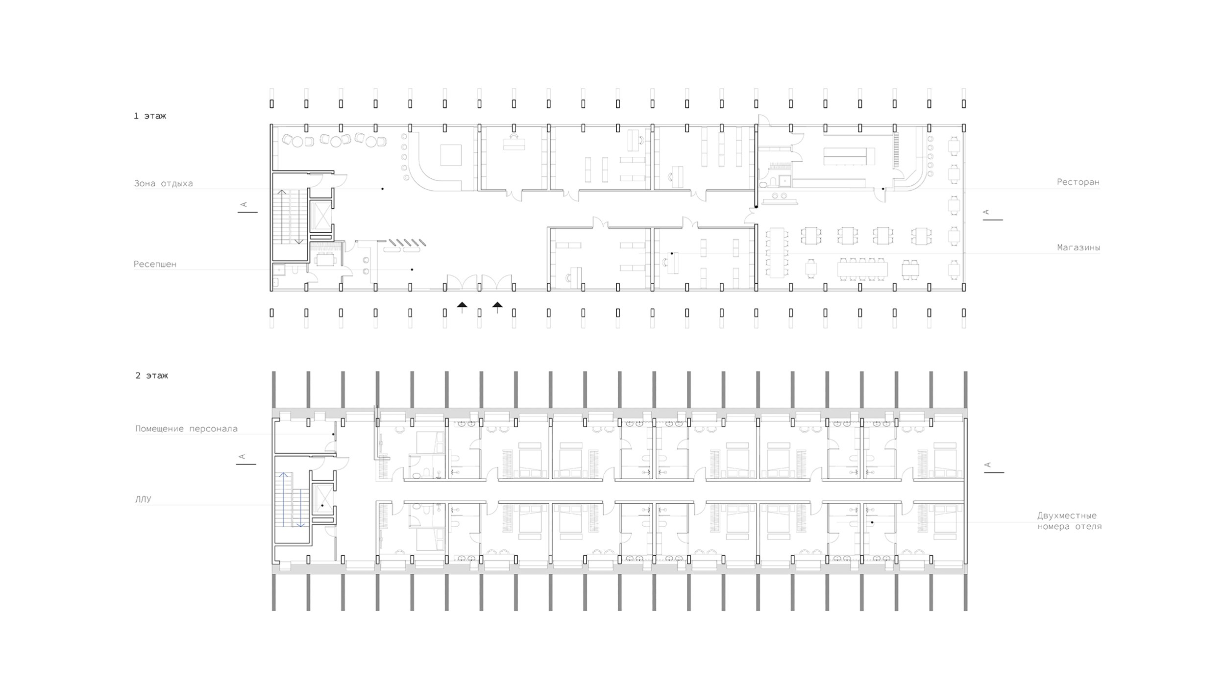
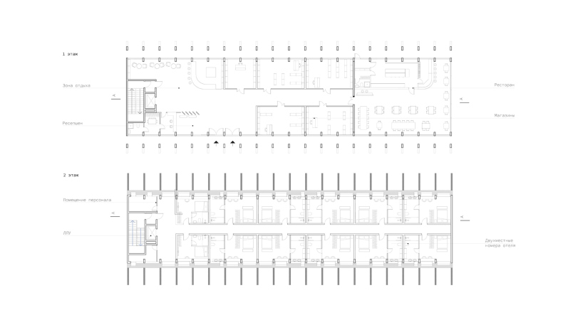
Первым объектом является ресепшен, с него начинается туристический путь. Концепция здания вдохновлена формами древних северных домов. Однако цель проекта заключается не просто в воспроизведении традиционной архитектуры, а в переосмыслении ее через современный взгляд.
Функционально здание разделено на три основные зоны. В первом блоке расположен ресепшен, где посетители могут приобрести билеты на экскурсию в музей, а также забронировать номер в гостинице или индивидуальный домик на склоне. Далее на первом этаже находятся сувенирные магазины, а завершает пространство ресторан, из которого открываются живописные виды на фьорд.
Второй и третий этажи отведены под гостиничные номера.
Второй объект – спа на фьорде. Баня в Норвегии – это не просто архитектура, а часть философии, в которой важна природа, баланс и внутреннее спокойствие. Круглая форма здания отражает глубокую символическую и культурную связь с традициями Норвегии. Помимо базовых и нормативных помещений, в здание СПА-комплекса входят: панорамная сауна с бассейном, иммерсивный душ, помещение с кедровой бочкой, скандинавская сауна, а так же главная особенность – два пирса и внутренний бассейн для купания во фьорде.
Третий объект – домики на берегу фьорда. Разработано пять типов, различающихся по форме и планировке, но объединенных общей концепцией. Здания разбросаны по берегу, объединены мостом и возведены из горного среза камня. Каждый дом ориентирован индивидуально – на фьорд, горы или звездное небо.
Четвертый объект – пеший путь со смотровыми площадками. Пешие маршруты играют важную роль в культуре Норвегии. Здесь природа рассматривается не как фон, а как равноправный участник архитектурного диалога. Пеший путь включает три смотровые площадки, открывающие панорамные виды на фьорд и территорию комплекса. В конце пути идет пересадка на фуникулер, который отправляет к музею.
Пятый и завершающий объект – музей на вершине скалы. Здание музея расположено на высоте 1400 метров и органично вписано в склон горы благодаря своей вытянутой форме с так называемым «хвостом», в котором находится эскалаторы для подъема, что позволяет посетителям подняться на вершину и продолжить пеший маршрут по горам.

