Может ли современный малый город в России стать субъектом – получить свой голос, начать принимать решения и быть уникальным, несмотря на индустриальный и социалистический опыт подчинения? И насколько уместна фигура архитектора в малом городе – его система представлений, инструменты и методы?
Студенты отвечали на эти вопросы в течение года, разрабатывая средовые проекты реконструкции в рамках мастер-планов исторических центров для трех малых городов – Зарайска, Камышина и Бирска.
Работа студии опиралась на «спонтанный ордер» – авторский метод преподавателей, основанный на принципе запланированного конфликта как импульса «естественной формы», то есть гармонии, ориентированной на незавершенный и несовершенный результат. Каждый студент создал в своем проекте собственный ордер – то есть авторский набор принципов и приемов, реагирующих на выявленные проблемы.
Преподаватели:
Евгения Репина, Сергей Малахов
Студенты:
Александра Артебякина, Ибрагимова Эльвина, Ольга Червоненко, Алиса Антошина, Дарья Хлебникова, Анастасия Стрикалова, Алина Лачихина Алексей Глебов, Александра Орлова
Евгения Репина и Сергей Малахов
1. Работа предполагала два этапа: коллективную и индивидуальную. Общий сценарий проекта основывался на реальной проблематике, связанной с выживанием и развитием трех небольших городов: Зарайска, Бирска и Камышина. Соответственно, были образованы три проектные команды, каждой из которых предстояло восстановить достоверную картографическую основу, провести анализ существующего положения, обозначить вызовы, ресурсы и, самое главное, – предложить концепцию развития (по сути – мастер-плана) и вариантов регенерации среды на базе креативной экономики. Именно эта коллективно проработанная часть проектов была максимально представлена на состоявшихся встречах с городскими интересантами.
На втором этапе каждый участник студии был озадачен выбором своего объекта внутри коллективно проработанных территорий (центральных туристических и культурных кластеров-триггеров развития). В общей иерархии принятой пространственной стратегии персональный выбор включал два масштаба объекта – квартал и типологический модуль: дом, подворье, общественный центр, образовательный комплекс.
2. Выбор темы проекта был обусловлен потребностью актуализации опыта студентов в сфере реальной практики, обращенной на назревающий тематический дискурс:
а) Убывание коренного населения «малых городов», несмотря на ценный культурный и природный ресурс.
б) Исход образованного и состоятельного городского контингента из мегаполисов. Особую актуальность выбранному сюжету придает возрастающий интерес к возможностям креативной экономики и стратегиям мастер-планирования.
в) Представить студентам возможность подойти к профессии как к способу профессионального соучастия архитектора и среды.
Мастер-план Бирска
Александра Артебякина, Алексей Глебов, Дарья Хлебникова, Ольга Червоненко
Бирск – город в Башкортостане, расположенный на реке Белой (притоке Камы). Команда предложила стратегию развития города с опорой на три направления: рекреация, креативные индустрии и образование. Движущим элементом в этой стратегии выступает туризм. Все направления уже существуют в Бирске, а значит, интересны его жителям и имеют потенциал для инвестирования и развития.
Проанализировав бирскую панораму – вид на город с реки – команда определила, что с берега город выглядит плотно застроенным. Но на самом деле это не так, а значит, городскую ткань можно деликатно уплотнять, добавляя в нее новые сценарии.
Еще один важный компонент городской идентичности и символического капитала – бирские овраги: активная часть городского рельефа, которая подчеркивает связь реки, земли и обитателей города. По историческому Екатерининскому плану Бирска каждый квартал должен был иметь свой внутренний сад – мастер-план предлагает возродить концепцию бирского городского сада.
В качестве пилотных проектов участники студии разработали несколько объектов внутри креативного туристического кластера: руину-бриколаж городской усадьбы, квартал «Мастерок», театральный квартал и квартал с оврагом как фрагмент постиндустриального города.
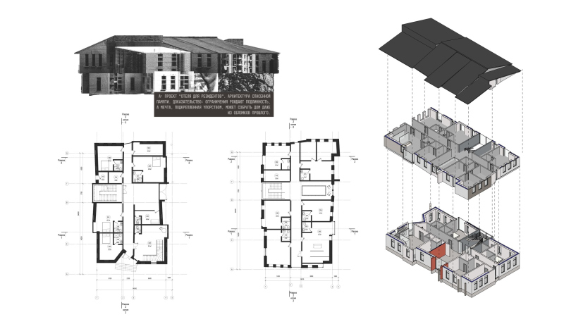
Мастер-план Зарайска
Алиса Антошина, Анастасия Стрикалова
Зарайск – город в Московской области, расположенный на правом берегу реки Осётр (приток Оки). Чтобы сохранить и усилить дух города – его историческое наследие, природные ландшафты и активное сообщество – команда предложила концепцию города резиденций: интеграционную модель, объединяющую эти компоненты в единую устойчивую среду.
Резиденции – искусство, фермерство, рекреация, здоровье, история, ремесла – работают как точки притяжения и площадки для совместной жизни, работы и исследований. Они создают баланс между интересами местных жителей и временных резидентов: поток туристов превращается в ресурс для локального развития – экономического и пространственного.
Концепция концентрирует усилия вдоль оси улицы Первомайская – от Зарайского кремля к источнику «Белый колодец». Эта транзитная улица трансформируется в активное общественное пространство: «продуваемую», насыщенную событиями «городскую гостиную». Пустующие и руинированные здания вдоль Первомайской адаптируются под резиденции искусств, ремесел, локальных продуктов и здоровья, формируя цепочку общественных пространств разного масштаба.
Стратегия опирается на сильные стороны города и предлагает новые связи между его историческими и современными зданиями и пространствами: она предполагает бережное восстановление и переосмысление наследия, а также новые интервенции, которые сохраняют масштаб и материальность Зарайска и помогают интегрировать город в современную систему занятости, культуры и туризма.
Мастер-план Камышина
Эльвина Ибрагимова, Алина Агошкова, Алина Лачихина, Александра Орлова
Камышин – город на правом берегу Волги между Саратовым и Волгоградом. Команда предлагает вернуть Камышину его базовое состояние – «городскую обычность»: среду нормальной жизни и счастливого обитания, утраченную в связи с историческими травмами – депортацией поволжских немцев, затоплением прибрежной части города, снесением храмов, утратой части исторической застройки и места основания города: острова на стрелке рек Камышинки и Волги. Эти утраты привели к обычной проблеме многих малых городов – разрушению привычного городского уклада и утере настоящего быта.
В основе мастер-плана лежит концепция города-дома – гостеприимной и интуитивной среды для повседневной жизни в камышинской обычности, а не в купеческом бренде, который сейчас так стараются развить многие малые города. Провинциальность Камышина – альтернатива мегаполису, утратившему структуру и коды пространства, соседские контакты, небольшой масштаб городской среды.
Первый шаг – создание культурно-туристического кластера на пилотном участке в историческом центре. Это узловая точка старой торговой оси и выход к набережной Волги, расположенный близко к утраченной стрелке с мысом – к исходной точке формирования города. Здесь пересекаются слои застройки разных эпох: купеческие здания XIX века, советская панельная среда и современные фрагменты. Новые архитектурные интервенции – бутик-отель, фудкорт, небольшой культурный центр – формируют двор, который жители города могут самостоятельно осваивать.
