VILLA GRACE. Объемы двусветной гостиной и мастер-спальни
Фотография © Роман Леонидов / предоставлена Архитектурное бюро Романа Леонидова
VILLA GRACE
информация:
-
статус
реализовано -
даты
02.2018 / 06.2018 — 08.2024 -
функция
Жилой / индивидуальный жилой дом -
площадь участка
0,432 га -
общая площадь
965,25 м2 -
этажность
2 -
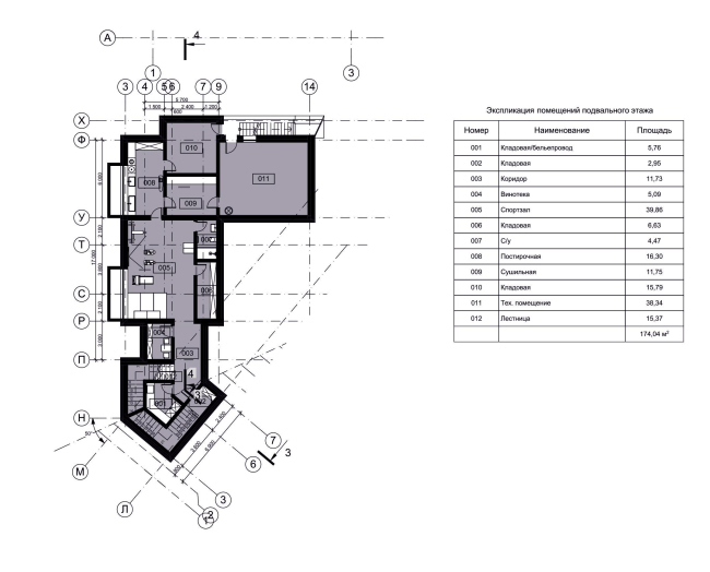
Площадь подвального этажа – 187,59 м2
Площадь 1 этажа – 544,15 м2
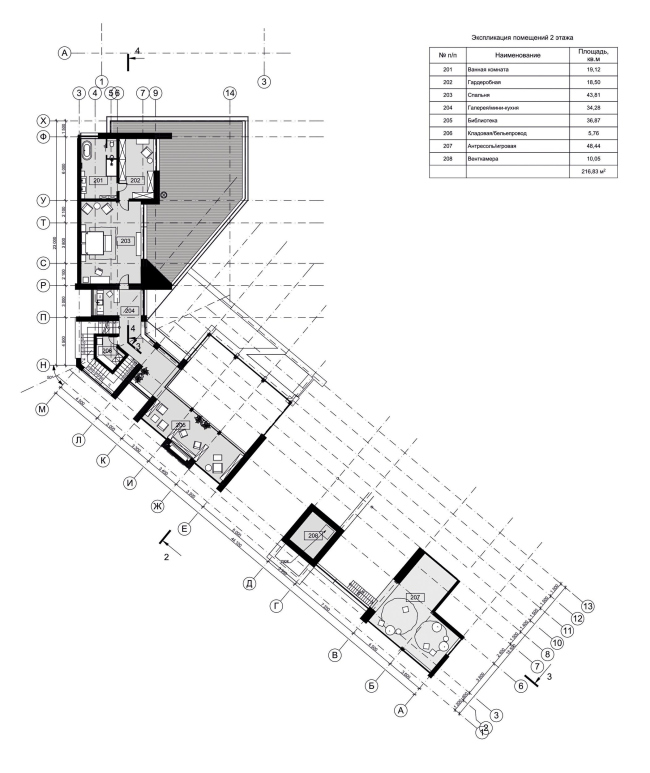
Площадь 2 этажа – 233,51 м2
Площадь террас ( в том числе крылец и эксплуат. кровель)
– 413,80 м2

Роман Леонидов
Roman Leonidov / РоссияАБ Романа Леонидова
Studio of Roman Leonidov / Россияавторский коллектив
Архитектор/Дизайнер: Буденная Ольга, Светлана Фианцева
награды:
- Архитектурный конкурс «Красивые дома» сезона осень-2024
Номинация «АрхОбъект», 2-е место и победитель онлайн голосования за работу «Villa Grace»
VILLA GRACE. Вид на входную зону и блок мастер-спальни из глубины участка
Фотография © Роман Леонидов / предоставлена Архитектурное бюро Романа Леонидова
Архи.ру об этом объекте:
Алёна Кузнецова. Изящество и совместность
Вилла «Грейс», построенная по проекту бюро Романа Леонидова в Подмосковье, балансирует между элегантным минимализмом и широкими порывами русской души. Главный дом решен как последовательность четырех самодостаточных объемов – каждый может существовать по отдельности, но предпочитает быть частью целого. Единение достигается с помощью цвета и системы общих пространств, а богатая пластика, которая менялась по ходу строительства, «окупает» почти полное отсутствие декора.
Вилла Грейс построена на территории одного из старых дачных поселков Подмосковья, среди корабельных сосен, создающих ощущение настоящего леса. Сами авторы предпочитают называть виллу усадьбой это все же комплекс построек, вписанных в ландшафт ... читать дальшеVILLA GRACE. Вид на двусветную гостиную, кухню и детскую
Фотография © Роман Леонидов / предоставлена Архитектурное бюро Романа Леонидова
описание:
Глядя на белоснежные фасады загородного дома «Villa Grace», невольно уносишься мыслями к Средиземноморскому побережью, на пляжи Бразилии или Коста-Рики. При всей строгости и геометричности своих форм, подчеркнуто лишённых каких-либо декоративных элементов, здание вовсе не производит впечатления сдержанности и минимализма**.** Напротив, умелая комбинация чётких объёмов, светлого фасада и больших панорамных окон дарит ощущение элегантной красоты и благородства.
Сочетание облицовочных материалов различной фактуры – гладкой белой штукатурки и рифлёного известняка – позволяет наполнить, казалось бы, монохромные фасады глубиной и подчеркнуть игру света и оттенков.
VILLA GRACE. Вид на дом со стороны десткой площадки: объемы кухни-столовой, двусветной гостиной и мастер-спальни
Фотография © Роман Леонидов / предоставлена Архитектурное бюро Романа Леонидова
VILLA GRACE. Вид со стороны детской площадки на объемы кухни, двусветной гостиной и мастер-спальни
Фотография © Роман Леонидов / предоставлена Архитектурное бюро Романа Леонидова
VILLA GRACE. Терраса с южной стороны
Фотография © Роман Леонидов / предоставлена Архитектурное бюро Романа Леонидова
VILLA GRACE
Фотография © Роман Леонидов / предоставлена Архитектурное бюро Романа Леонидова
VILLA GRACE
Фотография © Роман Леонидов / предоставлена Архитектурное бюро Романа Леонидова
VILLA GRACE
Фотография © Роман Леонидов / предоставлена Архитектурное бюро Романа Леонидова
VILLA GRACE
Фотография © Роман Леонидов / предоставлена Архитектурное бюро Романа Леонидова
VILLA GRACE
© Архитектурное бюро Романа Леонидова
VILLA GRACE. План 1 этажа
© Архитектурное бюро Романа Леонидова
VILLA GRACE. План 2 этажа
© Архитектурное бюро Романа Леонидова
VILLA GRACE. План подвала
© Архитектурное бюро Романа Леонидова
Архитекторы – партнеры Архи.ру:
Проект из каталога (случайный выбор)
