Meanwhile, large-scale development is also represented here not just by “Sputnik” alone – specifically, a kilometer and a half away in a straight line, on a peninsula that cuts into the Moskva River, PIK Development is building the “Myakinino Park” housing complex. Therefore, the context is busy and contrastive, not to say mottled, which is generally expectable outside the Moscow Ring Road. And, although the city environment has not yet fully formed on the pedestrian level, the views of the Moskva River, which one can admire from the windows of the 30-story houses, are already beautiful, which is rather an advantage for the residents of the high-rises. Originally, the concept for developing this land was developed by a Dutch architectural company, but later on the construction scale rose to 30-33 stories, and the developer distributed the tasks of designing individual land sites between a few reputed Moscow architectural companies.
The two first parts, each one consisting of three towers standing on a podium, have already been built by the projects of Ostozhenka and Reserve Union; these are situated closer to the Moscow Ring Road, about 160 meters away from the highway. In the central part of the complex, there is a school building, currently designed by Atrium Architects.
The houses of the next two stages – complexes B3 and A5 – were designed by Sergey Kiselev and Partners. The landscape design was done by Ilia Mochalov; the interiors of public spaces – by the company Haast.
Six towers stand in a line along the Lipovaya Coppice, forming the southwest border of the complex. This is the most advantageous location here, next to the parkland. Currently, the realization of the project is underway; all of the houses are built as monoliths, and are rapidly being covered with facade fiber cement panels.
One of the main challenges of this project was not so much the scale, generally habitual for this area, as the economy of construction and lots of preset parameters that were not to be discussed. The chief architect of the project Aleksey Medvedev shares:
The typology of the towers, as well as the apartment design, was predetermined by the marketers in this case – we worked with preset parameters, rather rigid, down to the size of the fenestration. The recommendations also included colored facades. Initially, more austere and monochrome facades acquired a red-yellow “autumn” look and highlights very much like “sun glare”. Flat facades without bay windows were also part of the assignment. In such cramped conditions, however, we tried to design the volumes using a contrasting pattern, to build the rhythm of the facades at the expense of colored spots and baskets for air conditioners. We thought over the structure of the bottom floors, entrances, and double-height spaces, open to the light.
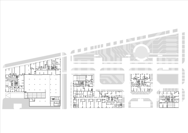
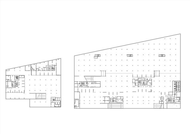
The elongated land site B3, whose construction blueprint is fully occupied by two tiers of an underground parking garage, was originally to get three houses, just like the preceding stages. The architects of Sergey Kiselev and Partners rearranged these volumes, proposing to build four towers instead of three, two of them with always perfectly square bases. Two of them are joined by a common podium that hosts a kindergarten, the others two, which are situated above the zero elevation, standing separately. On the whole, the towers are almost identical; the architects positioned them in a zigzag staggered order, which allowed them to avoid window-to-window views, and to achieve rather convenient caesuras that ensure extra transparency. We will note that the laconic repeating pattern of the square towers gives the entire group an exquisitely simple look, crowned with a 3-meter high attic floor, which neatly masks the mechanical rooms, while the 100-meter height of the towers makes them moderately slender.
In addition to the two-tire kindergarten, hosted in the podium that joins the bases of the two western towers belonging to Group B3, the bottom floors will also include public premises and stores. The bottom floors are higher than the residential ones, but in the original project they were high as well, as a consequence of which some of the spaces were also used for construction in order to achieve the proverbial “square footage output”, Aleksey Medvedev shares. However, the entrance groups retained their visual transparency and two-story height, being some of the flashiest elements of the complex, looking like a “joint cell of a spreadsheet”, designed for pedestrian perception, and looking particularly good when seen from end to end.
The facades of all the four square towers and the podium are subjected to a white grid: it outlines the volumes (including in the top part), enhancing their integrity, yet on the inside it constantly changes the thickness of the lines, from confidently wide, which dissect the houses from top to bottom, to exquisitely slender, which highlight the pixel pattern of the color spots – asymmetric, yet still captured in the grid and working in accordance with the same rules. The pattern consists of dark-gray, yellow, and red spots, no more than one floor tall and no more than one pier wide. Changing the width, getting sometimes thicker and sometimes sparser, supported by air conditioning units, they form a rhythm, which is, on the one hand, rather predictable, and, on the other hand, slightly quivering, like autumn leaves in the wind; the color of the inserts perfectly fits the metaphor, finding a few reflections in the already-complete towers.
In the attic tier, the pixels turn into broad and bright stripes, blending together into some kind of two-dimensional “fringe” – as we remember, it masks the mechanical rooms. The volume of the kindergarten is dominated by black; the pixel colors give way to slender stripes, which makes it look elegant and collected.
The second group – A5 – consists of two towers, one of them (on the outer corner of the complex) being square on the plan and looking much like the “four sisters” from B3. The plan of the other tower is elongated and trapeze-shaped, one of the longer walls being chamfered and designed as a volumetric “saw” – this technique was already tested by Sergey Kiselev and Partners in the housing complex MainStreet (currently under construction) on the Ivana Franko Street, which allowed the architects to give the maximum number of bay windows to the apartments, providing a lot of natural light and beautiful views. The two towers in A5 are joined by a podium that hosts stores, and, if you look at it from above, you may notice that their outlines can be described into an outline of a right triangle with a zigzagged hypotenuse. Its line is continued by a park promenade – a landscaped territory that unites all the six towers.
The towers of the second complex, by contrast, are not mottled but monochrome: the outside one is red, the trapeze-shaped one is gray, black and white. The grids of their facades are generally akin to their predecessors, yet they develop in a more flexible war: for example, the facade of the red tower, which faces the river, has more windows, including corner ones. While the black-and-white house, which marks the inner border of the group of towers A5, is more like a “wall”, the red one becomes a “point” or a corner highlight – and it is not by accident that the volume of the podium, extended into the depth of the site, is also red; this house either starts or finishes the movement, depending on how you look at it.
The range of apartments in A5, situated closer to the river, is more diverse, and the square footage of an average apartment is larger than it is in B3 0 Aleksey Medvedev explains.
Thus, the houses that form the southern, “forest” edge of the complex are arranged in a simple rhythmic manner. On the one hand, you could assume that the laconic character of the solution has to do with the rigid constraints that the architects had to face, yet, on the other hand, one must admit that it is quite a task creating something convincing and recognizable enough, at the same time complying with all of the requirements: not “stoop down” to some garish mottled pattern trying to fulfill the request to create something “flashy”, and not come up with some dull monotonous thing, but set a clear leitmotif and stick to it. As a rule, working with such large-scale complexes is a challenge for the architects. What we are seeing here is one of the possible responses, and quite decent, too.
P.S. In 2019, Sergey Kiselev and Partners also developed a project of an office complex for a triangular land site in the eastern part of the territory that borders on the Myakinino Highway. It has a greater number of floors and demonstrates a version of a monochrome solution, from which the architects had to refrain in the residential towers, but, obviously, it is going to remain on paper.
