Luzhniki Palace of Water Sports
Copyright: Photograph © Evgeny Egorov. Provided by UNK project
The complex fell into decay: under the influence of the ever-changing Moscow weather conditions, the structures kept literally falling apart; the complex also grew morally outdated: the new requirements to sports facilities required renovating the building, as well as expanding it, and improving technologically.
The reconstruction that we proposed is a variant of the evolutionary development of the complex and the building itself. In the 1950s, this complex was an example of the use of advanced technologies and solutions of its time, just as our project is for today. At the same time, it was part of a large urban planning plan: in the Luzhniki system, the Small Sports Arena was symmetrical to it, which was extended in due time for the Olympics-80. Then symmetry and balance were lost; now we, to some extent, by increasing the length of the building, are restoring this balance.
Indeed, the solution proposed by the UNK architects “fit” the object of reconstruction best of all. The project combined the idea of restoring and preserving original elements of the old building and making their replicas on a greater scale, multiplying the architectural legacy. The list of recreated things includes the colonnades under the stalls and the 50-meter-long swimming pool; the historical bay-reliefs are restored and placed in the interior; the facades got their duplicates, only of a greater scale, corresponding to the new dimensions of the building.
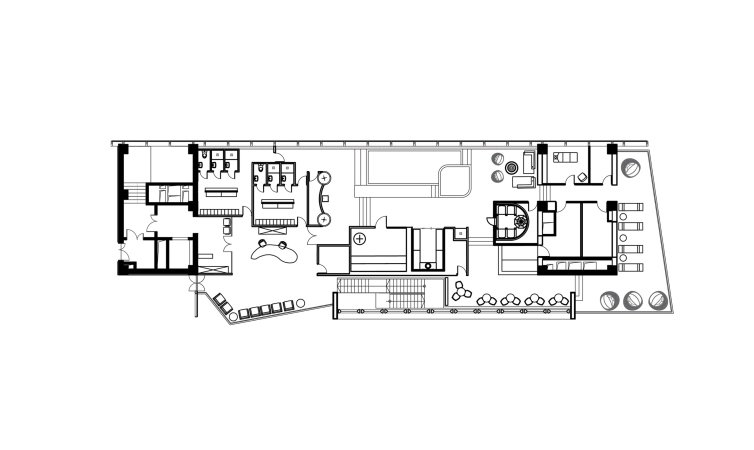
Axonometric view. Luzhniki Palace of Water Sports
Copyright: © UNK project
At the same time, the architects took care to make sure that the swimming pool retains its open-air quality – a segment of the roof is pulled apart, and the transparent facades not only make it possible to see the street from the inside, but also the interiors of the building from the outside.
Luzhniki Palace of Water Sports. The project that won the open competition 2013. Opened in 2019
Copyright: Photograph © Evgeny Egorov. Provided by UNK project
Luzhniki Palace of Water Sports
Copyright: Photograph © Dmitry Chebanenko. Provided by UNK project
Luzhniki as a Monument
There are two approaches to this kind of historical buildings all over the world. The first is an expensive restoration and a focus on authenticity – both in the exterior and in the interior. You will have to pay for this by reducing the number of visitors and increasing the cost of staying in such buildings – the historical infrastructure simply cannot tackle the large flows of people. The second way is to transform and increase the area by means of underground floors and superstructure. Therefore, we treated the brief of the competition with understanding and tried to get as close as possible to the historical prototype.
The attic floor, constructed above the historical volume of the swimming pool, is decorated with an ornamental structure, consisting of rings – this is yet another example of homage to the authors of the swimming pool: similar rings are used in the decoration of the Elektrozavodskaya metro station, designed by Igor Rogozhin, who also contributed to designing Luzhniki. In addition to the colonnades, the building also uses facade decoration, characteristic of the 1950s.
The return of Socialist Realism
One of the new features of the Palace is the bas-relief that used to adorn the outside wall of the swimming pool. In fact, it was the only decoration of the building designed in the classicism tradition. In the 1950’s, the bad-relief on the subject of sports and youth was executed in the шамот technique – large-size bricks coated by terra cotta glazing developed by the group of young architects called “LeSS”, the name being the acronym for its members – Vladimir Lemport, Vadim Sidur, and Nikolai Silis.
Luzhniki Palace of Water Sports
Copyright: © UNK project
The multi-figure composition 19 meters long and 3.8 meters tall was carefully taken off the wall and lay in wait in crates: the restoration began only in 2018 in Kimry, where, as it turned out, all the technologies of working with these materials were preserved. After careful restoration – out of the 622 fragments more than a third were damaged in one way or another – the bad-relief occupied its proud place in the interior right next to the main entrance.
Luzhniki Palace of Water Sports
Copyright: Photograph © Dmitry Chebanenko. Provided by UNK project
What we see on the facades today is a copy, more than half again as big: the 3D scanning technologies made it possible not just to recreate an upscale composition of fiber concrete but also to make it double sided – it is viewable from the inside equally as well as from the inside.
Luzhniki Palace of Water Sports
Copyright: Photograph © Dmitry Chebanenko. Provided by UNK project
By the way, the interiors of the Palace also had enough room for modern sculptures: the three colored graces of metal wire present an homage to the Luzhniki logo. The flat drawing was converted into volume, and this yielded a composition glorifying sports, youth, and beauty in an interpretation that’s different in respect to the 1950s, brighter and more dynamic.
Technological Revolution at 60
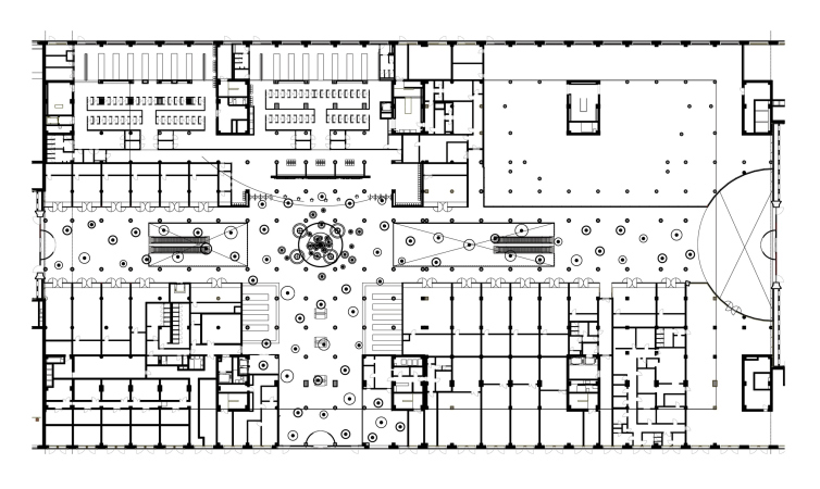
The content of the swimming pool must match the rhythm of modern day and age, and meet the requirements of the visitors by various parameters – the service standards have dramatically changed over the 60 years” – Julia Tryaskina says, sharing about the tasks that were posed before the architects. The infrastructure of the palace grew significantly – now it has six floors in it. What was added was the underground car park and the service infrastructure – locker rooms, cafes, and a small shopping gallery.
The historical swimming pool 50 meters long was kept intact, it was extended with two training ones, each 25 meters long, resting on cantilevered structures. Another thing that appeared was a large water park zone with two gyms and a spa zone on its sides.
Luzhniki Palace of Water Sports
Copyright: Photograph © Ilia Ivanov. Provided by UNK project
The capacity of the complex has also increased dramatically – now it can take in up to 3,000 people simultaneously, with the water park alone capable of housing up to a thousand people, which means that the complex is not just a training facility but an entertainment center as well.
The central swimming pool features stained glass windows opening up on the street outside and on the entertainment zone – which, according to the architects, symbolizes the continuity and the transparency of the premises.
Luzhniki Palace of Water Sports
Copyright: Photograph © Ilia Ivanov. Provided by UNK project
Luzhniki Palace of Water Sports
Copyright: Photograph © Dmitry Chebanenko. Provided by UNK project
Luzhniki Palace of Water Sports
Copyright: Photograph © Ilia Ivanov. Provided by UNK project
“We wanted to make sure that everyone who comes to the Palace, even if the come solely for entertainment purposes, felt like an athlete” – Julia Tryaskina comments – This is why, as far as the interiors are concerned, it was very important for us to bring the sports and entertainment functions as close together as possible. And the flows of visitors, who come to the water park or to the spa complex, are merged at the exit with the flow of the professional athletes who come to train here”.
Cutting-edge technologies are also used in the water park: here, an international team developed a system of slides, the safety of which was tested practically the whole summer.
The main challenge was to effectively arrange service units and slides that are literally interwoven with the building – but here the architects had recourse to BIM technologies. It was these technologies that allowed them to design seven slides, one of which has a curve that is exposed to the central atrium, so that the visitors can see the people flying inside the tube, and the wave-making unit, which, as the authors of the project claim, makes wave big enough for surfers to train.
The dream about a sea in Moscow
If on the facades the architects followed the architectural thought of their predecessors, in the interior, which wasn’t here before- the swimming pool was an open-air one – there was a danger of “breaking bad” and overdoing it: the recently opened Palace of Gymnastics is a vivid example of that.
However, in the interiors they were able to be tactful and respectful of the very place. First, the finish uses natural materials. The visitors are welcomed by figures of swimmers – the historical bas-relief, next to which there is a “capsule to the descendants”. The architects deliberately refrained from highlighting it – it is neatly inscribed in the interior as if it had always been there.
Transparency between the premises – gyms, swimming pools and the water park – is provided by “bubble” partitions – the very rings from the “Elektrozavodskaya” metro station reminiscent, at the same time, of the Olympic rings.
Luzhniki Palace of Water Sports
Copyright: Photograph © Dmitry Chebanenko. Provided by UNK project
These are echoed by the top-to-bottom wells of the atriums, circular lights on the ceiling, and the circles of the basins of the swimming pools. Thus, the water theme is present everywhere, yet in a very unobtrusive way. Further on, the noise cancelling ceilings in the training areas also remind ripples on the water.
Luzhniki Palace of Water Sports
Copyright: Photograph © Dmitry Chebanenko. Provided by UNK project
Traditionally, water parks aim at reproducing southern latitudes – sprawling plastic palm trees, wooden boardwalks, and bungalows. Nothing like this will you see here. All the decorations and appointments are dedicated to the theme of water and beach sports – one way or another, the Palace, even though it did take on some entertainment quality, is still a place for sports practice and competitions. The decorative elements – kites, surfboards, and Frisbees – liven up the neutral interiors a little, while the beach chairs in the recreation areas resemble waves.
Maximum openness – and this was the logic, derived from the historical swimming pool, that the authors of the project stuck to – was a task challenging but still doable: for the enthusiasts or swimming in the open air, there is a roof, two sections of which open up in the summertime. Also, right underneath the colonnade, there are small channels that allow the guests to swim out in the open air from the indoor gallery.
Driving down the Metro Bridge, you can appreciate the sheer size of the Palace, see the bulging windows of the attic, and even examine the bas-reliefs that adorn its walls. And, probably, many will feel an urge to go in for sports, or, to make an easy start, just to visit the central water park in the center of Moscow. And to learn more about the history of the Luzhniki swimming complex, which merged with the architecture of the old Palace of water sports.
