Санаторий в Репино / повторно
Санкт-Петербург, поселок Репино, Приморское шоссе, участок 441
Проектировщик: Архитектурное бюро «СТУДИЯ-17»
Заказчик: RBI
Обсуждали: архитектурно-градостроительный облик
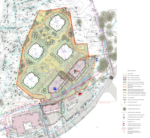
Санаторно-курортный комплекс в Репино. Вариант 2. Панорамный вид с 1-й Новой улицы
© АБ «Студия 17» / изображение предоставлено пресс-службой КГА
Первый вариант санатория градсовет рассматривал в августе прошлого года. Самая большая трансформация произошла с генпланом: два корпуса на въезде понизили до двух этажей и сделали полностью общественными – в них разместятся ресторан, процедурные кабинеты и подземный паркинг, а гостиничные корпуса из «санаторных колбасок», как их назвал Святослав Гайоквич, превратились в окруженные зеленью городские виллы с террасами. Номерной фонд сократился примерно на треть, при этом заказчик повысил класс своего объекта. Более удобной стала транспортная схема.
Директор по маркетингу RBI Михаил Гущин рассказал, что направление санатория – общеоздаравливающее, составлять его «программу» помогают консультанты из Сочи, Геленджика и Кисловодска. Площадь процедурного комплекса – 1200 м2, однако бассейн в нем не предусмотрен. Небольшой терренкур дополнить площадки для спорта и отдыха на воздухе.
Изменения в проекте члены градсовета оценили как позитивные и в целом поддержали проект, но несколько замечаний все же прозвучало. По мнению экспертов, на территории не хватает рекреационной инфраструктуры, особенно зимней. Владимира Аврутина обеспокоил факт исчезновения деревьев на участке, с которым работала «Студия-17», – в таком виде, впрочем, он ей и достался. Мастерская пояснила, что сносить будут только 5 осин, а ценные сосны сохраняются. Михаил Сарри предложил чуть доработать фасады.
Итог: «за» проголосовали 24 человека, «против» – 1. Решили одобрить архитектурно-градостроительный облик.
Подробнее о проекте ->
Санаторно-курортный комплекс в Репино. Вариант 2
© АБ «Студия 17» / изображение предоставлено пресс-службой КГА
Гостиница на Уральской / повторно
Санкт-Петербург, улица Уральская, дом 8б, литера А
Проектировщик: Архитектурное бюро «Настас и партнеры»
Заказчик: ООО «Торговая компания «Невская линия»
Обсуждали: архитектурно-градостроительный облик
Первые вариант гостиницы рассматривался в мае 2021 года. С тех пор вступил в силу приказ об исторических поселениях, а также новая редакция закона №820, из-за чего проект пришлось существенно переработать. Прежде всего – появилась необходимость сохранить на участке одноэтажное здание 1917 года, ценность которого вызвала у членов градсовета сомнения. Также снизилась высота – с 40 до 33 метров.
Гостиница на Уральской. Вариант 2
© Настас и партнеры
В новом варианте гостиница вплотную примыкает к зданию 1917 года, которое будет отреставрировано и приспособлено под современную функцию – на первом этаже разместится кафе, на втором мансардном – коворкинг. В небольшом дворе предусмотрено разворотное кольцо для автобусов, по Уральской улице – «карман» для остановки такси. Главный вход по-прежнему ориентирован на угол Уральской и Железноводской улиц. На кровле появился акцент в виде башенки.
Гостиница на Уральской. Вариант 2
© Настас и партнеры / изображение предоставлено пресс-службой КГА
Гостиница на Уральской. Генплан
© Настас и партнеры / изображение предоставлено пресс-службой КГА
Гостиница на Уральской. Вариант 2, План 1 этажа на отметке +2100 (справа)
© Настас и партнеры / изображение предоставлено пресс-службой КГА
Денис Настас показал два варианта фасадов: один с выраженным мансардным этажом, второй – со скругленными углами и «оплеткой» из узких кирпичных простенков. В обоих случаях для цокольного этажа используется архитектурный бетон, а его декор отсылает к тем временам, когда на участке располагалась канатная фабрика. Также мастерская пригласила к участию художника Покраса Лампаса – каллиграфическая вязь покроет горизонтальные тяги, паттерн предполагается выполнить в металле, отодвинуть от фасада на 10-15 см и подсветить.
Гостиница на Уральской. Вариант 2
© Настас и партнеры
Гостиница на Уральской. Вариант 2
© Настас и партнеры
Гостиница на Уральской. Вариант 2
© Настас и партнеры
Проект гостиницы собрал рекордное количество комментариев – сложность участка, сохранение здания 1917 года и свежее архитектурное решение заставили высказываться даже тех, кто обычно молчит. Предпочтение отдали второму варианту – более «ясному и концептуальному», но сошлись во мнении, что гостинице необходимо «островное» расположение. Несмотря на большое количество замечаний, обсуждение приняло вполне дружеский тон и было похоже на консультацию.
Гостиница на Уральской. Вариант 2
© Настас и партнеры / изображение предоставлено пресс-службой КГА
Никита Явейн указал на то, что геометрию исторической кровли менять нельзя. В этом контексте странным выглядит примыкание двух домов, поскольку исторический, с четырехскатной кровлей, задумывался без брандмауэра как отдельностоящий. Теперь образуется «снеговой мешок» и несколько «ущербных номеров» с глухими окнами и видом на кровлю, в которых Михаил Сарри предложил разместить дополнительные технические помещения. Владимир Григорьев обратил внимание на противоположный торец гостиницы, к которому в будущем могут пристроить другое здание. Павел Соколов поддержал, что «вывод здания на границу участка и декорирование брандмауэра выглядит странно».
Гостиница на Уральской. Вариант 2. Вид со стороны пер. Одоевского и безымянного переулка
© Настас и партнеры / изображение предоставлено пресс-службой КГА
Феликс Буянов и Максим Атянц заинтересовались шириной окон – оказалось, что она составляет всего 40 см, зато в каждом номере будет по четыре окна. Максим Атаянц предположил, что «плотная работа с будущим оператором гостиницы может привести к тому, что придется менять какие-то решения». Однако Никита Явейн увидел в «странных узких окнах» симпатичную романтику.
Гостиница на Уральской. Вариант 2
© Настас и партнеры / изображение предоставлено пресс-службой КГА
По мнению Владимира Аврутина и Бориса Кирикова, гостиница своим масштабом задавливает Уральскую улицу, другие эксперты посчитали, что здание ее уже не «держит», в этом месте как раз необходима доминанта.
Гостиница на Уральской. Вариант 2. Вид с ул. Уральская
© Настас и партнеры / изображение предоставлено пресс-службой КГА
Евгению Подгорнову не понравилось, что со всех ракурсов здание решено в едином приеме. Вячеслава Ухова смутила форма в целом – «осколок от брандмауэрной застройки», который «в морфологической части труднообъясним». Сергей Орешкин указал на потенциал гостиницы, которая просматривается с трех сторон, но констатировал, что «события не случилось».
Гостиница на Уральской. Вариант 2. Панорамный вид в створе улиц Железноводской и Одоевского
© Настас и партнеры / изображение предоставлено пресс-службой КГА
Владимир Григорьев уверен, что «здание должно иметь островной характер, неприлично и невозможно применять правило брандмауэра», при этом отметил вкус авторов, элегантность второго варианта и умение рисовать. Владимир Линов предположил, что единственный выход в рамках нынешнего закона – это контраст: «уверенная правильная форма, возможно – круглая башня, которую нужно не понижать, а повышать до максимального предела, чтобы получился компактный акцент».
Гостиница на Уральской. Вариант 2. Вид с пересечения ул. Уральская и ул. Одоевского
© Настас и партнеры / изображение предоставлено пресс-службой КГА
Евгений Герасимов вспомнил вариант 2021 года и посчитал наиболее удачным именно его, а «теперь появилась необходимость сохранять [историческое] сооружение, и все поплыло – форма начинает ломаться, место не получает градостроительного решения».
Парадкос с охранением дома озвучил в самом начале рецензент Владимир Реппо: «Какая ценность для нас важнее: сараи в прямом смысле слова, или сохранение традиций петербургской архитектуры, которые требуют оформленных улиц, площадей, ансамблей? Архитектурная ценность возникает не с возрастом, как у коньяка, а в другой парадигме. Почему дом архитектора Бурышкина на Наличной лице, которому всего 80 лет, сносится, а это здание сохраняется?». Юрий Земцов поддержал и предложил думать о городе в целом, а не проводить «водораздел» 1917 годом.
Итог: «за» проголосовали 4 человека, «против» – 22. Рекомендовано заказчику доработать архитектурно-градостроительный облик.
Подробнее о проекте ->
