Здание «холодильника» на момент начала проектирования. Офисный центр “Beetle”. Фотофиксация. Западный фасад
Фотография: Проектное бюро «Крупный План»
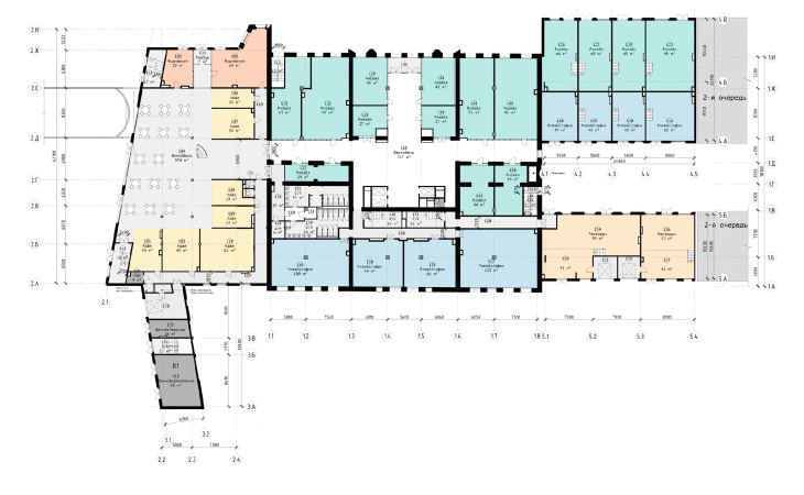
Участок вытянут вдоль Жукова проезда между железной дорогой Павелецкого направления и Дербеневской улицей; в восточной части он узкий, в западной, где стоит «холодильник», почти квадратный в плане – широкий. Проект БЦ с самого начала состоял из двух частей: реконструкция «холодильника», по данным на начало 2020 года, должна была составить первую очередь, строительство новых офисных корпусов – вторую.
Офисный центр “Beetle”. Контуры участка
© Проектное бюро «Крупный План»
Здание начала XX века
«Холодильник» – крупный параллелепипед с основанием 40 х 45 м, с оформленным фронтонами повышением по центральной оси, – был почти полностью лишен окон, поскольку они нарушают термоизоляцию, необходимую для равномерного охлаждения, которое здесь осуществлялось через циркуляцию воздуха между этажами. Естественным светом была освещена только лестница главного входа под башенкой на западном фасаде, но все здание было декорировано в духе «промышленного романтизма»: имитациями окон с объемными сандриками, балясинами, консолями, – все вместе визуально разделяло объем на элементы, организованные в симметричную композицию, и успешно боролось с инертностью формы.Впоследствии лестничный витраж был заложен и пробито несколько неряшливых окон поверх декора. Кирпичные фасады прямо поверх кладки покрыли желтой теплоизоляционной пеной, издали похожей на лишайник.
Здание «холодильника» на момент начала проектирования. Офисный центр “Beetle”. Фотофиксация. Северный фасад
© Проектное бюро «Крупный План»
По сведениям Архнадзора, здание в Жуковом проезде построило акционерное общество «Астраханский холодильник». Строительство, вероятно, было начато в 1915–1916 годах, когда общество купило участок, но закончено уже после революции.
Между тем промышленный холодильник в Павелецкой промзоне был не один: отчасти архитектура кирпичного здания перекликается с другим кирпичным ангаром, расположенным в 400 метрах к западу по адресу Дубининская улица, 41с4 (автор заявления для постановки его на охрану Александр Фролов датировал этот, соседний, холодильник, 1905–1912 годами и даже с некоторой вероятностью атрибутировал его как работу мастера северного модерна Федора Федоровича фон Постельса; о проекте с его сохранением см. здесь).
Реконструкция: версия 1
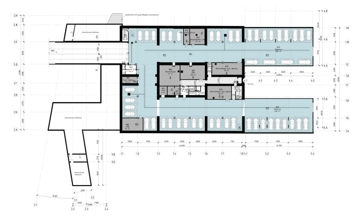
Первая из предложенных архитекторами «Крупного плана» версий реконструкции была самой деликатной по отношению к постройке начала XX века, которая, согласно проекту, должна была радикально сменить свою функцию. Так как холодильному ангару окна вредны, а офисам, напротив, совершенно необходимы, архитекторы предложили проделать в стенах широкие проемы, но прикрыть их полосатыми керамическими сетками. Издали объем выглядел бы цельным и сохранял подобие себя прежнего, монументального. Все детали, а здесь они светлые на кирпичным фоне, предполагалось вычинить и восстановить, а ряды вертикальных нишек превратить в настоящие окна. Офисный центр “Beetle”. 1 этап, 1 очередь
© Проектное бюро «Крупный План»
Офисный центр “Beetle”. 1 этап, 1 очередь
© Проектное бюро «Крупный План»
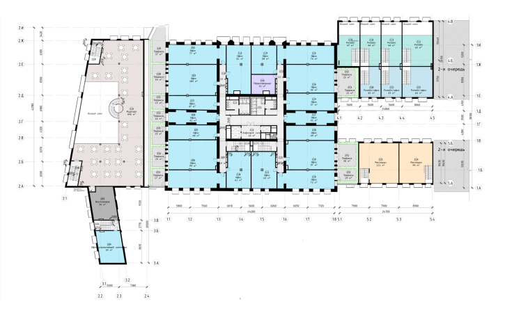
В расширенном подвальном ярусе поместилась парковка, а невысокие объемы общественных пространств, заменившие собой поздние пристройки советской фабрики мороженого, авторы решили подчеркнуто брутально: с черными фасадами и выступами круглых «труб».
Новые корпуса: 1 вариант, 2 очередь
Новые офисные корпуса БЦ Beetle планировалось расположить в узкой восточной части, вдоль проезда, к востоку от «холодильника». Реконструкция должна была составить 1 очередь, новое строительство – 2 очередь проекта. На новые корпуса заказчик провел в 2019 году закрытый конкурс, в котором участвовали DNK ag, АБ «Остоженка» и еще несколько бюро. Концепция «Крупного плана» выиграла конкурс и впоследствии сохранила свою образность на всех стадиях, пока бюро участвовало в проекте. Итак. Обтекаемые угольно-черные объемы составлены из гибких поэтажных лент, отступающих в глубину вверху и внизу: в первом случае освобождается место для террас, плавно повышающихся к эксплуатируемой кровле, во втором – для тротуаров и прилегающего благоустройства, причем местами, в створе поперечной пешеходной улицы-сквера, консоли были поддержаны тонкими черными металлическими колоннами. А отступы террас деликатно скрадывали высоту: издали верхние этажи не отличаются от остальных, а вблизи их не видно и высота улицы кажется меньшей, чем есть на самом деле.
Офисный центр “Beetle”. 3 этап, 2 очередь
© Проектное бюро «Крупный План»
Как и полагается в офисных зданиях, стекла много, хотя несмотря на скругленные контуры объемов моллирования не предполагалось и ломаный контур стеклянных этажей напоминал некий транспортер, поворачивающий на углах в рамках направляющих. Распределение стекла на фасадах зависит от инсоляции – в северных частях, где света меньше, витражей больше.
Офисный центр “Beetle”. 5 этап. Схемы инсоляции
© Проектное бюро «Крупный План»
Межэтажные ленты из черного металла, редкие вертикали – из темной керамики, уложенной внахлест и похожей на средневековую чернолощеную черепицу. Все вместе работает на впечатление отчасти «геологическое», поскольку ленты этажей выступают и отступают наподобие какой-то сланцевой породы, и, с другой стороны, промышленное, что считывается как логичная контекстуальная отсылка в истории места. В общем-то здания выглядят как механизм, какой-то конвейерный узел, но при этом блестят, как на солнце, так и внутренней подсветкой – так что это, определенно, какой-то постиндустриальный конвейер, не лишенный гламура в сочетании с толикой актуальной брутальности. Ощущение поддержано зимними визуализациями – впрочем, по словам архитекторов, сезон был выбран заказчиком: «потому что у нас 2/3 года зима».
Офисный центр “Beetle”. 3 этап. Визуализация со стороны Жукова проезда
© Проектное бюро «Крупный План»
К гибким контурам объемов авторы пришли отчасти из-за особенностей участка, – рассказывает Сергей Никешкин. На территории расположено два круглых колодца глубокой канализации, диаметром около 6 м. Перенести их на другое место невозможно, колодцы пришлось обходить, так возникла идея ступенчатого консольного отступа. Над колодцами архитекторы задумывали круглые фонтаны с тонким слоем рециркулируемой воды.
Здесь обходы колодцев показаны на примере последнего, пятого варианта проекта, где новые корпуса заняли весь участок, но морфология зданий наследует принципы 1 варианта 2 очереди:
Схема формообразования. Офисный центр “Beetle”. 5 этап (в котором новые корпуса занимают весь участок). Северный фасад
© Проектное бюро «Крупный План»
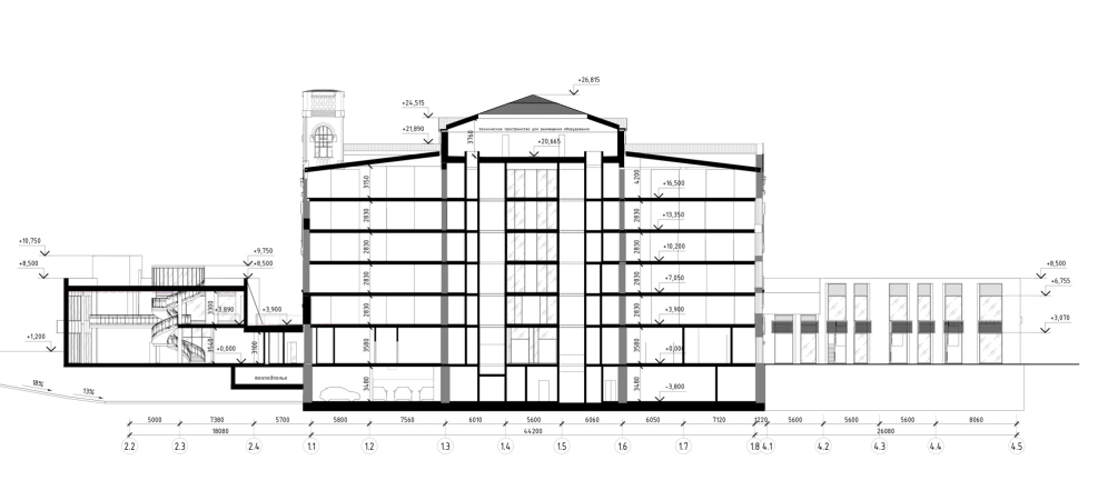
Черно-стеклянные, обтекаемо-граненые, издали несколько «пузатые» корпуса, помимо очевидной «промышленной» образности, могут также показаться интерпретацией романтического и в то же время контекстуального названия Beetle / Жук. Стекла на поворотах – как прозрачные крылья, черные обрамления как хитиновые закрылки, а вечернее свечение напоминает о светлячках. Сравнение, конечно, не буквальное, но сходство уловить можно. Как будто гигантский металлический жук-трансформер приземлился рядом со старым кирпичным ангаром. Соседство было обыграно как контраст старого и нового: холодильник вдвое меньше по высоте, кирпичный, угловатый, детали белые – новые офисные корпуса высокие (49 м), черные, стеклянные, обтекаемые.
Реконструкция: 2 вариант
Во втором варианте реконструкции холодильник «почернел» в деталях и подрос – то и другое по просьбе заказчика, первое ради перекличек с современными корпусами, второе ради площадей, добавленных в верхнем этаже стеклянной мансардой. Не были приняты и предложенные архитекторами для маскировки окон решетки: окна стали просто-окнами. Но здание, хоть и утратившее значительную часть сходства с историческим, проявившее свою новую функцию, в феврале 2020 года все еще предполагалось сохранить.
Последняя версия
В первой половине 2020 года заказчик попросил АБ «Крупный план» предложить вариант без сохранения: новые корпуса с уже заданной морфологией распространились на весь участок. На этом участие архитекторов «Крупного плана» в проекте закончилось, затем появилось две совершенно других концепции уже под названием не Beetle, а Taller. Один проект, анонсированный летом 2020, называется Taller loft и позиционируется уже как ЖК, точнее как мультифункциональный комплекс, объединяющий жилье и офисы. Авторов проекта на его официальном сайте нам не назвали, сославшись на то, что «проект Taller Loft ещё не в продаже». Новый проект появился, судя по всему, летом, а снос «холодильника» начался в октябре: 07.10 ДКН отказал зданию в охранном статусе, 16.10 появилась статья Архнадзора, через неделю – несколько статей противоположной направленности (вот, вот и вот). Второй проект, судя по всему появившийся недавно и представленный сейчас на сайте девелопера – в виде двух офисных призм, сочетающих кирпичные вертикали с преобладающим стеклом; от «холодильника» в нем – башня перед западным фасадом, сложно сказать, сохраненная или (что вероятнее) реконструированная.
***
Надо сказать, что трансформации проекта Beetle вписываются во многие современные тенденции, даже могут быть поняты как некий эталон поэтапного развития: сначала максимальное сохранение, потом компромиссное сохранение, потом современное строительство, потом новый проект, совмещенный с жильем. История в некотором роде даже повторяет, в миниатюре, историю освоения Павелецкой промзоны: некоторое время назад она была территорией новых офисов и редевелопментов старых заводов. Сюда водили на экскурсии в первые орденоносные примеры реконструкций фабрик с сохранением старых кирпичных корпусов. За последние годы преобладающая типология новых проектов сменилась на жилую, а масштаб – на огромный. К югу от южной границы БЦ Beetle, на территории, когда-то принадлежавшей немецкой химической фабрике «Фарбверке», компания ПИК проектирует высотный жилой комплекс, а в трехстах метрах к северу, на Летниковской улице тоже начато строительство крупного ЖК для МРК Пионер. История проектирования БЦ Beetle: от «лофтового» редевелопмента с сохранением исторического здания к новой застройке с некоей долей (мы не знаем какой) типологии жилья в целом похожа на тенденции, свойственные всей промзоне в целом.Надо сказать, что «холодильникам» не очень везет в плане реконструкции, вероятно, потому, что это не простые цеха, а здания без окон, требующие достаточно серьезного вмешательства для смены функции. Необходимость пробивки стен сама по себе радикально их трансформирует, а значит, ставит под вопрос и необходимость сохранения: с памятниками ведь как – либо сохраняем все, либо не даем статуса памятника. Тем не менее сам по себе опыт проектирования, включающий попытку сохранить не только части стен и объем, но и, особенно в первом варианте, образ здания начала XX века вызывает интерес и уважение. Но очевидно, что задача была сложной, в том числе и в отношении к рынку. Поэтому, наверное, неудивительно, что Beetle не прижился в Жуковом проезде.




