4. Плавучий театр
Театрально-концертный комплекс на Москве-реке. Иммерсивный театральный кластер
Марина КсенофонтоваТеатрально-концертный комплекс на Москве-реке
Марина Ксенофонтова
Изучение вопроса сосредоточено на основных вехах истории театра и оформлено как театральная программа. «Что если театр – вовсе не театр, и все ошиблись? Вдруг оказалось, что это наша повседневность», – так автор начинает представление проекта, и приходит к выводу: «интерактивность – главный тренд современного театра».
Выбранный участок расположен на юге Москвы, на мысу восточного берега Нагатинского затона, на месте промзоны «Подводречстроя», напротив ЖК «Ривер Парк» и в двух шагах от строящейся станции метро «Нагатинский затон».
Так как Нагатинский затон не так давно был местом строительства речных судов, на берегах по-прежнему сохраняются отстатки речных судов и кранов. Марина Ксенофонтова предлагает переплавить их в скульптуры, а припаркованную баржу превратить в плавучую сцену.
Театрально-концертный комплекс на Москве-реке. Артефакты местности
Марина Ксенофонтова
Сцена устанавливается со стороны реки перед коробкой зрительного зала – в летнее время открытой, в зимнее теплой. Пол зрительного зала задуман как трансформируемый, позволяющий превратить ряды кресел в пространство для интерактивной работы со зрителями. К коробке зрительного зала примыкает протяженный объем, влючащий гримерки, выставочные простанства, рестораны и парковки: в нем 2 подземных и 2 надземных яруса. Объем, сгруппированный вокруг вереницы атриумов, тянется вдоль Москвы-реки, здесь в него встроены краны для загрузки театральных кораблей. Со стороны затона вдоль него возникает просторный прогулочный помост, своего рода гипер-галерея: в первом ярусе опоры, во втором приподнятый над землей парк, сложное рекреационное пространство, зонированное скульптурами, переплавленными из отстатков кораблей. Вдоль навесного парка – своего рода висячего сада, также проходит монорельс-фуникулер. Перед сценой помост поворачивает налево, образуя треугольник, нависающий на опорах над водой.
Все вместе – пространство особенных впечатлений, сложносочиненное и наделенное очень разными эмоциональными характеристиками, – не слишком похоже на собственно здание, поскольку выглядит как прозрачная решетчатая структура, напоминая одновременно о шатрах фестивального Казантипа и о металлических конструкциях корабельных верфей, которые когда-то составляли главную функцию этой территории. Образ верфи не уходит, скорее осмысляется в сценографическом ключе.
Театрально-концертный комплекс на Москве-реке
Марина Ксенофонтова
Театрально-концертный комплекс на Москве-реке
Марина Ксенофонтова
Плавучая сцена на корабле – отдельный сюжет проекта – составлена из трехмерных кубов-модулей со встроенной подсветкой. Их, согласно замыслу, можно устанавливать друг на друга, использовать в качестве многоярусного сценического помоста, группируя в сложные фигуры в рамках крупного параллелепипеда с длинной стороной до 100 м. Продумана программа гастролей по амфитеатрам Москвы-реки, как существующим, так и строящимся, а также по стране.
5. Дом для удаленки
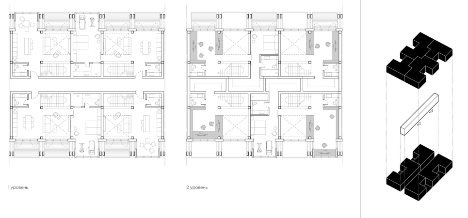
Многофункциональный жилой комплекс в районе Песчаных улиц
Даниил ЦарьковМногофункциональный жилой комплекс в районе Песчаных улиц
Царьков Д.С.
Проект выполнен в рамках конкурса NomadHouse – Housing for digital nomads 2030, перед участниками которого ставилась задача «придумать гибрид дома и рабочего места для цифровых кочевников будущего», достаточно гибкий для того, чтобы подходить для постоянной миграции своих обитателей, и заглядывая достаточно далеко в будущее – на 10 лет вперед.
Рассматриваемый автором проекта район Песчаных улиц расположен к западу от Ходынского поля, а выбранный участок проектирования – территория гаражей между улицами Зорге и Куусинена, недалеко от недавно построенной ВЭБ Арены.
Жилые дома заполняют лакуны во фронте «сталинской» застройки, они выстроены П-образными квартальными рамками вокруг двух дворов без машин, но с одним ярусом парковки в стилобате. Предусмотрены коммерческие первые этажи, в полуподвальных ярусах – кладовки для жителей. Между домами – общественный бульвар с амфитеатром вокруг фонтана.
Одна из интересных черт проекта – Даниил Царьков предлагает фасады из клееной древесины.
Многофункциональный жилой комплекс в районе Песчаных улиц
Царьков Д.С.
Многофункциональный жилой комплекс в районе Песчаных улиц
Царьков Д.С.
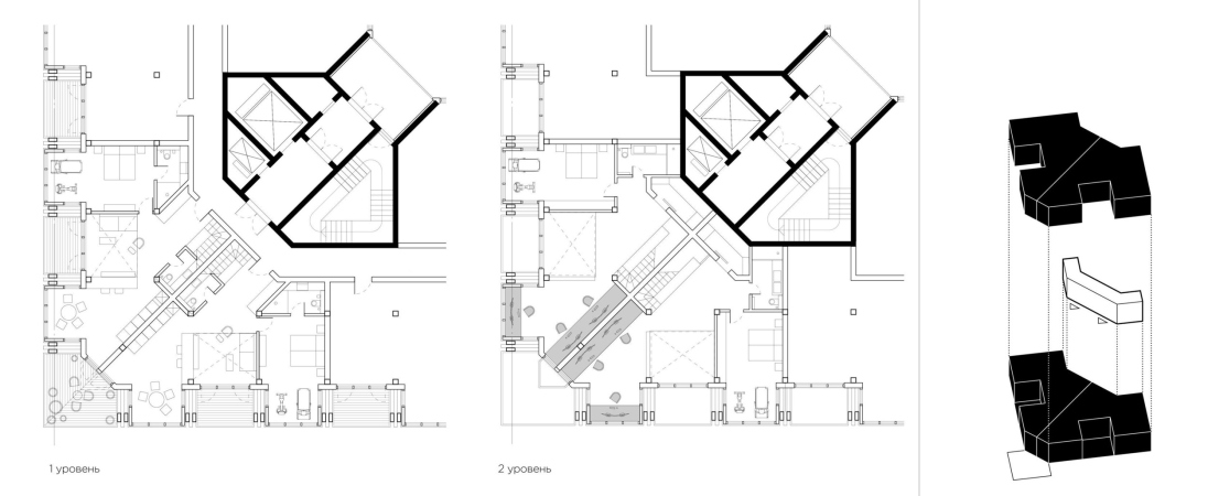
Проект интерпретирует актуальную повестку удаленной работы: последний этап работы над дипломами пришелся на весенний карантин. Речь не только о коворкингах, предусмотренных автором в нижних этажах дома, но и все квартиры решены как двухъярусные, с внутренней спиралевидной лестницей, и рассчитаны на полноценый рабочий кабинет дома.
6. Коралловый остров
Ревитализация нефтяной платформы в Адриатическом море
Дарья ВеркеенкоУстройство платформы. Нефтяная платформа в Адриатическом море
Варкеенко Д.А.
Проект создан в рамках итальянского международного конкурса Proximity Island, перед участниками которого, согласно брифу, ставилась задача предложить проект нового использования заброшенной нефтяной платформы в Адриатическом море, в 30 км от Равенны. Часть таких морских платформ сейчас останавливает свою работу из соображений экологической безопасности, и основной метод их утилизации – разборка и уничтожение на берегу, что сложно и дорого. В программу конкурса входила функция музея «Большой воды» с делением на секции Адриатического моря, Средиземного моря и океана.
Фасад. Нефтяная платформа в Адриатическом море
Варкеенко Д.А.
Дарья Веркеенко предложила вырастить на основе платформы новый остров из морских кораллов: кораллы предлагается выращивать в воде на металлическом каркасе, на хорошо освещенных участках, и затем использовать «коралловый известняк» для строительства стен на платформе над водой. Для крупных блоков кладки автор предлагает использовать «большие шаровидные колонии», коралловые обломки, скрепленные известью, тоже рассматриваются как строительный материал.
В программу кораллового здания входят музей, ресторан и гостиница. «Обрастая» известняком, платформа становится очень похожей на прибрежный или горный средиземноморский городок с лестницами и арками, а местами даже – на планету Татуин. Почти повсюду – арки и лестницы, почти отовсюду можно взглянуть на воду.
А место выращивания кораллов превращается в своего рода морской сквер с исключительно красивым мелководьем.
Нефтяная платформа в Адриатическом море
Варкеенко Д.А.
7. Фестивали у воды
Кинофестивальный центр на Лужнецкой набережной
Мария ЩукинаКинофестивальный центр на Лужнецкой набережной
Варкеенко Д.А.
Площадку кинофестивального центра подсказал Владимир Плоткин: «Лет шесть-семь назад мы делали концепцию здания КФЦ для Никиты Михалкова на этом участке. Но проект Марии Щукиной на него не похож ничем, совпадает разве что идея подхода к зданию со стороны реки; все остальное – самостоятельная работа автора».
Участок расположен за спортзалом «Дружба» и зданием Олимпийского комитета, на набережной. Сейчас он занят складом противогололедных реагентов.
Мария Щукина размещает причал прямо напротив фестивального центра, решает здание как параллелепипед, вытянутый от набережной в глубину. Часть здания размещается на понтоне на воде рядом в причалом – от основного объема к ней тянется переход 3-ярусной высоты, своего рода мост над проездом, соединяющий КФЦ с водой. Часть кровли, со стороны реки, в том числе и кровля «моста», решена как большая открытая терраса.
Кинофестивальный центр на Лужнецкой набережной
Мария Щукина
Один из основных сюжетов – фестивальная дорога, широкая галерея, которая прорезает здание асимметрично по диагонали от причала к улице Лужники в уровне земли и в -1 уровне: на ней и вокруг нее запланированы самые оживленные мероприятия. Ядром здания внутри становится большой зал, объедияющий по высоте 3 яруса плюс небольшая надстройка технической «коробки» сверху. Внутри, однако, собрано еще много залов разного калибра, объединенных общественными фойе, зонированных множеством экранов-брендволов для фотографирования. Пространство верхних ярусов соединено множеством лестниц, что обеспечивает его связность и постоянное движение – «перетекание» зрителей и участников фестивалей внутри.
Фасады, задуманные в проекте – двух видов: более строгие и закрытые повседневные и открытые ажурные – фестивальные. Таким образом во время фестивалей здание, с одной стороны, распространяло бы сияние своей активной внутренней жизни вовне, интерактивно взаимодействуя с окружающим пространством. С другой стороны, кружевные фасады могли бы создавать внутри тени сложных очертаний, отбрасываемые солнечным светом.
