«Я считаю, что дипломный проект для архитектора – это первый и последний шанс делать все, что хочется и что интересно. Ни до, ни тем более после такого не будет: вначале, на курсовых проектах, студент выполняет учебные задания, потом архитектор работает по заказу. Цель дипломной работы – проявить себя, показать, на что они способны после шести лет обучения. Так что выбор темы был абсолютно свободным, люди разные, мы ничего не навязывали, ни темы, ни подачу, только консультировали и исправляли грубые ошибки, если они встречались.
Некоторым я посоветовал площадки из тех, для которых мы когда-то делали конкурсные предложения, это касается кинофестивального центра в Лужниках. Где-то посоветовал площадку, которая мне кажется интересной – как, например, Мневниковская пойма.
Мы вели группу начиная с третьего курса, старались прививать вкус к современной архитектуре… За это время студентам удалось настроить собственный взгляд на задачи архитектурного проектирования, отточить графику, – я был приятно удивлен качеством многих получившихся проектов и в смысле подачи, и с точки зрения содержания, проработки темы и проектных предложений. Должен сказать, что остальные проекты тоже хорошие, было довольно сложно выбрать. На удивление много получилось очень хороших работ».
Некоторым я посоветовал площадки из тех, для которых мы когда-то делали конкурсные предложения, это касается кинофестивального центра в Лужниках. Где-то посоветовал площадку, которая мне кажется интересной – как, например, Мневниковская пойма.
Мы вели группу начиная с третьего курса, старались прививать вкус к современной архитектуре… За это время студентам удалось настроить собственный взгляд на задачи архитектурного проектирования, отточить графику, – я был приятно удивлен качеством многих получившихся проектов и в смысле подачи, и с точки зрения содержания, проработки темы и проектных предложений. Должен сказать, что остальные проекты тоже хорошие, было довольно сложно выбрать. На удивление много получилось очень хороших работ».
Ниже три проекта группы В.И. Плоткина, В.А. Грубова, С.А. Трифоненковой. Еще четыре проекта – в следующем материале. Отобрано 7 проектов из 22. Все они отличаются разнообразием выбранной типологии, основательным исследованиеем смыслового и окружающего контекста, яркими идеями, цельной подачей.
1. Эволюция человечества как движение над бездной
Музей антропологии в парке Фили
Полина КазакевичМузей антропологии в парке Фили. Вид со стороны Москва-реки
Полина Казакевич
Площадка Музея антропологии – крутой берег Москвы-реки в северо-западном углу Филевского парка. Севернее расположена территория ГКНПЦ имени Хруничева, завода космической промышленности, огромная, площадью больше ста гектаров, и предназначенная к ревитализации: ближе к излучине Москвы-реки планируется строительство штаб-квартиры Роскосмоса, а южнее, ближе к парку, АБ Меганом проектирует технопарк, конгресс-центр, «Город молодежи» и ЖК «Город на воде».
Высокий берег реки, а следовательно и музей, «смотрит» на запад – на панораму заката, а также в направлении, созвучном ключевым миграциям человечества на евразийском континенте.
Музей антропологии в парке Фили. Ситуация
Полина Казакевич
Владимир Плоткин: «Полина настолько глубоко погрузилась в заявленную тему, что слушать ее рассказы о проекте было по-настоящему интересно. В презентации мы сохранили только ключевые слайды из вводной части – исследование темы было по-настоящему детальным и впечталяющим, что не исключило интересной формы. Этот проект я бы назвал самым лучшим».
Погружение в антопологию стало основой для сложносочиненной программы музея: помещения разного назначения превратились в стереометрические фигуры, разбросанные во внутрненнем пространстве как элементы супрематической картины, с тем отличием, что цвета и формы сложнее, и поэтому современнее, чем у Малевича.
Музей антропологии в парке Фили. Планировочная композиция: взрыв
Полина Казакевич
Музей антропологии в парке Фили. Планировочная композиция
Полина Казакевич
Собственно объем музея – трехмерная лента незамкнутого треугольника. В основании он врезан в склон, а дальше, опираясь на круглые столбы-колонны, парит в пространстве, нависая острым носом над водой (перепад высот на склоне реки здесь около 25 метров). Получается то ли стилизованный знак вопроса, то ли спираль – то и другое созвучно идее нелинейного, но поступательного восхождения истории рода человеческого, – нависшего, впрочем, над бездной.
Цельное, перетекающее внутреннее пространство зонировано вкраплениями закрытых зон разной формы, а движение посетителей происходит в основном по пандусам, согласно одной из актуальных тенденций проектирования выставочных пространств.
Основой для графики фасадов стал укрупненный фрагмент рисунков мальчика Онфима с берестяной грамоты первой трети XIII века из Великого Новгорода – лента музея, таким образом, перекликается со свернутой берестяной грамотой, – хотя, с другой стороны, она напоминает и покрытый петроглифами мегалит.
2. Современная школа как баланс естественного и искусственного
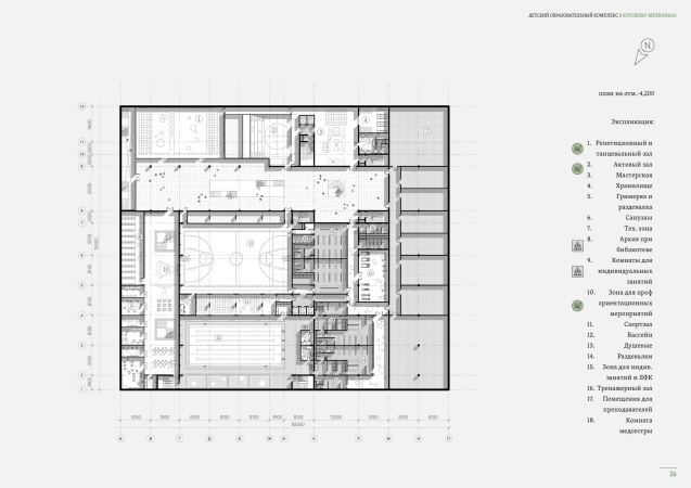
Детский образовательный комплекс в Хорошево-Мневниках
Анастасия ЦойВ рамках международного конкурса School of Thought
Детский образовательный центр в Хорошево-Мневниках
Анастасия Цой
Владимир Плоткин: «Предыдущие, курсовые, проекты Анастасии отличались большой визуальной смелостью, а диплом, напротив, очень сдержан и серьезен. Но тема инновационных подходов к образованию разработана автором очень внимательно. Пространство и функции организованы ясно и тонко. Здесь, в частности, есть пространственная ось, куда выходят вторым светом другие помещения... Все относительно просто, но очень профессионально. Если говорить о школе нового типа – то вот она школа нового типа, именно так и следует проектировать современные школы».
Проект, действительно, отличается строгой, почти монохромной графикой и лаконизмом формы: план вместе с зеленым двором вписан в простую геометрическую фигуру, составленную из прямоугольника и круга. В его контуре прочитываются стрелки часов, показывающих то ли 35 минут первого, то ли пять минут восьмого – время, сопоставимое с вехами школьного дня. В секторе «семи минут» помещена библиотека.
Детский образовательный центр в Хорошево-Мневниках
Анастасия Цой
Детский образовательный центр в Хорошево-Мневниках
Анастасия Цой
Объемы с разным функциональным наполнением разделены между собой широкими галереями – внутренними улицами. Они пересекаются под прямым углом и выходят на фасады высокими витражами по принципу пассажей.
Детский образовательный центр в Хорошево-Мневниках
Анастасия Цой
«Улицы» освещены зенитными фонарями, а главный перекресток отмечен двойной спиралью винтовой лестницы.
В здании много естественного света: он поступает как сверху, из зенитных и шедовых фонарей, так и из витражей, в которые, в основном, превращены внешние стены. Здание легкое и прозрачное, издали выглядит как большой парковый павильон, максимально, насколько это возможно, стирая границы между внешним и внутренним пространством.
Здание немного похоже на распластанный по земле архитектон, – поскольку собрано, как это хорошо видно с верхнего «птичьего» ракурса, из объемов разного калибра и высоты. В перепадах высот возникают дополнительные окна верхнего света. На один ярус школа заглублена в землю, высота помещений гибко варьируется по мере необходимости.
Детский образовательный центр в Хорошево-Мневниках
Анастасия Цой
Проекту, так же как и предыдущей работе, предшествовало серьезное исследование темы современных подходов к школьному обазованию. Девиз проекта – современная школа должна быть балансом естественного и искусственного.
3. Красивый ответ на важный вопрос американской политики
Легальный туннель
Многофункциональный адаптационный центр для беженцевна границе Мексики и США в городе Пьедрас-Неграс
Сибгатуллина Анастасия | Устинов Алексей
Многофункциональный адаптационный центр для беженцев
Анастасия Сибгатуллина, Алексей Устинов
Проект, который живо откликается на один из ключевых вопросов политики Дональда Трампа, также создавался в рамках международного конкурса. Теперь, напомним, он отобран для конкурса студенческих работ Archiprix. Идея состоит в том, чтобы легализовать и организовать некоторую часть потока мигрантов из Мексики, стремящихся в США за новой жизнью и возможностями, а подчас и от жуткой бедности и смертельной опасности, – построив на границе здание-мост, в котором эмигранты будут жить в период адаптации. Так как один из важных путей нелегальной миграции – туннели, то здание названо «Легальным туннелем» решено как протяженный граненый объем, похожий на туннель, вырезанный из красной пустынной почвы и подвешенный на опорах над рекой Рио Гранде и парком Шелби; хотя сами авторы сравнивают свое здание с каньоном.
Многофункциональный адаптационный центр для беженцев. Вид на комплекс с крыши в Пьедрас-Неграс
Анастасия Сибгатуллина, Алексей Устинов
В качестве основы для эксперимента авторы выбрали автомобильно-пешеходный мост Интернешнл, соединяющий мексиканский городок Пьедрас-Неграс с американским Игл-Пасс. Пьедрас-Неграс неблагополучен, именно здесь быстро растет наркотрафик, в 2019 году он вырос на 179%, – подчеркивают авторы.
Внутри здание-«туннель» разделено на несколько ярусов и наполнено фукнциями, которые должны обеспечить своим временным обитателям «защиту, уход, помощь, общение и знания». Объем – «недорогой и быстровозводимый» – состоит из модулей кратного размера, связанных между горизонтальной и вертикальной коммуникацией. Среди функций – жилая, причем минимальные капсулы предложены как бесплатные («Г-образная стыковка позволяет удвоить количетво беженцев на одинаковой площади»), а семейные аппартаменты как платные; общественных гостиных и спортивных пространств; школы и детского сада. Предусмотрены протестантская и католическая церкви и медцентр, магазины-аптеки-кафе и парковки – в сущности, все городские функции в минимальном объеме плюс пространства для иммиграционных служб.
На каждой стороне предлагается соорудить два въездных павильона: оранжевый, как и сам «туннель», павильон Мексики, в форме угла – мексиканского орла, с амфитеатрами внутри и снаружи, и светлый павильон США, в основу плана которого авторы положили 5-конечную звезду с американского флага, но разобранную на асимметричные лучи. «Въездной павильон – уникальный объект, т.к. это ворота в целую страну. В таком объекте как нигде уместно говорить об истории и культуре того места, куда въезжаешь. Контекст павильона – вся страна», – поясняют авторы.
