На трех московских площадках – в Южном речном порту, у пакгаузов Ленинградского вокзала и на территории завода на Нагатинской набережной – студенты проектировали здания ночных клубов с ориентацией на электронную музыку. В течение года они выполняли цепочку упражнений, раскрывая с разных сторон проблематику музыкальных рейвов.
Студенты начали с изучения типологии и участков, затем перешли к проектированию диджейской стойки, вокруг которой развернули временный павильон для летнего музыкального фестиваля. В виде графического манифеста они придумали, какой будет их рейв-вечеринка, и приступили к главной задаче – проектированию полноценного ночного клуба.
Работы студии экспонировались на выставке «Добро пожаловать в клуб» в Центре «Зотов». Тема выставки – типология и назначение клубов на дистанции столетия: от конструктивистских рабочих клубов 1920-30х годов до современных музыкальных клубов, представленных работами студентов МАРШ.
Преподаватели: Мария Качалова, Ольга Липатова
Студенты: Павел Беседин, Екатерина Бокова, Джанета Борсова, Валерий Губанов, Алексей Ефимов, Анастасия Коновальцева, Павел Ложкин, Анна Манина, Мария Минеева, Мане Нагапетян, Анна Нелепо, Катерина Полякова, Мария Сысоева, Елисавета Чувилкина, Евгения Мью
Показываем некоторые работы.
Техноклуб SAD
Автор: Анастасия КоновальцеваТехноклуб SAD
© Анастасия Коновальцева
Соединяя ночной клуб и оранжерею, Анастасия старается сохранить эскапистский дух рейв-культуры, акцентируя ощущение побега от реальности и маскируя основную функцию. Вход в клуб скрыт от посторонних глаз: пассажиры проезжающих поездов видят лишь объем оранжереи ― светопрозрачный днем, а ночью источающий розоватое свечение.
Стремление к изоляции от внешнего мира усиливается подземным расположением части помещений, нарочитой труднодоступностью танцполов и сложной системой внутренних маршрутов.
Руины пакгаузов интегрированы в новую структуру не только пространственно: кирпичный бой из разрушенных ранее строений служит пигментом для бетонных контрфорсов, поддерживающих свод главного танцпола.
Ночной клуб «41°»
Автор: Анна НелепоНочной клуб «41°»
© Анна Нелепо
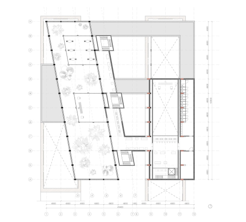
Два заброшенных и, по всей вероятности, обреченных на снос пакгауза XIX века за Ленинградским вокзалом становятся в проекте Анны ночным клубом. Новый корпус соединяет их под углом 41°, бросая вызов параллельной структуре участка. Архитектурная интервенция контрастирует с исторической кирпичной кладкой за счет вертикальных бетонных поверхностей и светопрозрачных объемов двускатных кровель.
Днем здание функционирует как ферма и рынок зелени, напоминая о недавнем прошлом, когда в пакгаузах располагалась известная цветочная база. Во время ночных рейвов растения создают атмосферу ботанического сада, а гидропонные фермы в подкровельном пространстве становятся ярким маяком, наполняя клубное пространство розовым свечением.
MANEGE
Автор: Павел ЛожкинMANEGE
© Павел Ложкин
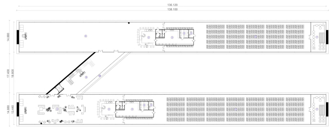
В Южном речном порту Павел проектирует комплекс, объединяющий ночной клуб и легкоатлетический манеж. Этот симбиоз рейва и спорта вдохновлен серией вечеринок «Мобиле», проходивших на Крылатском велотреке в 1990-е.
Manege вписывается в действующий грузовой порт, сохраняя характерную для клубной культуры промышленную эстетику. Портальные краны вдоль берега становятся частью архитектурного образа речного фасада.
Здание раскрывается к реке масштабным остеклением главного пространства общей площадью 3600 м2 и высотой в 15 м. Расположенный в нем спортивный трек с наступлением темноты трансформируется в танцпол. Мощные рамные конструкции, фермы и шедовые фонари на кровле усиливают индустриальную атмосферу.
