The housing complex on Leo Tolstoy Street. Location plan
Copyright: © ASADOV Architects
The site in question adjoins the Morozov and Mamontov business centers. It includes a rental house formerly owned by the Tryndin family: two three-story buildings built in 1886 and 1890 respectively, which were unified by architect Vyacheslav Zhigardlovich in 1901. Nearby, there are the 17th-century Hamovny Dvor chambers, and just beyond them, stands the Church of St. Nicholas the Wonderworker, also dating to the same historical period.
The housing complex on Leo Tolstoy Street. The city planning limitations
Copyright: © ASADOV Architects
In 2020, DNK ag presented their vision for the complex; in 2022, it was reimagined by Kleinewelt Architekten. The final concept, however, was developed by ASADOV Architects. Its future remains uncertain: in late 2023, several assets of KR Properties, including Krasnaya Roza, were transferred to state ownership, though recent news reports suggest that a buyback is now being considered.
The housing complex on Leo Tolstoy Street
Copyright: © ASADOV Architects
ASADOV’s team places five buildings on the site, leaving open a courtyard space on the side facing the Mamontov business center, where the new buildings’ end walls come quite close. The density of the site is offset by variations in height and façade treatment: the corner volumes along Leo Tolstoy Street are lower and darker, with arched windows, while the taller sections between them are lighter and more vertical in expression. A broad pedestrian area outside the site allows for open views of the Hamovny Dvor and the domes of St. Nicholas Church, which should remain visible behind the lower buildings.
The housing complex on Leo Tolstoy Street. The master plan (simplified)
Copyright: © ASADOV Architects
The housing complex on Leo Tolstoy Street
Copyright: © ASADOV Architects
The housing complex on Leo Tolstoy Street
Copyright: © ASADOV Architects
The proximity of historical monuments – though somewhat lost among the varied urban fabric of Khamovniki – has to a large extent determined the façade design. As the architects emphasize, the new complex is meant to engage in dialogue specifically with the 17th century buildings. Preserving the ornate façades of the Tryndin House, while more recent, also influenced the design direction, as they represent the Russian Revival style. However, there are other references at play.
The corner sections, as noted, are lower in height, stockier in proportion, and clad in dark ceramic. Their main feature is the semi-circular windows, whose massive contours recall the arcades of the chambers. Despite their cubic massing, these volumes emphasize airiness rather than heaviness, thanks to copper-toned mullions and a beveled corner that highlights the intersection of the streets – a gesture that evokes both Art Nouveau and early railway stations. Grouped windows spanning several stories recall Russian “pryasla”, or blind arcades. In another section of this type, the windows are grouped in smaller units with slight offsets, resembling stylized kokoshniks.
The housing complex on Leo Tolstoy Street. The section with the protected facade of the Tryndin House
Copyright: © ASADOV Architects
The taller sections develop this visual language still further, rising with confident verticals akin to a bell tower. However, the combination of “white stone” with brass framing, the narrow “archival” windows, doubled “pilaster strips”, and the apse-like bay windows paradoxically – and unmistakably – evoke a certain resemblance to late-Soviet architecture and the so-called “Red Doric” style.
The housing complex on Leo Tolstoy Street. View of the crossing with Pugovishnikov Street
Copyright: © ASADOV Architects
From the Krasnaya Roza side, the architects gave the complex a more minimalist and “industrial” appearance, since these buildings are in fact set back from the main street. Full-height vertical elements raise associations with pipes or machine shafts, the window grid is strict and measured, and the ceramic cladding has a metallic sheen about it. Notably, the cornices are finished with elegant yet substantial “tubes” of varying diameters – a sculptural gesture that you see quite rarely at such height.
The housing complex on Leo Tolstoy Street
Copyright: © ASADOV Architects
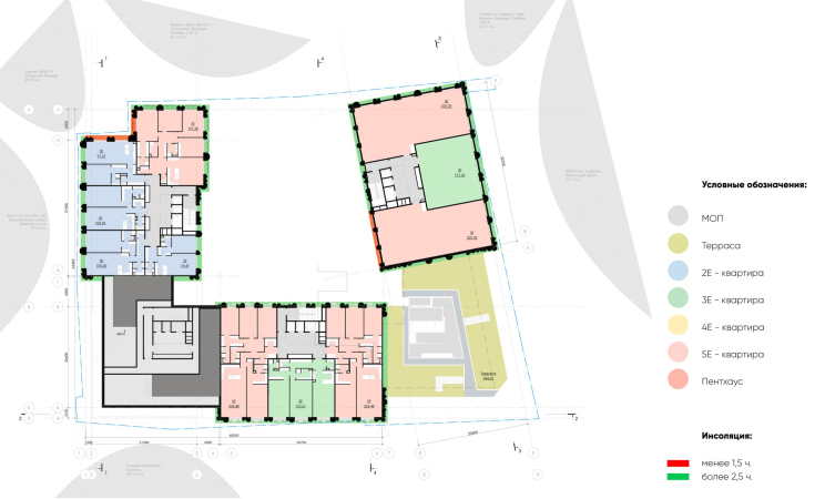
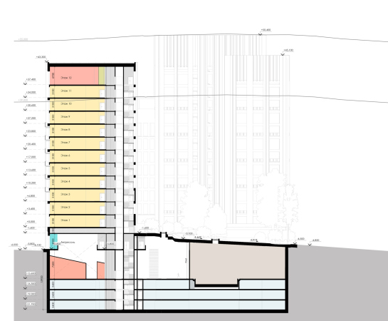
Given the high value of land in central Moscow, the complex includes something that can safely be called an extensive underground component. The three lowest levels contain a parking garage, with direct elevator access to the apartments. Above that lies a wellness center with a spa, co-working areas, and meeting rooms. Some of these spaces get lit at the expense of the mezzanines and reach nearly 12 meters in height. The so-called mezzanine level sits at ground level but is also partially sunken and connected to the basement. It contains commercial spaces, meeting rooms, a children’s center, and the main lobby with stroller storage.
The courtyard is located on the roof of the spa center. Though modest in size, it contains ample greenery, spaces for adults and children to relax, and views that stretch outward – since the adjacent Mamontov building, which aligns with the axis, is only four stories tall. Terraces from the first residential level also open onto the courtyard; privacy is ensured through landscape design and tall partitions. A passage through the courtyard leads directly to the main lobby.
The housing complex on Leo Tolstoy Street
Copyright: © ASADOV Architects
The range of apartment types is broad, starting from compact two-room units in the European format and going up to penthouses with expansive terraces. One unit on the first floor, for instance, there is a five-room Euro-format apartment with a 65-square-meter terrace. Most of the apartments are dual-aspect.
The concept by ASADOV Architects absorbs the diversity of this historic neighborhood, responding to both white-stone and Soviet-era architecture, yet remains coherent and self-contained. It is not a background building – but its accents are restrained. Premium finishes and subtle decorative gestures allow it to stand out without being too brazen.
