Дипломная программа 2022-2023 годов была посвящена разработке проекта развития территории Ortomercato в Милане. Студенты в группах разрабатывали программы развития территории бывшего оптового рынка с сохранением объектов, являющихся идентификационными символами истории района. Были поставлены задачи рефункционализации имеющихся объектов, а также строительства новых комплексов, привносящих на территорию актуальные для города современные деловые, культурно-образовательные функции, современное жилье. По результатам программы каждый студент делал отдельный проект реконструкции или нового жилого комплекса. Общие результаты проектирования были выставлены на выставке в Милане, посвященной тематике проектирования.
Лучшие проекты студентов СПбГАСУ отмечены профессорско-преподавательским коллективом POLIMI и на конкурсе лучших выпускных работ Межрегиональной общественной организации содействия архитектурному образованию (МООСАО).
Многофункциональный комплекс в структуре квартала в Милане, СПбГАСУ 2023. Руководители: Михалычев А.В., Иванов С.И., Супранович В.М., Шедогубова Е.Ю.
© Сафронова Арина
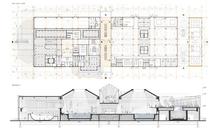
Многофункциональный спортивный комплекс
Гильмутдинова КамилаРуководители: Перов Ф.В., Кокорина О.Г., Девятова Ю.А., Венатовская Л.А.
Цель диссертационной работы – формирование архитектурно-градостроительной организации многофункционального спортивного комплекса на территории бывшей скотобойни Ex Macello в районе Порта Виттория. В центре работы стоит изучение проблем обновления бывших промышленных территорий, создание стратегий их развития и формирование новых функциональных и идеологических смыслов. В результате градостроительного и историко-культурного анализа территории Ex Macello были сформированы основные принципы развития территории: интеграция участка в окружающую застройку, сохранение исторической идентичности, создание нового функционального ядра. Архитектурно-планировочная организация комплекса была сформирована на основе анализа международного опыта проектирования спортивных комплексов, в том числе примеров их интеграции в бывшие промышленные корпуса. Интеграция функции спорта (акватический и зальный комплекс) в существующие конструкции и добавление новых акцентных архитектурных объемов позволило создать уникальный комплекс, являющийся одним из центров общественной жизни района Порта Виттория в Милане.
Общественно-деловой комплекс
Малева Анна
Руководители: Перов Ф.В., Кокорина О.Г., Девятова Ю.А., Венатовская Л.А.
Дипломная работа решает задачу реконструкции и модернизации территории оптово-розничной торговли в районе Porta Vittoria. Проектом предусматривается организация композиционных связей сетки улиц, создание удобной транспортной и пешеходной доступности и модернизация зеленых зон общественного пользования. С точки зрения функционального зонирования территория становится многофункциональной – создается три центра с доминирующей торговой, деловой и спортивной функцией, связанных между собой в единую пешеходную систему.
Основными принципами формирования делового комплекса стали: интеграция нового объекта в исторический окружающий контекст, внедрение ландшафтного компонента в архитектуру комплекса, создание проницаемого первого этажа, использование солнцезащитных элементов с целью улучшения энергоэффективности комплекса.
Интеграция ландшафтного компонента в архитектуру комплекса позволяет решить ряд актуальных вопросов:
- энергосбережение и теплоснабжение;
- сбор и повторное использование дождевой воды;
- регулирование микроклимата помещений;
- создание защищенного, комфортного городского пространства.
Жилой комплекс в структуре квартала
Хмельницкая МарияРуководители: Иванов И.А., Якуненкова М.С., Еремеева А.Ф., Кузьмина А.А.
Проектируемый жилой комплекс расположен в районе Calvairate, большую роль в формировании которого сыграл оптовый рынок. Здание формирует западный фасад центральной площади перед рынком и задает ритм застройки по улице Via Varsavia. Комплекс представляет собой композицию из прямоугольных блоков, расположение которых повторяет конфигурацию корпусов птичьего рынка, ранее находившегося на данном участке. Важным элементом здания является стилобат, который создает приватное изолированное пространство двора.
В комплексе большое внимание уделено созданию комфортного микроклимата: применены различные решения по устройству озеленения, орошения и затенения. Например, корпуса соединяются многофункциональными переходными галереями, которые улучшают связность комплекса и могут использоваться в качестве террас для отдыха, городских огородов, для дополнительного затенения двора. Также в проекте реализована концепция «пассивного дизайна»: предусмотрено большое количество озеленения, заложены решения по сбору и повторному использованию дождевой воды, сбережению энергоресурсов и генерации солнечной энергии.
Музей Еды
Бобылева ЕлизаветаРуководители: Иванов И.А., Якуненкова М.С., Еремеева А.Ф., Кузьмина А.А.
Проектируемый Музей еды Foodie располагается в районе оптового фруктово-овощного рынка Ortomercato. Здание подчеркивает диагональную ось, идущую из центра города и приходящую к площади перед рынком, на которой располагается музей, формируя ее северный фронт. Комплекс представляет собой композицию из белых объемов, частично накрытых навесом, который парит над объектом за счет расположения колонн. Наклон и скос навеса задают направление диагональной оси, а выступающий над плоскостью навеса правый блок останавливает движение здания по оси юг-север, при этом подчеркивая начало диагональной оси.
Планировочное решение комплекса представляет собой центральное трехуровневое пространство, по обе стороны от которого расположены основные помещения музея.
Концепция экспозиционных залов предполагает ознакомление с культурой еды в Италии и предлагает различные интерактивные сценарии. В центральных фойе находятся дегустационные комнаты с синими стеклянными перегородками, которые привлекают внимание посетителей и мотивируют их пройти весь маршрут музея.
Многофункциональный комплекс в структуре квартала
Сафронова АринаРуководители: Михалычев А.В., Иванов С.И., Супранович В.М., Шедогубова Е.Ю.
Многофункциональный комплекс расположен в районе Ortomercato. Основой для формообразования послужила историческая архитектура города, а также уникальный рельеф северной части Италии и террасное земледелие. В сложившейся градостроительной ситуации многофункциональный комплекс является ядром, объединяющим в себе несколько пешеходных направлений. Главная задача проекта – сохранить историческую конструкцию производственного здания, композиционно включив ее во вновь проектируемый объект.
Работа вошла в число 25 финалистов международного конкурса на лучший студенческий проект года Inspireli Awards, проходивший в Чехии в 2023 году.
