Описание предоставлено архитекторами
Впервые за 12 лет работы Благотворительный фонд «Антон тут рядом» получил помещение в социальную аренду в Санкт-Петербурге. Здесь откроется Ресурсный центр, где дети, подростки и взрослые с расстройством аутического спектра, а также их близкие смогут бесплатно получать поддержку в рамках программ интенсивной ранней помощи и знаний об аутизме и инклюзии. Концепцию центра разработало бюро NOWADAYS office.
Ресурсный центр «Антон тут рядом»
© Nowadays
Ресурсный центр «Антон тут рядом»
© Nowadays
Фонд «Антон тут рядом» и архитекторов связывает давняя история: Наталья Масталерж вспоминает, что во время работы над реконструкцией Электрозавода команда вдохновилась фразой одного из студентов фонда – «Все состоит из магии и кирпичей».
Ресурсный центр «Антон тут рядом». Ресурсный центр. Большой зал
© Nowadays
Ключевой задачей проекта было создание «дома» для фонда. Концепция так и называется – «Дом на Заозёрной улице». Это отсылка к фильму «Антон тут рядом», где Антон многократно спрашивает: «Антон Харитонов сегодня поедет на Белградскую на улицу?». Эти моменты напоминают о том, что домом называют место, куда хочется возвращаться.
Ольга Вахрамеева, архитектор бюро NOWADAYS office
Ресурсный центр – это новый «дом» для многих прекрасных людей. Но что такое дом? Это место, где живут чашки, кресло с лампой, ковер, стол в гостиной, где теплый свет создает ощущение уюта. Это образы, которые можно воплотить минимальными средствами, если сместить фокус с мира вещей на мир идей. Где-то мы чувствуем уединение, где-то – поддержку и опору, и это происходит не только благодаря людям, но и пространству.
Ресурсный центр «Антон тут рядом». Образы проекта
© Nowadays
Ресурсный центр «Антон тут рядом». Ресурсный центр. Офисная часть и служебный вход
© Nowadays
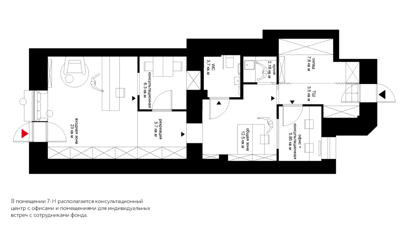
Ресурсный центр включает три помещения с отдельными входами. В первом расположен консультационный блок с офисом. Во втором – залы для физических занятий и сенсорной интеграции. В третьем – сама велком-зона, большой зал для встреч и занятий, комната метлдауна, консультационные и офисная часть с небольшой кухней для сотрудников.
Все три помещения имеют вытянутую планировку и разделены посередине несущей стеной. Задача архитекторов состояла в том, чтобы визуально «расширить» пространство. Для этого был использован принцип «комнат в комнате»: внутри основных помещений выделены дополнительные зоны с помощью цвета и зонирования. На полу появились акцентные «ковры» из яркой плитки, а часть светлых стен стала тепло-розовой, что делает пространство одновременно добрым и запоминающимся.
Основным вызовом стало размещение всех необходимых функций на ограниченной площади – с учетом пожеланий сотрудников фонда, нормативов и требований МГН. Например, комната метлдауна – пространство для восстановления при сенсорной перегрузке – должна находиться рядом с основным залом, а шумная кухня – как можно дальше от тихих зон.
Ресурсный центр «Антон тут рядом». Ресурсный центр. Входная зона, разрез
© Nowadays
Ресурсный центр «Антон тут рядом». Спорт и сенсорная интеграция. Входная зона
© Nowadays
Ресурсный центр «Антон тут рядом». Ресурсный центр. Консультационные комнаты
© Nowadays
Ресурсный центр «Антон тут рядом». Ресурсный центр. Офисная часть
© Nowadays
Ресурсный центр «Антон тут рядом». Ресурсный центр. Офисная часть и служебный вход
© Nowadays
Ресурсный центр «Антон тут рядом». Консультационный центр. Офис и склад
© Nowadays

