Публикуем вышедшие в финал проекты.
Материалы предоставлены Фондом Ага Хана.
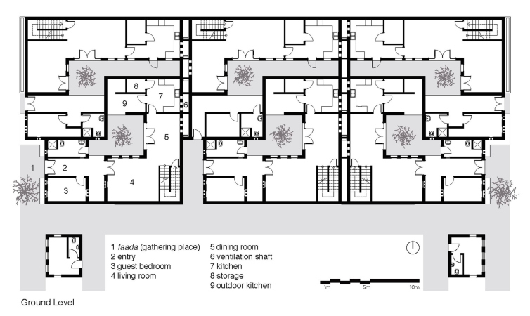
Бангладеш
Общественные пространства в лагерях для беженцев-рохинджа, Текнаф
Авторы: Ризви Хассан, Хваджа Фатма, Саад Бен Мостафа
Общественные пространства в лагерях для беженцев-рохинджа, Текнаф
Фото: Aga Khan Trust for Culture / Asif Salman
В крупнейшем в мире комплексе из лагерей для беженцев эти пространства были созданы без чертежей и макетов, совместными усилиями жителей и добровольцев и согласно принципам устойчивого развития.
Городские набережные в Дженаде
Авторы: Co.Creation.Architects / Хондакер Хасибул Кабир
Этот проект общественных мест в городе с населением 250 тыс. жителей. Он предусматривает создание пешеходных дорожек, садов и культурных объектов, а также проведение мероприятий по увеличению биоразнообразия на берегах реки Набаганга.
Бахрейн
Реконструкция почтового отделения в Манаме
Авторы: студия Анне Холтроп
Построенное в 1937 почтовое отделение – одно из самых старых сохранившихся в Бахрейне – восстановлено в его первоначальном виде и вновь используется по прямому назначению. К существующему зданию пристроено новое крыло.
Индия
Библиотека Лилавати Лалбхай при Университете CEPT, Ахмадабад
Авторы: RMA Architects / Рахул Мехротра и Нондита Корреа
Библиотека представляет собой пример применения пассивных методов для смягчения последствий изменения климата. Здание органично вписано в архитектурный ансамбль существующего кампуса.
Индонезия
Аэропорт Блимбингсари, Баньюванги
Авторы: Andramatin
Аэропорт обслуживает более 110 тыс. пассажиров внутренних рейсов в день. Здесь использованы традиционные способы охлаждения помещений: большой вынос крыши, естественная вентиляция, высадка растений. Проникающий внутрь сквозь проемы в перекрытиях свет фильтруется деревянными решетками. Традиционный профиль крыши сочетается с ее озеленением, обеспечивающим термоизоляцию.
Расширяемый дом, Батам
Авторы: ETH Zürich / Стивен Кэирнс, Мия Иравати, Азван Азиз, Диогуна Путра и Сумиади Рахман
Проект дома учитывает жилищный дефицит в условиях быстрой урбанизации и скудные ресурсы местных жителей. Его можно достраивать своими силами, он практически независим от общегородских сетей, в него встроена «городская ферма», он рассчитан на плотную застройку, при которой земля используется экономно.
Иран
Дом Абана, Исфахан
Авторы: USE Studio / Мохаммад Араб, Мина Моейнеддини
Дом для четы архитекторов и их маленькой дочери построен на узком прямоугольной участке в историческом центре Исфахана; композиция организована вокруг трех двориков.
Музей современного искусства и культурный центр «Арго», Тегеран
Авторы: ASA North / Ахмадреза Шрикер
Первый в Тегеране независимый музей современного искусства расположен в бывшей пивоварне, построенной более 100 лет назад. Все новые элементы криволинейны по форме и выполнены из разнообразных материалов, чтобы подчеркнуть отличие от исторической кирпичной постройки. Новый фундамент и металлический каркас позволил сделать все современные дополнения независимыми от старых стен.
Начальная школа Джадгала, Сейед Бар
Авторы: DAAZ / Араш Алиабади
Круглая в плане начальная школа окружена стеной с асимметричными проемами, придающими ей игривый, а не крепостной характер. В центре находится круглый двор, от которого как лепестки расходятся павильоны разного назначения. Кроме собственно школы, там есть библиотека и многофункциональное пространство, где занимаются рукоделием местные женщины. Доход от продажи их изделий идет на нужды школы, которую также финансируют средства, приносимые туризмом. Это пространство можно использовать также для размещения туристов или же как кинозал.
Кабо-Верде
Программа «Отрос-Байрос», Минделу
Авторы: инициатива OUTROS BAIRROS / Нуно Флорес
Реконструкция района Алту-ди-Бомба включает реновацию электросетей, водопровода, канализации, водостоков, и создание серии общественных пространств. Использовался доступный местный камень, к работе были привлечены живущие в Кабо-Верде архитекторы, получившие при этом полезный опыт, и сами жители, которые приобрели навыки строительства и смогли использовать их в собственных кварталах.
Кувейт
Жилой комплекс «Башня ветра Вафра», Эль-Кувейт
Авторы: AGi Architects
По мысли архитекторов, в основу этого 13-этажного дома (12 двухуровневых квартир и пентхаус) легла концепция традиционной башни ветра. В центре имеется внутренний двор во всю высоту здания, который обеспечивает естественную вентиляцию.
Ливан
Реконструкция гостевого дома Нимейера, Триполи
Авторы: East Architecture Studio
Выставочный комплекс по проекту Оскара Нимейера (1962) в Триполи не был достроен и оказался заброшенным из-за ливанской гражданской войны 1975–1990. Сейчас этот ансамбль включен в предварительный список Всемирного наследия, но в первую очередь 15 павильонам требуется реконструкция, а также способ использования. Согласно проекту East Architecture Studio, один из них, гостевой дом, превращен в центр новаторского проектирования и производства для местной деревообрабатывающей промышленности. Все новые дополнения могут быть демонтированы без вреда для первоначальной постройки.
Марокко
Благоустройство долины Иссы, Айт-Мансур
Автор: Салима Наджи
В рамках более крупного гидро-аграрного проекта в долине на начальном этапе проводится улучшение туристических маршрутов и объектов наряду с реновацией пальмовых садов и сооружений для сбора и хранения воды.
Нигер
Ниамей 2000, Ниамей
Авторы: united4design / Atelier Masomi и Studio Chahar / Марьям Камара
Дом-прототип на шесть семей подходит для плотной застройки, необходимой в условиях стремительной урбанизации и дефицита жилья, и при этом учитывает культурные традиции Нигера.
ОАЭ
Восстановление «Летающей тарелки», Шарджа
Авторы: SpaceContinuum Design Studio / Мона Эль Мусфи
Построенный в 1978 модернистский павильон, прозванный «Летающая тарелка», вместил кафе, ресторан, газетный киоск и магазин подарков. В 1988 он первый, но не последний раз сменил функцию, и в наши дни выглядел не лучшим образом. Сейчас он отреставрирован, позднейшие пристройки снесены, и найден новый способ использования: общественное арт-пространство. Под окружающей парковкой сейчас строится подземный общественный центр с библиотекой по искусству, кинозалом и т. д.
Палестина
Дворец правосудия в Тулькарме
Авторы: AAU Anastas
Дворец правосудия на Западном берегу реки Иордан расположен на ключевом для Тулькарма участке. Он включает административный корпус и здание с десятью залами суда, объединенные двором. На фасадах применены разные способы солнцезащиты.
Сенегал
Средняя школа CEM Kamanar, Тионк-Эссиль, провинция Зигиншор
Авторы: Dawoffice / Давид Гарсия, Айна Тугорес
Глиняные модули свода этой школы, изготовленные добровольцами по местным технологиям, заключены в деревянную обрешетку и служат в качестве испарительных охладителей. Сверху их защищает кровля из профнастила.
Тунис
«Африканский сад», Зарзиз
Автор: Рашид Кораичи
Кладбище-мемориал для беженцев, погибших при попытке пересечь Средиземное море, создано художником Рашидом Кораичи по своему проекту и на собственные средства. Ранее тела оставались на берегу, теперь для них предусмотрено место упокоения, где также имеются морг с современными технологическими средствами для опознания погибших, кабинет врача и экуменическая часовня.
Турция
Реконструкция хлопкоочистительной фабрики в Тарсусе
Авторы: Sayka Construction Architecture Engineering Consultancy
Проект превращения хлопкоочистительной фабрики XIX века в центр археологических исследований и точку притяжения для общественности.
Шри-Ланка
Ланкийский учебный центр, Парангиямаду
Авторы: feat.collective / Ноэми Тиэли, Феликс Лупач, Валентин Отт и Феликс Япарсиди
Многофункциональный общественный центр и училище, где местные жители изучают основы ремесел, служит в качестве места встречи для представителей разных этнических групп, что снижает существующую между ними предубежденность.
