Центр Джона Мордена
Фото © Jim Stephenson
Можно увидеть в этом воздействие атмосферы: неподалеку расположен Гринвичский морской госпиталь, грандиозный приют-дворец для ветеранов Королевского флота конца XVII века по проекту Кристофера Рена. Еще важнее, что сам новый центр – это дополнение к другому благотворительному приюту для моряков, уже частному – Морден-колледжу. Основанный в 1695, он сохранил свою функцию и в наши дни, только расширился: к комплексу в Гринвиче добавились филиалы; всего здесь живет 300 человек – независимо от профессии. Единственное условие (кроме очевидного – финансовых сложностей) – желательный опыт работы на руководящих, «лидерских» должностях или постах.
Морден-колледж. 1695
Фото: Reading Tom via flickr.com. Лицензия CC BY 2.0 DEED
Attribution 2.0 Generic
Здание Морден-колледжа приписывается Кристоферу Рену: это каре в плане, где парадный вход украшен статуями основателей – Джона Мордена и его жены Сьюзан. Яркий кирпич фасадов и высокие трубы стали источником вдохновения для Mae Architects: их здание тоже облицовано кирпичом, а «трубы» служат для естественной вентиляции.
Центр Джона Мордена
Фото © Jim Stephenson
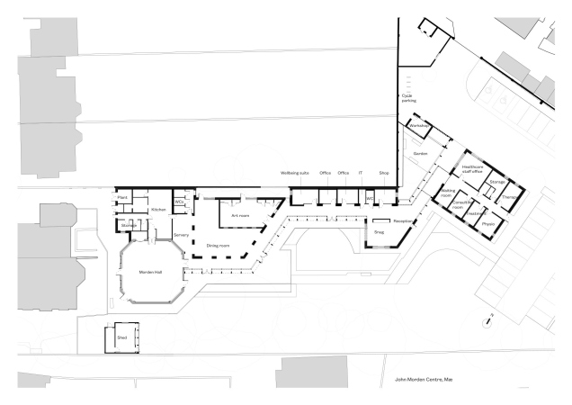
В новом Центре Джона Мордена собраны функции, ранее разбросанные по разным корпусам: медицинский блок, салон красоты, кафе, гостиная, мастерская для занятий живописью, вязанием и т. д. Он соединен с существующим актовым залом, реконструированным сейчас теми же Mae Architects.
Помещения организованы вдоль узкого участка словно «развертка» каре основного комплекса: об этом напоминает «портик» вдоль дворового фасада, под кровлей которого можно отдохнуть на свежем воздухе в дождливую или жаркую погоду.
Все пространства учитывают нужды обитателей Морден-колледжа: кольцевая планировка и контрастная зеленая полоса по краю пола помогают ориентироваться страдающим деменцией, обилие диванчиков и поручней позволяет сохранить равновесие или передохнуть в любой момент, пороги вровень с полом снижают риск травм. Особое внимание уделено видам из одного помещения в другое, хорошей освещенности (в первую очередь естественным светом), а также сохранению приватности.
Центр Джона Мордена
Фото © Jim Stephenson
Комплекс выстроен из клееного дерева, а для кладки фасадов использован известковый раствор, чтобы кирпич можно было в дальнейшем легко использовать повторно. На зеленой кровле летом цветут васильки и ромашки. В центре двора растет огромный кедр.
Центр Джона Мордена
Фото © Jim Stephenson
Руководство Морден-колледжа отмечает, что новый социальный центр выманил из своих квартир даже тех обитателей их учреждения, кто редко показывался наружу: очевидна его эффективность в борьбе с одиночеством и изоляцией, особенно опасными для пожилых людей. Жюри Премии Стерлинга под председательством партнера ОМА Элен ван Лон отметило терапевтическое воздействие подобной архитектуры, помогающей людям благоденствовать.
Центр Джона Мордена
Фото © Jim Stephenson
Центр Джона Мордена
Фото © Jim Stephenson
