Молодые архитекторы и дизайнеры в возрасте до 35 лет соревновались в пяти номинациях:
- «Кирпичный городской дом»
- «Кирпичное общественное пространство»
- «Кирпичный загородный дом»
- «Кирпичный интерьер»
- «Кирпичная реконструкция» – новая номинация, введенная в 2024 году
На площадке «Студии 42» культурно-делового пространства «Севкабель Порт» проходила выставка 35 работ финалистов, выбранных экспертным советом.
Гран-при получил проект «Серая кольцевая» Анастасии Сергеевой и Владислава Лобко из Санкт-Петербурга.
Рассказываем подробней о победителях.
Гран-при
«Серая кольцевая»Анастасия Сергеева и Владислав Лобко, Санкт-Петербург.
Гран-при IV Кирпичного конкурса
© «Серая кольцевая»
Анастасия Сергеева и Владислав Лобко, Санкт-Петербург
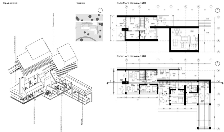
Промышленный серый пояс Петербурга дал название и цвет новой ветке метро. Серая кольцевая линия объединяет множество памятников промышленной краснокирпичной архитектуры, характерных для дореволюционного и советского периодов. Типовые спуски в метро располагаются в корпусах тех заводов и фабрик, названия которых они носят, таким образом вестибюлем метро становится сам краснокирпичный объект. Это явление отражает важный этап в истории города, когда промышленное производство, являясь основой экономики, формировало облик не только промышленных зон, но и всей городской ткани.
Станции кольцевой линии стали своего рода данью уважения промышленному прошлому города, и их названия связаны с крупнейшими предприятиями, которые когда-то играли ключевую роль в развитии Петербурга. Так, Пороховой завод дал название станции Пороховая, а знаменитый «Красный Треугольник», крупнейшее производство резины, – станцию Резинотрест. Названия станций метро не только наполняют маршруты исторически ми ассоциациями, но и подчеркивают взаимосвязь промышленного наследия и городской инфраструктуры.
Кирпичный городской дом/ победитель
«Тихое место»Алина Паршикова, Москва.
Кирпичный городской дом/ победитель
© «Тихое место»
Алина Паршикова, Москва
Москва и Санкт-Петербург оказались перегружены ритмом современного города, поэтому возникла потребность сместить фокус внимания с двух столиц на города, являющиеся остановками Сапсана между ними: так, вокзальную территорию Вышнего Волочка предложили осмыслить как пространство для новой типологии жилья, когда дом находится в благоприятной транспортной доступности от мегаполиса, но не находится непосредственно в нем. Вышний Волочек – это большое количество кирпичных зданий – начиная от исторического вокзала и заканчивая торговыми рядами, театрами и музеями. Возникло предложение создать район, построенный на разнообразных сценариях использования дворов, становящимися центрами событиями.
Проект «Тихое место» – это возможность в активном новом районе побыть наедине с собой как жителю дома, так и гостю. В Вышнем Волочке одним из морфотипов является «внутриквартальное здание» – типология, когда во внутриквартальной застройке возникает одна затерянная секция. На основе этой типологии был разработан «затерянный дом» – тихое место, где каждый имеет право побыть в одиночестве. Дом построен исходя из «права горожанина на уединение»: таким образом, ступенчатая структура зиккурата сформировала вариативную планировку квартир, а также предоставив городу альтернативный вертикальный маршрут и видовую площадку. Дом работает по принципу монастыря в городе, создавая пространство уединения на разных уровнях – от публичного (купольное пространство на первом этаже) к личному (в квартире). Дом затерян, и его трудно найти. В доме 14 входов и 12 квартир: только жильцы знают свой вход, остальные могут пройти по внутреннему сквозному проходу в городской сад. Камерное пространство квартиры решено за счет функциональных ниш в стенах: кирпич, будучи штучным материалом, создаёт человеческий масштаб и отсылает к сводчатым пространствам келий. Толстые стены – изолируют, защищают, но и становятся пространством как таковым...
Кирпичное общественное пространство/ победитель
«Буян»Петр Иванов и Александр Черкашин, Санкт-Петербург.
Кирпичное общественное пространство/ победитель
© «Буян»
Петр Иванов и Александр Черкашин, Санкт-Петербург
Буян – это утопический проект о том, как могли бы выглядеть общественные зеленые пространства в Санкт-Петербурге. Не хитрыми средствами любое руинированное здание (которых в нашем города не мало) превращается в живописный парк с гравюр Пиранези. Главное – дать волю природе!
В данном случае был выбран участок бывшего Сального буяна в историческом районе Коломна на реке Пряжка, заново прорыты каналы и заодно на фундаменте здания буяна, построенного по проекту Тома де Томона, спроектирована оранжерея. Место это было выбрано неслучайно, на этом месте в конце XVIII века располагались цветущие сады купца Гутуева, которые были видны со всякого судна, входившего в Неву. Позже на их месте было возведено здание буяна для хранения сала. Как известно, сало хранилось в бочках и глиняных горшках, отсюда причудливые кирпичные объемы, которые служат «сосудами» для различных растений. Эти объекты выложены из кирпича таким образом, что растениям удобно цепляться своими корнями за их поверхность. Солнечный свет проходит сквозь отверстия в кирпичной кладке. Кирпич обеспечивает теплую и защищенную среду для растений. В проекте применяется кирпич из каталога компании АРХИТАЙЛ.
Кирпичный загородный дом/ победитель
«Между»Ульяна Савельева и Радимир Тюлькин, Санкт-Петербург.
Кирпичный загородный дом/ победитель
© «Между»
Ульяна Савельева и Радимир Тюлькин, Санкт-Петербург
Дом отшельника стоит на самой границе города и леса, словно мост между двумя мирами. Одна его часть встроена в старую кирпичную стену, обращенную к городу.
Это место, наполненное следами цивилизации: здесь стоят полки с книгами, которые он когда-то привез с собой, старое кресло, стол и медный подсвечник. Здесь он читает по вечерам, погружаясь в мысли.
Другая часть дома – деревянная, она постепенно растет в сторону леса. Здесь все создано его руками: простая кровать, полки для сушёных трав и ягод, самодельный очаг, где он готовит пищу. Эта часть дома жива, она дышит вместе с природой, каждое новое бревно словно становится продолжением леса. Здесь отшельник чувствует себя свободным, его тело и дух расслабляются. Каждое утро он поднимается на стену, как на границу между двумя реальностями. С одной стороны – город, который медленно приближается. С другой стороны – лес, спокойный, неизменный, где он находит свой покой.
Отшельник смотрит на миры вокруг себя и понимает, что его дом, словно зеркало, отражает это разделение. Один мир, полный шума и движения, другой – наполненный тишиной и жизнью, которая не требует спешки. Он живет на этой границе, не принадлежит полностью ни городу, ни лесу, но находит баланс в их противоречиях...
Кирпичный интерьер/ победитель
Первое место не присуждалось.Кирпичная реконструкция/ победитель
«Сон о дымовых трубах и дирижаблях»Владислав Лобко и Екатерина Румак, Санкт-Петербург.
Кирпичная реконструкция/ победитель
© «Сон о дымовых трубах и дирижаблях»
Владислав Лобко и Екатерина Румак, Санкт-Петербург
Кирпичные дымовые трубы являлись неотъемлемой частью любого промышленного города тира. Эти конструкции, когда-то служившие для отвода дыма от заводских предприятий, сегодня представляют собой объекты культурной ценности, которые рассказывают о развитии городской инфраструктуры и экономической жизни города ушедших эпох. В настоящее время неиспользуемые трубы в лучшем случае – декорация для городской среды, а в худшем и вовсе лишний артефакт.
Проект на примере Санкт-Петербурга демонстрирует возможность реконструкции труб города, с целью их сохранения. В проекте также затронута транспортная проблема современной городской среды. Дирижабли служат «небесным общественным транспортом», остановки которого – те самые дымовые трубы. Их использование не только снизит нагрузку на уже перегруженные улицы, но и добавит новую визуальную составляющую в городской пейзаж. Особенность дирижабля в тот, что для него нет необходимости приземляться ради загрузки и выгрузки пассажиров, достаточно лишь состыковаться с посадочным пунктом.
Кирпичный городской дом/ 2 место
«Дом Нафа»Елизавета Зубенко, Ростов-на-Дону.
Кирпичный городской дом/ 2 место
© «Дом Нафа»
Елизавета Зубенко, Ростов-на-Дону
Самая лучшая реклама кирпича – известная сказка для маленьких детей «три поросенка». Почему дом третьего героя выстоял в схватке с волком? Наф говорил, что его дом крепость, а самый надежный для этого материал именно кирпич. С развитием технологий и интернета человеку некуда спрятаться, ведь его везде найдут. а что если дом станет личной крепостью, которая надежно спрячет от чужих глаз? Абсурдная идея городского дома, основанная на переосмыслении образа крепости, зажатый между высоток...нет привычных окон, нет привычных дверей – только кирпич.
Дом Нафа – гиперболизированный образ крепости, наполненный как обитаемыми пространствами, так и сетью бессмысленных лимитивных пространств, призванных запутать незнакомцев. кирпич в этом доме, как матрица, из которой рождается каждая его составляющая – каркас, светопропускающие элементы, даже двери. Узкая коробка дома наполнена разнообразными по форме пространствами и переходами, часто ненормативной высоты, глубины или расположения. Однако это не мешает жильцам, ведь такое экспериментальное формирование пространства позволяет использовать его более многогранно. А вот непрошенным гостям придется сильно постараться, чтобы найти жильца или его богатства в этом доме, не испугавшись пространств, балансирующих между реальностью и чистейшим абсурдом.
Кирпичный городской дом/ 3 место
«Сонмище»Надина Сардарова, Москва.
Кирпичный городской дом/ 3 место
© «Сонмище»
Надина Сардарова, Москва
Сон – маленькая репетиция смерти. Человек проводит во сне около 20 лет своей жизни. Пребывание во сне покрыто завесой тайны по сей день, науке еще не удалось разгадать ее. Функциональная наполненность Сонмища сложена из рекомендаций, улучшающих сон, а именно, чтение, медитации и йога. Клуб дарит разный опыт сна – на весу, на татами, в комнате. Снаружи он и сам спит, сконцентрировавшись на действе сна внутри. Созвучно тезису, прообразом Сонмища послужили реконструкции мавзолеев в Галикарнасе, Адриана, Августа и Диоклетиана.
Кирпичное общественное пространство/ 2 место
«Мемориальный сквер первым строителям Петербурга»Ангелина Стукалина и Петер Элверум, Санкт-Петербург.
Кирпичное общественное пространство/ 2 место
© «Мемориальный сквер первым строителям Петербурга»
Ангелина Стукалина и Петер Элверум, Санкт-Петербург
Архитекторы часто стремятся создать проекты, которые станут важными символами территории. Однако время неизбежно вносит свои изменения. Любые архитектурные объекты – это слои истории, накладывающиеся друг на друга. Яркий пример – участок на пересечении Сытнинской и Кронверкской улиц, где когда-то находились деревянная церковь и доходные дома.
При подготовке территории к новому строительству были обнаружены скелеты 255 рабочих, участвовавших в строительстве Санкт-Петербурга. Находка изменила планы застройщиков, и теперь участок остается заброшенным. Горожане предлагают создать здесь общественный сад или мемориал, но ни одна идея пока не реализована.
Мы предлагаем проект мемориального сквера, который станет местом памяти и общения. Концепция предполагает постепенное понижение ландшафта с кирпичными ступенями, символизируя уход вглубь истории. В центре участка будет «остров» деревьев – живой памятник первостроителям города. Посетители смогут пройти по площади, покрытой кирпичом, и постепенно погрузиться в атмосферу прошлого, отрываясь от современного контекста. Этот проект объединяет память о прошлом и функции общественного пространства, создавая гармонию между историей и современностью.
Кирпичное общественное пространство/ 3 место
«Красный курильщик»Данил Ткачев и Милена Колесникова, Москва.
Кирпичное общественное пространство/ 3 место
© «Красный курильщик»
Данил Ткачев и Милена Колесникова, Москва
«...таким образом, Фудзияма, последний раз извергавшаяся в 1708 году, все еще представляет опасность для жителей вокруг, так как поведение спящего вулкана непредсказуемо и неконтролируемо...», – вещали новости, пока я доедал завтрак, а мама доглаживала рубашку. По дороге в школу, на перекрестке, глаз неизменно цеплялся за кирпичную громаду, которая нависала над городом и, казалось, красной иглой готова была проколоть серое ноябрьское небо. Оперевшись на бардачок, я спросил: – Мам, а когда она извергалась в последний раз? – Дорогой, она не извергается, – улыбнулась она «Видимо, спящий» – подумал я.
Дымовая труба бывшего завода пластиков в Лефортово, ныне заброшенная, переоборудуется в новое общественное пространство. На стальной стержень [лифтовая шахта, коммуникации] нанизываются 17 комнат, каждая из которых отвечает потребностям пестрого состава района: рабочих, семей с детьми, студентов, гостей на Москве-Товарной. По принципу вертикальной схизмы эти пространства не зависят друг от друга: проехав дополнительный этаж, мы окажемся в саду вместо библиотеки. Структура разделена на три общих блока: досуговый, образовательный и рекреационный снизу-вверх соответственно. Оболочка трубы с внутренней стороны укрепляется новыми слоями кирпичной кладки. Прилегающий двор и МАФы также укладываются кирпичом.
Кирпичный загородный дом/ 2 место
«Снести нельзя, оставить»Елизавета Зубенко, Ростов-на-Дону.
Кирпичный загородный дом/ 2 место
© «Снести нельзя, оставить»
Елизавета Зубенко, Ростов-на-Дону
Вы когда-нибудь сравнивали дом с человеком? Оказывается, мы так похожи. Когда мы стареем – жизнь меняется. Есть те, о ком заботятся, кого любят и могут защитить. а есть те, кого бросают доживать свой век. «Ненужных» никто не спрашивает, их вытесняют и подводят к определенной черте.
Кто такие «ненужные»? Это жилые дома ( названные ветхим жильем ). Те, кого проще снести, чем починить. Реставрация в привычном ее виде ничего не даст, городу нужно место для выгодный застройки. Но кто решил, что они уже не нужны этому миру? Как и любой человек они хотят жить дальше. может хотят что-то поменять и сделать другой свою жизнь. Снести, нельзя оставить или снести нельзя, оставить? Где лучше поставить запятую по вашему мнению? Каждому нужно давать шанс. Предлагается позволить этим домам жить дальше и сохранить частицу своего времени. Для этого нужна непривычная смена образа. Мы позволим этим объектам уйти и продолжить свою жизнь вне города. Предварительно мы укрепим их, пересоберем, придав более прогрессивный архитектурный облик. При этом мы оставляем опорные архитектурные элементы их времени, чтобы акцентарно сохранить детали определенной эпохи. Пусть их отпустит бесцеремонный городской прогресс, пусть они найдут себе уголок спокойствия в лесу...в горах...в поле.
Кирпичный загородный дом/ 3 место
«Жилой дом в лесу»Владимир Овчинников, Санкт-Петербург.
Кирпичный загородный дом/ 3 место
© «Жилой дом в лесу»
Владимир Овчинников, Санкт-Петербург
В сердце густого леса, вдали от суеты и шумного мира, стоит кирпичный дом, идеально подходящий для семьи интроверта. Стены главного фасада, встречающего гостей, ощетинились 3-Д кладкой из черного кирпича, уподобляясь поведению хозяина в обществе. За темными глухими стенами, располагается набор помещений, рассчитанный на проживание семьи, состоящую из 3-х поколений.
Глава семьи – это IТ специалист, который устал от городской суеты и сбежал в тихое уединенное место вблизи небольшого провинциального города. Выбор его пал на густой лес вблизи города Пошехонья, Ярославской области. Внутри дом наполнен теплом и уютом. Просторная гостиная с камином становится идеальным местом для чтения книг или медитации. Мебель выполнена из натурального дерева, а мягкие текстуры создают атмосферу уюта. Кухня оборудована всем необходимым для приготовления простых блюд, а в столовой есть большой деревянный стол, за которым можно наслаждаться едой в одиночестве или в компании близких друзей.
Каждая комната продумана до мелочей: здесь есть личный кабинет для творчества и работы, а также небольшая библиотека с полками, заполненными любимыми книгами. Ванная комната оформлена в спокойных тонах, а душ с видом на лес позволяет расслабиться и забыть о повседневных заботах.
Главный фасад дома, обращенный к улице, представляет собой массивные глухие стены, выполненные из черного кирпича с трехмерной кладкой. В контрасте с ним, задний фасад, скрытый от посторонних глаз, оформлен в светлом кирпиче и украшен крупными окнами, из которых открываются великолепные виды на окружающий лес. Это архитектурное противопоставление отражает внутренний мир хозяина: несмотря на его замкнутость и отстранённость от общества, он является добрым и глубоким человеком, способным ценить красоту природы и находить утешение в уединении. Такой дом становится не только крепостью, но и отражением души своего владельца, где каждая деталь говорит о его характере и жизненных ценностях.
Кирпичный интерьер/ 2 место
«Пятый элемент»Сергей и Вероника Горпинич, Санкт-Петербург.
Кирпичный интерьер/ 2 место
© «Пятый элемент»
Сергей и Вероника Горпинич, Санкт-Петербург
Концепция интерьера дома-крепости на холме «Пятый элемент». Одноэтажный кирпичный дом с фонарем в крыше, растущим живым деревом в центре пространства, панорамными окнами и ставнями, которые закрывают гостиную от непогоды и чужих глаз. Металл, дерево, вода, огонь и земля. Атриум стремится вверх, тянется к свету и воздуху. Во внутренней отделке присутствует кирпич, дерево, стекло.
В интерьере мы использовали природные материалы и оттенки. За счет высокого потолка и панорамного остекления человек чувствует себя комфортно и свободно, но в тоже время – безопасно. Создавая «вау» эффект при входе в пространство, мы все равно сохраняем приватность остальных зон. Весь интерьер проходит через призму природы. Сама концепция интерьера дома представляет собой цикл ПРИРОДА-ЧЕЛОВЕК. В окружающую природу мы вписываем дом с его общим пространством для человека, потом снова идет «часть природы» атриум с растением, после которого снова погружение в пространство человека.
Мощный инструмент в создании интерьера этого пространства – солнечный свет. Благодаря ажурной кирпичной кладки мы запускаем естественный свет в дом, создавая не просто красивую игру света и тени, а дозируем освещение, усиливая эффект приватности естественный свет в дом, создавая не просто красивую игру света и тени, а дозируем освещение, усиливая эффект приватности и ощущение безопасности.
Кирпичный интерьер/ 3 место
«Квартира фотографа»Анастасия Попова, Санкт-Петербург.
Кирпичный интерьер/ 3 место
© «Квартира фотографа»
Анастасия Попова, Санкт-Петербург
Квартирой в Ленинградской области владеет молодой фотограф и его супруга. Сводчатый потолок помещения шестиметровой высоты дарит простор для создания двухуровневого пространства, освещённого панорамными арочными окнами. Форма арки повторяется в светильниках. Открытая просторная гостиная стала центром в едином пространстве квартиры. Кухня с отдельной кладовой переходит в столовую.
Зоны для работы фотографа: гардероб, гримерная, выходят к фотозоне. На антресолях находятся спальня с санузлом и гардеробом и рабочий кабинет с домашней библиотекой. Сочетание кирпича и стекла выступает лейтмотивом в интерьере. Кирпич используется в конструкции отдельных предметов мебели: кирпичная кладка на фасаде кухонного острова и журнальный столик на опоре из кирпича. Высокие сводчатые потолки подчёркнуты подвесными светильниками необычной формы.
Кирпичная реконструкция/ 2 место
«Арт-центр Guild Arts»Мария Кнутова и Наталия Мурашова, Санкт-Петербург.
Кирпичная реконструкция/ 2 место
© «Арт-центр Guild Arts»
Мария Кнутова и Наталия Мурашова, Санкт-Петербург
Guild Arts – это современная гильдия, объединяющая художников и ремесленников, которые работают в едином пространстве. В основе концепции лежит идея поддержки традиций и создание условий для сотрудничества и обмена знаниями. Это место, где современное искусство и ремесло находят новые формы воплощения через традиции прошлого. Ремесленные мастерские / здание, наиболее сохранившее свой исторический облик, будет полностью отреставрировано и переоборудовано под ремесленные мастерские.
Здесь мастера смогут работать, обучаться и передавать свои навыки новым поколениям, продолжая традиции. Выставочный комплекс / здание не является историческим, поэтому для его фасадов была выбрана облицовка кирпичом с декоративной кладкой, создающей визуальную связь с историческим контекстом.
Арт-резиденция станет местом для проживания и работы художников, приглашенных для участия в проектах. здание уже имеет пристроенный второй этаж, поэтому было принято решение облицевать его металлическими панелями.
Центр искусства керамики станет центральным элементом концепции – это пространство для современных художников-керамистов, где будут проходить выставки, образовательные проекты и мастер-классы. Центр станет платформой для создания сообщества, которое устанавливает высокие стандарты качества произведений, поддерживает художников, предоставляя ресурсы и площадки для их продвижения, а также вдохновляет на обмен опытом и совместное творчество.
Кирпичная реконструкция/ 3 место
«Храм всех святых»Тимур Тлукашев и София Петрова, Санкт-Петербург.
Кирпичная реконструкция/ 3 место
© «Храм всех святых»
Тимур Тлукашев и София Петрова, Санкт-Петербург
Реставрация с частичной реконструкцией православного храма в Ленинградской области. «Храм Всех Святых » г. Гатчина, улица Солодухина, городское кладбище.
Концепция данного проекта предполагает частичную реконструкцию с восстановлением уникальных утраченных конструкций и сохранением важных исторических элементов кирпичного сооружения дополняя утраты современным
Победители Кирпичного конкурса были награждены денежными призами, дипломами подарками от партнеров мероприятия и авторскими кирпичами от художника-керамиста Андрея Шретера.
Экспертный совет: Евгений Новосадюк, партнер бюро «Студия 44» (Санкт-Петербург); Федор Опарин, архитектор, старший преподаватель кафедры архитектуры Санкт-Петербургской академии художеств им. Ильи Репина; Камила Халитова, основатель студии концептуальной архитектуры BETON (Казань); Никита Асадов, архитектор бюро ASADOV (Москва); Анзор Берсиров, заместитель генерального директора по развитию Группы компаний «ТРЕСТ».
Жюри конкурса: Николай Смелков, декан факультета архитектуры Санкт-Петербургской академии художеств им. Ильи Репина; Юлия Тарабарина, главный редактор «Архи.ру»; Степан Липгарт, основатель бюро Liphart Architects (Санкт-Петербург); Андрей Дойницын, руководитель бюро «Новая РАСА» (Ростов-на-Дону); Марсель Искандаров, архитектор и теоретик, член Градостроительного совета Казани; Андрей Кораблев, основатель бюро TOBE architects (Санкт-Петербург); Любовь Леонтьева, руководитель бюро ludi_architects (Санкт-Петербург); Петр Советников, партнер бюро KATARSIS Architects (Санкт-Петербург); Ирина Кащеева и Елизавета Михайлова, лауреаты Гран-при Кирпичного конкурса 2022 года; Юрий Хитров, руководитель компании «АРХИТАЙЛ Северо-Запад»; Владимир Фролов, директор издательского дома «Балтикум», главный редактор журнала «Проект Балтия». Председатель жюри главный архитектор Ленинградской области Сергей Лутченко.
Партнер конкурса – бренд Faber Jar. Специальный партнер – группа компаний «ТРЕСТ». Партнер номинации «Кирпичный городской дом» на церемонии награждения – «PROСВЕТ». Медиапартнер конкурса – ARK publishers. Информационные партнеры: Архи.ру, Architime, Санкт-Петербургский союз дизайнеров, Premio.Design.
Сайт конкурса.
