Within the framework of the single master plan – developed by Ostozhenka and inspired by the style of modern Sydney, one of the most comfortable cities in the world – the architecture of individual city blocks was divided among different architectural companies.
Genpro received the central block to design. Next to it, there will be the structural green axis of the entire Sydney City – the inner boulevard, designed, just as the other landscaping projects in this complex, by Wowhaus. And, while the architecture of the high-rises is reserved and laconic, subjugated to the style of most modern (including Australian) skyscrapers, then the boulevard is more like a “plastique offset”: its nonlinear character is meant to make this place more picturesque. It was this dichotomy that the Genpro architects based their architectural solution upon.
Their complex forms a virtually closed-perimeter city block with a highlight of a 157 meter high tower (42 floors): it is shifted to the southwest corner of the site and accentuated the direction towards the embankment. The two other towers – 27 and 25 floors high – are situated in the south and northeast corners. Inside of the block, there is a landscaped yard raised above the street level.
Sydney City. The central block. Photo montage. View 2
Staying true to the overall architectural vector of the entire Sydney City, Genpro works with prismatic volumes, at the same time correcting their visual perception “through optics”. The facade grid is light-colored and delicately textured; it stands out against the wall surface and arrests our attention. The sunken surfaces that surround the window apertures are darker, and they recede into the background. As a basis – and this is clearly seen from the plans – the architects took a simple orthogonal grid, and then “pulled” it by the corners, so that a large wave rolled across the facades, making some cells wider, and some more narrow. This technique is very similar to stretching a piece of cloth with a loose structure. This, however, is enough to make these actually simple volumes, albeit diamond-shaped on the plan, look sculptural at a glance, endowed with curves, recessions and ledges, which in reality do not exist.
However, even more interesting is the facade technology itself. Genpro proposed to use a modular facade system of domestic production in the project. Unlike typical ventilated facades, where individual elements are delivered to the facility in disassembled form, the modular facade is assembled at the factory: it arrives at the construction site completely ready, in the form of large-format facade modules, including foam blocks and composite panel cladding. The width of the module is 3.5 meters.
This method increases the assembly rate and reduces logistical costs waste disposal expenses, and the necessary number of construction workers – generally reducing the carbon footprint of the entire construction, and, of course, making the project more sustainable.
At the same time, as we can see, the prefabrication does not get in the way of making visually complex architecture. The modules were adapted to five formats using the Grasshopper software – by varying the arrangement of the elements, the architects obtained a solid pattern of parametric nature: flexible, akin to the natural lines of the landscape, yet superimposed on a plane.
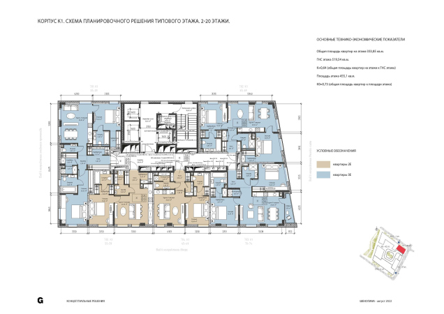
The floor plans are subdivided here into a few types in accordance with floor groups – floors 2-16, 17-20, etc. At the top, two-floor apartments are situated. Since the bearing poles on all the floors are situated in identical locations, and the types of apartments vary, it took a lot of ingenuity from the architects to combine one with the other. In addition, according to the developer’s instructions, the apartments had to conform to the openspace format so that the buyer could combine several apartments at will, making the layout he wanted.
According to the initial master plan, a shopping mall was to be built in the central part. Then its function was transformed, and the shopping mall gave way to a children’s entertainment center – it was placed in the stylobate of the central block, specifically, in its southern part that is single-tier, yet with a ledge that appeared thanks to the relief drop. The outside single-store contour will also include retail, cafes, and shops because the block is situated at the crossing of pedestrian flows.
Thus, the central block of Sydney City combines the high-rise character, the stylobate’s public function, and a visual accent of parametric grids. It simultaneously responds to the orthogonal logic of the blocks of the master plan and the flexibility of the riverside nature that still has its say in these parts.
