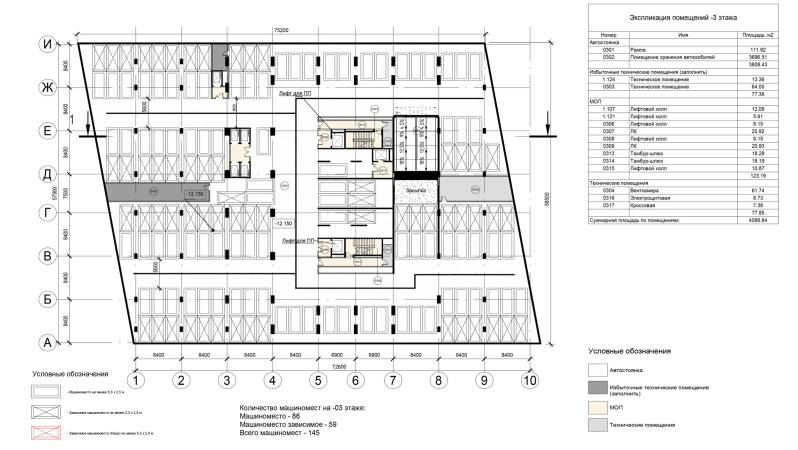
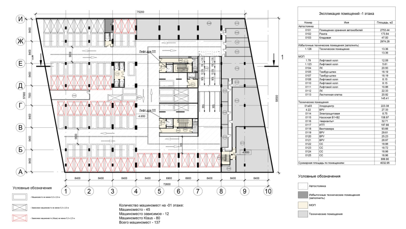
The office tower rising in the eastern part of Sidney City – next to a school, a stadium, and the sales office – is set to become FSK’s new headquarters. It’s a significant project, and it’s somewhat surprising that the building isn’t a skyscraper: it tops out at just 25 stories, with three underground parking levels.
The FSK Development HQ
Copyright: © Kleinewelt Architekten
In terms of height, it is noticeably shorter than the surrounding towers still under construction.
The site sits on the “third row” from the future river embankment, perpendicular to the Moscow River, and slightly elongated along a southwest–northeast axis. Starting from the underground parking garage, the floor plan is shaped like a diamond: the southwest end façade is rotated ten degrees southward to better catch the sun, while the northeast side faces almost exactly north.
Above the fifth floor, where the office levels begin, the tower narrows, and on the south façade, volumes of five floors each protrude like piano keys, angled and gradually receding into the main façade plane, which runs parallel to the site’s boundary and to the river. Each of these protrusions hosts an open terrace.
On the north side, a symmetrical “mirrored” system of volumes creates a visual rhythm that seems to gather the building into a compact frontal volume, pulling from the diagonals inward.
Aside from these accents, the façades are highly restrained: a glass curtain wall structured by a strict floor-by-floor grid, with thin vertical mullions forming elongated window bays and black spandrel bands marking the horizontal divisions. Viewed obliquely, the verticals dominate; head-on, the horizontals become more apparent. The proportions and composition resemble many modernist façades – rational, calm, and pragmatic, forming a subdued backdrop...
...unlike the building’s spatial composition at the lower and upper extremes: five base (“plinth”) levels and three penthouse levels.
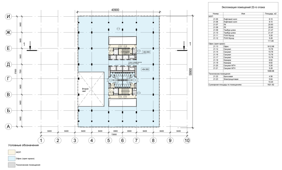
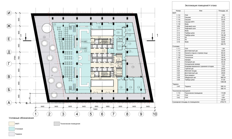
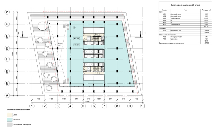
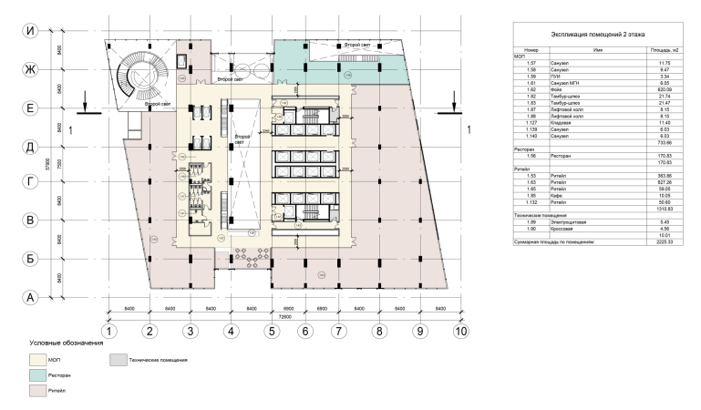
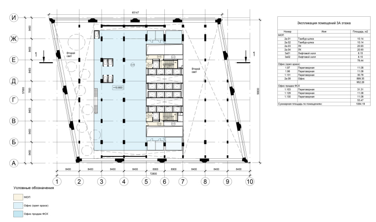
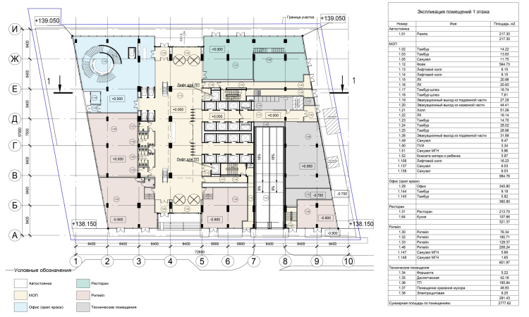
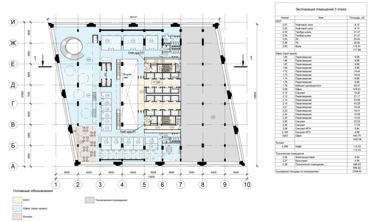
The first two floors house retail, a restaurant with a street entrance, and public spaces. The third floor is also for offices – but far from ordinary. It contains about 15 meeting rooms, and an open space area projecting to the south is topped with conical skylights.
These skylights are tilted at varying angles to catch as much southern light as possible, but more importantly, they give the space a distinctive and high-profile character. It’s clearly designed to impress visitors – likely business partners arriving for high-level negotiations.
Before reaching the skylit area (which will likely become a winter garden), the guests are led up from the ground floor via a large spiral staircase that cuts through the second floor and opens directly into the third.
Thus, public-facing city-level functions – shops and cafés – are physically and visually interwoven with the representative office zone. The 4th and 5th floors are reserved for employee dining areas.
Both the skylights and the staircase are already impressive in raw concrete.
The executive floor is also nearly double the height of the typical office levels: while standard floors have a height of 3.9 meters, the third floor soars to 7.2 meters. Inside, there is a mezzanine balcony, making the skylit area effectively a double-height space.
Externally, this tier is framed by large horizontal “ribbons” with deep window reveals on both the inside and outside. It’s easy to guess that this bold, dark-gray belt houses the building’s main space. The strong third-floor horizontal aligns with the thinner spandrels elsewhere on the façade.
Above this “frame”, there is a row of slender black supports. Behind them lie terraces for the staff cafeterias, and the building as a whole begins to look like it’s standing on “legs” resting atop the plinth’s third level.
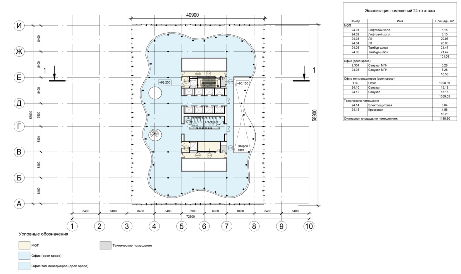
At the very top, in the levels reserved for top management and high-level guests, we see the same architectural ideas again: double-height atria and spiral staircases – now enhanced by the view from the 25th floor.
In this way, Kleinewelt has designed a headquarters for a developer whose work is fundamentally tied to shaping space and form – a building whose architectural expression is strongest on the inside. The design follows the principles of neo-modernism, a movement that may only now be entering its full stride.

