Всеволод Медведев, руководитель архитектурного бюро «Четвертое измерение», Четвертое измерение
«В этом году мы выпустили группу бакалавров МАРХИ. Впервые значительная часть процесса проектирования и защита проходили удаленно. Это было не просто, и для нас, и для студентов. К сожалению, институт не смог организовать видеоконференции для защиты дипломных проектов, и все работы были приняты практически без авторских комментариев. Не понимаю, с чем это связано, то ли с устаревшей материально-технической базой, то ли с консервативной политикой руководства. МАРХИ, как и многие творческие вузы страны, оказался не готов к таким вызовам как пандемия. Но, несмотря на отсутствие живых встреч и обсуждений, проекты обладают высоким уровнем проработанности и ничуть не уступают работам предшественников.
Выбор темы проекта не ограничивался единой концепцией. Студенты выбирали направление самостоятельно, в зависимости от личных интересов и актуальных проблем. Тематика работ была самая разнообразная: от небольших объектов в плотной городской застройке до масштабных градостроительных решений на территориях России, Европы, США и так далее.
Мы старались не навязывать свое мнение, а поддержать и помочь развить индивидуальные новаторские идеи. Важно было создать осмысленный архитектурный проект, который был бы основан на предварительном исследовании и решал обозначенные проблемы. Но основное время, конечно, было уделено проработке архитектурных, образных решений. Интересные исследования стали отличной подосновой для дальнейшего творчества, что в итоге привело к нестандартным подходам, а это самое главное.
Творческие амбиции, индивидуальность и способность неординарно мыслить – это то, что мы стараемся воспитать во всех наших студентах на протяжении двадцати лет. Как и всегда, результатом мы остались довольны. Вся группа отличается неповторимым видением архитектуры, способностью отстаивать свою точку зрения и серьезным отношением делу».
Выбор темы проекта не ограничивался единой концепцией. Студенты выбирали направление самостоятельно, в зависимости от личных интересов и актуальных проблем. Тематика работ была самая разнообразная: от небольших объектов в плотной городской застройке до масштабных градостроительных решений на территориях России, Европы, США и так далее.
Мы старались не навязывать свое мнение, а поддержать и помочь развить индивидуальные новаторские идеи. Важно было создать осмысленный архитектурный проект, который был бы основан на предварительном исследовании и решал обозначенные проблемы. Но основное время, конечно, было уделено проработке архитектурных, образных решений. Интересные исследования стали отличной подосновой для дальнейшего творчества, что в итоге привело к нестандартным подходам, а это самое главное.
Творческие амбиции, индивидуальность и способность неординарно мыслить – это то, что мы стараемся воспитать во всех наших студентах на протяжении двадцати лет. Как и всегда, результатом мы остались довольны. Вся группа отличается неповторимым видением архитектуры, способностью отстаивать свою точку зрения и серьезным отношением делу».
Комплекс Научно-исследовательского института археологии в Инкермане
Евгения ЧумаченкоПомимо культурно-образовательного центра археологической направленности на территории Крымского полуострова, проект Евгении Чумаченко предлагает пример развития городских общественных пространств.
Комплекс Научно-исследовательского института археологии в городе Инкерман
© Евгения Чумаченко
«Археологические исследования можно сравнить со структурами колец, по которым можно проследить рост, историю и развитие дерева. С каждой новой эпохой архитектура и культура «наслаиваются», появляется что-то новое, но сохраняются старые образы и черты. Годичные кольца обладают множеством информации, по их толщине и величине можно проследить все серьезные изменения дерева за всю его жизнь. Именно эта особенность положена в основу градостроительной концепции научно-исследовательского института.
Комплекс Научно-исследовательского института археологии в городе Инкерман
© Евгения Чумаченко
Комплекс Научно-исследовательского института археологии в городе Инкерман
© Евгения Чумаченко
В основе генерального плана участка – рисунок сходящихся к центру колец дерева – простые и сложные архитектурные формы, которые отражают процесс эволюции, происходивший на протяжении многих веков в этом городе и районе. Кольца получают отражение в структуре пешеходных и велосипедных маршрутов, по которым можно обойти всю территорию комплекса. За счет формирования колец на генплане наглядно можно выделить главную площадь и разделить территорию на зоны: институт, музей, жилье и павильоны по воссозданию макетов археологических памятников.
Помимо древесных колец, временные слои накладывается друг на друга, образуя «градиент времени» – древнее лежит глубже, то, что относится к более позднему времени, лежит на поверхности. Градиент проявляется в градостроительном решении как раскрытие пространства. Со стороны железной дороги застройка более плотная, к реке она начинает растворяться, появляются обширные зоны отдыха.
Осевая композиция нацелена на восприятие человеком основных культурных точек города – на крепость Каламиту, пещерный город на Загайтинской скале и Чертову балку. На основной оси располагаются башни этноцентра, каждая из которых символизирует культуры народов, обитавших на этой земле. На второй оси располагается комплекс музея и института.
Собственно институт представляет собой вытянутый комплекс из трех зданий, который группирован вдоль второй градостроительной оси, начиная с музея и заканчивая вторым корпусом института. Здание музея было задумано как закрытая арочная система, которая «разрушается» и переходит на декоративные колонны перед зданием музея и на мост, визуально соединяя музей с одной части реки с музейной частью в институте. Фасад главного здания института также состоит из арок, которые работают не только на фасаде, но и внутри пространства.
Проект Научно-исследовательского института археологии станет крупным туристическим и научным центром Крымского полуострова, привлекая студентов и туристов. Комплекс призван оживить территорию и повысить общий научно-культурный уровень местности».
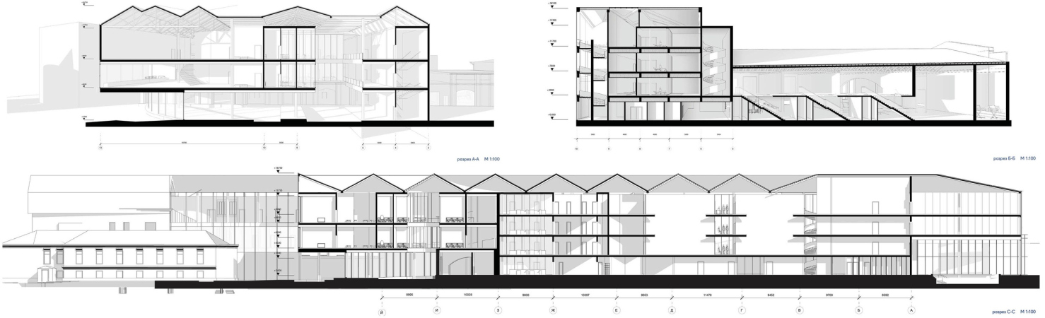
Городская лаборатория кино в Москве
Анна Воробьева«Задача проекта – поддержать и стимулировать процесс развития кинематографа путем создания экспериментальной лаборатории кино – места, где создаются новые форматы для дальнейшего продвижения и качественного показа фильмов.
Городская лаборатория кино в Москве
© Анна Воробьева
Проект располагается на основе существующей киностудии им. Горького, примыкающей к важному центру городской активности – парку ВДНХ. Такое расположение дает возможность пересмотреть отношение киностудии относительно города и создать центр, где главным является открытость всего процесса создания кино для зрителя, донесения сути экспериментального кино.
Городская лаборатория кино в Москве
© Анна Воробьева
Городская лаборатория кино в Москве
© Анна Воробьева
Для развития кинематографа необходимо искать новые грани творчества, экспериментировать, и основа проекта – среда, способная адаптироваться под любые запросы в творческом процессе: формат, отношение к зрителю, различные творческие коллаборации и т.д. Создание чего-то нового и неизвестного не имеет критериев для проектирования привычных пространств, поэтому сценарии использования поддерживаются разными типами трансформаций для каждого из этапов жизни нового формата кино в лаборатории. Этапы соответствуют функциям: образовательная, производственная и общественная, все дополняют друг друга и обеспечивают ресурсами, в центре пересечения функций образуется эксперимент.
1. Этап создания. Образовательный центр «Башня».
Башни состоят из независимых студий и распределены по принципу этапов кинопроизводства. Каждая студия находится на своем этаже. Универсальный этаж – это зальное пространство с трансформацией для расширения и регулирования света.
2. Этап испытания. Пространство для практики – «Лабиринт занавесов».
Ядро эксперимента, где пространства формируются занавесами или, при необходимости звукоизоляции, перегородками цилиндрических модулей, которые по направляющим перемещаются с первого уровня на второй.
3. Этап применения. Производственный комплекс – «Кинематографический променад».
Павильоны перемещаются по направляющим, открывают натурные площадки, расширяют съемочные пространства, открывают доступ публике и формируют «Кинематографический променад». Это прогулочное место, которое состоит из различных фрагментов, люди как кинозрители движутся по пути киноленты сменяющихся кадров. Это маршрут с собственным монтажом культурного пространства, которое всегда будет иметь разные сценарии в зависимости от деятельности на киностудии.
4. Этап премьеры. Зрительный зал – « FINISH PAVILION».
Главной общественной частью комплекса является зрительный зал, примыкающий к существующему зданию. У зала есть возможность подстраиваться под любой формат. Пространство пола занимают подъемно-опускные площадки, а внешние стенки открываются на фестивальную площадь с пешеходным мостом, соединяющим общественное пространство с ядром образовательного центра».
Центр ментального здоровья в Москве
Яна Курилова«Современный мир прогрессирует, сменяя все привычные понятия. Мы живем в обстановке, которая наполнена стрессами. Ежедневно число людей с расстройствами психики растет, в том числе и на территории России. Проект предлагает посмотреть, как новые цифровые технологии, контекстное проектирование и архитектурные решения могут помочь обществу в области психического здоровья в условиях наступившего кризиса.
Центр ментального здоровья в Москве
© Яна Курилова
Проект представляет собой центр психологического здоровья, основанный на восстановительном подходе. Большое внимание уделяется занятости реабилетанта и нахождению его сильных сторон или талантов, а не его болезни и психопатологии. Такой подход усиливает уверенность в себе через самопомощь и самодостаточность.
Центр ментального здоровья в Москве
© Яна Курилова
Специальная программа позволит устранить пропасть в лечении психологических болезней между диагностикой и неотложной помощью или медикаментозным лечением в стационаре. А также сделает более доступной диагностику психического здоровья для всех желающих. Также этот проект можно рассматривать как основу руководства по проектированию, в котором рассматривается возможная альтернатива городской психиатрической помощи в России.
Центр ментального здоровья в Москве
© Яна Курилова
Центр рассматривается как тестовая площадка, на которой предлагаются программы, которые в основном отсутствуют в существующей системе психического здоровья. Эти программы позволят повысить осведомленность сообщества об уровне психических расстройств, осуществить раннюю диагностику, а также поддержку в восстановлении психического здоровья.
Здание – цельный объем, который соединяет и «обволакивает» собой все постройки на участке. Скатные крыши всех домов, составляющих комплекс, призваны напоминать о традиционном образе Дома. Складчатая кровля придает зданиям определенную легкость и объединяет все блоки в одно целое. С ее помощью решается вопрос с освещенностью и перегревом здания, в некоторых участках также зашиты инженерные коммуникации».
Образовательно – исследовательский центр интеграции новейших технологий в области современного искусства и медиа-развлечений «Маякуша»
Денис Омельченко«Центр расположен в Санкт-Петербурге в устье реки Смоленка на Морской набережной Васильевского острова. Название центра обусловлено историческим прошлым реки. В XVIII веке у реки было устоявшееся название – Маякуша. В первой половине XIX века стали употребляться другие: Чёрная и Глухая речка. В 1864 году, для устранения одноимённости с другой Чёрной речкой, она была названа Смоленской рекой по находящемуся рядом Смоленскому кладбищу. Позже река обрела своё нынешнее название.
Образовательно – исследовательский центра интеграции новейших технологий в области современного искусства и медиа развлечений «Маякуша»
© Денис Омельченко
У Морской набережной весьма сложная судьба. На протяжении многих лет планировалось построить на этом участке Театр имени Аллы Пугачевой, но даже после трех разных предложенных проектов строительство так и не началось. В связи со сложностями согласования постройки театра в Санкт-Петербурге в настоящее время от идеи строительства театра отказались. Что планируется сейчас на этом участке, с уверенностью сказать сложно. Наиболее реалистичный вариант – парк отдыха. В связи с этим я делаю в своем проекте акцент на сохранение природного ландшафта и видовых зон отдыха на Морской набережной.
Образовательно – исследовательский центра интеграции новейших технологий в области современного искусства и медиа развлечений «Маякуша»
© Денис Омельченко
Центр «Маякуша» предлагает учебные программы, разработанные в рамках дополнительного образования и предназначенные для переквалификации и непрерывного развития практикующих художников, дизайнеров и специалистов смежных профессий.
Главные цели:
- интеграция новейших технологий в области современного искусства и медиа развлечений;
- доступность информационных и технических ресурсов для творческой деятельности за счет специально оборудованных студий и мастерских для занятий различными видами искусства и дизайна;
- создание «точки притяжения» за счет благоустройства и интерактивного пространства в устье реки и создания парковых зон отдыха для прогулок;
На территории центра расположен проект парка, концепция которого заключается в том, что нематериальные цифровые технологии могут превратить природу в искусство, не причиняя ему вреда.
Маякуша Парк – интерактивное художественное пространство, меняющееся от присутствия людей. Оно состоит из наземных и автономно плавающих на поверхности воды резонирующих ламп. При движении мимо лампы или дуновении ветра они начинают ярко светиться и издавать звук. Свет от одной лампы передается соседним, и так пока весь свет не пройдет через всё устье реки. Этот свет от плавающих ламп передает такой же яркий свет наземным лампам возле деревьев и камней. Светясь, лампы излучают звуковой тон, соответствующий определенному цвету. Когда ветер не дует, и людей рядом нет, лампы начинают медленно гаснуть.
Главным пешеходным путем к центру является мост, начинающийся рядом с автобусной остановкой. На нем расположено небольшое выставочное пространство для проведения временных выставок в теплые сезоны.
Также на территории «Маякуши» находится открытый выставочный зал. Это пространство предназначено для временных выставок и всевозможных мероприятий в летний сезон (перформансы, хэппининги и т.д.).
Sculpture Hall – пространство для прогулок вокруг постоянно экспонируемых скульптур. За счет этой концепции входной группы в парк перед проезжающими машинами вдоль улицы Кораблестроителей, открывается красивый и необычный визуальный ряд. Второе подобное пространство находится вблизи от центра и укрыто от ветра».
Городской агрокомплекс в городе Вест Ковина, США
Лидия Харчева«Дипломному проекту предшествовало большое исследование субурбий в США, в ходе которого были выявлены проблемы, влияющие на качество жизни людей. Основное внимание было уделено пригороду Лос-Анджелеса и именно там я искала участок для проектирования.
Городской агрокомплекс в городе Вест Ковина. США
© Лидия Харчева
Город Вест Ковина расположен в 30 км от «даунтауна» Лос-Анджелеса и связан с ним шоссе. Река, пронизывающая город, и пересекающее его шоссе, являются проблемными местами. Автомобилеориентированность субурбий делает территории вдоль трасс наиболее оживленными, в то время как зоны жилой застройки пустынны и безжизненны. Бетонное русло реки проходит через центральную часть города, оно является зоной отчуждения и несет исключительно утилитарную функцию.
Выбранный мной участок располагается на пересечении этих двух «артерий», тем самым позволяет задействовать обе: создать сооружение, взаимодействующее с городом и дорогой, положить начало благоустройства русла реки.
Городской агрокомплекс в городе Вест Ковина. США
© Лидия Харчева
Расположение объектов над трассой и вдоль нее продиктовано особенностью планировочной структуры пригородов, а также необходимостью создания знакового сооружения, хорошо считываемого как автомобилистами, так и пешеходами в разных частях города.
Подбирая типологию сооружения, я ставила своей задачей решить такие проблемы как: однообразие застройки, неузнаваемость местности и отсутствие ориентиров, недостаток общественных пространств, парков и пешеходных связей.
Вертикальное фермерство становится все более актуально и востребовано в современных мегаполисах. Непрерывно растущие города поглощают новые территории, а люди активно покидают сельские местности. Традиционное сельское хозяйство умирает и теперь оно должно адаптироваться к современному обществу. Новые способы выращивания растений такие как: аэропоника, гидропоника и аквапоника, позволяют получать большее количество урожая в наименьшие сроки, используя в разы меньше воды, площади и рабочей силы.
В случае с субурбией, агрокомплекс такого типа создаст активность в городе и приток туристов, обеспечит автономность территории вокруг, даст рабочие места местным жителям, тем самым снизит количество автомобилей.
Комплекс имеет несколько функций: общественную с ресторанами и рынком, учебную с классами для школьников и зонами мастер-классов, исследовательскую с лабораториями, а основная площадь отдана под ячейки для выращивания растений. Разделение комплекса на ячейки дает жителям города возможность аренды отдельных блоков различного назначения, упрощает их эксплуатацию и строительство подобных центров в других местах с возможностью изменения конфигурации сооружения».
Технопарк искусств на территории бывшего комбината искусственных и синтетических волокон в Клину
Мария Чельцова-Бебутова«Существующие постройки на территории «Химволокна» не имеют особенной архитектурной ценности, но некоторые из них вполне пригодны для реконструкции и переустройства под более востребованные функции. На месте остальных непригодных сооружений проектируется новый технопарк искусств с прилегающим к нему жилым кампусом.
Технопарк искусств на территории бывшего комбината искусственных и синтетических волокон, г. Клин
© Мария Чельцова-Бебутова
На территории технопарка я выделила шесть тематических зон, соответствующие шести видам искусств, которые я рассматриваю в порядке перехода от визуального и тактильного восприятия к слуховому:
- Первая зона – зона архитектуры и дизайна (полностью визуальное восприятие и даже тактильное), расположена в самом начале, если двигаться от здания администрации, которое является композиционным началом движения по технопарку.
- Вторая зона – зона изобразительного искусства (визуальное восприятие, тактильного почти нет).
- Третья зона – зона кино, театра и фотографии (как визуальное, так и слуховое восприятие).
- Четвертая зона – зона литературы и драматургии (может быть выражено как образом, так и словами, но слова описывают образ, поэтому скорее относится все еще к визуальному восприятию).
- Пятая зона – зона хореографии и акробатики (как визуальное, так и слуховое восприятие).
- Шестая и последняя заключительная зона, самая главная и занимающая центральное расположение прямо на пересечении главных планировочных осей – зона музыки.
Технопарк искусств на территории бывшего комбината искусственных и синтетических волокон, г. Клин
© Мария Чельцова-Бебутова
Разработанная в данной зоне открытая музыкальная арена рассчитана на 3000 человек. Сама арена поднята над землей на 45 метров, под ареной организован парк, вокруг которого разбит бассейн. Также на арену можно забраться по спиралевидному пешеходному пандусу, организованному вокруг арены. Данный объект может заменять по функционалу классическую городскую площадь.
В каждой из шести зон находится всё, что нужно для изучения соответствующего искусства, для возможности творить, создавать, придумывать и воплощать. Я выделяю два типа пространств, которые необходимы для постижения любого из талантов.
- Первый тип пространств – для самостоятельной работы над собой / учебы /совершенствования навыков. Эти пространства визуально соответствуют квадратной форме, так как для учебы или работы каждому достаточно хорошо оснащенной квадратной комнаты с ортогональными стенами, полом и потолком.
- Второй тип пространств – для общения / мастер-классов / выставок / концертов. Эти пространства визуально соответствуют круглой форме, так как массовые показы, лекции или выставки удобно проводить в более сложных залах: кольцевая выставка, круглая площадь, полусферические арены.
Типовое здание производственных мастерских состоит из универсальных студий, к которым подключена вода, канализация и вентиляция, что значительно расширяет круг деятельности в подобном пространстве. Также за счет передвижных перегородок данные студии можно объединять между собой. В таких помещениях можно устроить почти любую мастерскую – макетную, мастерскую живописи, мини-производство. Рабочие пространства рассчитаны на 300 человек. Визуально здание и все пространства внутри него имеют квадратную форму, что соответствует выбранной концепции взаимосвязи формы и функции.
Типовое здание выставочных пространств вмещает в себя разный типы залов для выставок, включая конференц-зал на 300 человек. Выставочные пространства так же, как и студии могут объединяться в более крупные за счет передвижных перегородок. Согласно концепции взаимосвязи формы и функции, здание и все пространства в нем имеют круглую или кольцевую форму.
