руководители студии Fuck Context:
«Дипломная студия с броским заголовком была посвящена дискуссии о профессиональной системе ценностей: любой архитектор так или иначе взаимодействует с контекстом, даже если не придает ему значения или сознательно отвергает необходимость подобного взаимодействия. Отсутствие видимого контекста – чистое поле – тоже контекст. По итогам года студенты должны были сформулировать собственное отношение к контексту через свой проект.
Территорией для размышлений стала Трехгорная мануфактура в Москве: существующий план землепользования и застройки (ПЗЗ) предусматривал снос некоторых объектов и возведение новых.
Работа началась с цикла коротких исследований, посвященных разным компонентам контекста: мировоззрению, истории, культурным кодам, городской ткани, пространству и архитектуре. Выполняя эти задания, студенты изучали территорию и параллельно формировали идею собственного проекта: отклик на каждую задачу ложился в основу работы с участками.
Студенты изучали аргументы проектировщиков ПЗЗ и на своем участке самостоятельно принимали решение, сносить ли предложенные к сносу здания или сохранять их, выбирая реконструкцию или иную трансформацию.
Во второй половине года студия перешла к более детальной разработке зданий – у каждого из участников был свой объект. В основе студии лежала идея о том, что характер здания определяет не функция – назначение Трехгорной мануфактуры, построенной как фабричный комплекс, изменилось, – а нечто иное. Каждый из студентов самостоятельно решал, что именно определяет характер здания и на какой из контекстов ему откликаться.
Результатом стали проекты, включающие не только архитектурные объекты, но и видеоэссе о пути размышлений, в результате которых студент пришел к проектному решению».
***
Башня-лабиринт
Дарья ХрамоваБашня-лабиринт. Автор работы: Дарья Храмова. Преподаватели: Наринэ Тютчева, Екатерина Ровнова.
© МАРШ
Башня-лабиринт. Автор работы: Дарья Храмова. Преподаватели: Наринэ Тютчева, Екатерина Ровнова.
© МАРШ
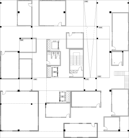
Проект Дарьи Храмовой – башня, расположенная на периферийном участке между промышленной территорией мануфактуры и городской тканью. Проект стоит рассматривать как архитектурно-политический манифест: в ответ на постоянную джентрификацию, в результате которой целые группы людей оказываются лишены права на город, Дарья предложила создать своеобразную вертикальную улицу – башню-лабиринт.
Башня нарушает высотный регламент, превышая отметку в 37 метров. Рост вверх – это и стремление найти новый символ для существующей территории, и желание вышагнуть из окружения постсоветской архитектуры, вместо того, чтобы подстраиваться под него. При этом новый объект не закрывает панораму на значимые исторические здания.
Сложная структура башни-лабиринта с лестницами и переходами воплощает собой пространство живой улицы со всеми сложностями и противоречиями. Ее предназначение в том, чтобы наполняться разными функциями и тем самым выполнять всевозможные желания современного обывателя, для которого визит в здание должен превратиться в увлекательное путешествие.
Внутренняя структура башни, впрочем, вполне рациональна: несколько ядер жесткости и сетка колонн позволяют встраивать между ними модули – о небольших до огромных. Здесь можно найти офисы, кафе, жилье – модули сдаются в аренду. Первые несколько этажей выглядят как хаотичное нагромождение маленьких домиков, а затем структура здания становится более рациональной, чтобы противостоять ветровым нагрузкам. Пространства на разных уровнях соединяются пандусами.
***
Дом-интроверт
Дом-интроверт. Автор работы: Варвара Долгая. Преподаватели: Наринэ Тютчева, Екатерина Ровнова.
© МАРШ
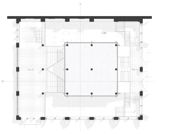
Варвара Долгая решила спроектировать для Трехгорной мануфактуры новое здание, которое рассматривает как культурный артефакт: появившись на площади, образованной историческими корпусами, оно становится важной точкой притяжения, повышая ценность территории.
Сюжет построен на сочетании двух контрастных пространств: библиотеки (места, которое хранит тишину) и зала камерной музыки (места, где решающее значение имеет звук). Автору была важна инклюзивность пространств: не только в смысле доступности, но и в плане значимости для горожан. И библиотеки, и музыкальные залы не очень востребованы в России, но при этом способны дать сильные культурные впечатления.
Ровно наполовину здание заглублено. Библиотека располагается в надземной части, а зал камерной музыки – в подземной. Все этажи выстроены вокруг атриума, силуэт которого напоминает песочные часы. Надземная часть атриума улавливает свет, а подземная – отражает звук.
***
Сценарий
Артемий КондонСценарий. Автор работы: Артемий Кондон. Преподаватели: Наринэ Тютчева, Екатерина Ровнова.
© МАРШ
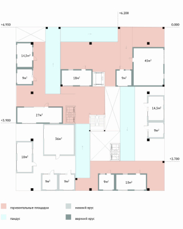
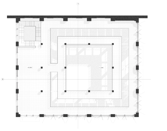
Артемий Кондон работал с Домом Культур, который в советское время был пристроен к зданию XIX века, а сейчас находится на задворках Трехгорной мануфактуры, в темном углу, куда выходят технические коробы кондиционеров. Изучив территорию, Артемий понял, что не хочет сносить здание, а хочет подчеркнуть архитектурный «палимпсест», который образовался за полтора века.
Сохраняется только несущий каркас здания – бетонные колонны и балки перекрытий. Сами перекрытия, ограждающие конструкции и кровля заменяются. В небольшом четырехэтажном здании появляются бар, над ним – амфитеатр и сцена, а в кровле над сценой – фонарь верхнего света. Здание и его характер становятся идеальной декорацией для экспериментальной театральной площадки, а сквозь каркас-скелет из колонн и балок проглядывает фасад здания XIX века с заложенными оконными проемами, а также следы старой лестницы.
Окна могут открываться и закрываться, чтобы показывать здание и его внутреннюю жизнь обитателям Трехгорной мануфактуры, приглашая зрителей. Или же, напротив, скрывать происходящее.
***
