Natsproektstroy headquarters
Copyright: Photograph © Dmitry Chebanenko / provided by IND
A special effect familiar to photo and video enthusiasts – long-exposure night shots that turn moving cars and other light sources into beautifully glowing ribbons – was translated into design language as a light fixture that cuts through the main public zones of the office. The whole picture is reminiscent of catching lightning. Everyone thought catching lightning to be impossible, until the plasma globe (the so-called Tesla ball) appeared – and today anyone can place a captured bolt of lightning on their bedside table.
Photo from the Soliloquy project
Copyright: Photograph © Thomas Griffin / https://torquemag.io/2013/02/interview-thomas-griffin/
The concept is based on the image of perpetual motion – a luminous path of lights installed along the transport arteries. The glowing motif runs through the ground floor of the building, forming the visual centerpiece of the interior and contrasting with the dark core of the office space. We placed our bet on a unique image realized through a lighting concept, and it paid off. The romantic image was inspired by the lights accompanying travelers along the road. It materialized as a fixture with orange glow encircling the building’s core.
In terms of form-making and the active use of curvilinear shapes, we drew not only on the plasticity of road bends but also on the building’s original architecture, which is elliptical in plan. The intrusion of rigid orthogonal forms into such architecture would have looked disharmonious and out of place.
In terms of form-making and the active use of curvilinear shapes, we drew not only on the plasticity of road bends but also on the building’s original architecture, which is elliptical in plan. The intrusion of rigid orthogonal forms into such architecture would have looked disharmonious and out of place.
The symbol of perpetual motion, designed for the “Natsproektstroy” office by IND architects, is a volumetric light fixture suspended on barely visible black cables and composed of side walls made of orange acrylic glass and a bottom face glowing with white light. One might wonder just how significant the effect of a single element can be. However, thanks to reflections on the metallized wall panels, the gray suspended structures, and the glass partitions, it seems that the entire space is somehow subjected to its magic.
Natsproektstroy headquarters
Copyright: Photograph © Dmitry Chebanenko / provided by IND
This distinctive “thread of Ariadne” charts a route through the office, marking the common-use areas. Wherever employees or visitors are, they can easily find their bearings and find an elevator or the meeting room that they need among the many workspaces of different sizes and formats.
Natsproektstroy headquarters
Copyright: Photograph © Dmitry Chebanenko / provided by IND
To avoid excessive contrast or visual strain, the rest of the office interior is finished in restrained, neutral tones: light and dark gray, wood in soft gray-beige shades, and selected pieces of furniture upholstered in olive.
Julia Parfenova, Head of the Interior Department at IND
In the layout of the office floors, we followed our core principles, combining cluster-type open spaces with more compact and private work blocks. Closer to the building’s inner core, we placed meeting rooms designed for different numbers of participants, lounge areas, and café zones with open kitchens, which can be used both for casual meals during the workday and for festive in-house events. During working hours, the coffee zones are suitable for conversations with colleagues as well as for independent work at the bar counter. In designing the office, we aimed for functional flexibility of spaces and provided suspended ceiling structures that can later be used to create additional enclosed rooms.
Various ceiling treatments – alternating suspended structures with open communications painted in light gray, almost white – help to zone the space and highlight specific rooms. Suspended systems are mainly used around the planning core of the Orbital Business Center (a project by UNK Bureau), while along the perimeter, where most workstations are located, the ceiling is left open to create the feeling of greater height and brightness.
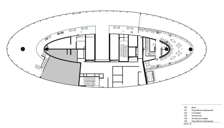
The first floor of the Orbital Business Center, conceived as a large welcome zone for Natsproektstroy’s headquarters, is designed somewhat differently from the main office levels. In the double-height space, white dominates, accented by the gray floor, gray metallic panels, and stainless-steel elements. The abundance of light made it impossible to use the glowing orange ribbon in this particular place, but this glowing orange ribbon is successfully replaced here by the mezzanine railing, made of two-tone glass panels: opaque white below, concealing the slab edges, and transparent orange above, glowing through in both directions.
The ground floor is divided into two parts: one houses a spacious lobby, the other a canteen for company’s staff and visitors. The canteen design echoes the architecture of Orbital business center and develops the central themes of the upper office floors, but in a more intimate, comfortable format. Wooden tables, gray chairs, and orange sofas combine harmoniously with details and décor in a pastoral spirit. The reference feels appropriate, since modern highways cut not only through megacities, but also (and predominantly!) through boundless rural landscapes.
