Дом у Троицкого собора
Санкт-Петербург, набережная реки Фонтанки,130а, литера А.Проектировщик: INTERCOLUMNIUM
Заказчик: ООО «Мегаполис»
Обсуждали: архитектурно-градостроительный облик
Жилой дом по проекту бюро Евгения Подгорнова обсуждали на градсовете во второй и, кажется, последний раз, что можно считать успехом, поскольку речь идет о работе в историческом центре Петербурга.
Дом будут строить на месте Троицкого рынка, все еще действующего, павильоны которого возвели в 1951 году по проекту Лазаря Хидекеля и Льва Носкова. Участок располагается между Фонтанкой, от которой его отделяет всего один ряд доходных домов, и площадью – с Троице-Измайловским собором, построенным в 1835 году по проекту Василия Стасова. По линии бывшего Госпитального переулка участок граничит с комплексом Александровской больницы.
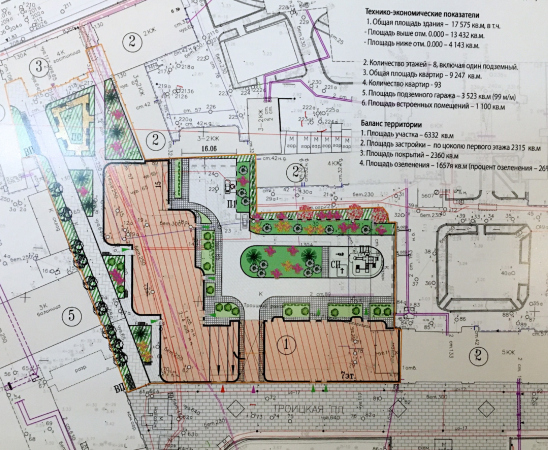
Участок будущей застройки. Проект жилого дома на набережной реки Фонтанки,130а, литера А
INTERCOLUMNIUM, пересъемка с планшета Алены Кузнецовой
Объекты культурного наследия, высотный регламент и соседство с архитектурной доминантой не могли не повлиять на облик дома: это будет фоновая застройка, которая упорядочит довольно рыхлый квартал, равняясь на окружение, но не мимикрируя под него. Один корпус замкнет квартал со стороны Троицкой площади, другой – со стороны бывшего Госпитального переулка, воспроизводя таким образом характерную для центра Петербурга сплошную застройку. Проход от площади до набережной при этом не только сохранится, но и станет более акцентированным.
На предыдущем градсовете у экспертов было много замечаний относительно ризалитов, «мансардного» этажа, цветового решения и влияния здания на контекст. Большинство проголосовало за доработку проекта.
Вариант, представленный на градсовете 10.07.2019. Проект жилого дома на набережной реки Фонтанки,130а, литера А
INTERCOLUMNIUM, пересъемка с планшета Дмитрия Ратникова
В новом варианте многие пожелания были учтены. Ризалиты, выходящие на Госпитальный переулок, заменил ступенчатый корпус, постепенно набирающий высоту к собору. Крышу ближайшей к Фонтанке секции Евгений Подгорнов предложил превратить в террасу, доступную всем жителям дома. Фасад со стороны Троицкой площади удлинился, исчезли эркеры, в противоположную сторону сместилась арка, в целом он стал выглядеть, по словам архитектора, более современно. Последний, чуть отступающий седьмой этаж стал меньше походить на мансарду за счет сплошного остекления. Высота до карниза составила 20 м, что соответствует соседнему зданию, высота кровли − 24 м.
Евгений Подгорнов показал с десяток визуализаций, дающих представление о том, как дом встроится в панорамы города. Эксперты отнеслись к ним довольно придирчиво: сделали замечание, что фотографии летние и кроны деревьев могут скрывать новую архитектуру, предложили совсем убрать кусочек, выглядывающий на набережную Фонтанки. Последний этаж, по всеобщему мнению, стал лучше, но все еще не идеален. Также многие отметили, что фасад в новом варианте не выглядит монотонным, хотя Михаил Мамошин посчитал его слишком схематичным.
Владимир Григорьев назвал главной проблемой места «размер, масштаб и аппетиты: участок большой и для жилого дома не характерный», что сказывается на пропорциях. Однако, как отметил Александр Кононов, прошлый градсовет принес проекту ощутимую пользу, хоть на нем и пришлось «в ручном режиме отлаживали 820-й закон». Мнение Святослава Гайковича можно привести как общий итог: «собор продолжает доминировать, дом опасности не представляет».
