Михаил Филиппов, архитектор, заведующий кафедрой архитектуры Российской академии живописи, ваяния и зодчества Ильи Глазунова
Дипломные работы кафедры охраны и реставрации культурного наследия являются прежде всего исследовательскими проектами. Они требуют работы в архивах и музеях, обмеров памятников и контактов с местными властями. Среди дипломов этого года хочу отметить два магистерских проекта, выполненных очень тщательно. Я рад, что фигура митрополита Платона (Левшина), оказавшего влияние на развитие классической архитектуры, получила должное освещение в дипломе Алины Власовой по реставрации Спасо-Вифанской семинарии в Сергиевом Посаде. Она не просто предложила приспособить ансамбль под православную гимназию, но и разработала концепцию музея Платона Левшина. Что касается Суконной фабрики в Павловской слободе, то этот грандиозный ансамбль создан в те годы, когда архитектуру не делили на военную, промышленную и дворцовую. Фактически это классицистический загородный дворец, и хорошо было бы подчеркнуть его великолепие подобающей функцией – например, сделать здесь филиал крупного художественного музея. Хотя Ольга Титкова пошла по другому пути. Дипломы бакалавров, естественно, менее масштабны, но функционально хорошо продуманы и имеют качественную художественную подачу. Проект завода «Кристалл» в Калуге, на мой взгляд, готов для концептуальной презентации заказчику.
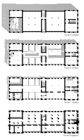
Валерий Хабаров. Восстановление ликеро-водочного завода «Кристалл» в Калуге. Руководитель А.И. Томилова
© Валерий Хабаров
Восстановление ликероводочного завода «Кристалл» в Калуге
Валерий Хабаров, бакалавриатРуководитель Томилова А.И.
Ансамбль казенного винного склада и завода в Калуге был построен в рамках питейной монополии 1894 года, введенной министром Витте, по образцовому проекту гражданского инженера В. Пясецкого. Аналогичные объекты появились в восьми городах России: Ростове-на-Дону, Туле, Рязани, Нижнем Новгороде, Ярославле и т.д. Большая их часть сегодня поменяла свою функцию, что позволяет им жить дальше. Калужский завод был национализирован после революции 1917 года и сохранял функцию вплоть до банкротства 2010 г. Ансамбль завода был включен в госреестр объектов культурного наследия регионального значения в 2019 г. Для Калуги здание завода – одна из важнейших достопримечательностей, встречающих гостей города на пути от вокзала в центр. Есть запрос на восстановление ансамбля и территории. В 2021 г. у завода появился новый собственник, но в апреле 2022 г. частично обрушились своды, так как металлические несущие конструкции оказались демонтированы. Сейчас главное здание винного склада выставлено на продажу. Оно и есть предмет проекта.
В проекте предложено провести восстановление недостающей кирпичной кладки, аналогичной исторической, восстановление отсутствующих оконных заполнений, очистку поверхностей от грязи и биоцидную обработку, вычинку кирпича, реставрацию и укрепление сводов Манье, реставрацию кровли, штукатурных частей, реставрацию в интерьерах напольной метлахской плитки, дверной фурнитуры и т.д. В здании предлагается устроить общественный центр с музейными, торговыми, офисными зонами, помещениями досуга и общепита. В частности, на первом этаже, в бывшем помещении приема посуды, удобно расположить кафе с пекарней, магазином и летней верандой, а прилегающий подвал использовать для горячего и холодного цехов. В южной части здания отведено место для Музея винного дела Российской империи.
Реставрация и приспособление Подгорной мануфактуры Зиминых в Орехово-Зуево
Надежда Зайнулина, бакалавриатРуководитель А.И. Томилова
Комплекс Подгорной мануфактуры Зиминых занимает важное место среди промышленных объектов Московской области и отличается особыми объемно-пространственными, архитектурно-стилистическими решениями. Он связан с большим количеством исторических событий и личностей, играет важную роль в истории развития города Орехово-Зуево, обладает высокой историко-культурной ценностью. В представленном проекте планируется восстановление фасадов и интерьеров на период начала ХIХ века, приспособление к современному использованию одного из прядильных корпусов Подгорной мануфактуры Зиминых и благоустройство прилегающей территории. Предусматривается реставрация кирпичной кладки, а также сохранившихся и воссоздание утраченных декоративных элементов, воссоздание исторических оконных и дверных блоков по сохранившимся образцам и архивным материалам, демонтаж современного навеса с яркой надписью, поздних пристроек с последующим воссозданием юго-западного фасада по аналогу северо-восточного фасада, реставрация металлического ограждения кровли, устройство организованного водоотвода и многое другое.
Для сохранения важных промышленных комплексов в Орехово-Зуево и окрестностях и привлечения к ним интереса у общественности и городской администрации проектным предложением предусмотрено расположить в прядильном корпусе Подгорной мануфактуры Зиминых музей промышленной архитектуры города Орехово-Зуево и Орехово-Зуевского района, где планируется разместить выставочные залы, основу экспозиции которых будут составлять тщательно подобранные материалы, дающие представление о истории промышленности этого района.
Реставрация и приспособление Спасо-Вифанской семинарии в Сергиевом Посаде
Алина Власова, магистратура
Руководитель Э.Л. Базарова
Спасо-Вифанская семинария была основана в 1797 г. митрополитом Московским Платоном (Левшиным) при Спасо-Вифанском монастыре недалеко от Троице-Сергиевой Лавры. Архитектурный ансамбль постепенно развивался в течение XIX века: Старый корпус (1979-1800 гг., архитектор С. Болдырев), Новый корпус (1826-1833 гг., архитектор М. И. Бове) и Столовый корпус (1832 г., архитектор неизвестен) семинарии дополнились вспомогательными сооружениями – больницей (1842 г., не сохранилась), баней (1842 г.), корпусом для преподавателей (1867 г., не сохранился), водонапорной башней (нач. XX в.) и др. На территории семинарии была выстроена гостиница (1890-1893 гг., арх. А.А. Латков) при Спасо-Вифанском монастыре. После 1917 г. комплекс Спасо-Вифанской семинарии использовался не по назначению, постепенно приходя в плачевное состояние. Сегодня все здания находятся под угрозой разрушения, новый корпус руинирован после пожара в 1993 г.
В проекте предлагается реставрация сохранившихся зданий и возрождение их образовательной функции, благодаря открытию здесь мужской православной гимназии, а также мемориального музея митрополита Платона (Левшина). Помимо основных корпусов – Старого, Нового и Столового, планируется добавить в комплекс гимназии здания гостиницы, бани и водонапорной башни. Реставрация и возрождение образовательной функции в зданиях комплекса Спасо-Вифанской семинарии, а также открытие здесь музея, позволит включить этот, ныне полуразрушенный, ансамбль в современный контекст Сергиева Посада и повысить его историко-культурный и образовательный потенциал не только в Московской области, но и в России в целом.
Реставрация и приспособление Павловской суконной фабрики в Павловской слободе
Ольга Титкова, магистратура
Руководитель Э.Л. Базарова
Павловская фабрика в Московской области – один из старейших сохранившихся производственных комплексов России. Почти за три века существования исторически ценный архитектурный объект сменил несколько функций: суконная фабрика (1730 г. – середина XIХ в.), штаб артиллерийской бригады (середина XIХ в. – 1921 г.), оружейный артиллерийский склад, выведенный из стен Кремля (1921- 1946 гг.), завод по ремонту техники и военная часть (1946-2012 гг.). С 2016 года архитектурный ансамбль фабрики является выявленным объектом культурного наследия, который остро нуждается в сохранении и развитии.
Проектом предполагается условно разделить территорию ансамбля на две части. В здании бывшего ткацкого корпуса предусмотрено размещение школы. Остальные здания комплекса фабричных корпусов будут формировать многофункциональный культурный кластер. Подробно исследуемый прядильно-чесально-паровой корпус планируется приспособить под Краеведческий музей.
Башню в центральной части музейного здания предлагается восстановить в формах 1838 года по архивным чертежам, а в пространстве четырех центральных колонн, поддерживающих ее, установить круглый в плане панорамный лифт. Основная часть постройки занята единым экспозиционно-выставочным пространством длиной в 80 м. Предполагается создать трансформируемую гибкую среду без стационарных перегородок, что позволит свободно менять экспозицию.
