RSS
Дом в стиле Райта
Фотография © Роман Леонидов

Дом в стиле Райта

информация:

  • статус
    реализовано
  • даты
    03.2016 / 03.2017 — 03.2025
  • функция
    Жилой / индивидуальный жилой дом
  • площадь участка
    0,24 га
  • общая площадь
    604,83 м2
  • этажность
    2
Роман Леонидов
Studio of Roman Leonidov / Россия

авторский коллектив

Автор проекта – Роман Леонидов; архитектор – Светлана Фианцева

Дом в стиле Райта
Фотография © Роман Леонидов

Архи.ру об этом объекте:

25.02.2026

Алёна Кузнецова. Летящая горизонталь

«Дом в стиле Райта», как называет его архитектор Роман Леонидов, указывая на источник вдохновения, построен на сложном участке клиновидной формы. Чтобы добиться камерности и хороших видов из окон, весь объем пришлось сместить к дальней границе, повернув дом «спиной» к соседним особнякам. Главный фасад демонстрирует приемы, проверенные в мастерской временем и опытом: артикулированные горизонтали, невесомая кровля, а также триада материалов – светлая штукатурка, темный сланец и теплое дерево.

Дом проектировался для семьи из четырех человек в одном из подмосковных коттеджных поселков. На архитектурные решения большое влияние оказал участок. С одной стороны сложная клинообразная форма при сравнительно небольшой площади в 24 сотки, с друг...   читать дальше
Дом в стиле Райта
Фотография © Роман Леонидов

описание:

Этот эффектный загородный дом расположен на живописном участке в ближнем Подмосковье. В его архитектуре читаются мотивы Ф. Л. Райта, с акцентом на горизонтальные линии и гармонию с природой.

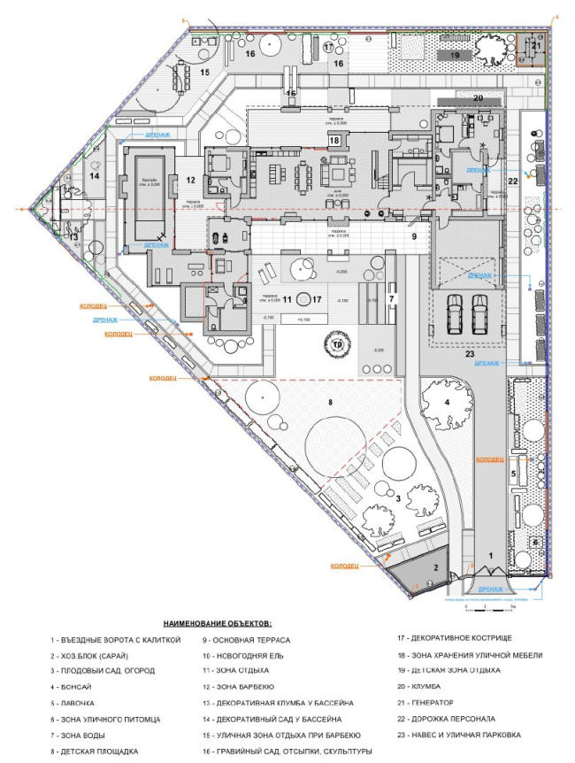
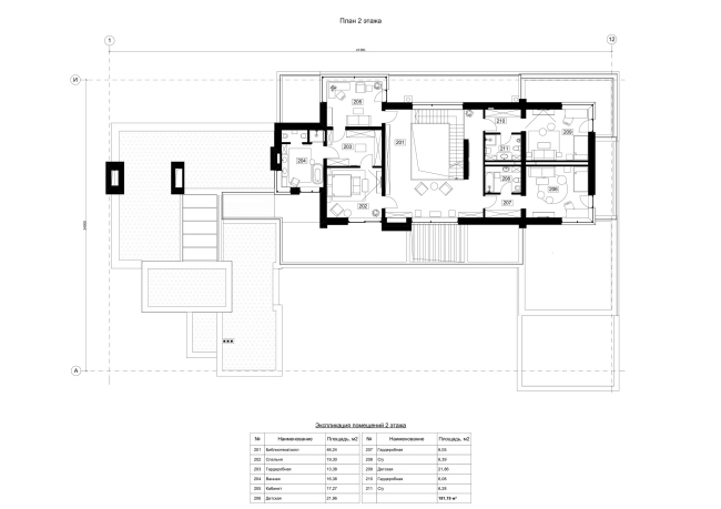
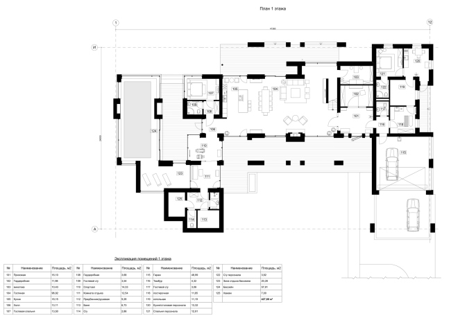
Сложная форма участка потребовала особого решения: здание было смещено вглубь территории, чтобы создать камерное и спокойное пространство для владельцев. В композиции чётко выделяются три функциональные зоны: центральный двухэтажный жилой объём, правая часть с гаражом и помещениями для персонала, а также левая зона отдыха с бассейном, русской баней и хамамом. Из каждого помещения предусмотрен выход на балкон или террасу, что усиливает ощущение связи с природой.

Дом стал примером идеального баланса эстетики и функциональности. Чёткое зонирование, продуманные детали и использование натуральных материалов превратили его в пространство, где каждый день ощущается как отдых.

архитектурно-планировочные решения:

Конструкции
 
Фасадные конструкции. Фундаменты – монолитная ж/б плита. Конструкция несущих ограждающих стен 1 и 2 этажей – облегченная кирпичная кладка колодцевого типа с жесткими диафрагмами. Внутренние несущие стены наземных этажей – также монолитные ж.б. и сплошная кладка из полнотелого кирпича.
Кровля скатная
Оконные системы. Оконные блоки и витражи индивидуального изготовления алюминиевые энергоэффективные с защитой от УФ-лучей и заполнением одно- и двухкамерными стеклопакетами.
 

Дом в стиле Райта
Фотография © Роман Леонидов
Дом в стиле Райта
Фотография © Роман Леонидов
Дом в стиле Райта
Фотография © Роман Леонидов
Дом в стиле Райта
Фотография © Роман Леонидов
Дом в стиле Райта
Фотография © Роман Леонидов
Дом в стиле Райта
Фотография © Роман Леонидов
Дом в стиле Райта. Генеральный план
© АБ Романа Леонидова
Дом в стиле Райта. План 1 этажа
© АБ Романа Леонидова
Дом в стиле Райта. План 2 этажа
© АБ Романа Леонидова

Архитекторы – партнеры Архи.ру:

  • Валерий Каняшин
  • Екатерина Кузнецова
  • Андрей Романов
  • Андрей Гнездилов
  • Евгений Зеленов
  • Александр Скокан
  • Олег Мединский
  • Андрей Асадов
  • Александр Асадов
  • Михаил Канунников
  • Дмитрий Буш
  • Илья Машков
  • Степан Липгарт
  • Татьяна Зульхарнеева
  • Сергей Переслегин
  • Павел Андреев
  • Евгений Подгорнов
  • Сергей Никешкин
  • Григорий Мустафин
  • Евгений Новосадюк
  • Виталий Лутц
  • Дмитрий Ликин
  • Георгий Трофимов
  • Юлия Солдатенкова
  • Полина Воеводина
  • Сергей Чобан
  • Станислав Белых
  • Дмитрий Остроумов
  • Сергей Труханов
  • Всеволод Медведев
  • Мария Ахременкова
  • Юлиана Княжевская
  • Сергей Кузнецов
  • Зураб Басария
  • Вера Бутко
  • Юлия Тряскина
  • Николай Переслегин
  • Даниил Лоренц
  • Игорь Шварцман
  • Энди Сноу
  • Александр Котенков
  • Константин Ходнев
  • Раис Баишев
  • Юлий Борисов
  • Борис Воскобойников
  • Михаил Давыдов
  • Олег Шапиро
  • Никита Явейн
  • Марина Егорова
  • Антон Надточий
  • Антон Яр-Скрябин
  • Алексей Орлов
  • Владислав Андреев
  • Дмитрий Сухов
  • Николай Кикава
  • Григориос Гавалидис
  • Наталья Сидорова
  • Анастасия Абашева
  • Владимир Плоткин
  • Александра Кузьмина
  • Елена Пучкова
  • Сергей Скуратов
  • Иван Кожин
  • Александр Самарин
  • Ростислав Цайзер
  • Андрей Михайлов
  • Ерлан Бекмухамедов
  • Василий Крапивин
  • Наталия Шилова
  • Игорь Членов
  • Тимур Абдуллаев
  • Екатерина Абдуллаева
  • Маргарита Авдышева
  • Левон Айрапетов
  • Александр Аношкин
  • Алексей Афоничкин
  • Владислав Бек-Булатов
  • Антон Белов
  • Татьяна Бузулукова
  • Петр Васильев
  • Данило Вукосавлевич
  • Алина Георгиевская
  • Павел Гордеев
  • Илья Гринберг
  • Никита Демидов
  • Никита Дергунов
  • Наталья Жилкина
  • Алексей Зародов
  • Екатерина Зырина
  • Алексей Ильин
  • Дарья Ильина
  • Олег Карлсон
  • Алексей Кибкало
  • Денис Кувшинников
  • Анна Куликова
  • Алексей Курков
  • Данил Куров
  • Мария Кутай
  • Евгений Кутай
  • Иван Кычкин
  • Антон Ладыгин
  • Дмитрий Лапин
  • Борис Левянт
  • Илья Левянт
  • Катерина Левянт
  • Валерий Лукомский
  • Антон Лукомский
  • Екатерина Ляпунова
  • Иса Магомедов
  • Сергей Марков
  • Елена Мерцалова
  • Николай Миловидов
  • Станислав Михаловский
  • Сергей Мичурин
  • Олеся Могилевская
  • Филипп Никандров
  • Мария Николаева
  • Дмитрий Овчаров
  • Сергей Пергаев
  • Виктор Перов
  • Алексей Полищук
  • Роман Пономарёв
  • Валерия Преображенская
  • Виктория Раубо
  • Василий Рыбаков
  • Николай Рыбаков
  • Мария Салех
  • Александр Стариков
  • Илья Уткин
  • Елисей Чакан
  • Бориша Чорович
  • Олег Шурыгин
  • Дмитрий Шурыгин

Проект из каталога (случайный выбор)

Постройки и проекты (новые записи):

  • Деловое пространство «ПЛЭЙН»
  • Porta
  • Детский сад на 200 мест в Жилино-1
  • Архитектурная концепция кластера Ломоносов-2
  • Клубный дом в 1-м Казачьем переулке
  • Частный дом в Ленинградской области
  • IT-кластер TravelLine в Йошкар-Оле
  • Гостиничный комплекс Cosmos Selection Derbent 5
  • Офис компании АльфаСтрахование

Новости российской архитектуры:

Курган памяти
08.05.2026

Курган памяти

Никита Явейн
Баня по-царски
07.05.2026

Баня по-царски

Ольга Смоленская
«Заря» над волнами
07.05.2026

«Заря» над волнами

Дарья Виноградова
Белый конгломерат
07.05.2026

Белый конгломерат

Александр Томашенко, Андрей Горелов, Василий Сошников, Иван Колманок, Николай Фугаров, Владимир Плоткин