Архитектурный облик этого сегмента Москвы начал складываться в брежневское время и продолжает формироваться до сих пор. Из соседних достопримечательностей отметим вытянутый по горизонтали Институт космических исследований (Профсоюзная, 84, строение 12, 1968 – 1978, архитектор Юрий Платонов), 22-этажную башню – Центральный государственный архив Москвы (Профсоюзная, 82, 2003-2006), БЦ «Лотте» (Профсоюзная, 65, 2013, ТПО «Резерв»). Все они идут вдоль одной из главных артерий юго-запада – Профсоюзной улицы, но, если отступить от этой магистрали вглубь кварталов, то мы попадем в хаос нерегулярной уличной сетки, локальных промзон, торговых центров и жилых массивов.
Территория получила новый толчок к развитию после запуска БКЛ и открытия станции «Воронцовская». Сейчас недалеко от станции строятся ЖК «Архитектор» (бюро «Инград Проект») и ЖК EVER (GAFA Architects) – совокупно 300 000 м² жилья.
Когда архитекторы Kleinewelt начинали работать над «STONE Калужская», они поставили перед собой задачу, во-первых, вписать комплекс в уже имеющийся эклектичный контекст и, во-вторых, предусмотреть взаимодействие с архитектурой, которая появятся в будущем. Бизнес-центр расположен в непосредственной близости от метро «Воронцовская» и в определенном смысле является воротами в район, претендует на роль замкового камня всей территории.
Структура
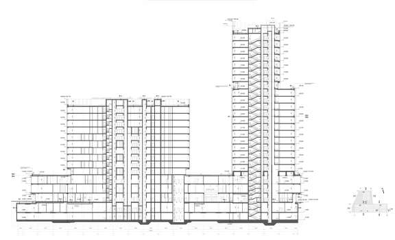
«STONE Калужская» – офисный комплекс класса А, состоящий трех башен, две из которых расположены на общем стилобате. Полезная площадь – порядка 84 000 м², из них 58 000 м² офисных помещений и 14 000 м² ритейла, кафе и публичных зон.Stone Калужская
© Kleinewelt Architekten
Поэтажные планы предусматривают как крупные офисные пространства до 1400 м², так и небольшие модули по 50-200 м². Высота потолков достигает 3,65 метра. Во входных зонах высота двусветных лобби доходит до восьми метров. Панорамное остекление гарантирует естественную освещенность и открывает виды на город.
Комплекс оснащен современными инженерными системами и скоростными лифтами. Для автомобилистов предусмотрен двухуровневый подземный паркинг на 330 машин с зарядками для электромобилей, а также вело- и самокатные парковки, места для каршеринга и такси. Перед зданием запланирована благоустроенная площадь – садово-ландшафтный сквер с произведениями монументального искусства.
Образ
Архитектурное бюро Kleinewelt и девелоперская компания STONE давно знают друг друга. Вместе они построили несколько офисных зданий на Ходынке и во Мневниках. Работа над «STONE Калужская» шла в комфортном режиме, было много итераций, связанных с поиском объемно-пространственных решений. Архитекторы вложили немало сил в проектирование на микроуровне, доведении до ума мельчайших деталей.Екатерина Мурашко, главный архитектор проекта, ассоциированный партнер Kleinewelt
«Это была внимательная, вдумчивая работа над образом и внутренним наполнением, в том числе с участием заказчика. Мы часто встречались, обсуждали варианты. Цель была создать не только удобное, классное рабочее пространство внутри комплекса, но и дать ему выразительный, живой и современный силуэт, который органично впишется в постепенно обновляющийся градостроительный контекст района».
В результате комплекс получился характерно абстрактным, без каких-либо буквальных аллюзий, но со сложной ассиметричной пространственной композицией, разнообразным членением объемов по вертикали и горизонтали.
Stone Калужская
© Kleinewelt Architekten
23-этажная башня К1 и 13-этажная К2 стоят на трехэтажном стилобате, 20-этажная К3 – отдельно. Башни К1 и К3 в верхней своей части имеют кубические объемы со скошенной линией крыш. Такое решение позволило избежать монотонности и добавить динамики общей композиции, а за счет «подрезок», разделяющих башни на объемы, появился шанс сделать на эксплуатируемой кровле зеленые террасы.
Stone Калужская
© Kleinewelt Architekten
Корпус К2 задуман как самый камерный из трех, именно здесь располагаются офисы минимальной площади 46 м². Корпус представляет собой параллелепипед, вытянутый вдоль улицы Обручева. Ровно напротив него, на другой стороне улицы Обручева, расположено такое же вытянутое по горизонтали здание Института космических исследований РАН, и оба эти объекта, по идее, должны рифмоваться.
Stone Калужская
© Kleinewelt Architekten
Башни К1 и К2 стоят на стилобате по-разному: К2 отделен от него линией заглубленного остекления, К1 опирается на ряд мощных колонн, а стилобат свободно проходит под ним – по крайней мере, есть такой визуальный эффект.
Stone Калужская
© Kleinewelt Architekten
Наконец, башня К3, стоящая отдельно от стилобата, имеет яркую особенность: на уровне седьмого этажа из ее объема «вырезан» угол, за счет чего получилась нависающая над входом внушительная консоль. Именно эта деталь первой привлекает внимание людей, выходящих из метро «Воронцовская», и становится главным акцентом композиции.
В проекте архитекторы в сжатом, концентрированном виде выразили архитектурный код района, бессистемно застроенного домами разной высоты и различных геометрических форм.
Фасады
Проектировщики Kleinewelt разработали три типа фасадов, что, с одной стороны, привнесло в проект разнообразие, а с другой, обеспечило лаконичность образа без лишних усложнений.Первый тип применяется на основных объемах башен: это панорамное остекление, дополненное П-образными ламелями. Ламели выполнены из металла с порошковой покраской в светло-серый, почти белый цвет и вынесены на 450 миллиметров от стен. Благодаря этому стеклянные здания не растворяются в окружающем пространстве, а сохраняют четкий силуэт. Дополнительный штрих – расположенные в шахматном порядке глухие вентстворки.
Вечером подсветка ламелей, которая была отдельной архитектурной задачей, выявляет геометрию комплекса и придает корпусам скульптурную выразительность.
Stone Калужская
© Kleinewelt Architekten
Второй тип – фасады верхних кубов. Здесь также используется панорамное остекление, но с заглубленными вентилируемыми створками, которые идут в строгом ортогональном порядке. За счет пластики и глубины возникает дополнительная игра светотени, обогащающая визуальное восприятие поверхности. При всей выразительности система остается лаконичной и лишенной избыточного декора.
Третий тип фасадов – это стилобат. Его внешние стены представляют собой сочетание панорамного остекления и широких карнизов. Стеклопакеты вставлены в тонкие рамы. Стилобат сквозной и проницаемый: через центральный вход можно попасть во внутренний атриум с эскалаторной группой, обеспечивающей доступ на верхние этажи, а также пройти пространство насквозь, от метро к улице Обручева.
Стекло
Для остекления фасадов используется просветленнное стекло со светоотражающим напылением. Оно практически не имеет характерного зеленого оттенка, обычного для флоат-стекла, что подчеркивает чистоту и кристальность поверхностей. Такой выбор характерен для архитектуры премиального класса, где важны максимальная прозрачность и естественная цветопередача.Но есть акцентные, заглубленные этажи, например, между стилобатом и башнями или в верхней трети самих башен. Здесь намеренно применено стекло с меньшей отражающей способностью. Оно почти не зеркалит окружение, поэтому выглядит темнее. Такой прием подчеркивает сложную ритмику фасадов и создает впечатление, что верхние блоки комплекса парят без опор.
В заглубленных этажах стоят колонны, отделанные анодированным алюминием. Серебристый, с мягким блеском материал делает эти опоры визуально легкими. У колонн особая ромбовидная форма, и к фасадной плоскости они подходят не гранью, а углом, причем слегка закругленным. Подобные мелочи дают представление о том, до какой детализации бюро Kleinewelt продумывает проекты.
Архитекторы говорят, что стараются не уходить в чрезмерное декорирование, обычно действуют лаконично, ограниченным набором приемов, но при этом сами приемы доводятся до абсолюта.
Если подытожить, бизнес-центр «STONE Калужская» объединил в себе ясность и лаконичность геометрических форм с изощренной общей композицией, пристальным выбором материалов и внимательной проработкой деталей. Архитекторы Kleinewelt предложили решение, которое одновременно перекликается с наследием района и формирует образ будущего. В этом сочетании масштабности, контекста и детализации «STONE Калужская» действительно выступает как новый ориентир для юго-запада Москвы.






