Stone Калужская
© Kleinewelt Architekten
Stone Калужская
информация:
-
статус
проект -
даты
— 2024 -
место
Москва Старокалужское шоссе, вл. 64/1 -
координаты
55.659280, 37.536558 -
функция
Административно-офисный / офисный комплекс -
теги
Стекло -
общая площадь
96 000 м2 -
этажность
23 и 20

Николай Переслегин
Nikolay Pereslegin / Россия
Сергей Переслегин
Sergey Pereslegin / Россия
Георгий Трофимов
Georgy Trofimov / Россия
Екатерина Мурашко
РоссияKleinewelt Architekten
Kleinewelt Architekten / Россияавторский коллектив
партнеры, заказчики, смежники
Stone Калужская. 2025
© Kleinewelt Architekten / предоставлено пресс-службой Москомархитектуры
Архи.ру об этом объекте:
Людмила Лунина. Замковый камень
Еще недавно премиальные жилые и офисные комплексы в Москве воспринимались как привилегия центра. Сегодня ситуация меняется: качественная архитектура выходит за пределы Третьего транспортного кольца и появляется на окраинах. Бизнес-центр «STONE Калужская» – один из таких примеров. Подобные проекты децентрализуют мегаполис и делают престижными жизнь и работу в любой части города.
Бизнес-центр STONE Калужская три деловых корпуса и торговая галерея расположен на пересечении улицы Академика Семенихина и Старокалужского шоссе. Точный адрес Старокалужское шоссе, владение 64/1, строение 1. Сейчас идет его активное строитель... читать дальшеStone Калужская. 2025
© Kleinewelt Architekten / предоставлено пресс-службой Москомархитектуры
описание:
Информация предоставлена пресс-службой Москомархитектуры. 10.04.2025
Офисный квартал у метро «Калужская» получит сложную объемно-пространственную структуру, формирующую выразительный силуэт. Суммарная поэтажная площадь проекта составит 96 тысяч квадратных метров. Об этом рассказал главный архитектор Москвы, первый заместитель председателя Комитета по архитектуре и градостроительству (Москомархитектура), входящего в Комплекс градостроительной политики и строительства столицы, Сергей Кузнецов.
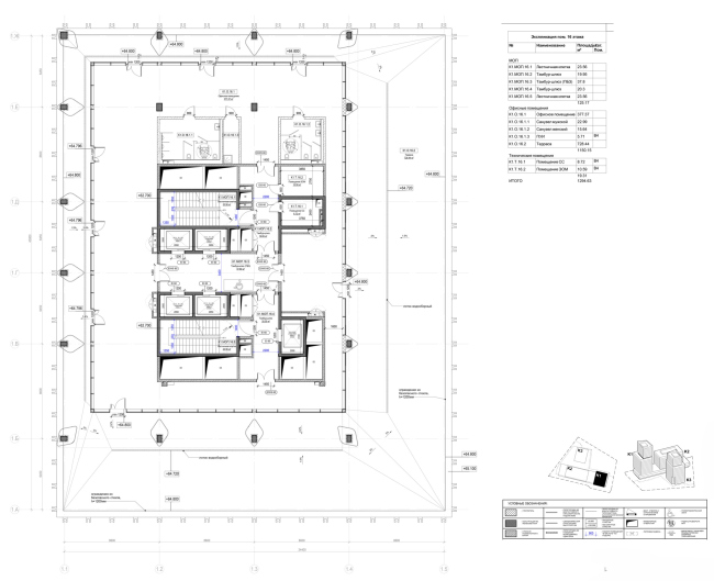
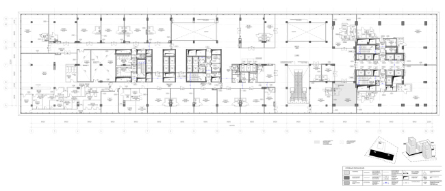
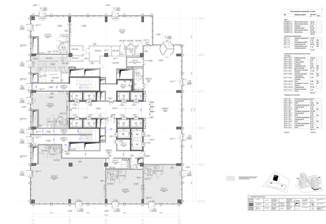
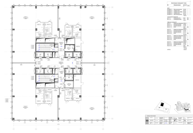
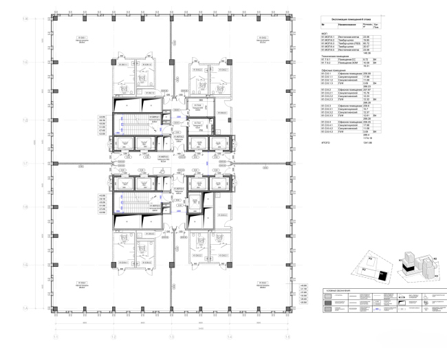
Комплекс будет включать три разноэтажных корпуса, два из которых объединит трехэтажный стилобат, где разместится инфраструктура: кафе, рестораны, столовая, торговые помещения, фитнес-центр, конференц-зал.
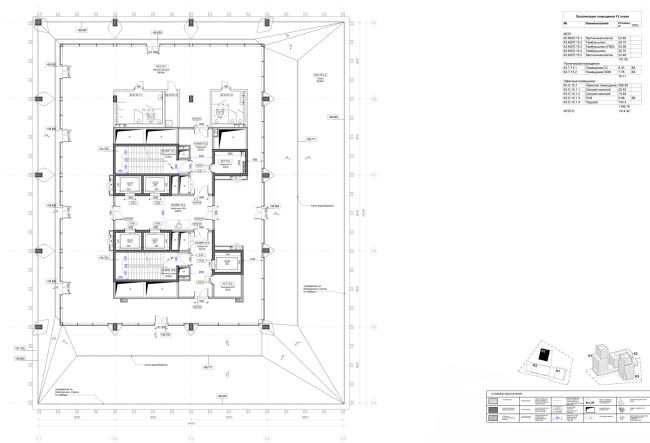
«Обращенные к площади офисные башни высотой в 23 и 20 этажей будут завершаться парящими стеклянными объемами, отделенными от “оснований” с помощью террас – такая композиционная пауза подчеркивает двухчастность формы и визуально обогащает силуэт. Расположенный в глубине участка третий, 13-этажный корпус, напротив, представляет собой статичный и строгий объем, вытянутый вдоль стилобата. Архитектурным акцентом башни, находящейся рядом с выходом из метро и создающей welcome-эффект для территории квартала, станет нависающая на уровне шестого этажа консоль», – отметил Сергей Кузнецов.
Москомархитектура выдала свидетельство на архитектурно-градостроительное решение (АГР) данного проекта. Концепция разработана бюро Kleinewelt Architekten.
Архитектурное решение квартала направлено на интеграцию проекта в окружающее городское пространство, а благоустроенная площадь возле него станет новой точкой притяжения жителей района.
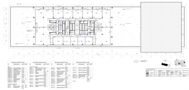
Корпуса офисного квартала будут выполнены в панорамном остеклении в сочетании с утонченными вертикальными панелями, расположение которых задает динамику фасада, устремленную ввысь. Для высотных башен будет использован архитектурный прием со скошенным ограждением кровель, которые задают характер проекта и продолжают фасадную линию.
В подземной части комплекса разместится двухуровневый подземный паркинг на 330 машино-мест, въезд в который предусмотрен со стороны Старокалужского шоссе.
Бизнес-центр «STONE Калужская» девелопер STONE построит по адресу: Старокалужское шоссе, з/у 64/1, вблизи станции метро «Воронцовская» Большой кольцевой линии и станции «Калужская» радиальной линии. Перед комплексом будет благоустроено общественное пространство: появятся места для отдыха и работы на открытом воздухе.
Новый офисный квартал станет современным архитектурным эпицентром Черёмушек и Обручевского района Москвы. Будущих посетителей и сотрудников встретит просторная, благоустроенная общественная площадь, а также трёхэтажная галерея с ресторанами, коворкингами, детскими игровыми центрами, экспозиционными и торговыми пространствами.
Офисные башни открывают пространство площади жителям города благодаря высокой подсечке, создающей эффект открытости и доступности. Парадная консоль притягивает взгляд и интуитивно направляет к главному входу комплекса.
Три корпуса офисного квартала на Старокалужском шоссе дополнят панораму Юго-Западного округа Москвы. Выразительная объёмная композиция и динамичные, устремлённые вверх завершения зданий, формирующие притягательный живой силуэт, сделают комплекс не только центром деловой и общественной жизни, но и новой архитектурной достопримечательностью района.
Будущих посетителей и сотрудников встретит просторная, благоустроенная общественная площадь с разнообразными зонами отдыха и досуга. Отсюда можно будет легко попасть в кафе и магазины, расположенные на первых этажах, а также в трёхэтажную торговую галерею, протянувшуюся с запада на восток вдоль стилобата.
Две башни, обращённые к площади, завершены парящими стеклянными объёмами, отделёнными от оснований этажами террас. Такая композиционная пауза подчёркивает их двухчастность и визуально обогащает силуэт. Третий корпус, расположенный в глубине участка, напротив, представляет собой статичный и строгий горизонтальный стеклянный объём, вытянутый по оси стилобата. Он служит своеобразным фоном для расположенных перед ним башен.