Агентство «Центр» начало работу в Анадыре по приглашению местной администрации в феврале текущего года. Задача – превратить неиспользуемое здание бывшего гаража на территории Чукоткоммунхоза, расположенного в середине промзоны на краю города, но почти на берегу лимана, – в современное и инновационное общественное пространство под названием АНГАР. Эксперты «Центра» несколько раз приезжали в Анадырь, встречались с городским начальством и, что надо думать важнее, с местной молодежью, выясняли потребности, вкусы и пристрастия, провели очные встречи и анкетирование, а также сравнительный анализ разных городских локаций, наиболее подходящих для проекта. У проекта появились группы в Instagram, telegram, vk.
Исследование показало, с одной стороны, очевидные вещи: город труднодоступен, даже самолеты туда нередко отменяют, но наделен управляющей функцией как столица округа, кроме того в нем развивается добывающая промышленность, зарплаты сравнительно высокие, молодежь прирастает и даже центр достаточно компактен и малоэтажен, то есть отвечает, во всяком случае по масштабу, идеалам современной урбанистики. К слову, смотрим на фотографии в Яндексе – город выглядит неплохо, фасады панельных домов, высотой в основном до пяти этажей, санированы, пусть не всегда очень уж красивы, но аккуратны, на улицах чисто, единственная, кажется, гостиница небольшая, но выглядит прилично и даже современно; городской собор – деревянный, что тоже добавляет ему и сдержанности, и обаяния.
фотографии Марии Седлецкой:
Бывший гараж, будущий молодежный общественный центр АНГАР в Анадыре, существующее положение
Фотография © Мария Седлецкая
С другой стороны, при исследовании стали очевидны важные детали – во-первых, на западную окраину города люди приходят любоваться закатами, то есть она уже любима романтической частью населения. Во-вторых, несмотря на то, что город в целом обеспечен молодежными центрами, скажем так, официального плана в духе дворцов пионеров, неформальных мест под теплой крышей нет.
Ангар расположен недалеко от улицы Отке – она начинается в центре, у горадминистрации, и опоясывает всю северную часть города – и к нему есть отдельный проезд и проход, но в контексте промзоны его необходимо выделить контрастом, сохранив, однако, идентичность и отсылки к промышленному прошлому. Центр должен быть всесезонным, теплым и комфортным, с возможностью выбраться на улицу летом. Было замечено немало других деталей – к примеру, зимой снег вокруг здания скапливается на южном углу, вероятно потому что ветер дует с воды.
Удачно, что проект неформального центра молодежной культуры поддерживает администрация Чукотского округа. По словам его правительства, проект АНГАРа стал частью новой социально-экономической политики Дальнего Востока.

Роман Копин,
губернатор Чукотского автономного округа:
«На встречах с жителями, активной молодежью региона я неоднократно слышал запрос на подобное пространство. У молодёжи Чукотки много креативных идей, но на сегодняшний день нет площадки для воплощения их в жизнь. Нам предстоит серьезная работа по реализации этого проекта. Мы планируем показать концепцию на нескольких форумах и обсудить будущий проект с федеральными властями. Это будет молодежный досуговый центр нового формата, предоставляющий открытые возможности для саморазвития и организации досуга молодежи округа».
губернатор Чукотского автономного округа:
«На встречах с жителями, активной молодежью региона я неоднократно слышал запрос на подобное пространство. У молодёжи Чукотки много креативных идей, но на сегодняшний день нет площадки для воплощения их в жизнь. Нам предстоит серьезная работа по реализации этого проекта. Мы планируем показать концепцию на нескольких форумах и обсудить будущий проект с федеральными властями. Это будет молодежный досуговый центр нового формата, предоставляющий открытые возможности для саморазвития и организации досуга молодежи округа».
Итак, специалисты Агентства «Центр» собрали и проанализировали как глобальную инфомацию – о социально-экономических особенностях города, так и точечную, о запросах будущих участников проекта и об объекте.

Мария Седлецкая,
эксперт, ведущий аналитик Агентства стратегического развития «ЦЕНТР»:
«Анадырь – специфический по характеру город. Его можно считать самым удаленным не только потому, что это самый восточный город РФ, расположенный на расстоянии тысячи километров от крупнейших городов европейской части страны, но и из-за его удаленности от крупных агломерационных центров ДФО и малых городов ЧАО.
Особенности образа жизни в Анадыре – это отсутствие инфраструктуры и досуговых мероприятий для молодежи 14–35 лет, придуманных вне программ по культуре и вне стен муниципальных учреждений. Информационная разобщенность, пространственная изолированность Анадыря при общемировой конкуренции между городами дополнительно обостряет дефицит «своих» неформальных пространств.
В отличие от многих других городов Крайнего Севера центральная жилая часть города Анадыря имеет достаточно компактную планировку, сомасштабную человеку. Среди особенностей пространственного развития – большой фонд утративших свое назначение производственных и складских зданий, значительная часть которых не используется. На территории расположено здание «Ангара» (бывший гараж), его реконструкция имеет большой потенциал, так как позволяет трансформировать свободный объем под любые запросы потенциальных пользователей».
эксперт, ведущий аналитик Агентства стратегического развития «ЦЕНТР»:
«Анадырь – специфический по характеру город. Его можно считать самым удаленным не только потому, что это самый восточный город РФ, расположенный на расстоянии тысячи километров от крупнейших городов европейской части страны, но и из-за его удаленности от крупных агломерационных центров ДФО и малых городов ЧАО.
Особенности образа жизни в Анадыре – это отсутствие инфраструктуры и досуговых мероприятий для молодежи 14–35 лет, придуманных вне программ по культуре и вне стен муниципальных учреждений. Информационная разобщенность, пространственная изолированность Анадыря при общемировой конкуренции между городами дополнительно обостряет дефицит «своих» неформальных пространств.
В отличие от многих других городов Крайнего Севера центральная жилая часть города Анадыря имеет достаточно компактную планировку, сомасштабную человеку. Среди особенностей пространственного развития – большой фонд утративших свое назначение производственных и складских зданий, значительная часть которых не используется. На территории расположено здание «Ангара» (бывший гараж), его реконструкция имеет большой потенциал, так как позволяет трансформировать свободный объем под любые запросы потенциальных пользователей».

Сергей Георгиевский,
генеральный директор Агентства стратегического развития «ЦЕНТР»
«Миссию создаваемого общественного пространства мы определили как «создание условий для социализации молодежи, ее интеграции в процессы, протекающие за пределами географического пространства города, и формирование социальной ответственности». Таким образом, «АНГАР» должен создать такую среду, которая позволит молодежи не только удовлетворять разнообразные досуговые запросы, но и реализовать себя в тех видах деятельности, которые будут востребованы в будущем. При этом Миссия места транслируется на внешнюю аудиторию и служит базисом для поэтапного масштабирования роли Молодежного центра – от уровня городского округа и ЧАО, до Дальневосточного и международного масштаба.
Наиболее интересной территорией, с точки зрения будущего редевелопмента, является производственная зона в западной части города, окруженная жилой застройкой и прибрежной территорией со спуском к Анадырскому лиману – местной молодежной локацией для встречи закатов и отдыха на природе. Включение этой территории в жизнь города даст развитие новым типам услуг, повысит чувство безопасности и комфорта, позволит более эффективно использовать территорию, особенно при наличии инженерной инфраструктуры и транспортной связанности с центром города».
генеральный директор Агентства стратегического развития «ЦЕНТР»
«Миссию создаваемого общественного пространства мы определили как «создание условий для социализации молодежи, ее интеграции в процессы, протекающие за пределами географического пространства города, и формирование социальной ответственности». Таким образом, «АНГАР» должен создать такую среду, которая позволит молодежи не только удовлетворять разнообразные досуговые запросы, но и реализовать себя в тех видах деятельности, которые будут востребованы в будущем. При этом Миссия места транслируется на внешнюю аудиторию и служит базисом для поэтапного масштабирования роли Молодежного центра – от уровня городского округа и ЧАО, до Дальневосточного и международного масштаба.
Наиболее интересной территорией, с точки зрения будущего редевелопмента, является производственная зона в западной части города, окруженная жилой застройкой и прибрежной территорией со спуском к Анадырскому лиману – местной молодежной локацией для встречи закатов и отдыха на природе. Включение этой территории в жизнь города даст развитие новым типам услуг, повысит чувство безопасности и комфорта, позволит более эффективно использовать территорию, особенно при наличии инженерной инфраструктуры и транспортной связанности с центром города».
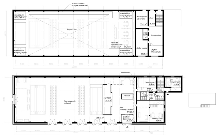
Архитектурная концепция молодежного центра АНГАР, 2019
© MAParchitects / исследование Агентства «Центр»
Но расскажем же о проекте. Собрав всю информацию и пожелания, для разработки архитектурной концепции Агентство «Центр» пригласило MAParchitects, от которых требовалось превратить типовой ангар из крупных железобетонных панелей в теплое, уютное и современное здание, заметное издали и привлекательное, подходящее для развития современной молодежной культуры, многофункциональное и трансформируемое, а также не лишенное признаков своей прежней жизни, что стало непременной частью подходов нашего времени к реконструкции промышленных зданий. Они должны становиться удобными, но не «выхолощенными», не терять свое «лицо».

Александр Порошкин,
руководитель архитектурного бюро MAParchitects:
«При работе над проектом всесезонного молодежного центра нам было предельно важно сохранить аутентичность объекта, его техническое «прошлое», сделав для жителей Чукотки так называемое «третье место» – площадку, куда можно прийти, чтобы весело провести время с друзьями, послушать лекцию, развить свои коммуникативные навыки, реализовать творческие планы и заметно разнообразить досуг. Будущий центр «АНГАР» помимо своей основной функции, дополнительно выступает как событийное пространство, которое аккумулирует энергию и энтузиазм молодежи в полезные инициативы».
руководитель архитектурного бюро MAParchitects:
«При работе над проектом всесезонного молодежного центра нам было предельно важно сохранить аутентичность объекта, его техническое «прошлое», сделав для жителей Чукотки так называемое «третье место» – площадку, куда можно прийти, чтобы весело провести время с друзьями, послушать лекцию, развить свои коммуникативные навыки, реализовать творческие планы и заметно разнообразить досуг. Будущий центр «АНГАР» помимо своей основной функции, дополнительно выступает как событийное пространство, которое аккумулирует энергию и энтузиазм молодежи в полезные инициативы».
Архитектурная концепция молодежного центра АНГАР, 2019
© MAParchitects / исследование Агентства «Центр»
Два самых заметных приема, таким образом, подчинены поиску эстетичного звучного образа и прагматичного утепления стен. За тепло отвечают сэндвич-панели с наполнителем из минеральной ваты; слой таких панелей покроет бетонные стены ангара, снаружи же их закроет сетка панелей просечного металла, способных взять на себя часть ветровой нагрузки и в то же время не лишенных декоративного смысла. Яркость обеспечивает контраст снежно-белых стен с теплым красным входной группы и малых объемов. В общем-то АНГАР должен в итоге выглядеть как вырезанный из снега прямоугольный блок с похожим на условный камин входом, теплым и привлекательным, как любое жилье в холодных широтах – своего рода архетип местности.
Кроме того архитекторы расширяют вход, предлагая разобрать закладку старых ворот – входная группа получает дополнительный стеклянный проем, который будут открывать летом, впуская больше света и расширяя связь между внешним и внутренним пространством, и закрывать зимой металлическими подвижными ставнями для тепла. Терракотово-красное углубление входа берет на себя роль своеобразного модернистского портика, он достаточно протяжен, но не лишен и промышленных аллюзий – опоры-пилоны трактованы как крупные двутавры.
С другой стороны, белая металлическая сетка отступает от стен достаточно далеко и вырастает выше кровли, ясно обозначая, что здание заключено в некую плотную сетку, подчиненную ритму вертикальных стыков. Полупрозрачность создает второй слой, он же слой смыслов: зимой она позволит подсветку, похожую на северное сияние (хотя, вероятно, свет можно будет настроить как угодно, и динамически тоже). Летом фасады смогут перекликаться с маревом белых ночей.
Главное достоинство пространства внутри – оно безопорное и достаточно высокое, 5,8 м от пола до ферм плюс еще 3 м занимают собственно металлические фермы. Их планируется сохранить, как и ряд элементов, табличек и бетонных фактур, напоминающих о старом, промышленном гараже. Таблички могут стать частью экспозиции треш-арта, – поясняют авторы, или же их просто включат в интерьер на правах постоянных «жителей». Украшением станет и группа труб с клапанами-кранами, оставшаюся от промышленного гаража.
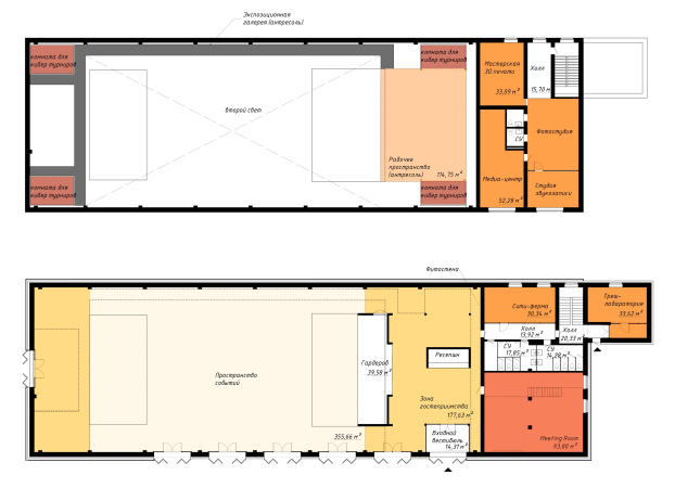
Один из главных элементов пространства – openspace нижнего яруса, площадка для событий: концертов, лекций, ярмарок и прочего. Здесь появляются два деревянных амфитеатра, медийный экран, а также кафе; трансформируемое пространство гибко и способно принять разные функции, даже небольшую скейт-зону. Меньшие пространства мастерских расположены на антресоли по периметру, сюда ведут лестницы, а с галерей можно наблюдать за происходящим в openspace.
Функции запланированы самые разнообразные, более того, как утверждают аналитики, молодежный центр нацелен в будущее и способен меняться. Instagram-группа пестрит призывами к молодежи города делать предложения, развивать состав комплекса. Но в нем уже задуманы чилаут, сити-ферма, meeting-room, фото- и видеостудии, теплицы и мест для соревнований по киберспорту.

Мария Седлецкая,
эксперт, ведущий аналитик Агентства стратегического развития «ЦЕНТР»
«Самая главная особенность новой площадки – это разработка событийного наполнения и архитектурных решений по зонированию пространства ангара исходя из запросов будущих пользователей, ведь именно «молодежный актив Чукотки» сегодня является базисом для развития креативного потенциала. Это были идеи по созданию открытого трансформируемого пространства, специализированных пространств для устройства типографии, медиа-центра с интерактивной картой России, звукозаписывающей студии, фото- и видеостудий, проведению киберспортивных соревнований, устройства мобильных теплиц (growbox); проведению граффити-фестиваля и др.
Брендовые мероприятия формируют сетку календаря в зависимости от сезона при одновременной загрузке еженедельного графика. Взаимодействие со множеством субъектов позволит осуществлять осмысленную деятельность, непрерывное образование, общественные коммуникации, интеллектуальный отдых, коллективное пользование и обмен идеями.
эксперт, ведущий аналитик Агентства стратегического развития «ЦЕНТР»
«Самая главная особенность новой площадки – это разработка событийного наполнения и архитектурных решений по зонированию пространства ангара исходя из запросов будущих пользователей, ведь именно «молодежный актив Чукотки» сегодня является базисом для развития креативного потенциала. Это были идеи по созданию открытого трансформируемого пространства, специализированных пространств для устройства типографии, медиа-центра с интерактивной картой России, звукозаписывающей студии, фото- и видеостудий, проведению киберспортивных соревнований, устройства мобильных теплиц (growbox); проведению граффити-фестиваля и др.
Брендовые мероприятия формируют сетку календаря в зависимости от сезона при одновременной загрузке еженедельного графика. Взаимодействие со множеством субъектов позволит осуществлять осмысленную деятельность, непрерывное образование, общественные коммуникации, интеллектуальный отдых, коллективное пользование и обмен идеями.
Одно из знаковых событий подразумевает под собой развитие уже имеющегося кинофестиваля «Золотой ворон», который собирает полные залы и привлекает участников из Северной Америки, Скандинавии, северных регионов России. В разряд международных и межрегиональных событий помещены именно трендовые и современные форматы мероприятий, основанные на локальной идентичности, например, Молодежный арктический «Беринг-Fest». Масштабные события на открытом воздухе планируются преимущественно в летнее время – уличная выставка трэш-арта, конкурс видео-арта и др.».
Реализовать проект планируют к концу 2019 или началу 2020 года.