All the four resort homes are open today, remaining quite popular due to their advantageous location, the forestland, which remained almost intact, and the sandy beaches. In addition, there are a lot of points of interest around; as well as a highly developed infrastructure for yachting and river cruises. Possibly, some of the guests are attracted by the Soviet aesthetic – photographs of the circular swimming pool on the Berezka grounds popped up in many architectural and lifestyle magazines, and even in books.
The Klyazma resort is the largest of the four; it also has a surrounding green area of 35 hectares, a beach of its own, a marina, and a range of recreational facilities, some of which are already obsolete. In the 1990’s a covered swimming pool was inserted into the management block between two guest buildings, which doubtlessly helped attract more visitors but destroyed the architectural composition: the sea-green gable roof between the canonical rectangular health resort buildings does look like a patch. Later on, major repairs followed, which, it must be said, did not make much of a positive difference. Now the pool is planned to be dismantled, and a new building with a modern wellness center will be built in its place.
Recostruction of Klyazma health resort. The functional zoning
                Copyright: © KPLN
        The architects placed the new building alongside the axis of the administrative one, expanding the space of the resort in the direction of the river. The building will be equal in height to the housing sections, but each consecutive floor steps back from the cornice of the preceding one, which, together with abundant glazing, visually conceals the volume.
The architects decided not to make the new building ostentatiously contrastive, opting for the path of stylization: the wide bands of concrete cornices alternate with ribbons of glazing and partitions, forming a multi-tier composition carried by transparent walls with slender supports of structures of stained glass windows. Thanks to these stained glass windows, the interior fully opens up to the observer, offering other references to Soviet aesthetics: a ceiling with a network of skylights, upon which the specs of sunlight create a pattern looking like marble or granite. Some of the inner walls of the swimming pool are designed crimson red – they will be either painted or covered in colored triplex, and perfectly visible from the outside through the stained glass.
The walls are made of monolithic concrete; its surface will be left exposed on the facades.
Recostruction of Klyazma health resort
                Copyright: © KPLN
        Recostruction of Klyazma health resort
                Copyright: © KPLN
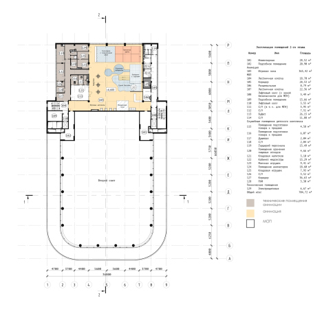
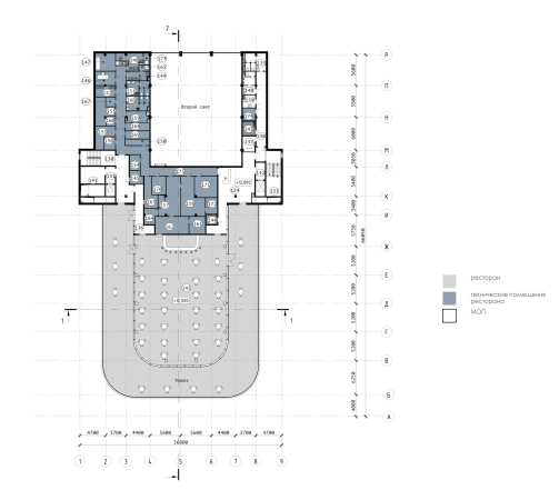
        The space of the pools plays the key part both conceptually and location-wise: the pools are situated in the double-height space of the first floor and are the main visitor attraction. There are four swimming pools here: a shallow one for children, a sports one with a 25-meter run, and a leisure one, which merges with a heated outdoor pool, from which you can swim inside. In addition, you can also walk from the indoor area to the outside – a zone with deck chairs is designed here. The basins of the pools are arranged in such a way that the sides are on a level with the floor: thus, the space becomes even purer and spacious. The transparent walls erase the border, letting the greenery of trees or, depending on the season, the whiteness of snow into the interior. The fragility of glass and water is countered by a massive floor slab, in which round spotlights of white artificial light are installed, which make it look somewhat similar to the ceiling of the Alvaro Aaalto library in Vyborg. Lattice shutters are provided for protection from direct sunlight.
Recostruction of Klyazma health resort
                Copyright: © KPLN
        Recostruction of Klyazma health resort
                Copyright: © KPLN
        Above the pools, there is a panoramic restaurant commanding views of the Klyazma Lake. The view of the forest and the lake can be seen not just by those who sit on the terrace but also by those who sit inside, while the ribs of the deep ceiling caissons, backlit from the inside, form a large asymmetric grid.
Recostruction of Klyazma health resort
                Copyright: © KPLN
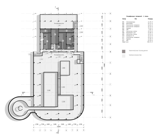
        An interesting solution was used by the architects in the construction of the volume that separates the lower tier of the swimming pools and the upper tier of the restaurant. This volume hosts a technical room about two meters high, which contains air conditioning and lighting equipment. Out of the two reinforced-concrete slabs, the lower and the upper one, one works one for compression, and the other for tension, thus balancing the structure as self-stressed. The upper and lower slabs are connected by transverse walls, which form internal caissons and serve as stiffeners. In the lower part of the technical volume, there is equipment for the ceiling spotlights; the upper part contains ventilation devices. Octagonal openings in the outer and inner walls will serve for laying cables.
The swimming pools and the restaurant occupy the front part of the building. The back part of the building, which adjoins the resort’s administrative building, includes a gym, a spa center with a sauna complex, and a large children’s area for children of different ages. The maintenance rooms are this time situated in the basement floor.
The territory of the health resort allows the guests to engage in diverse activities beyond the doors of the building as well (it would have been a mistake to leave it unattended), and the architects thoroughly did the landscaping part.
In addition to the sand and grass beaches with deck chairs, the cape, on which the health resort is situated, will receive a volleyball field, two playgrounds, shadow awnings, and a cafe. The boat station and the quay will be reconstructed – from here you will also be able to admire yachts and boats. Then there is a promenade with benches, swings and exits to the water made in the form of platforms, an amphitheater, and a covered stage. Reconstruction of the pier and the drink reception area will also follow. Then there is a barbecue area with covered gazebos and platforms for fishing. There is a platform for mass events that will be reconstructed too. At the end, there is a campfire area, hammocks, and a yoga deck.
Recostruction of Klyazma health resort. The beach area
                Copyright: © KPLN
        Recostruction of Klyazma health resort. The beach area
                Copyright: © KPLN
        Recostruction of Klyazma health resort. The beach area
                Copyright: © KPLN
        Reconstruction of the health resort and landscaping of the territory is due to begin already this year.

 
                                                                         
            
         
                                             
                                             
                            
 
                             
                             
                             
                             
                             
                                         
                                         
                                         
                                         
                                         
                                         
                                         
                                         
                                         
                                         
                                         
                                         
                             
                             
                             
                                     
                                                                        
                                                                     
                                                                        
                                                                     
                                                                        
                                                                     
                                                                        
                                                                     
                                                                        
                                                                     
                                                                        
                                                                     
                                                                        
                                                                     
                                                                        
                                                                     
                                                                        
                                                                     
                                                                        
                                                                     
                                                                        
                                                                     
                                                                        
                                                                     
                                                                        
                                                                     
                                                                        
                                                                     
                                                                        
                                                                     
                                                                        
                                                                     
                                                                        
                                                                     
                                                                        
                                                                     
                                                                        
                                                                     
                                                                        
                                                                     
                                                                        
                                                                     
                                                                        
                                                                     
                                                                        
                                                                     
                                                                        
                                                                     
                                                                        
                                                                     
                                                                        
                                                                     
                                                                        
                                                                     
                                                                        
                                                                     
                                                                        
                                                                    