Sergey Skuratov has been working on the design of this large residential and, more importantly, multifunctional complex in the very heart of Kazan since 2021, with the main focus placed on its urban planning framework: the distribution of building volumes, functions (including public ones), heights and proportions, greenery, water, and built-up areas. From the way the task was set, it was clear from the start that, despite the elegance and meticulousness of the design work, developing such a project would not be easy.
And indeed, the architects have recently completed the third version of the complex; that one cannot yet be published, but the first and second can. Since the key ideas were formulated at the very beginning and, fortunately, have been preserved, it is the first version that currently holds the greatest interest from an architectural and urban-planning standpoint. That’s where all the core concepts that define the character of the future Yar Park were first proposed.
This is a special project on a special site, in a location unique for Kazan. I must admit, our company has handled larger projects, but in terms of responsibility, this one, I believe, comes first. Speaking of Kazan’s urban infrastructure, I think this is one of the city’s most important projects at the present moment. The place itself demands that level of commitment.
For the first time in Kazan’s history, we are creating a waterfront space that is simultaneously public and residential. The two facets of its public function are united by the permeable volume of the cultural and exhibition Forum, designed to accommodate up to 3,000 visitors at once. It links two recreational areas – along the embankment and along the avenue. The entire territory will be covered with greenery, ponds, sports grounds, and children’s playgrounds.
And most importantly, the entire complex will remain open – without any fences or barriers.
For the first time in Kazan’s history, we are creating a waterfront space that is simultaneously public and residential. The two facets of its public function are united by the permeable volume of the cultural and exhibition Forum, designed to accommodate up to 3,000 visitors at once. It links two recreational areas – along the embankment and along the avenue. The entire territory will be covered with greenery, ponds, sports grounds, and children’s playgrounds.
And most importantly, the entire complex will remain open – without any fences or barriers.
Indeed, the site is located right in the city center, not far from the Millennium Bridge, on the right bank of the Kazanka River, which was expanded into a reservoir in the 1960s. Today, the stretch of river between the two bridges – when viewed from the Kremlin – resembles an inner city lake: a wide expanse of water, roughly 2 by 1 kilometers, larger than the nearby actual Lake Kaban and, moreover, the most “central” body of water, sandwiched between the Kremlin and the residential districts on the right bank. These neighborhoods, incidentally, were all developed after the war. They include both panel-built housing and newer structures – some worse, some better – but together they form a varied yet fairly uniform mass of roughly the same height. There aren’t many landmarks here: the Kazan Wedding Palace in the shape of a cauldron and the illuminated Ferris wheel that glows at night.
However, already during the work on Yar Park, shortly after the first version of the complex was proposed, Sergey Skuratov – within an astonishingly short timeframe – built the Millennium complex just to the east, near the bridge of the same name. Gleaming with glass and natural copper, it stands as a striking landmark. If Yar Park also gets to be built – which I would very much like to see – it will form a kind of “Skuratov corner” here, and since SSA is known for its perfectionism, that would make the area a true architectural preserve: a place of quality, from concept to execution.
Back to Yar Park, however!
Currently, the designated site is an empty area – with a completed embankment that straightened the shoreline – lying between two central leisure zones of the city: a park and a water park.
As we can see from the architect’s own comments, Sergey Skuratov focuses on ensuring that, once built, Yar Park will not divide these two parks but rather connect them – and itself will become a recreational space.
The territory stretches from west to east between the riverbank and Sigbat Khakim Street. Three key urban axes stretching from the surrounding residential neighborhoods converge roughly at the center of the site, which also borders the Tatneft Arena.
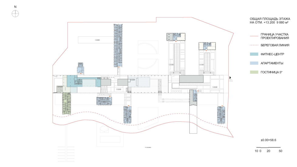
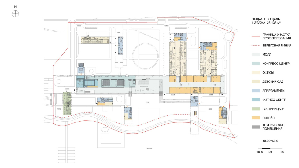
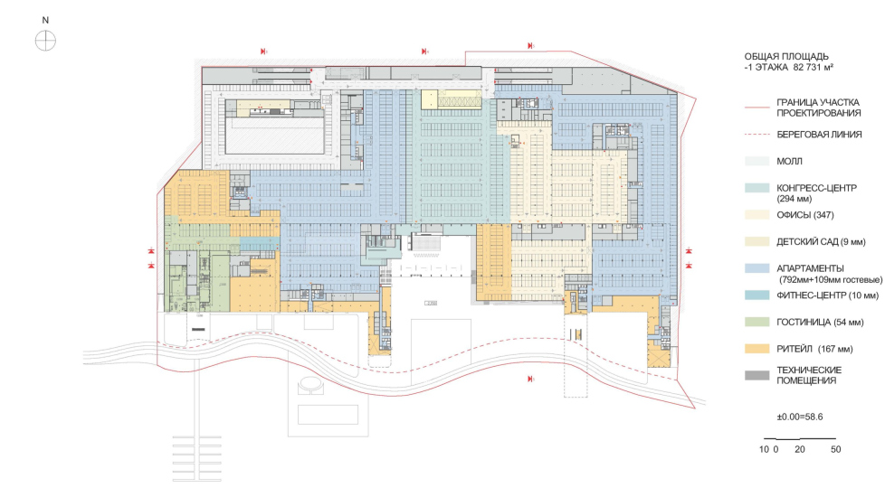
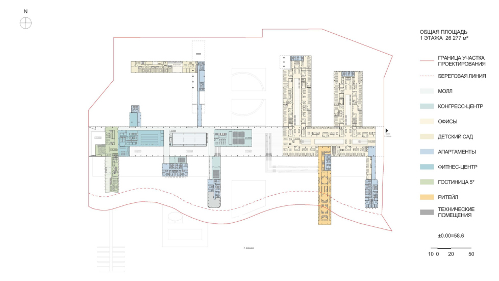
The main longitudinal axis of the complex runs parallel to the riverbank; by linking the two parks at either end, it turns into an elongated multifunctional covered mall. Here are the lobbies of residential buildings, a hotel and office spaces, a fitness center with a pool, a congress hall with a transformable auditorium, shops, and places to stroll and relax.
Over the past fifteen years, it has become common to consider perimeter-block development with ground-floor retail the optimal model for organizing urban public space. However, this approach creates a continuous wall, giving too much to private courtyards and too little back to the city. Moreover, blocks are best suited to relatively low-rise construction – and therefore low density. For higher density, on the other hand, high-rise development works better, since it leaves more room for public spaces. If we look at projects from the 2000s – or at contemporary ones in Moscow – the same issue was and still is addressed through the typology of “towers on a podium”. A courtyard sits on top of a parking deck, with shops around the perimeter. Blocks and towers on podiums – these are, essentially, the two main sure-fire typologies that have coexisted over the past quarter century.
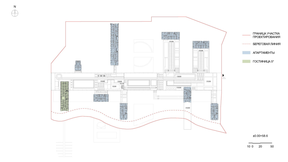
In the Yar Park project, Sergey Skuratov proposes – let’s put it this way – a new kind of urban hybrid. The functions that, in both of the typologies mentioned above, we are used to finding along the outer contour – private inside, public outside – Skuratov instead gathers into the “spine” of the mall, right at its center. The residential buildings are attached to this multifunctional “backbone” like branches to a trunk – some directly, others via suspended walkways – set at right angles, though more often oriented meridionally, since this provides the most favorable sunlight exposure.
This approach completely opens up the site to the city and its residents – from both the river side and the residential side. People will be able to enter freely, walk straight through to the water, the beach, the embankment, the yacht club piers – and exit in any direction.
In this proposed “urban hybrid”, one can discern echoes of the “microdistrict” model, particularly in its early form that drew on the ideals of the garden city. The buildings are not hidden behind fences – after all, this is the city center – and one will be able to walk around them freely. Yet they also do not form the rigid “red line” so often invoked by followers of New Urbanism (or perhaps of Peter the Great?) since the 1980s. To be fair, there was never a historical city here in the first place: the right bank of the Kazanka began to be developed only in the 1960s, after the reservoir was filled. Before that, there were forests and fields; later – microdistricts, plain and simple.
So it is hardly surprising that it is here, finally, that the high-rises have “found themselves”. Their strength, it turns out, is not in hiding behind glass façades or small streetfront volumes that mimic an old city. Their strength lies within. In essence, the residential buildings here are connected to the mall much like the housing units of the NER (New Element of Settlement) were once linked to their infrastructural trunks – though of course not quite in the same way. Still, it’s a fresh and compelling twist.
At the heart of the mall lies the Forum, located at the intersection of the longitudinal and transverse axes. Strictly speaking, it is a congress center and its atrium-foyer. But what an atrium it is! By carefully working with levels and scale, the architects transform it into a vast space – warm, yet visually and physically permeable. Tall and open. Multi-tiered. A covered urban square. And in Kazan, where winters are bitterly cold – colder than in Moscow – this idea feels particularly relevant.
The atrium rises through three levels, though even that description feels somehow inadequate – its walls are entirely transparent, with glazing so seamless as to be almost invisible. From the river side, the entrance is barrier-free, at an elevation of -2.7 meters. It is surrounded by parking areas, but the entrance zone itself is quite expansive, outlined on the eastern side by a “staircase” amphitheater that casually crosses the glass boundary. About one story tall – roughly three meters – the amphitheater continues for a considerable distance both outside and inside, intermittently broken by stairways.
The first floor is thus the most open and spacious, entirely free of partitions. The architects envision its main platform as a transformable space for temporary events – exhibitions, receptions, and lectures. Above and slightly westward, at a height of six meters (roughly the second level), a smaller conference hall “floats” within the space, enclosed by glass walls.
Behind it, further to the west, lies another, larger transformable hall that can be divided into two or three smaller ones.
Together, these create a sophisticated yet airy space – visually open, supported by slender columns, full of lightness and “levitation”. It feels modern, technological, effortless – almost Asimovian. Inside, in addition to the staircases, there are ramps, especially toward the east and west, set deeper within the building near the hotel, fitness center, and offices. It’s an intriguing environment – one that makes you long to see and explore it once it has been actually built. And there’s a strong hope that, when it is, the designers will resist the temptation to install those ubiquitous nickel-plated railings of our time… Please, architects and developers, I’m on my knees!
On the northern side, another series of steps and amphitheater tiers leads down again. Water is brought by Skuratov across to the opposite side of the park, forming a kind of discrete inlet – drawn from the river yet defining another axis, subtly alluding to the presence and importance of water in this space. From here, the visitors will be able to look across the artificial lagoon to the river beyond, through the glass of the atrium.
It inevitably recalls the famous pond in the Garden Quarters. Here in Kazan, however, the theme unfolds on a broader scale. In the riverside Yar Park, water plays an especially meaningful role. Even the swimming pool is designed in the manner of seaside resorts, allowing swimmers to gaze, level for level, from the artificial water to the natural one beyond. And visitors will be able to stroll along the yacht club piers as well.
Continuing with the theme of the longitudinal mall – the “path” – the architects did everything possible to emphasize the site’s ends, transforming them into true entrance “portals”. Thus, above the hotel entrance appears an accent in the form of a flaring bronze-copper trumpet. A similar accent – tonally distinct – appears on the nearby residential tower to the north; this, incidentally, is one of Skuratov’s favorite techniques. At the top level, it was to contain a tall shared loggia for the residents, offering panoramic views of the city.
Finally, Sergey Skuratov proposed a bridge linking the park to the peninsula where the Kazan Wedding Palace stands – a bold gesture extending the project’s reach beyond its plot. In other words, the architects are thinking broadly, proposing initiatives consistent with the project’s very essence – its “path”, and its connective character within the city fabric.
Multifunctional complex Yar Park 1
In 2021, SSA also outlined prospects for a second phase – further integration with the surrounding area. They proposed incorporating the former Leroy Merlin site into the development zone, keeping its function as a building-supply store. It’s a large-scale and imaginative step – typical of Skuratov’s proactive and ambitious approach – looking beyond the initial brief to identify future growth points.
This is both logical and, from a professional perspective, entirely natural: given the planned scale of construction here in the city center, what should emerge is a true polycenter, as urbanists now call it – a magnet for a wide range of functions beyond housing. All that’s missing now, one might joke, is a branch of the Hermitage. Everything else a city might need or desire seems to be included – and exhibitions will surely follow, especially since the architects have already selected contemporary Kazan sculptors and even proposed several weathered-steel art objects of their own.
Well, and what about the residents? The apartments here will, without question, be expensive. But were they left without private spaces? No, not at all. All the roofs of the mall and adjoining buildings are reserved for the residents. Anticipating current trends, the architects even sketch out communal gardens – or, at least, flowerbeds – some ten meters above the city and river, with panoramic views. Add to that a number of private terraces and the upper levels of the towers mentioned earlier.
To make all this open and civic, the architects had to free up space. As visible in the earlier diagrams, they push the volumes outward, liberating the center. And – in the first version of the design, assuming that current height limits of 100 meters might be lifted – they proposed significantly taller towers: in the first phase, one 135.2-meter tower with a single apartment per floor, New York style, and another rising to 170 meters; then, in the second phase, another slender 135.2-meter tower and a 245-meter skyscraper. The rationale: the taller the volumes, the thinner they become, and the lighter the complex appears overall – stretching upward rather than forming a solid wall like the surrounding postwar development.
Sergey Skuratov says the main reference was the Kazan Kremlin with its succession of slender vertical accents – towers and minarets.
Turning at different angles, the towers change their apparent thickness; arranged in a staggered pattern, the first row opens views of the river for the second. Distances between buildings are large enough to avoid window-to-window sightlines.
However, the most important thing, in my view, is variation in height. We all know, from examples such as Moscow’s Metropolia complex, that towers are sometimes placed too close together and then simply “trimmed” at the top like with scissors. The resulting effect is as uninspiring as with wall-forming blocks.
So! Towers. Must. Be. Of. Varied. Height. Alternate them with slabs, change sizes and façades. In Yar Park all of this is luckily present. There is also a diversity of apartment types and facades that vary Skuratov’s favorite devices: floor-to-ceiling glass, triangular bay windows that smoothly change their rotation angle, “swallowtail” plans, rounded corners with molded glazing. Stone and metals of different kinds are also used.
As with all SSA projects, the drawings show extreme detailing.
As the cherry on top, the architects searched for a local theme – Kazan identity. They didn’t just study the work of local sculptors and select the best among them.
They also engaged with two written languages – well, not studied them exhaustively, but touched on them in the project: the ornamental motifs of Old Tatar script – its arabesques – are worked into the façade of one tower, gradually dissolving upwards; they also turned to the works of Faik Tagirov, the Tatar avant-gardist, adapting his kubist/ kufic-inspired pattern for interiors and landscape elements.
In short, this was a large-scale effort that, besides its architectural and urban boldness (which, I think, is justified), contains a significant amount of detailed work designed to immerse the observer in the project.
The second version of Yar Park, dated 2022, reflects a reduction in overall height. Two of the ultra-slender towers have become shorter, turning into buildings with triangular floor plans.
The offices have moved from the eastern part to the western. The visual aesthetic has gained a more “composed” quality, along with a slightly “stormy” undertone.
Yet the key elements remain unchanged: the longitudinal axis of the mall, to which the residential and office volumes are joined; the artificial bay; the transparent atrium of the Forum; and even the gleaming copper flare of the “perspective window” facing the park, adorned with Kufic-inspired patterns. Most importantly, the complex still offers an open urban space – one that connects rather than divides. Sergey Skuratov clearly appreciates the solution they’ve arrived at.
All that remains is to wait and see what the third version will bring – of this bold, lavishly ambitious, high-tech, and glamorous project, remarkable both for its expected quality of execution and for the value it promises to add to the city and its people, far surpassing Moscow’s Garden Quarters. The approach is contemporary in both technology and imagery – and, more importantly, in social meaning: it avoids fences, creating for Kazan a truly shared space without infringing on residents’ comfort. They’ll be able to walk “in their slippers” through a warm passage down to the gym, a restaurant, the cinema, or the yacht club. A complex, choreographed space for everyone. Kazan can be proud – among Moscow’s residential developments, there’s nothing comparable in terms of openness, diversity, scale, or refinement, and none seems to be even planned.

