Дом отступает от красной линии, он невысок, не выше соседних домов, и делает все для того, чтобы попасть в тон соседних зданий XIX века – хотя те-то покрашены, их бежевый цвет непостоянен – и в то же время выглядит среди них совершенно иным: небольшой, даже хрупкий, стройный, кристаллический. А еще у него есть довольно-таки длинная история сложения замысла, в ходе которой сюжет изменился и главный акцент стал другим.
Предыстория
Проект дома Алексея Бавыкина в Электрическом переулке пережил несколько переделок. В 2010 он напоминал дом в Брюсовом переулке – несколько более геометризованную версию «дикого ордера» из древесных стволов, открытых к небу. Дом в Электрическом – того же масштаба, положения в историческом центре, хотя и подальше от Кремля, и того же клубного класса жилья, наследовал и развивал тему. В то время казалось, что «лесных» домов в Москве может появиться несколько. Но дом в Брюсовом остался один, поскольку проект для Электрического переулка начали переделывать.Edison House. Фотография 2019 года
© Илья Иванов
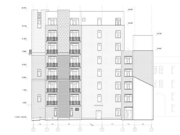
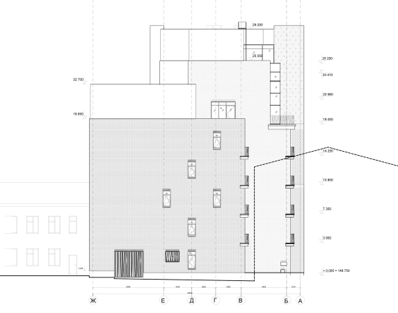
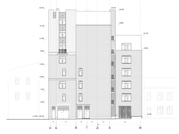
К 2013 на правом углу фасада, ближе к Малой Грузинской, стала прорастать башня, поначалу все еще похожая на полусрубленное дерево. Чуть позже дом подсобрался и стал компактнее: появились выраженные горизонтали межэтажных тяг и стеклянная «гармошка» пентхауса. Основной уличный фасад немного отступил во двор, башня выступила вперед, подросла и перестала ветвиться, также приобретя более лаконичный контур, хотя намек на открытый зубчатый верх остался.
В конечном счете из «лесного», или, может быть, «тополиного» дом превратился в каменный, в большей степени городской. Акцент, если сравнивать с первым проектом, сместился с левого угла на правый.
В угловой башне, которая теперь стала ключевым «говорящим» элементом, читается совершенно иной прообраз – башен знатных семейств средневековых городов Средиземноморья. Они известны много где, но во Флоренции к XIV веку такие башни разобрали, а в Сан-Джиминьяно, к примеру, их сохранилась масса. Интересно, когда башни стоят на площади, как столбы, но чаще к ним пристраивали дома, как, например, пристроен ренессансный дом на piazza d'Erbe в Мантуе. До некоторой степени дом в Электрическом переулке стал похож на такой ансамбль башни городского знатного семейства и их же более позднего дома.
Конечно же, он не копия никакой ренессансной достопримечательности, городские башни скорее аналогия и отправная точка для вдохновения. Кроме того вспомним, что дом-то клубный, пример дорогого жилья в центре города, в нем и квартир-то всего двенадцать на шесть этажей – такое жилье и есть дом знатного горожанина с поправкой на современную многоквартирность, так что сон, как говорится, в руку.
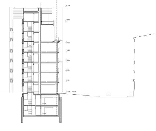
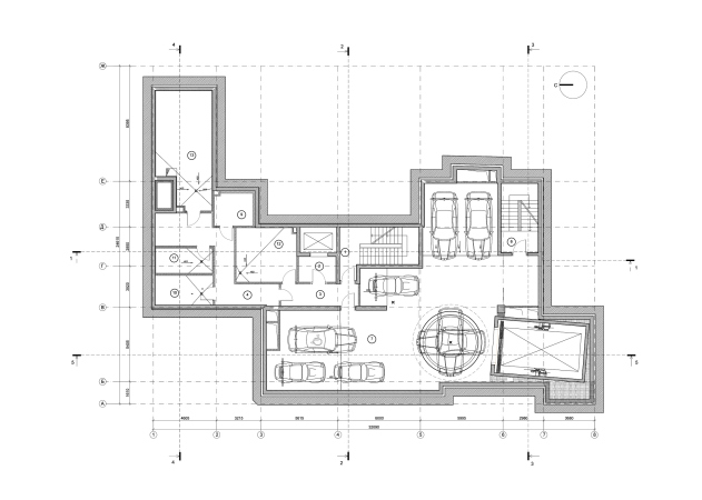
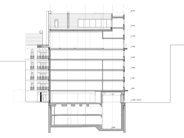
На первом этаже – кафе и зона отдыха, под башней здесь въезд в автоматизированную двухъярусную парковку: дом небольшой, а машин в данном случае, пожалуй, будет побольше, чем по одной на семью. Квартиры со второго по пятый этаж могут похвастаться окнами «в пол» с французскими балконами перед ними – то есть такими, куда формально можно выйти, но помещается примерно пол-ступни. Одна из квартир пятого этажа, помещенная в тот объем, который заворачивает во двор, – двухъярусная, это было решением маркетолога.
Пентхаус занимает верхний, шестой, этаж, его площадь – 257 м2, он, в сущности, представляет собой городскую виллу, встроенную в состав дома, в данном случае классически, в верхней части. Стеклянная «гармошка» отступает от линии фасада, оставляя место для открытой галереи и давая высокой – 6,7 м – гостиной максимум света. Еще одна терраса пентхауса, почти квадратная и большая, примерно 7х7 м, со среднего размера комнату, расположена севернее на кровле объема, отодвинутого вглубь из-за сложной конфигурации участка. Справа от нее стена двухъярусной квартиры пятого этажа, так что в ответ на сложный контур пятна застройки дом пространственно становится сложным. Но главное – с высоты пятого этажа, а она здесь метров 20, можно смотреть на тихий переулок; должно быть, любопытное переживание.
В башне же на этаже пентхауса размещен санузел с ванной – архитекторы поясняют, что это тоже решение маркетологов. Дальше внутри спальня. В квартирах 2-5 этажей при стене башни, выходящей к улице – постирочная, а в основном объеме, смотрящем на торец соседнего дома – кухня. Иными словами, планировочно ее объемы имеют совершенно бытовое назначение, не только в том смысле, что там не сидит дозорный рода Тарли, но и потому, что виды, даже сверху, толком не используются.
Между тем в образном и декоративном отношении башня, конечно же, главная. Кроме того что она в принципе «держит» угол, делает дом более стройным и привлекает к себе максимум внимания – башня декорирована по принципу «кирпичной готики», разными видами фактурной кладки. К слову, идея присутствовала в проекте изначально, но выражалась в полосатой поверхности, имитирующей стену, подготовленную для облицовки, к примеру, мрамором. Теперь фактура приобрела иное решение.
Башня разделена на три яруса согласно принципу суперпозиции трех ордеров. Всем, кто хоть немного понимает в теории ордера, известно, что если убрать колонны, остаются пропорции, и если они остались, здание не перестает быть ордерным. Так вот в данном случае тема выражена плотностью кирпичной светотени. В нижнем ярусе, назовем его условно дорическим, он по определению самый тяжелый, если бы здесь был руст, он был бы глубоко выступающим и грубым, – так вот, в нижнем ярусе использована кладка вперед углом, характерная для шатров итальянских колоколен. Казалось бы, парадокс: шатер колокольни вверху, а тут нижний ярус. Но, пожалуй, эта придирка будет излишней. На самом деле, конечно, эти густо посаженные уголки – развлечение для глаза, именно поэтому они помещены внизу, как самая ценная в декоративном отношении часть. Светотень на них ложится, и впрямь, замечательно. Надо признать, что это довольно-таки распространенный и любимый прием современной кирпичной архитектуры, в Москве он, в частности, использован в ЖК «Литератор» бюро СКиП.
Средний ярус украшен торцевыми выступами в шахматном порядке, вверху такие же выступы разбросаны в три раза реже, фасад светлее и более плоский. В принципе, самый правильный аналог – палаццо Медичи Рикарди, именно там растяжка от «скал» в нижнем ярусе к почти совершенно плоскому верхнему ярусу выражена так ясно. Только в данном случае идея решена в кирпиче. И еще важно заметить, что в последние годы проектом и его реализацией занималась дочь Алексея Бавыкина Наталья, ГАП дома в Электрическом переулке.
Edison House. Эскиз. Проект 2018 года
© Наталья Бавыкина
Другие фасады менее насыщены семантически и апеллируют скорее к собственно типологии клубного дома, а может быть, Османовскому Парижу: подходит и светлый, хотя и не серый, тон, и балкончики, которые, кстати, как и решетка со стороны улицы, наследуют идею древесных ветвей, которая впервые появилась в Брюсовом переулке – но только делают ее более обобщенной. Форма, к слову сказать, «пошла в народ» – теперь она встречается в проектах разных московских архитекторов.
Дом, по своему знаковый, прошел почти незаметно – разве что наградили его дипломом на «Золотом сечении». Он, между тем, интересен: и тщательностью работы (полагаю, многие видели отчеты о долгом и сложном процессе реализации на facebook), и новым сюжетом, и собственно типологией невысокого дома в центре города. Пожалуй – это сейчас будет личное оценочное суждение, у нас так не принято говорить, и все же – он выглядит получше своих соседей, декорированных, но рядовых домов периода эклектики. И собственно хотелось бы, чтобы такого рода проекты появлялись не только в элитном сегменте, где от цен волосы на голове шевелятся, а чтобы их было несколько больше и были они доступнее, ну, хотя бы людям не скажу что среднего, но умеренного достатка. Тогда может быть город и станет посимпатичнее.
