Школа как доминанта

Бюро арх.15 актуализировало типовой проект общеобразовательной школы на 1100 мест в Хостинском районе. Функциональные блоки отличаются фасадными решениями, задействована кровля, а для оформления учебных и рекреационных пространств формальный подход отвергнут в пользу адаптивного.

mainImg
Архитектор:
Виктор Сидаков
Ирина Сидакова
Мастерская:
арх.15
Проект:
Общеобразовательная школа на 1100 мест в микрорайоне «Северная Бытха» Хостинского района
Россия, Сочи, микрорайон Бытха

Авторский коллектив:
Авторский коллектив «арх.15»:
ГАП: Виктор Сидаков 
Главный дизайнер: Ирина Сидакова 

Проектная и рабочая документация: Капитальный проект
Руководитель: Павел Ендуткин 
ГАП: Евгений Астахов 
ГИП: Ольга Ендуткина 
Главный конструктор: Артур Паульс 

 

2022

Заказчик: МКУ г. Сочи «УКС»
Описание предоставлено архитекторами
 
Участок находится в микрорайоне Сочи «Северная Бытха», где строятся новые жилые комплексы с современными фасадами и большим количеством остекления. Предыдущий типовой проект школы был выполнен в псевдоклассическом стиле со скатной кровлей, не вписывался в окружающий контекст и не соответствовал актуальным требованиям Управления образования. Тем не менее проект привязки этого типового проекта получил положительное заключение государственной экспертизы. 
Общеобразовательная школа на 1100 мест в микрорайоне «Северная Бытха» Хостинского района. Ситуационный план
© арх.15
Общеобразовательная школа на 1100 мест в микрорайоне «Северная Бытха» Хостинского района. Генплан
© арх.15
Общеобразовательная школа на 1100 мест в микрорайоне «Северная Бытха» Хостинского района
© арх.15

Здание имеет три типа композиционной разбивки элементов фасада: четкий ритм окон и простенков в блоке старших классов, шахматный порядок с разной шириной окон для блока начальных классов и витражные окна с вертикальными ламелями на всю высоту здания для спортблока. Крупное членение фасадов дополняет более мелкая деталировка на панелях в виде тиснения с рисунком букв русского алфавита. Благоустройство территории выполнено на контрасте с геометричными фасадами. 
Общеобразовательная школа на 1100 мест в микрорайоне «Северная Бытха» Хостинского района
© арх.15
Общеобразовательная школа на 1100 мест в микрорайоне «Северная Бытха» Хостинского района
© арх.15
Общеобразовательная школа на 1100 мест в микрорайоне «Северная Бытха» Хостинского района
© арх.15

Одной из задач новых фасадных решений было разделить протяженное здание школы на соразмерные человеку объемы. Главный вход, ориентированный на площадь для проведения линеек, обрамлен порталом, выполненным в отделке под дерево. Эта тема поддерживается и на других фасадах: яркие порталы появились на глухих торцах со стороны стадиона, на выступах и при разделении объемов.
Общеобразовательная школа на 1100 мест в микрорайоне «Северная Бытха» Хостинского района
© арх.15
Общеобразовательная школа на 1100 мест в микрорайоне «Северная Бытха» Хостинского района
© арх.15
Общеобразовательная школа на 1100 мест в микрорайоне «Северная Бытха» Хостинского района
© арх.15

Поскольку сложный рельеф не позволяет в полной мере использовать участок, а кровля школы хорошо просматривается из окон окружающей застройки, архитекторы предложили сделать ее эксплуатируемой и рассматривать как «пятый фасад». Это решило множество проблем: появилась возможность разместить дополнительную спортивную площадку, зоны отдыха для школьников разных возрастов и часть учебных зон на открытом воздухе. Разбивка мощения на кровле продолжает общую композицию благоустройства территории, создавая единый рисунок всего участка.
Общеобразовательная школа на 1100 мест в микрорайоне «Северная Бытха» Хостинского района
© арх.15

Основным задачами интерьерных решений было скорректировать планировочные решения: предусмотреть различные сценарии зонирования, сделать общественные зоны точками притяжения школьников и внедрить в цветовую гамму интерьеров фирменные цвета школы. При перепланировке архитекторы столкнулись с нехваткой площадей для общественных зон, невозможностью устройства двусветных пространств в рекреациях и наличием бесполезных помещений, которые использовались не по назначению.


Класс сегодня представляет собой не только фронтальную форму организации работы, но и многофункциональное пространство с возможностью трансформации и расширения. Открытость кабинетов и возможность наблюдать за учебным процессом – важный маркер современной школы. Обучение не всегда происходит только в классе – для этого можно использовать рекреации, вестибюли или библиотеки. Библиотека и медиатека выходят за пределы кабинетов, книги и интерактивные зоны появляются там, где ученики отдыхают. Обучение происходит непрерывно, просто изменяя форму.
  • zooming
    1 / 5
    Общеобразовательная школа на 1100 мест в микрорайоне «Северная Бытха» Хостинского района. Учебный кабинет блока начальных классов
    © арх.15
  • zooming
    2 / 5
    Общеобразовательная школа на 1100 мест в микрорайоне «Северная Бытха» Хостинского района. Учебный кабинет блока начальных классов
    © арх.15
  • zooming
    3 / 5
    Общеобразовательная школа на 1100 мест в микрорайоне «Северная Бытха» Хостинского района. Учебный кабинет блока старших классов
    © арх.15
  • zooming
    4 / 5
    Общеобразовательная школа на 1100 мест в микрорайоне «Северная Бытха» Хостинского района. Учебный кабинет блока старших классов
    © арх.15
  • zooming
    5 / 5
    Общеобразовательная школа на 1100 мест в микрорайоне «Северная Бытха» Хостинского района. Учебный кабинет блока старших классов
    © арх.15

В типовой библиотеке обычно можно увидеть стандартную фронтальную расстановку парт с рабочим столом библиотекаря, компактно расположенную зону открытого хранения и несколько столов с компьютерами. Однако это помещение таит в себе невиданный потенциал. Место, куда дети захотят прийти отдохнуть и пообщаться, научится чему-то новому. Где можно записаться на кружок, провести мини-спектакли или поучаствовать в мозговых штурмах.
Общеобразовательная школа на 1100 мест в микрорайоне «Северная Бытха» Хостинского района. Библиотека
© арх.15
Общеобразовательная школа на 1100 мест в микрорайоне «Северная Бытха» Хостинского района. Библиотека
© арх.15

Примерно такие же проблемы существуют и с рекреациями. Как правило это многофункциональное помещение с возможностью отдыха, а поскольку формат отдыха вариативен, то необходимо предусмотреть различные сценарии использования пространства и его наполнения, сделать это помещение узнаваемым и нестандартным.


Школа всегда является акцентным зданием как в маленьких городах, так и в мегаполисах. Она делает район особенным и непохожим на соседние. Школы рассчитаны на долгий срок эксплуатации, поэтому помимо практичности и надежности необходимо достаточно внедрять актуальные и прогнозировать будущие потребности. Мы находимся на том этапе, когда недостаточно просто соблюсти требования по площади, освещенности и минимальному набору оборудования. У государства и людей есть запрос на качественное образование, которое требует другого подхода к проектированию учебных заведений.
  • zooming
    1 / 8
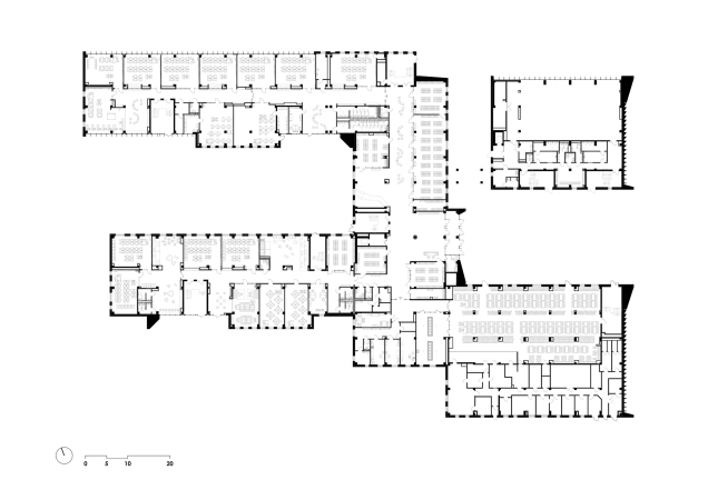
    Общеобразовательная школа на 1100 мест в микрорайоне «Северная Бытха» Хостинского района. План 1 этажа
    © арх.15
  • zooming
    2 / 8
    Общеобразовательная школа на 1100 мест в микрорайоне «Северная Бытха» Хостинского района. План 2 этажа
    © арх.15
  • zooming
    3 / 8
    Общеобразовательная школа на 1100 мест в микрорайоне «Северная Бытха» Хостинского района. План 3 этажа
    © арх.15
  • zooming
    4 / 8
    Общеобразовательная школа на 1100 мест в микрорайоне «Северная Бытха» Хостинского района. Разрез
    © арх.15
  • zooming
    5 / 8
    Общеобразовательная школа на 1100 мест в микрорайоне «Северная Бытха» Хостинского района
    © арх.15
  • zooming
    6 / 8
    Общеобразовательная школа на 1100 мест в микрорайоне «Северная Бытха» Хостинского района
    © арх.15
  • zooming
    7 / 8
    Общеобразовательная школа на 1100 мест в микрорайоне «Северная Бытха» Хостинского района
    © арх.15
  • zooming
    8 / 8
    Общеобразовательная школа на 1100 мест в микрорайоне «Северная Бытха» Хостинского района
    © арх.15
***
В России существует острая необходимость в строительстве новых школ и модернизации существующих, чтобы они соответствовали современным требованиям образовательного процесса. Несмотря на выделение государственного финансирования и разработку соответствующих программ, по-прежнему существует практика использования типовых проектов для строительства образовательных учреждений.

Существует мнение, что такой подход позволяет сэкономить средства на проектировании и сокращает сроки строительства. Однако на практике оказывается, что стоимость полного проекта составляет около 2% от стоимости объекта. Если рассмотреть скорость реализации, то на деле приходится адаптировать типовой проект под актуальные нормативные требования, особенности участка и программное задание от Управления образования. Для этого привлекаются проектные организации, что требует дополнительных затрат времени и средств. При этом типовые решения не включают проект интерьеров, разработку системы навигации и создание брендбука по графическому оформлению школ.

Школа представляет собой одну из ключевых ступеней образовательного процесса. Помимо содержания образования, важно создавать среду обучения, запоминающуюся архитектуру с интересным пространством внутри. Назрела необходимость в качественных изменениях в образовательных учреждениях, в школах внедряется педагогический дизайн, проповедующий вариативность и креативность обучения, мобильность и многофункциональность учебной среды.
Общеобразовательная школа на 1100 мест в микрорайоне «Северная Бытха» Хостинского района
© арх.15
Архитектор:
Виктор Сидаков
Ирина Сидакова
Мастерская:
арх.15
Проект:
Общеобразовательная школа на 1100 мест в микрорайоне «Северная Бытха» Хостинского района
Россия, Сочи, микрорайон Бытха

Авторский коллектив:
Авторский коллектив «арх.15»:
ГАП: Виктор Сидаков 
Главный дизайнер: Ирина Сидакова 

Проектная и рабочая документация: Капитальный проект
Руководитель: Павел Ендуткин 
ГАП: Евгений Астахов 
ГИП: Ольга Ендуткина 
Главный конструктор: Артур Паульс 

 

2022

Заказчик: МКУ г. Сочи «УКС»

03 Июля 2025

Похожие статьи
На воскресной электричке
Для поселка Ушково Курортного района Санкт-Петербурга архитектурная мастерская М119 подготовила проект гостиницы с отдельно стоящим физкультурно-оздоровительным центром. Ячейки номеров, деревянные рейки на фасадах, а также бетонные блоки, акцентирующие функциональные блоки, отсылают к наследию советских санаториев и детских лагерей.
Сплав мировых культур
Гостевой дом, построенный по проекту Osetskaya.Salov на окраине Переславля-Залесского, предлагает путешественнику насыщенное пространство, которое дополнит опыт пребывания в древнем городе. Внутри – пять номеров, отсылающих к славянской, африканской, индуистской, европейской и латиноамериканской культурам. Их расширяют общие пространства – терраса с коммунальным столом, эскуплуатируемая кровля с видом на город, укромный сад. Оболочка здания транслирует универсальное высказывание, вбирая в себя черты всех культур.
Идеалы модернизма
В Дубне благодаря инициативе руководства местного научного института реконструировано модернистское здание. По проекту Orchestra Design в бывшем Доме международных совещаний открылся выставочный зал «Галерея ОИЯИ», чья деятельность будет проходить на стыке науки и искусства. И первой выставкой, иллюстрирующей этот принцип, стала экспозиция одного из самых известных художников современности, пионера российского кинетизма Франциско Инфантэ.
Консервация как комментарий
Для руинированной усадьбы Сумароковых-Миллеров, расположенной недалеко от Тарусы, бюро Рождественка предложило концепцию противоаварийных работ, которая помогает восстановить целостность объекта, не нарушая принципов охраны наследия. Временная мера не только стабилизирует памятник и защищает его от дальнейших разрушений, но также позволяет ему функционировать как общественный объект.
Лесные травы
Студия 40 создала интерьер ресторана FOREST в Екатеринбурге, руководствуясь необычным принципом – дизайн должен быть высококлассным и при этом ненавязчивым, чтобы все внимание посетителей было сосредоточено на кулинарных впечатлениях.
«Заря» над волнами
В проекте реконструкции муниципального пляжа «Заря» в Сочи от бюро V6 GROUP – террасирование, «текучий» бетон и открытый бассейн стали ответами на главные вызовы курорта: нехватку места, капризы моря и модернистскую айдентику местной инфраструктуры.
Баня по-царски
Бюро «Уникум» создало собственную версию идеального банного интерьера, отказавшись от расхожих трендов в пользу собственного уникального стиля – нео-русской готики, одновременно роскошной, интригующей и сказочной, что делает поход в эту баню настоящим побегом от серой реальности.
Типографика пространства
Консорциум ab Plombir и проект «ДАЛЬ» разработали комплексную концепцию развития исторического квартала «Нижполиграф» в Нижнем Новгороде. Бывшая типография превращается в креативный кластер и федеральный технопарк профессионального образования. Проект сохраняет промышленную идентичность места, деликатно работает с объектом культурного наследия и программирует 45 000 м2 как единую экосистему для встреч, коллабораций и городской жизни.
За холмами
Бюро Анастасии Томенко спроектировало для участка в районе Жигулевских гор загородный дом. Он одновременно подражает холмистому рельефу и заявляет о своем статусе выразительной скульптурной оболочкой, предлагает уединение и широкие виды, а также разные сценарии использования – от бутик-отеля до частной резиденции.
Звенья одной цепи
Бюро ulab разработало проект жилого комплекса, для которого выделен участок на границе с лесным массивом и экотропой «Уфимское ожерелье». Чтобы придать застройке индивидуальности, архитекторы использовали знакомые всем горожанам образы: башни силуэтом и материалом облицовки соотносятся со скальными массивами, а урбан-виллы – с яркими деревянными домиками. Не оставлено без внимания и соседство с советским кинотеатром «Салют» – доминанта комплекса подчеркивает его осевое расположение и использует паттерн фасада как основу для формообразования.
DELO’вой подход
Компания DELO успешно ведет дела во многих архитектурно-дизайнерских областях. Для того чтобы наилучшим образом представить все свои DELO’вые ипостаси, она создала специальное пространство, в котором торговая, маркетинговая и рабочая функции объединены в единый, очень органичный и привлекательный формат.
Северный ветер
Региональные бренды все чаще обзаводятся своими шоу-румами в лучших московских торговых центрах, и это дает возможность не только познакомиться с новыми именами в фэшн-дизайне, но и увидеть яркие произведения интерьерного дизайна от успешных бюро, достигших успеха в своих родных городах и уверенно завоевывающих столичный рынок.
Всматриваясь вдаль
Гордость за свой город и стремление передать его genius loci во всех своих проектах – вот настоящее кредо каждого питерского архитектора. И бюро ZIMA уверенно следует негласному принципу, без скидок на размеры и функцию, создавая интерьер небольшого магазина модной одежды LESEL так же, как если бы они делали парадную залу.
Школа со слониками
Девелопер «МетроПолис» выступил в несвойственной роли проектировщика при разработке для постконструктивистского детского сада со слониками в московском Щукино концепции реставрации и приспособления под современную школу. Историческое здание дополнит протяженный объем из легковозводимых деревоклееных конструкций. «Пристройку-забор»украсят панно с изображением памятников 1920-1930-х и зеленая кровля. Большим навесом, предназначенным для ожидающих родителей, смогут воспользоваться и посетители городского сквера «Юность».
Гипербола в кирпиче
Апарт-комплекс «Маки» – третья очередь комплекса «Инские холмы» в Новосибирске. Проектная артель 2ПБ создала в ней акцент за счет контраста материалов и форм: в кирпичном объеме, тяготеющем к кубу, сделаны два округлых стеклянных «выреза», в которых отражается город. Специально для проекта разработан кирпич особого цвета и формовки. Рельефная кладка в сочетании с фибробетоном, моллированным стеклом и гранитом делают архитектуру «осязаемой». Также пространство на уровне улицы усложнено рельефом.
Теплый берег
Проектная группа 8 и Институт развития городов и сел Башкортостана во взаимодействии с жителями района на окраине Уфы благоустроили территорию вокруг пруда. Зонировние учитывает интересы рыбаков, любителей наблюдать за птицами, владельцев собак и, конечно, детей и спортсменов. Малые архитектурные формы раскрывают природный потенциал территории, одновременно делая ее более безопасной.
Приближение таинства
Бюро Ивана Землякова ziarch спроектировало для Новой Москвы небольшой храм для венчаний и крещений, который также включает приходское кафе в духе «Антипы». Автор ясно разделяет мирскую и храмовую части, опираясь на аналоги из архангельских деревень. Постройка дополнит основной храм, перекликаясь с ним схожими материалами в отделке.
Жизнерадостный декаданс
Ресторан «Машенька», созданный бюро ARCHPOINT, представляет еще один взгляд на интерьерный дизайн, вдохновленный русскими традициями и народными промыслами. Правда, в нем не так много прямых цитат, а больше вольных фантазий в духе «Алисы в стране чудес», благодаря чему гости могут развлечься разгадыванием визуальных шарад.
Легкая степень брутализма
Особенные люди собираются в особенных местах. Например, в кофейне St.Riders Coffee, спроектированной бюро Marat Mazur interior design специально для сообщества райдеров и любителей экстрима, с использованием материалов и деталей, достаточно брутальных, чтобы будущие посетители почувствовали себя в своей стихии.
Текстильный подход
Бюро 5:00 am создало для фабрики «Крестецкая строчка» и бренда Alexandra Georgieva московский шоу-рум, продолжив эксперименты со стилизацией под классические жилые интерьеры XIX века, в которых благодаря переосмыслению культуры быта и прикладной эстетики актуальные тренды сочетаются с народными традициями, атмосферностью и тактильностью.
Еловый храм
Бюро Ивана Землякова ziarch для живописного участка на берегу Волги недалеко от Твери предложило храм, которые наследует традициям местного деревянного зодчества, но и развивает их. Четверик поднят на бетонный подклет, вытянутая восьмискатная щипцовая кровля покрыта лемехом, а украшением фасада служат маленькие оконца. Сочетание материалов, форм и приемов роднит храм с окружающим лесным пейзажем.
Сезонные настроения
Бюро «Уголок» разработало интерьер одного из филиалов ресторана «М2 Органик клуб», специализирующегося на экологически чистой продукции и органической кулинарии, проиллюстрировав при помощи дизайна каждое из четырех времен года.
Фахверк в формате барнхауса
В проекте загородного дома Frame Wood от AGE architects тектоника мощного фахверкового каркаса освобождена от стереотипов и заключена в лаконичный силуэт барнхауса. Конструкция по-прежнему – главное средство выразительности, но она становится более вариативной, а дом приобретает не характерную для фахверка легкость.
Цветы жизни
Архитектурная мастерская «Константин Щербин и партнеры» разработала мастер-план кампуса Университета имени Лесгафта, который, вероятно, расположится во Всеволожске. Планировочная структура с четким ядром и системой осей напоминает цветочную поляну, в центре которой – учебные корпуса, а ближе к периферии – жилой городок, спортивные объекты и медицинский кластер. В мастер-план заложен зеленый и водный каркас, а также транспортная схема, предполагающая приоритет пешеходов и велосипедистов.
«Призрак» в разноцветном доспехе
Новый формат ресторанов – «призрачная кухня», появившийся не так давно на волне все возрастающей с ковидных времен привычки заказывать ресторанную еду на дом, требовал не менее нового и эффектного дизайна. Именно такое неформальное и жизнерадостное дизайнерское лицо разработало бюро VEA Kollektiv для бренда Why Not Sushi.
Корочка льда
В рамках конкурса «Неочевидное. Арктика» петербургское бюро GRAD предложило для города-спутника Мурманска социальный хаб с видами на Кольский залив. Здание состоит из нескольких модулей, которые группируются вокруг атриума и соединяются мостами. У каждого модуля своя функциональная программа, что на фасаде проявлено различными типами облицовки из перфорированных металлических панелей. В проекте используются prefab-технологии
В ритме Неглинной
Citizenstudio бережно осовременили недостроенный трехэтажный корпус на Неглинной, принадлежащий МФЮА. Ограниченные логикой существующего объема, архитекторы, тем не менее, смогли реализовать достаточно тонкую игру со стилевыми реминисценциями самых разных исторических периодов и максимально деликатно вписаться в контекст центра Москвы.
Искушающая нежность
Бюро «Синица» умеет совершать большие и маленькие чудеса, создавая для магазинов не просто интерьеры, а целую философию. Магия дизайна привносит в пространство новую атмосферу и эстетику, а брендам – дает ключ к пониманию своей миссии.
Между сосен
Публикуем новый кампус Физмат школы Новосибирского государственного университета (НГУ), построенный по проекту AI Studio в Академгородке. Это весьма удачная попытка вписаться в глобальный контекст современного образования, перенеся центр тяжести с фасадов на качество обучающей среды.
Ячейка и кривуля
Детский сад, построенный по проекту BuroMoscow в столичном ЖК Грин парк, удачно балансирует между языком модернизма и эстетикой сделанного цветными карандашами рисунка. Кубический объем с регулярной фасадной сеткой отсылает к сортеру – развивающей игрушке, помогающей в числе прочего почувствовать форму. Роль объемных фигурок для сортировки играют залы, которые выбиваются из общей матрицы и делают элегантные фасады чуть менее серьезными. Яркий цвет этих залов сообщает нежный рефлекс помещениям холлов и групповых комнат, преимущественно белых. Среди других находок: отсутствие забора, встроенные в фасад скамейки и кадки для цветов, деревянные створки на панорамных окнах.
Технологии и материалы
Мегалиты на перспективу
В MIT разработали коллекцию бетонных элементов – они совмещают функции мебели и ограждающих конструкций. Объекты – несмотря на размеры и массу – можно легко перемещать и поворачивать, адаптируя пространство под меняющиеся потребности домовладельцев. Срок службы каждого из девяти предметов серии – 1000 лет.
Материализация образа
Технические новации иногда появляются благодаря воображению архитектора-визионера. Примером может служить интерьер Медиацентра в парке «Зарядье», в котором главным элементом стала фантастическая подвесная конструкция из уникального полимера. Об истории проекта Медиацентра мы поговорили с его автором Тимуром Башкаевым (АБТБ) и участником проекта, светодизайнером Софьей Кудряковой, директором по развитию QPRO.
Моллирование от Modern Glass: гибкость без ограничений
Технологии компании Modern Glass позволяют производить не просто гнутое стекло, а готовые стеклопакеты со сложной геометрией: сверхмалые радиусы, моллирование в двух плоскостях, длина дуги до 7 м – всё это стало возможно выполнить на одном производстве. Максимальная высота моллированных изделий достигает 18 м, благодаря чему можно создавать цельные фасадные поверхности высотой в несколько этажей без горизонтальных стыковочных швов, а также реализовывать сложные комбинированные решения в рамках одного проекта.
Cool Colours: цвет в структуре
Благодаря технологии коэкструзии, используемой в системах Melke Cool Colours, насыщенный цвет оконного профиля перестал вызывать опасения в долговечности конструкции. Работать с темными и фактурными оттенками можно без риска термической деформации и отслаивания.
Быстро, дешево и многоэтажно
Техасский ICON – производитель промышленных 3D-принтеров и компаньон бюро BIG – выпустил на рынок новую печатную систему. Она предназначена для строительных компаний, а не для частных пользователей. Подразумевается, что на установке Titan будут печатать быстровозводимые, качественные и относительно дешевые дома. А рядовые покупатели, пусть и не знакомые с аддитивными технологиями, смогут обзавестись доступным инновационным жильем.
Фальцевая кровля Rooflong как инженерная система
Современная архитектура предъявляет к кровельным системам значительно более высокие требования, чем это было еще несколько лет назад. Речь идет не только о защите здания от внешних воздействий, но и о сложной геометрии, долговечности, интеграции инженерных элементов и точной реализации архитектурной идеи. Так, фальцевая кровля все чаще рассматривается не как отдельный материал, а как часть комплексной оболочки здания.
Эффективные фасады из полимеров
К современным фасадам предъявляются множество требований: они должны быть одновременно легкими и прочными, гибкими и удобными в монтаже, эстетичными и пригодными для повторного использования. Полимерные композитные системы успешно справляются со всеми этими задачами, выходя далеко за рамки традиционной светотехники и стандартных форм. Эффективность выражается в снижении нагрузки на каркас, в простоте монтажа, в возможности создавать сложнейшие скульптурные оболочки. Разберем, как это работает на практике.
По второму кругу
​В Осаке разбирают «Большое кольцо» – гигантскую деревянную конструкцию, построенную по проекту Со Фудзимото для ЭКСПО-2025. Когда демонтаж завершится, древесину от «Кольца» передадут новым владельцам. Стройматериалы пойдут на восстановление домов, пострадавших от стихийных бедствий, и на строительство новых сооружений.
Архитектура потоков: узкие места в проектах логистических...
Проектирование логистических объектов – это не столько про объём, сколько про систему управляемых переходов между зонами. Значительное время работы техники теряется на ожидания, причём основные потери концентрируются не в стеллажном хранении, а в проёмах, стыках температурных контуров и зонах пересечения потоков. Разбираемся, почему реальная производительность склада определяется не характеристиками автоматизации, а временем открытия проёма, и как этот параметр закладывается в проект.
Стекло AIG в проекте Центрального телеграфа
В отреставрированном Центральном телеграфе на Тверской использованы три типа остекления AIG: для исторического фасада, кровли атриума и внутренних ограждений. Основные требования – нейтральность цветопередачи, солнцезащита без затемнения и сохранение визуальной легкости исторического объема.
Три цвета MODFORMAT на фасаде
Жилой комплекс «ЦЕНТР» в Бресте – первый в портфеле «Полесьежилстрой» проект, где фасады полностью выполнены из клинкера удлиненного формата. Квартал из пяти корпусов распродан почти на 100%, строительство продолжается. Разбираемся, что именно сработало: архитектурное решение, выбор материала или их удачное сочетание.
От модерниста – экологисту
Швейцарский архитектор Барбара Бузер получила премию Джейн Дрю 2026 года. Ежегодную премию представительницам слабого пола вручает журнал Architects′ Journal – за профессиональные достижения и «укрепление женского авторитета в профессии».
Зеленые полимеры: эволюция фасадной теплоизоляции
Современная «зеленая архитектура» – это не только про озеленение крыш и солнечные батареи. В первую очередь, это про технологии, снижающие углеродный след здания. Ключевую роль здесь играют теплоизоляционные материалы (ТИМ), позволяющие радикально сократить потребление энергии. Пенополистирол, PIR и другие материалы, которые принято называть «зелеными полимерами» за их вклад в энергоэффективность, сегодня превратились в стандарт индустрии.
Пищевые производства: логистика и температура
Будучи одними из самых сложных объектов с точки зрения внутренней организации, пищевые производства требуют не просто размещения холодильных камер и цехов, а создания системы «климатических островов» внутри здания. Главная сложность возникает в зонах проемов в условиях интенсивного движения техники и персонала. Разбираем инженерные нюансы подбора оборудования, позволяющие обеспечить герметичность без потери энергоэффективности и удобства логистики.
Тепло и форма
Энергоэффективность сегодня – не враг архитектурной выразительности. Полимерные утеплители – ЭППС, ПИР, ППУ – берут на себя нагрузку, усадку и влагу, освобождая фасад от массивных наслоений. Какой материал выбрать для фундамента, фасада и кровли, чтобы сохранить и тепло, и чистоту линий – разбираем в обзоре.
Угольная пыль вместо цемента
Ученые Пермского Политеха и УрФУ создали экологичный бетон с повышенной водостойкостью. В составе материала – тонкомолотые горелые породы, отравляющие экологию угледобывающих регионов.
Материал с характером
За последние годы продажи металлических фасадных кассет в России выросли почти на 40 % – в сегментах бизнес и премиум всё активнее спрос на материалы, которые дают архитектору свободу работать с выразительной формой, не в ущерб безопасности и сроку службы фасада. Металлокассеты стали одним из главных ответов на этот запрос. Смотрим актуальные приёмы их применения на реализованных объектах от компании «Алкотек».
Архитектура воздухообмена
В зданиях большого объема – от спортивных комплексов до производственных корпусов – формирование комфортного микроклимата связано с особыми инженерными задачами. Одной из ключевых становится организация циркуляции воздуха, позволяющая устранить температурное расслоение и обеспечить равномерные условия по всей высоте пространства.
Инновационное остекление для идеального микроклимата:...
В современной архитектуре стеклопакет приобрел множество полезных функций, став полноценным инструментом управления микроклиматом здания. Так, энергосберегающие стеклопакеты эффективно удерживают тепло в помещении, солнцезащитные – предотвращают перегрев, а электрообогреваемые сами становятся источником тепла. Разбираемся в многообразии современных стеклоизделий на примере продукции Российской Стекольной Компании.
Опоры из грибницы
В США придумали новую альтернатива бетону – живой материал на основе мицелия и бактерий. Такой материал способен самовосстанавливаться и годится для применения в конструктивных компонентах зданий.
Сейчас на главной
Светящаяся загадка
Коллекция питерских ресторанов пополнилась в прошлом году еще одним интересным для эстетов и гурманов местом – рестораном Self Edge Chinois от бюро SEEU. Вдохновляясь китайской культурой и искусством, которыми так легко очароваться, но так трудно понять их до конца, архитекторы сделали ставку на творческую интерпретацию наиболее ярких образов, ассоциирующихся с далекой Поднебесной.
Сфера интересов
27 мая открывается 31-я «Арх Москва», на которой по традиции будут представлены несколько авторских павильонов. Публикуем манифест и проектные материалы одного из них. Архитектуру павильона придумал Алексей Ильин, руководитель собственной мастерской, работающий в оригинальной художественной манере, генеалогия которой восходит еще к т.н. планетарному (Space Age) стилю в дизайне, а также архитектуре монреальского ЭКСПО 1967 года, в значительной степени вдохновленной космосом.
Афинская школа в сочинском парке
Дети – не маленькие взрослые. Школа – не офис для детей. Сочи – это юг. Это три утверждения, с которых BuroMoscow начали работу над концепцией лицея «Сириус», – и три архитектурных решения, из которых сложился проект.
Развитие и поддержка
По проекту бюро ulab рядом с храмом Андрея Рублева в Раменках строится центр дополнительного образования для молодых людей, оказавшихся в трудной жизненной ситуации. На форму здания повлияло желание соединить зеленый внутренний двор, активную зону у главного входа, а также атриум как главное общественное пространство.
Скрытый источник
Концептуальный проект купели близ пещерного монастыря Качи-Кальон – собственная инициатива архитектора Артема Зайцева. Формы здания основаны на гармонии золотого сечения, вторят окружающему скальному ландшафту и отсылают к раннехристианскому зодчеству.
В поисках вопросов
На острове Хайнань открылось новое здание музея науки по проекту MAD. Все его выставочные зоны выстроены в единый маршрут, развивающийся по спирали.
Между fair и tale, или как поймать «рынок» за хвост
На ВДНХ открылась выставка «Иномарка», исследующая культовую тему романтического капитализма 1990-х. Ее экспозиционный дизайн построен на эксперименте: его поручили трем авторам; а эффект знакомый – острого натурализма, призванного погрузить посетителя в ностальгическую атмосферу.
Казанские перформансы
В последние дни мая в Казани в шестой раз пройдет независимый фестиваль медиаискусства НУР, объединяющий медиахудожников, музыкантов и перформеров со всего мира. Организаторы фестиваля стремятся показать знаковые архитектурные объекты Казани с другого ракурса, открыть скрытые исторические части города и погрузить зрителей в новую реальность. Особое место в программе занимают музыкально-световые инсталляции. Рассказываем, что ждет гостей в этом году.
Друзья по крыше
В честь 270-летия Александринского театра на крыше Новой сцены откроется общественное пространство. Варианты архитектурной концепции летней многофункциональнй площадки с лекторием и камерной сценой будут создавать студенты петербургских вузов в рамках творческой лаборатории под руководством «Студии 44». Лучшее решение ждет реализация! Рассказываем об этой инициативе и ждем открытия театральной крыши.
На воскресной электричке
Для поселка Ушково Курортного района Санкт-Петербурга архитектурная мастерская М119 подготовила проект гостиницы с отдельно стоящим физкультурно-оздоровительным центром. Ячейки номеров, деревянные рейки на фасадах, а также бетонные блоки, акцентирующие функциональные блоки, отсылают к наследию советских санаториев и детских лагерей.
Наука на курорте
Здание для центра научно-промышленных исследований Чжэцзянского университета на острове Хайнань извлекает максимум из мягкого климата и видов на море. Авторы проекта – UAD, архитектурный институт в составе того же вуза.
Идеалы модернизма
В Дубне благодаря инициативе руководства местного научного института реконструировано модернистское здание. По проекту Orchestra Design в бывшем Доме международных совещаний открылся выставочный зал «Галерея ОИЯИ», чья деятельность будет проходить на стыке науки и искусства. И первой выставкой, иллюстрирующей этот принцип, стала экспозиция одного из самых известных художников современности, пионера российского кинетизма Франциско Инфантэ.
Мембрана для мысли: IND
Бюро IND предложило для ФИЦ биомедицинских технологий проект, вдохновлённый устройством нейронной сети: многогранные полупрозрачные объёмы, сдвинутые относительно друг друга, образуют «живую структуру» – с «синапсами» общих дворов, где случайный разговор в атриуме может превратиться в научную коллаборацию.
Сплав мировых культур
Гостевой дом, построенный по проекту Osetskaya.Salov на окраине Переславля-Залесского, предлагает путешественнику насыщенное пространство, которое дополнит опыт пребывания в древнем городе. Внутри – пять номеров, отсылающих к славянской, африканской, индуистской, европейской и латиноамериканской культурам. Их расширяют общие пространства – терраса с коммунальным столом, эскуплуатируемая кровля с видом на город, укромный сад. Оболочка здания транслирует универсальное высказывание, вбирая в себя черты всех культур.
«Шартрез д’Эма»: монастырь под Флоренцией как архетип...
Петр Завадовский рассматривает влияние картезианского монастыря в тосканском Галлуццо на формирование концептуальных основ жилищной архитектуры Ле Корбюзье, а также на его проект «дома вилл» – Immeuble-villas.
КиноГолограмма
Не так давно московскими властями был одобрен проект нового комплекса Дома Кино от архитекторов Kleinewelt. Старое здание 1968 года сохранить не удалось – зато авторы сберегли витражи, металлические рельефы, а также объемные параметры здания, в котором разместится Союз кинематографистов и кинозалы. А главным акцентом станет жилая башня. Изучаем ее пластику и аллюзии в московском контексте.
Форма как метод: ТПО «Резерв»
В основе концепции Владимира Плоткина и ТПО «Резерв» – нетривиальная морфология, работающая на решение функциональных задач помимо чисто формальных. Хотя больше всего, конечно, на выразительность и создание редкостного – как можно предположить, рассматривая ключевые решения проекта, пространственно-эмоционального опыта. Изучили, оно того стоит. Наша версия – в таком проекте работает не стиль и даже не метафора, а метод.
Консервация как комментарий
Для руинированной усадьбы Сумароковых-Миллеров, расположенной недалеко от Тарусы, бюро Рождественка предложило концепцию противоаварийных работ, которая помогает восстановить целостность объекта, не нарушая принципов охраны наследия. Временная мера не только стабилизирует памятник и защищает его от дальнейших разрушений, но также позволяет ему функционировать как общественный объект.
Хроника Шуховской башни
Над шаболовской башней сгущается, теперь уже всерьез. Ее собираются построить в новом металле – копию в натуральную величину. Сейчас, вероятно, мы находимся в последней точке невозврата. Айрат Багаутдинов, основатель проекта «Москва глазами инженера», собрал впечатляющую подборку сведений по новейшей истории башни: попытки реконструкции, изменения предмета охраны и общественный резонанс. Публикуем. Сопровождаем фотографиями современного состояния.
Лесные травы
Студия 40 создала интерьер ресторана FOREST в Екатеринбурге, руководствуясь необычным принципом – дизайн должен быть высококлассным и при этом ненавязчивым, чтобы все внимание посетителей было сосредоточено на кулинарных впечатлениях.
Земельные отношения
Экоферма Цзаохэ в предместье Пекина восстанавливает отношения между человеком, землей и пищей. Fon Studio в своем проекте предсказуемо обратилось к традициям и легендам.
Курган памяти
Конкурсный проект мемориального комплекса на Пулковских высотах от «Студии 44» не будет реализован, но мы хотим о нем рассказать – это интересный пример того, как с помощью архитектуры можно символизировать травматичные события и тем самым способствовать их переработке и интеграции в опыт человека. Кроме того, авторам удается совместить мемориальную функцию с рекреационной, не уходя ни в драматизацию, ни в упрощение. Проект развивает идеи двух других конкурсных работ, ушедших в стол, – Музея блокады и парка «Тучков буян». А еще – отсылает к холму-кургану, который Александр Никольский воплотил в облике уже утраченного стадиона на Крестовском острове.
Между цирком и рынком
Манеж для представлений по проекту K architectures на конном заводе в Бретани соединяет ресурсоэффективность с традициями французской архитектуры.
Баня по-царски
Бюро «Уникум» создало собственную версию идеального банного интерьера, отказавшись от расхожих трендов в пользу собственного уникального стиля – нео-русской готики, одновременно роскошной, интригующей и сказочной, что делает поход в эту баню настоящим побегом от серой реальности.
«Заря» над волнами
В проекте реконструкции муниципального пляжа «Заря» в Сочи от бюро V6 GROUP – террасирование, «текучий» бетон и открытый бассейн стали ответами на главные вызовы курорта: нехватку места, капризы моря и модернистскую айдентику местной инфраструктуры.
Белый конгломерат: AI-Architects
Белые цилиндры «слипаются», расширяются кверху и подсвечиваются изнутри, как гигантские лабораторные колбы. Внутри – атриум-амфитеатр, где наука становится зрелищем. Мы продолжаем публиковать конкурсные проекты ФИЦ оригинальных и перспективных биомедицинских и фармацевтических технологий и показываем концепцию от консорциума «АИ-АРХИТЕКТС+ТОЛК+ZLT+АрТех Лаб».
Между фантазией и реальностью: ПАСП & РОСТ
Начинаем публикацию конкурсных проектов ФИЦ биомедицинских и прочих технологий – с проекта, занявшего 6 место. Но Сергей Кузнецов сказал, что «разрыв между участниками был минимальным». А значит, все интересны. Предваряем обзором участка и задач – только так можно понять конкурсные проекты. Проект воронежской команды настроен на практику и удобство, рациональный подход к построению и вероятным трансформациям. Какое у них ключевое решение – читайте в тексте.
Типографика пространства
Консорциум ab Plombir и проект «ДАЛЬ» разработали комплексную концепцию развития исторического квартала «Нижполиграф» в Нижнем Новгороде. Бывшая типография превращается в креативный кластер и федеральный технопарк профессионального образования. Проект сохраняет промышленную идентичность места, деликатно работает с объектом культурного наследия и программирует 45 000 м2 как единую экосистему для встреч, коллабораций и городской жизни.
За холмами
Бюро Анастасии Томенко спроектировало для участка в районе Жигулевских гор загородный дом. Он одновременно подражает холмистому рельефу и заявляет о своем статусе выразительной скульптурной оболочкой, предлагает уединение и широкие виды, а также разные сценарии использования – от бутик-отеля до частной резиденции.