Участвуя в новом конкурсе, NEFA отталкивалась от собственного уже сделанного предложения, поэтому их проект можно со всеми основаниями отнести к разряду, скажу так, реализуемых, то есть – не фантастических. Надо сказать, NEFA известны своей работой с транспортными объектами, и терминалами аэропортов, и станциями метро. Они знают, о чем говорят, и, надо думать, здраво оценивают степень и фантазийности, и реалистичности.
Сам по себе омский конкурс – большой: 14 проектов известных бюро, и они подразделяются на экономные, но зато стопроцентно реализуемые, и смелые, отвечающие на заявленную репрезентативную задачу, красивые, но как следствие фантастические. Все это в разной степени и с нюансами, разумеется.
Так вот, проект Дмитрия Овчарова – из реальных. Между тем он вовсе не лишен идей и – важно заметить, что концепция NEFA была признана жюри и вошла в семерку полуфиналистов, обсуждавшихся на омском градсовете.
Аэропорт Омск-Фёдоровка. Снежная крепость
© ′nefa′architects′
Пропорции терминала – традиционные «простые», стекла в зенитных фонарях не так много; преобладают ортогональные объемы. Впрочем авторы объясняют лаконизм не только экономией, но и оммажем омскому модернизму.
Действительно, острый металлический козырек, крупные буквы авангардного шрифта перед фасадом – простые, но зато на всю высоту, и особенно круглые фонари, – все это напоминает об аэропортах первого периода настоящего развития авиации в нашей стране, в семидесятые годы. Особенно хорош козырек перехода от вокзала к аэропорту: бетонной птичкой, с круглыми отверстиями, на одном ряду «ног».
Аэропорт Омск-Фёдоровка. Снежная крепость
© ′nefa′architects′
Основную идею архитекторы NEFA формулируют так: отталкиваясь от воспоминания об остроге и от «снежности» Омска, они предлагают «крепость», но игровую, «снежный», хотя скорее ледяной, «городок» из стекла и волнистого полированного металла. Отсюда и объемная пикселизация стен, как будто составленных из ледяных блоков, и бассейн перед всем главным фасадом: «крепость» как будто тает, ну и заодно – отражается, удваивается.
Аэропорт Омск-Фёдоровка. Снежная крепость
© ′nefa′architects′
Аэропорт Омск-Фёдоровка. Снежная крепость
© ′nefa′architects′
С идеей зимнего катка перед аэропортом можно поспорить: ну кто будет кататься перед терминалом? Кто будет поддерживать лед? Но, с другой стороны, красиво же.
Аэропорт Омск-Фёдоровка. Снежная крепость
© ′nefa′architects′
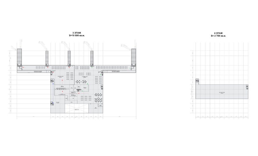
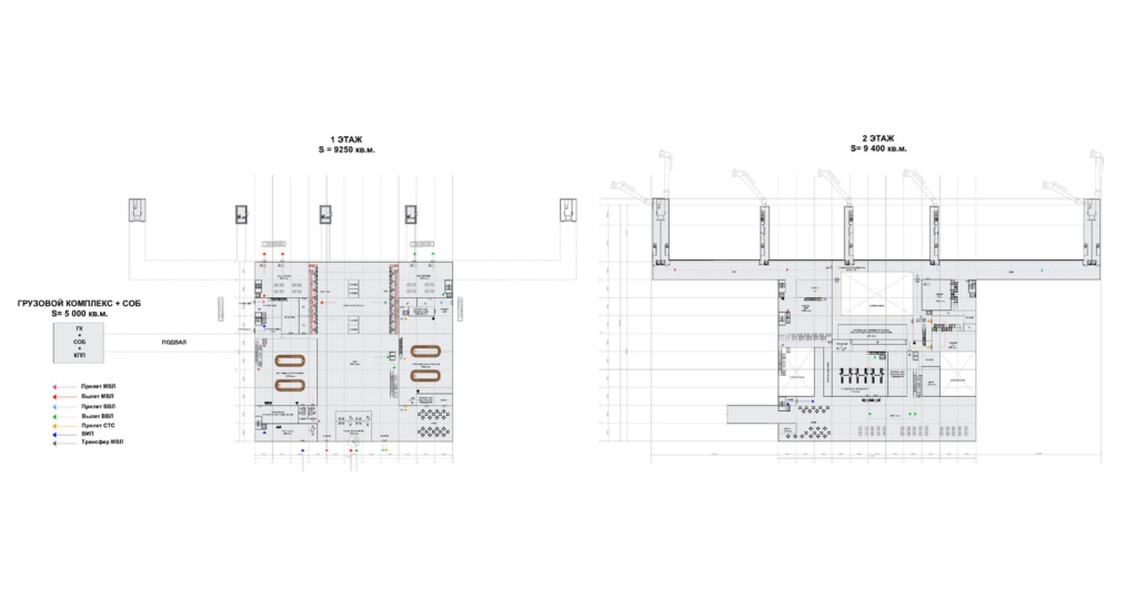
Тему развивают павильоны, разбросанные, как горох – а точнее как блоки, оставшиеся от строительства снежного городка, по всей площади перед вокзалом. Их много, и на вопрос об их функции авторы отвечают, что там могли бы быть разнообразные павильоны, в том числе торговые и кафе. Существенно, что под всей площадью в этом проекте предложена подземная парковка – во многих других парковка была плоскостная, чаще с бульваром посередине, но все же на площади машин было много, а тут – кажется, ни одной, все убраны под землю. Среди кубиков-павильонов видим круглое отверстие со спиральным пандусом из-под земли: так авторы видят выход из парковки на площадь, хотя, конечно, непосредственно в аэропорт из-под земли тоже можно было бы попасть.
Лучше всего идея ледяной крепости выражена в вечерних видах: именно тогда каждый из уложенных слегка-асимметрично блоков светится, переливается, и все здание кажется ледяным кубом, внутрь которого поставили фонарик. Что вовсе не выглядит экономным решением. А вот диспетчерская башня очень похожа на ту, которая недостроена сейчас: возможно, это было одно из экономных решений, не сносить ее ради чего-то эффектного, а сохранить. Хотя о таких нюансах в конкурсных проектах говорить, как правило, преждевременно.
В отличие от стеклянно-металлических фасадов, интерьеры авторы оживляют активным красным, заимствуя его на одной из версий герба области – который, замечу вскользь, за последние 20 лет менялся несколько раз.
На гербе изображена крепостная стена с бастионами – отсюда цвет, хотя некоторую его авангардность и ретро-советизм тоже сложно было бы отрицать. На схемах видно происхождение и крепостной темы, и цвета:
Между тем внутри красный не похож на флаг: судя по проекту, он должен был приобрести глубину насыщенного цветного стекла, сиять как драгоценный камень, на который так похоже рубиновое стекло. То есть снаружи у нас тут лед прохладный, а внутри – этакие горячие стержни.
Аэропорт Омск-Фёдоровка. Снежная крепость
© ′nefa′architects′
***
Итак, на данный момент нам удалось показать 11 проектов из 14 конкурсных предложений для аэропорта Омска. Напомним, что в результате сначала профессионального отбора, потом народного голосования в telegram победил проект бюро ХВОЯ, который с небольшим отрывом обошел предложение «Студии 44», которое тоже можно считать фаворитом омского соревнования.Напомним также, что сейчас действующий омский аэропорт находится так близко к центру города, как мало где – в 2.5 километрах от центра города и той самой крепости, бастионы которой нарисованы на гербе. Решение о переносе аэропорта из центра на 18 км от города к северо-западу было принято в 1979 (!) году, строительство в Федоровке началось в 1983, затем озвучивались планы с длинным сроком 1989–2016. История, в том числе с сменой имущественной принадлежности, описана здесь. В той же статье говорится, что вокруг уже залитых бетоном взлетных полос «образовалось болото», и недостроенный аэропорт надо полностью разбирать. На 2018 год, видимо к моменту начала первого конкурса, проект выглядел так. Сейчас на картах неплохо виден недостроенный терминал, с ломаным подковообразным контуром.
Продолжаем наблюдать, читатели выражают сомнения в реализации смелых планов нового омского аэропорта, но как знать.


