Многоквартирный дом Highnote
Фото © Sebastian van Damme
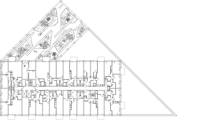
Именно на них рассчитан новый дом на 157 квартир (причем 67 из них предназначены для двух независимых арендаторов – друзей или просто соседей). Он возведен на парковке рядом с ратушей, рядом расположен театр, культурный центр, концертная площадка, а также полицейское управление и парк.
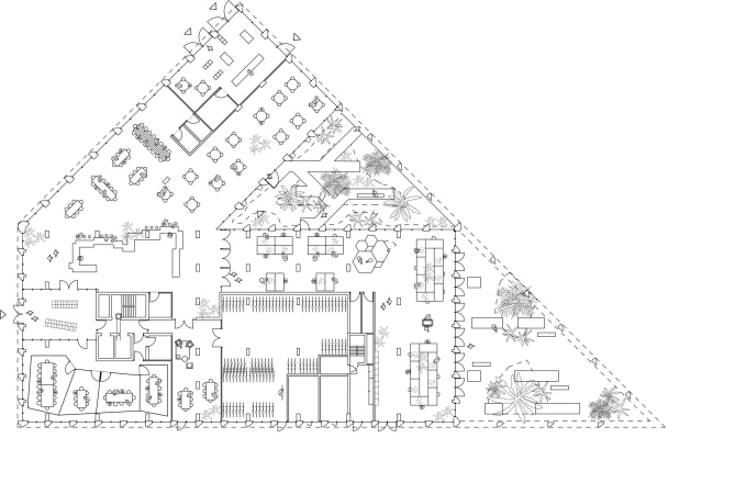
Небольшой участок – неудобной треугольной формы, но архитекторы не стали бороться с ним, а добавили к своей башне треугольный подиум, окруженный колоннадой. Здесь устроена серия «городских комнат», открытых и интерьерных. Так, на площади планируется устанавливать арт-объекты и проводить мероприятия, также здесь могут работать на открытом воздухе сотрудники соседних учреждений культуры. Есть здесь и более приватное зеленое пространство. На кровле расположена терраса-сад, доступная только жильцам, которые могут устраивать здесь вечеринки, заниматься спортом или просто отдыхать. В основании башни есть пространство наподобие коворкинга, рассчитанное на представителей креативных индустрий, а также кафе и ресторан.
Многоквартирный дом Highnote
Фото © Sebastian van Damme
Дом противопоставлен масштабным зданиям 80-х и 90-х со стеклянными и металлическими фасадами. Он подчеркнуто многочастен, с разным ритмом балконов и оконных проемов, разделен на ярусы-ступени, обращен к городу «таинственной», как ее определяют сами авторы, колоннадой. Самым заметным качеством новостройки является ее цвет: здесь использован окрашенный в приглушенный красный цвет бетон.
Многоквартирный дом Highnote
Фото © Sebastian van Damme
При сооружении фасада широко использовались сборные бетонные элементы, что значительно ускорило строительство и позволило практически обойтись без лесов. Общая площадь Highnote – 16 тысяч м2.
Многоквартирный дом Highnote
© Studioninedots
Многоквартирный дом Highnote
© Studioninedots
