Многоквартирный дом Octavia Hill
© SURREND3R
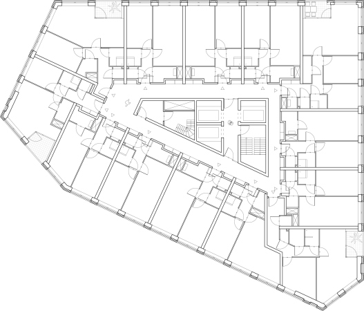
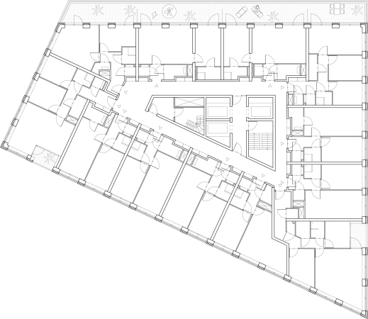
Речь идет всего о 400 тыс. м2 жилья, магазинов и кафе, социальной инфраструктуры. Дом Octavia Hill, который начали строить в конце 2023-го и планируют завершить в июле 2025-го, вместит 9500 м2 площади.
Многоквартирный дом Octavia Hill
© SURREND3R
Он расположен в центре нового района, на пересечении трех градостроительных и визуальных осей, и сложная форма позволит ему восприниматься иначе с разных точек зрения.
Многоквартирный дом Octavia Hill
© SURREND3R
Архитекторам также было важным придать ему определенную абстрактность: для этой цели использованы штабельная кладка из сине-зеленого ангобированного кирпича на фасадах и такая же регулярная сетка из одинаковых оконных проемов. Благодаря ограждениям все окна можно будет полностью открыть.
Многоквартирный дом Octavia Hill
© SURREND3R
Срезанные углы наверху превращены в каскад террас, доступных всем жильцам для отдыха и общения. Внизу «вырезы» оживляют 5-метровый первый этаж с кафе и коворкингом, предназначенными для жителей Hyde Park’а: так размывается граница между общественными пространствами внутри и снаружи.
