Жилье для студентов DC van Hall
Фото © Sebastian van Damme
В наши дни это здание устарело морально и физически, а также изменились его окружение – две прежних фабрики приобрели статус памятника и новое «сервисное» назначение, вокруг возвели жилые дома – и конъюнктура рынка: самым востребованным стало доступное жилье. Так возник проект превращения конторы Westerpark в дом студентов и аспирантов.
Жилье для студентов DC van Hall
Фото © Stadsarchief Amsterdam
В ходе реконструкции бетонная конструкция была раскрыта в интерьер, где она сочетается с пастельными цветами стен и лампами дневного света, использованными в том числе и как декор.
Жилье для студентов DC van Hall
Фото © Sebastian van Damme
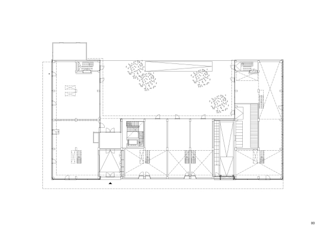
Витрины первого этажа превратились в сплошное остекление, за которым открылись кафе и магазины мелких предпринимателей, востребованные как студентами, так и местными жителями. Эта перемена благоприятно повлияла на атмосферу в районе, как и превращение в открытый всем горожанам сад заасфальтированного двора-парковки. Восстановлен утраченный навес вдоль главного фасада, защищающий пешеходов от дождя и солнца.
Фасад из темных металлических панелей напоминает о ритме и трактовке изначальных стен, но также увязывает здание с окружением, где преобладает кирпич насыщенных тонов.
Жилье для студентов DC van Hall
Фото © Sebastian van Damme
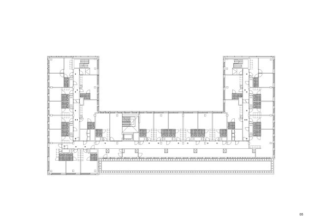
На площади в 10,4 тыс. м2 разместились 168 студий, пространства общего пользования, на первом этаже – коммерческие учреждения.
Жилье для студентов DC van Hall
Фото © Sebastian van Damme
Жилье для студентов DC van Hall
Фото © Sebastian van Damme
