Компактный доходный дом в квартале Гиндза в Токио
                Фотография © Noriyuki Yano / предоставлена Akira Koyama + Key Operation Inc. / Architects
        Вызовов оказалось даже слишком много: трехэтажное здание не могло обеспечить необходимую доходность, а дома выше обязаны иметь лифт; размещенные снаружи лифт и лестница перекрывали бы обзор, а если их оставить у задней стены, то появляется коридор, который «съедает» драгоценные метры. Необходим был еще и подземный уровень, при этом близость соседнего здания исключала возможность строительства традиционной подпорной стенки.
Компактный доходный дом в квартале Гиндза в Токио
                Фотография © Noriyuki Yano / предоставлена Akira Koyama + Key Operation Inc. / Architects
        Компактный доходный дом в квартале Гиндза в Токио
                Фотография © Noriyuki Yano / предоставлена Akira Koyama + Key Operation Inc. / Architects
        Компактный доходный дом в квартале Гиндза в Токио
                Фотография © Noriyuki Yano / предоставлена Akira Koyama + Key Operation Inc. / Architects
        Был применен «способ открытого кессона», когда части фундамента отливаются на поверхности и затем постепенно опускаются под собственным весом на нужную глубину: в данном случае на 6 м опустили сначала фрагмент высотой 2,5 м, а затем еще один – 3,5-метровый. На финальной стадии установки происходит трудоемкий процесс выравнивания всей конструкции. Технология в основном используется при возведении инженерных сооружений и промышленных объектов и почти не применяется в жилом строительстве, от подрядчика она требует особых навыков и опыта. На бетонном основании возвели тонкие стальные конструкции, в основе которых – квадратные балки со стороной 125 или 150 мм с пожаростойким покрытием.
Компактный доходный дом в квартале Гиндза в Токио
                Фотография © Noriyuki Yano / предоставлена Akira Koyama + Key Operation Inc. / Architects
        Компактный доходный дом в квартале Гиндза в Токио
                Фотография © Noriyuki Yano / предоставлена Akira Koyama + Key Operation Inc. / Architects
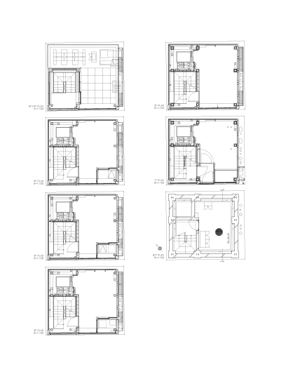
        В подвале разместили места для хранения, электрощит, телекоммуникационное оборудование и канализационные сливы. Лифт и лестница заняли пространство вдоль примыкающего к соседнему зданию бокового фасада, на первом этаже осталось достаточно площади для небольшого ресторанчика или, например, ювелирного бутика, а все верхние этажи предназначены под аренду. Еще один боковой фасад полностью закрыт железной сеткой, за которой спрятана инженерия. Доступ к ней обеспечен и из внутренних помещений, чтобы арендаторам было легче модифицировать системы. Ну а на крыше также размещены блоки системы кондиционирования и вентиляции и сделана открытая терраса для жильцов с барной стойкой.
Компактный доходный дом в квартале Гиндза в Токио
                © Akira Koyama + Key Operation Inc. / Architects
        
 
                         
            
            
         
                            
 
                                         
                                         
                                         
                                         
                                         
                                         
                             
                             
                             
                                         
                                         
                                         
                                         
                             
                             
                                         
                                         
                                         
                                         
                                         
                             
                     
                                                                        
                                                                     
                                                                        
                                                                     
                                                                        
                                                                     
                                                                        
                                                                     
                                                                        
                                                                     
                                                                        
                                                                     
                                                                        
                                                                     
                                                                        
                                                                     
                                                                        
                                                                     
                                                                        
                                                                     
                                                                        
                                                                     
                                                                        
                                                                     
                                                                        
                                                                     
                                                                        
                                                                     
                                                                        
                                                                     
                                                                        
                                                                     
                                                                        
                                                                     
                                                                        
                                                                     
                                                                        
                                                                     
                                                                        
                                                                     
                                                                        
                                                                     
                                                                        
                                                                     
                                                                        
                                                                     
                                                                        
                                                                     
                                                                        
                                                                     
                                                                        
                                                                     
                                                                        
                                                                     
                                                                        
                                                                     
                                                                        
                                                                     
                                                                        
                                                                     
                                                                        
                                                                     
                                                                        
                                                                     
                                                                        
                                                                     
                                                                        
                                                                     
                                                                        
                                                                     
                                                                        
                                                                     
                                                                        
                                                                     
                                                                        
                                                                     
                                                                        
                                                                     
                                                                        
                                                                     
                                                                        
                                                                     
                                                                        
                                                                     
                                                                        
                                                                     
                                                                        
                                                                     
                                                                        
                                                                     
                                                                        
                                                                     
                                                                        
                                                                     
                                                                        
                                                                     
                                                                        
                                                                     
                                                                        
                                                                     
                                                                        
                                                                     
                                                                        
                                                                     
                                                                        
                                                                     
                                                                        
                                                                     
                                                                        
                                                                     
                                                                        
                                                                     
                                                                        
                                                                     
                                                                        
                                                                     
                                                                        
                                                                     
                                                                        
                                                                     
                                                                        
                                                                     
                                                                        
                                                                     
                                                                        
                                                                     
                                                                        
                                                                     
                                                                        
                                                                     
                                                                        
                                                                     
                                                                        
                                                                     
                                                                        
                                                                     
                                                                        
                                                                     
                                                                        
                                                                     
                                                                        
                                                                     
                                                                        
                                                                     
                                                                        
                                                                     
                                                                        
                                                                     
                                                                        
                                                                     
                                                                        
                                                                     
                                                                        
                                                                     
                                                                        
                                                                     
                                                                        
                                                                    