Штаб-квартира Juzen Chemical Corporation в Тояме
Фотография © Shigeo Ogawa / предоставлена Key Operation Inc. / Architects
Штаб-квартира Juzen Chemical Corporation в Тояме
Фотография © Shigeo Ogawa / предоставлена Key Operation Inc. / Architects
Штаб-квартира Juzen Chemical Corporation в Тояме
Фотография © Shigeo Ogawa / предоставлена Key Operation Inc. / Architects
Штаб-квартира Juzen Chemical Corporation в Тояме
Фотография © Shigeo Ogawa / предоставлена Key Operation Inc. / Architects
Штаб-квартира Juzen Chemical Corporation в Тояме
Фотография © Shigeo Ogawa / предоставлена Key Operation Inc. / Architects
На относительно небольшом, но весьма перспективном участке на берегу реки Дзиндзу, поблизости от парковой зоны, уже находилось сразу несколько принадлежавших компании зданий, в частности, производственные корпуса, исследовательский центр и центр разработки. Но административные функции были разбросаны по нескольким местам, что тормозило развитие этого семейного бизнеса. Осложняла ситуацию и необходимость сохранить небольшой жилой дом по соседству и учитывать наличие скромной зеленой зоны с детской площадкой. Еще одной неприятной особенностью участка являются возможные наводнения, при которых уровень воды может подниматься до 3 метров.
Штаб-квартира Juzen Chemical Corporation в Тояме
Фотография © Shigeo Ogawa / предоставлена Key Operation Inc. / Architects
Штаб-квартира Juzen Chemical Corporation в Тояме
Фотография © Shigeo Ogawa / предоставлена Key Operation Inc. / Architects
Штаб-квартира Juzen Chemical Corporation в Тояме
Фотография © Shigeo Ogawa / предоставлена Key Operation Inc. / Architects
Штаб-квартира Juzen Chemical Corporation в Тояме
Фотография © Shigeo Ogawa / предоставлена Key Operation Inc. / Architects
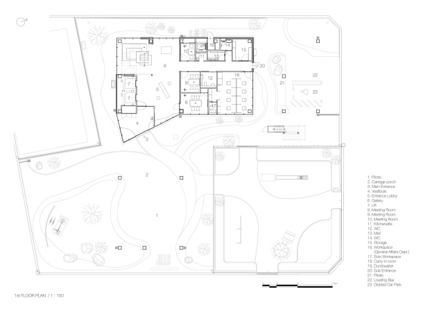
Чтобы ответить на все вызовы, архитекторы выбрали для нового корпуса Г-образный план, где «перекладина буквы» ниже, чем основная часть. Здание установлено так, что аккуратно обнимает зеленую зону и не заслоняет жилой дом. Дополнительно весь объем поднят на опоры, что позволило не только защититься от наводнения, но и создать сад, засаженный местными лечебными травами и растениями и оформленный невероятными камнями из сада основателя компании. Пространство открыто для всех, обеспечивая проницаемость и связанность всех элементов городской среды.
Штаб-квартира Juzen Chemical Corporation в Тояме
Фотография © Shigeo Ogawa / предоставлена Key Operation Inc. / Architects
Штаб-квартира Juzen Chemical Corporation в Тояме
Фотография © Shigeo Ogawa / предоставлена Key Operation Inc. / Architects
Штаб-квартира Juzen Chemical Corporation в Тояме
Фотография © Shigeo Ogawa / предоставлена Key Operation Inc. / Architects
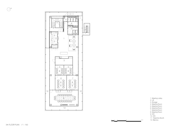
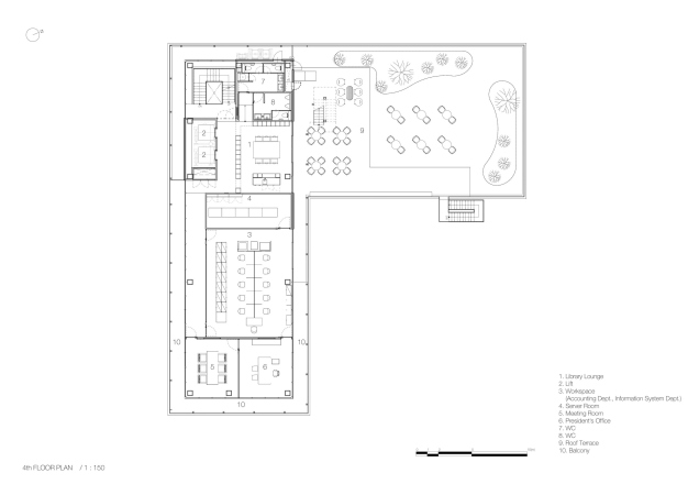
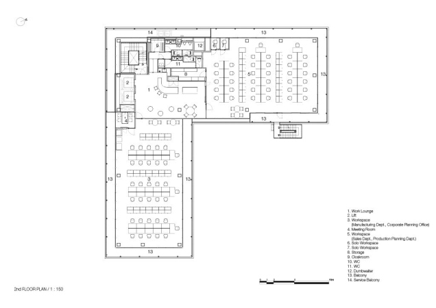
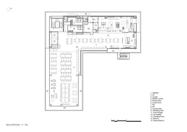
Благодаря сплошному остеклению небольшой парк естественным образом «входит внутрь», продолжаясь в вестибюле, расположенном в углу буквы Г. Внизу, кроме входной зоны, размещены небольшие переговорные – преимущественно для быстрого обсуждения вопросов. Второй этаж занят собственно рабочим пространством, в котором архитекторы предусмотрели различные форматы совместной работы: от запланированной заранее групповой встречи с демонстрацией материалов на экране до краткого обмена опытом за небольшим столиком. Третий этаж полностью занят столовой для сотрудников, которая продолжается зеленой зоной отдыха на кровле меньшего из двух объемом здания. Всего в административном корпусе работает около 70 человек, но столовая обслуживает всех 310 сотрудников, а еще может выступать как лекционное пространство; поэтому она стала таким важным элементом проекта. К ней примыкает небольшая библиотека, где можно уединиться с кофе и почитать одну из книг, собранных основателем фирмы. Еще выше находится вторая рабочая зона, а на самом верху устроены более официальные переговорные и кабинет руководителя.
Все помещения имеют сплошное остекление и выход на просторные террасы-галереи, идущие на каждом ярусе по всему периметру. С них открываются виды не только на горный хребет (он настолько важен, что даже логотип компании размещен на металлических рейках, повторяющих его силуэт), но и на производственные зоны, и на реку, и на парк. Свесы затеняют помещения, а галереи могут быть задействованы при пожарной эвакуации и используются для размещения инженерных систем. Ну а в качестве смягчающей, теплой ноты использовали реечные потолки из японской сосны, которые объединяют внешние и внутренние зоны. Закругленной формой выступающих концов они напоминают днища традиционных торговых лодок. В вечернее время эти скосы эффектно подсвечены, так что форма оказывается выявлена еще более точно.
Подробную видеоэкскурсию по офису можно совершить здесь.
Штаб-квартира Juzen Chemical Corporation в Тояме
© Key Operation Inc. / Architects
Штаб-квартира Juzen Chemical Corporation в Тояме
© Key Operation Inc. / Architects
