Работа в рамках курса проводится довольно объемная. В этом году в поле зрения дизайнеров попали объекты из регионов, которые местные сообщества планируют серьезно обновить и превратить в современные и многофункциональные площадки. Стоит отметить, что во всех проектах основной упор – на экологичность.
Федор Ращевский, куратор курса:
«Работа шла с большим воодушевлением, как по теме аэропорта, так и по теме арт-кластеров – сам масштаб проектов очень вдохновлял студентов. Мы старались максимально рационально осмыслять такие разные и сложные многоплановые пространства. Формировать понятный стержневой дизайн-код, набор приемов и инчтрументов, чтобы создать целостные проекты.
Все студенты, на мой взгляд, совершили личный творческий прорыв в своих дипломных работах, так или иначе, ничего подобного по объему им ранее делать не приходилось. Важно что наш курс дал им возможность посмотреть на процесс проектирования не только со стороны архитектора-творца, а с многих точек зрения, уже более свойственных Архитектору-практику, вооруженному максимальным арсеналом подходов».
Ниже – все три разработанных студентами последнего потока проекта. Новый стартует в октябре.
Арт-кластер на территории бывшего Центрального рынка в Улан-Удэ
Концепция арт-кластера на территории бывшего Центрального рынка в Улан-Удэ. Авторы: Илья Смирнов, Михаил Мельников, Александра Дебрянская
Изображение предоставлено БВШД
Концепция арт-кластера на территории бывшего Центрального рынка в Улан-Удэ. Авторы: Илья Смирнов, Михаил Мельников, Александра Дебрянская
Изображение предоставлено БВШД
Авторы преследовали цель обеспечить горожан – независимо от их возраста – современным пространством для творчества, общения и отдыха. Здесь запланированы: рынок, ресторан, маркеты уличной еды, коворкинг, лекторий, магазин дизайнерской одежды, фотостудия и другие функциональные пространства.
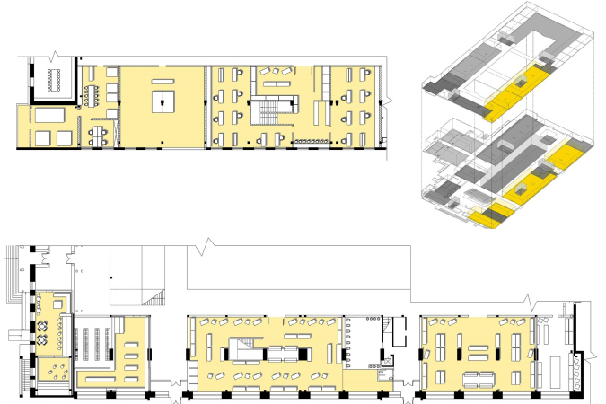
Ревитализация территории и интерьеров бывшего ликеро-водочного завода «Ливона» в Улан-Удэ
Концепция ревитализации территории и интерьеров бывшего ликеро-водочного завода «Ливона» в Улан-Удэ. Авторы: Анисия Данилина, Евгения Губарева, Ольга Шумская
Изображение предоставлено БВШД
Целью проекта было не только возрождение и развитие заброшенной части Улан-Удэ, но также создание уникального и функционального пространства, которое объединит неординарных, творчески направленных, активных горожан. Авторы предлагают разместить на этой территории детскую школу развития, творческие мастерские, коворкинг, летний кинотеатр, спорт-площадки, пляж и другие зоны отдыха. И это лишь часть из предложенного.
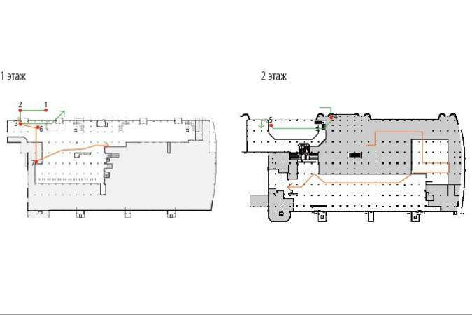
Интерьеры терминала B, аэропорт «Кольцово»
Дизайн-проект интерьеров терминала B, аэропорт «Кольцово». Авторы: Екатерина Дуброва, Татьяна Павлова
Изображение предоставлено БВШД
Проект пропитан идеей популяризации экологичного поведения. Здесь, в аэропорту, предлагается организовать раздельный сбор мусора, транслировать видео-записи о пользе сепарации, обеспечить пассажирам доступ к питьевой воде, чтобы избавить их от необходимости приобретать пластиковые бутылки, создать несколько зон со слипбоксами, где можно будет отдохнуть, не покидая территорию аэровокзала и не оставляя тем самым «лишний углеродный след».
