Павильон администрации парка «Садовники»
Павильон администрации парка «Садовники» © АБ Практика
| где: | Россия, Москва. проспект Андропова, д. 46 | |
| даты | 2013 — 2014 / — 2014 | |
| функция: | Ландшафт / Парковый павильон | |
| мастерская: | Архитектурное бюро Практика http://www.bureau-praktika.ru/ | |
| автор: | Денис Чистов Руководитель авторского коллектива | |
| авторский коллектив: | Архитекторы: Денис Чистов, Григорий Гурьянов, Юлия Михальцова, Инна Ситаева |
Типовой павильон парковой администрации для московских парков.
Две функциональные программы объединены под одной крышей: одна – общественная (кабинеты и приемные сотрудников), вторая – сервисная (ремонтные мастерские и хозяйственный двор). Помещения собраны в прямоугольный блок, окруженный по периметру открытой галереей – промежуточным пространством между зданием и парком. Внешний контур галереи – проницаемая оболочка из вертикальных стоек-ламелей. Функциональная двухчастность проявлена материалами фасадов. Ламели и фасад общественной части – деревянные, в хозяйственной половине – металл и штукатурка.
Проект разработан для многократного применения. К каждому новому участку незначительно адаптируется контур внешней оболочки. Кроме уже завершенного павильона в парке «Садовники», в настоящий момент ведется строительство такого объекта в Олимпийском парке.
Две функциональные программы объединены под одной крышей: одна – общественная (кабинеты и приемные сотрудников), вторая – сервисная (ремонтные мастерские и хозяйственный двор). Помещения собраны в прямоугольный блок, окруженный по периметру открытой галереей – промежуточным пространством между зданием и парком. Внешний контур галереи – проницаемая оболочка из вертикальных стоек-ламелей. Функциональная двухчастность проявлена материалами фасадов. Ламели и фасад общественной части – деревянные, в хозяйственной половине – металл и штукатурка.
Проект разработан для многократного применения. К каждому новому участку незначительно адаптируется контур внешней оболочки. Кроме уже завершенного павильона в парке «Садовники», в настоящий момент ведется строительство такого объекта в Олимпийском парке.
Павильоны в Измайловском парке
Павильоны в Измайловском парке. Входная арка © АБ «Народный архитектор»
| где: | Россия, Москва. Аллея Большого Круга, д. 7 | |
| даты | / 2013 — 2014 | |
| функция: | Ландшафт / Парковый павильон | |
| мастерская: | Народный архитектор https://nrdn.ru/ | |
| автор: | Дмитрий Селивохин Руководитель авторского коллектива Антон ЛадыгинРуководитель авторского коллектива |
Комплексная реконструкция Измайловского ПКиО включила в себя разработку ключевых функциональных зон и благоустройство транзитных путей между ними. В рамках благоустройства нами было проведено рабочее проектирование входной группы, шахматного павильона, выставочного павильона и центра детского творчества. Параллельно мы разработали концепцию кафе, навигации, легких павильонов для торговли и малых архитектурных форм. Часть объектов на данный момент удалось реализовать.
Все объекты созданы в рамках единой графической и композиционной системы, предназначенной для комплексного восприятия. Именно благодаря системному подходу парк значительно изменил свой облик за последние несколько лет. У его посетителя формируется ощущение, что он пребывает в пространстве, организованном по единой концепции.
Выставочный павильон проектировался как реконструкция существующего Зеркального павильона. При создании образа за основу взята стилистика легкой парковой архитектуры 1930-х годов. Как следствие, в отделке павильона использован рисунок «елочкой», выявляющий пластику деревянной стены.
Создана эксплуатируемая кровля, куда можно попасть по металлической винтовой лестнице на заднем фасаде. В первоначальном объекте – Зеркальном павильоне – не было ярко выраженной входной группы, но в проекте реконструкции на это обращено особое внимание.
Архитектура шахматного павильона вдохновлена стилистикой «профессорских дач» 1920-1930-х годов. Внутреннее пространство представляет собой единый зал с фермами и техническим светом, размещенным правильными рядами.
Отдельным разделом проекта стало создание оконных проемов, направляющих косые солнечные лучи в интерьер. Благодаря этому там появляются контрасты света и тени, создающие иллюзию шахматной геометрии.
Павильон полностью выкрашен в белый цвет, зрительно облегчающий здание. Также использован прием западающих цоколей, позволяющий добиться ощущения парения здания над землей, дематериализации его тектоники.
Входная группа - комплекс легких сооружений, размещенных по продольной транзитной оси парка со стороны станции метро «Шоссе энтузиастов». В настоящее время реализована входная арка. Здесь решается задача благоустройства протяженного пути, лишенного четкого функционального наполнения. При этом все сооружения предназначены для реализации различных сценариев работы с освещением за счет ажурных конструкций всевозможных фактур и форм – балок, пергол, сеток.
Входная группа послужила модульной базой для разработки серии маленьких павильонов кафе, каждое из которых служит одной из «деталей» системы входной группы. Одновременно с этим павильоны-кафе являются самостоятельными модулями и установлены в различных частях парка.
Все объекты созданы в рамках единой графической и композиционной системы, предназначенной для комплексного восприятия. Именно благодаря системному подходу парк значительно изменил свой облик за последние несколько лет. У его посетителя формируется ощущение, что он пребывает в пространстве, организованном по единой концепции.
Выставочный павильон проектировался как реконструкция существующего Зеркального павильона. При создании образа за основу взята стилистика легкой парковой архитектуры 1930-х годов. Как следствие, в отделке павильона использован рисунок «елочкой», выявляющий пластику деревянной стены.
Создана эксплуатируемая кровля, куда можно попасть по металлической винтовой лестнице на заднем фасаде. В первоначальном объекте – Зеркальном павильоне – не было ярко выраженной входной группы, но в проекте реконструкции на это обращено особое внимание.
Архитектура шахматного павильона вдохновлена стилистикой «профессорских дач» 1920-1930-х годов. Внутреннее пространство представляет собой единый зал с фермами и техническим светом, размещенным правильными рядами.
Отдельным разделом проекта стало создание оконных проемов, направляющих косые солнечные лучи в интерьер. Благодаря этому там появляются контрасты света и тени, создающие иллюзию шахматной геометрии.
Павильон полностью выкрашен в белый цвет, зрительно облегчающий здание. Также использован прием западающих цоколей, позволяющий добиться ощущения парения здания над землей, дематериализации его тектоники.
Входная группа - комплекс легких сооружений, размещенных по продольной транзитной оси парка со стороны станции метро «Шоссе энтузиастов». В настоящее время реализована входная арка. Здесь решается задача благоустройства протяженного пути, лишенного четкого функционального наполнения. При этом все сооружения предназначены для реализации различных сценариев работы с освещением за счет ажурных конструкций всевозможных фактур и форм – балок, пергол, сеток.
Входная группа послужила модульной базой для разработки серии маленьких павильонов кафе, каждое из которых служит одной из «деталей» системы входной группы. Одновременно с этим павильоны-кафе являются самостоятельными модулями и установлены в различных частях парка.
Павильон в Аршиновском парке
Павильон в Аршиновском парке © MEL
| где: | Россия, Москва. ул. Бакинская, Аршиновский парк | |
| даты | 11.2013 — 12.2013 / | |
| функция: | Ландшафт / Парковый павильон | |
| мастерская: | Студия MEL http://www.melspace.ru | |
| автор: | Игорь Дошлыгин Руководитель авторского коллектива Федор ДубинниковРуководитель авторского коллектива | |
| авторский коллектив: | Главный архитектор проекта – Федор Дубинников Архитектор – Игорь Дошлыгин |
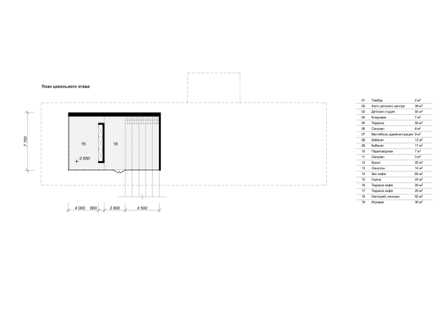
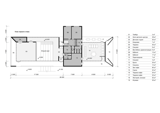
Павильон с кафе и детским центром в Аршиновском парке.
Прямоугольный объем павильона расположен на краю склона. Под общей крышей с помощью стеклянной перегородки выделены пространства для кафе и детского центра и глухой объем со служебными и техническими помещениями. С торца здания создана сцена для детских мероприятий.
Под свисающей над склоном частью постройки устроено двусветное пространство с амфитеатром, где могут проходить детские занятия, лекции, кинопросмотры. Амфитеатр продолжается и на склоне перед зданием, связывая помещения с территорией улицы. Перед амфитеатром организована небольшая площадь, где также могут проходить различные занятия и игры на открытом воздухе.
Кровля имеет «обратный скос», визуально облегчающий конструкцию. На фасадную плоскость выходит только торец толщиной 10 см.
Основной материал конструкции отделки стен и подшивки кровли – планкен из лиственницы светло-серого цвета. Перед частью фасада со сплошным остеклением выполнены декоративные решетки из дерева, окрашенные в белый цвет. Они выполняют роль ограждения, а также солнцезащиты для помещения детского центра.
Центральный объект выделен отделкой из металлических листов натурального цвета.
Прямоугольный объем павильона расположен на краю склона. Под общей крышей с помощью стеклянной перегородки выделены пространства для кафе и детского центра и глухой объем со служебными и техническими помещениями. С торца здания создана сцена для детских мероприятий.
Под свисающей над склоном частью постройки устроено двусветное пространство с амфитеатром, где могут проходить детские занятия, лекции, кинопросмотры. Амфитеатр продолжается и на склоне перед зданием, связывая помещения с территорией улицы. Перед амфитеатром организована небольшая площадь, где также могут проходить различные занятия и игры на открытом воздухе.
Кровля имеет «обратный скос», визуально облегчающий конструкцию. На фасадную плоскость выходит только торец толщиной 10 см.
Основной материал конструкции отделки стен и подшивки кровли – планкен из лиственницы светло-серого цвета. Перед частью фасада со сплошным остеклением выполнены декоративные решетки из дерева, окрашенные в белый цвет. Они выполняют роль ограждения, а также солнцезащиты для помещения детского центра.
Центральный объект выделен отделкой из металлических листов натурального цвета.
Велопавильон Electra
Велопавильон Electra © Grin Architect
| где: | Россия, Москва | |
| даты | — 2012 / | |
| функция: | Спортивный / Павильон для спортивного учреждения | |
| мастерская: | Grin architect http://grin-arch.ru | |
| автор: | Ринат Гильмутдинов Руководитель авторского коллектива |
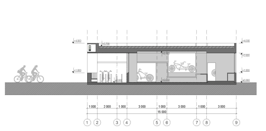
Проект выставочного павильона с мобильной функцией шоу-рума сделан для компании, выпускающей современные велосипеды Electra.
Павильон можно разместить в городской среде: возле бульваров, в непосредственной близости от велосипедных дорожек и зон отдыха.
Образ павильона – это старая проржавленная металлическая деталь непонятного происхождения, нечто похожее на изъеденную временем консервную банку.
Ретро-стиль выражен в конструкциях велосипедов, выпускаемых компанией. Сочетание ржавых листов металла, которыми покрыт фасад, с технологичными современными витражами контрастируют с внешней средой – будь то зеленая лужайка или мостовая с брусчаткой.
Объект должен быть заметным и привлекающим внимание горожан.
Павильон представляет собой прямоугольный объем со сложной пластикой фасадов.
Объект разделен на две зоны: внешнюю со стоянкой для велосипедов и встроенной скамьей и внутреннюю, где размещены зона продаж и витрины с велосипедами.
Павильон можно разместить в городской среде: возле бульваров, в непосредственной близости от велосипедных дорожек и зон отдыха.
Образ павильона – это старая проржавленная металлическая деталь непонятного происхождения, нечто похожее на изъеденную временем консервную банку.
Ретро-стиль выражен в конструкциях велосипедов, выпускаемых компанией. Сочетание ржавых листов металла, которыми покрыт фасад, с технологичными современными витражами контрастируют с внешней средой – будь то зеленая лужайка или мостовая с брусчаткой.
Объект должен быть заметным и привлекающим внимание горожан.
Павильон представляет собой прямоугольный объем со сложной пластикой фасадов.
Объект разделен на две зоны: внешнюю со стоянкой для велосипедов и встроенной скамьей и внутреннюю, где размещены зона продаж и витрины с велосипедами.
Общественная зона компании «Мегафон» на «Красном Октябре»
Общественная зона компании «Мегафон» на «Красном Октябре» © Архитектурное бюро «Новое». Фотография: Татьяна Ковригина
| где: | Россия, Москва. Берсеневская набережная, д. 16, строение 4 | |
| даты | 3.2014 — 4.2014 / — 5.2014 | |
| функция: | Ландшафт / Общественное пространство | |
| мастерская: | Архитектурное бюро «Новое» | |
| автор: | Татьяна Лешихина Руководитель авторского коллектива Анастасия ГрицковаРуководитель авторского коллектива Сергей НеботовРуководитель авторского коллектива | |
| авторский коллектив: | Архитекторы: Анастасия Грицкова, Татьяна Лешихина, Сергей Неботов |
Основное свойство видового участка на «Красном Октябре» – его высокая проходимость.
Техническая зона с газоном, расположенная между Патриаршим мостом и зданием Института «Стрелка», органически превратилась в место проведения дневного и вечернего досуга. Архитектурная задача заключалась в адаптации этого пространства под комфортную многофункциональную сезонную площадку (многофункциональную общественную зону) под открытым небом. Объемная непрерывная поверхность не только зонировала пространство, но и оптимизировала все уже свойственные этому месту виды активности.
Оснащенная розетками и доступом в высокоскоростной интернет многоуровневая скамейка стала коворкингом и образовательной площадкой на свежем воздухе, а также местом вечернего отдыха горожан. Кроме того, подсвеченная белая поверхность функционировала как новый сложный световой ландшафтный объект в однообразной панораме Берсеньевской набережной.
Техническая зона с газоном, расположенная между Патриаршим мостом и зданием Института «Стрелка», органически превратилась в место проведения дневного и вечернего досуга. Архитектурная задача заключалась в адаптации этого пространства под комфортную многофункциональную сезонную площадку (многофункциональную общественную зону) под открытым небом. Объемная непрерывная поверхность не только зонировала пространство, но и оптимизировала все уже свойственные этому месту виды активности.
Оснащенная розетками и доступом в высокоскоростной интернет многоуровневая скамейка стала коворкингом и образовательной площадкой на свежем воздухе, а также местом вечернего отдыха горожан. Кроме того, подсвеченная белая поверхность функционировала как новый сложный световой ландшафтный объект в однообразной панораме Берсеньевской набережной.
Двухуровневая автостоянка в Нижнем Новгороде
Двухуровневая автостоянка в Нижнем Новгороде © АПМ «Проспект»
| где: | Россия, Нижний Новгород. ул. Кразнозвёздная, проспект Гагарина, д. 8 | |
| даты | — 2014 / — 2015 | |
| функция: | Транспортный / паркинг | |
| мастерская: | Бюро «Проспект» None | |
| автор: | Егор Рыбин Руководитель авторского коллектива Борис ТарасовРуководитель авторского коллектива |
Двухуровневая полузаглубленная обвалованная автостоянка со спортивными и детскими площадками на эксплуатируемой кровле.
