LINES REHAB. Вид с бывших железнодорожных путей трансформированных в продуктивный ландшафт. Плоское основание с динамичным рисунком башен жилья.
Дмитрий Приходько, Наталья Крымская, Амирхан Габдуллин
LINES REHAB. Шварцплан
Дмитрий Приходько, Наталья Крымская, Амирхан Габдуллин
Участникам предложили придумать для этого места жилую застройку, которая включает приватные и общественные пространства, помогает связать два района, откликается на окружение, но в то же время предлагает новую эстетику.
Не обязательным, но желаемым условием была работа в команде из разных специалистов. Подобная российская «коллаборация» и получила первый приз: концепцию Lines Rehab («Линии восстановления») разработали Дмитрий Приходько из АБ «Лето», выпускница МАРШ Наталья Крымская и выпускник КГАСУ Амирхан Габдуллин. Архитекторы познакомились во время стажировки и работали удаленно – из Москвы, Санкт-Петербурга и Казани, что оказалось эффективно: «общение в мессенджерах помогает вести конструктивный диалог, к тому же цепочка рассуждений всегда под рукой, на экране смартфона».
Две отправные точки проекта: сохранившийся на участке поворотный мост, признанный объектом культурного наследия, и традиционные деревянные дома с «башнями» печных труб в Каламае.
LINES REHAB. Инспирация проекта. Жилье с башнями печей в районе Каламая
Дмитрий Приходько, Наталья Крымская, Амирхан Габдуллин
LINES REHAB. Инспирация проекта. Поворотный мост
Дмитрий Приходько, Наталья Крымская, Амирхан Габдуллин
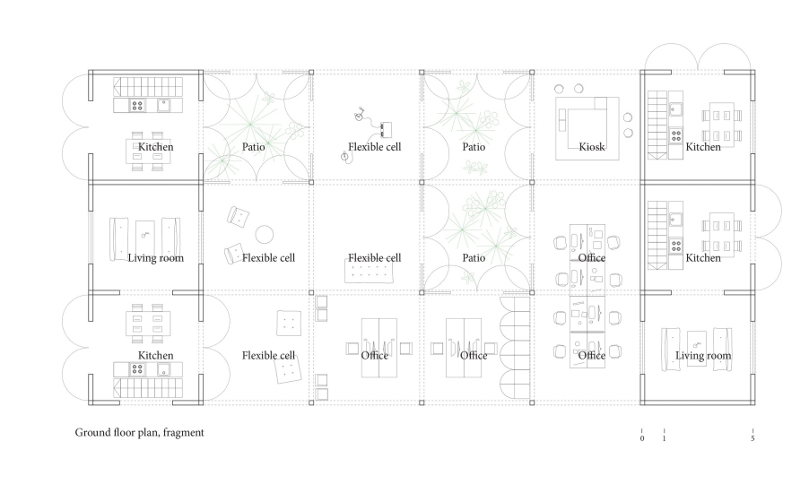
Прежде всего авторы продолжили улицы Волта и Кунгла, а образовавшиеся три квартала заполнили перпендикулярными железнодорожной ветке «линиями» жилых ячеек: символическими «новыми рельсами», направленными из одного района в другой.
LINES REHAB. Функциональная схема
Дмитрий Приходько, Наталья Крымская, Амирхан Габдуллин
Пространства между домами превратили в систему из закрытых, полуприватных и общественных пространств. Разницу в их статусе подчеркивает материал: жилье выполнено из дерева и дополнительно акцентируется за счет высоты – блоки вторых этажей напоминают те самые «башни» печных труб, а «дворовые» ячейки обрамлены легкими металлическими конструкциями. Бывшая железнодорожная станция превращается в городское поле, которое могли бы поддерживать и использовать жители. Борозды напоминают «штриховку» железнодорожных путей.
LINES REHAB. Более жесткие линии жилья в комбинации с открытыми общественными дворами
Дмитрий Приходько, Наталья Крымская, Амирхан Габдуллин
Сетка нового района, таким образом, получилась адаптивной, так как функции и сценарии при необходимости легко менять: ячейка может стать как библиотекой, так и детским центром или супермаркетом.
LINES REHAB. Вид на общественный двор. Гибкое заполнение ячеек сетки, сочетание полу-приватных и общественных функций
Дмитрий Приходько, Наталья Крымская, Амирхан Габдуллин
По мнению авторов, «разнообразие отношений между частными и общественными пространствами порождает новые практики и стиль жизни». На главную же тему биеннале они отвечают тем, что «красота не может быть определена раз и навсегда в жестких терминах и описаниях» и предлагают испытать ее изменчивую природу.
Всего в конкурсе участвовало 80 проектов, в числе жюри – сооснователь бюро Snøhetta Хьетиль Торсен и главный куратор биеннале Яэль Райснер.
