Описание предоставлено архитекторами
Задача проекта – завершить существующий малоэтажный жилой район «Новая Слобода», расположенный в северной части Мурома во Владимирской области. Необходимо разместить приватные кварталы из 4-8-этажных домов, которые должны органично продолжить существующую застройку, а также учесть и подчеркнуть сложившиеся связи и стилистические и объемно-пространственные решения.
Новая слобода 2.0
                © sp architect
        Новая слобода 2.0. Генплан
                © sp architect
        Новая слобода 2.0
                © sp architect
        Слободой в старину называли поселение или район города, где жили в основном свободные, некрепостные люди. Они имели льготы при уплате налогов и освобождались от многих повинностей – это и отразилось в названии термина: слобода – от слова «свобода». Название придает проекту историко-культурный окрас и формирует конкретный стилистический образ. Действительно, сложно представить себе Слободу без уютных приватных двориков и палисадников, без скатных кровель и кирпича со штукатуркой. Современная интерпретация такого образа стала основой для работы над проектом.
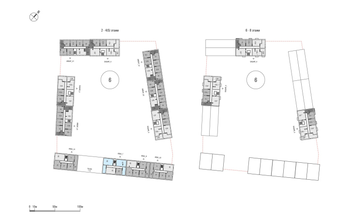
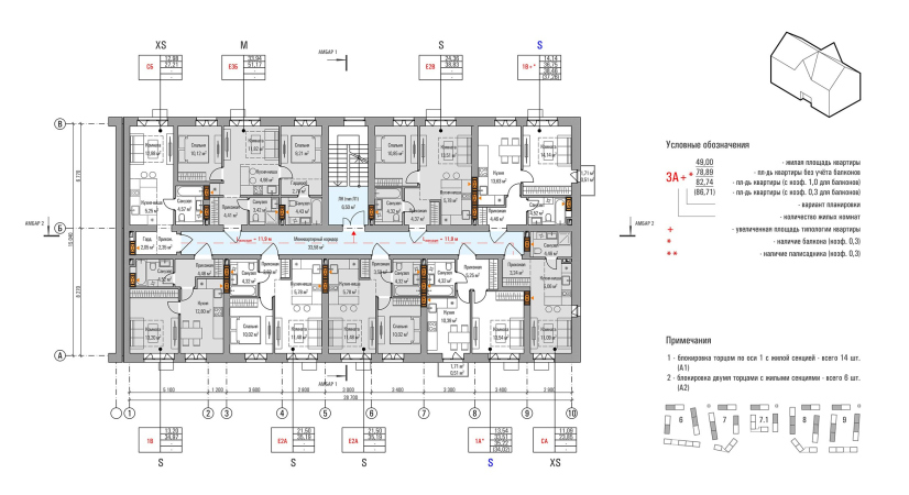
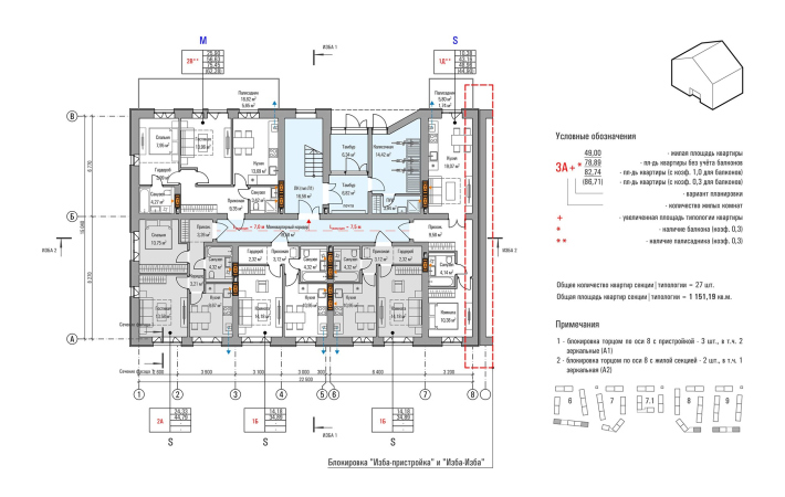
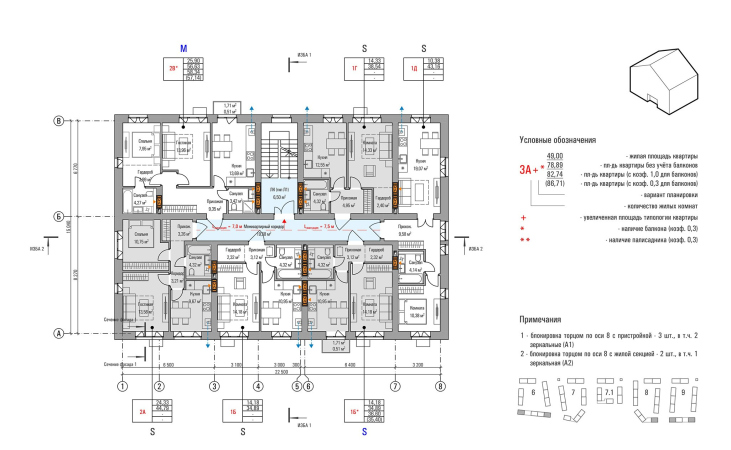
Территорию сформируют пять приватных кварталов с дворами, свободными от машин. Застройка представлена тремя типологиями строений: Изба, Амбар и Башня.
Новая слобода 2.0. Типология строений
                © sp architect
        Первая линия проекта, обращенная в сторону уже существующей низкоэтажной застройки, сформирована Избами. Их небольшой масштаб и скатные кровли – реверанс в сторону сложившейся застройки и исторических русских архетипов. К периферии в застройке появляются высотные акценты – восьмиэтажные Башни. Их скошенные парапеты не только скрывают крышные котельные, но и поддерживают общую стилистику проекта.
Новая слобода 2.0. Развертка 1. Кластер 6
                © sp architect
        Новая слобода 2.0. Схема размещения типологий
                © sp architect
        
 
            
            
         
                                                                                 
                            
 
                             
                             
                             
                             
                             
                             
                             
                             
                            
 
                             
                             
                                         
                                         
                                         
                                         
                                         
                                         
                                         
                                                                                 
                                                                        
                                                                     
                                                                        
                                                                     
                                                                        
                                                                     
                                                                        
                                                                     
                                                                        
                                                                     
                                                                        
                                                                     
                                                                        
                                                                     
                                                                        
                                                                     
                                                                        
                                                                     
                                                                        
                                                                     
                                                                        
                                                                     
                                                                        
                                                                     
                                                                        
                                                                     
                                                                        
                                                                     
                                                                        
                                                                     
                                                                        
                                                                     
                                                                        
                                                                     
                                                                        
                                                                     
                                                                        
                                                                     
                                                                        
                                                                     
                                                                        
                                                                     
                                                                        
                                                                     
                                                                        
                                                                     
                                                                        
                                                                     
                                                                        
                                                                     
                                                                        
                                                                     
                                                                        
                                                                     
                                                                        
                                                                     
                                                                        
                                                                     
                                                                        
                                                                     
                                                                        
                                                                     
                                                                        
                                                                     
                                                                        
                                                                     
                                                                        
                                                                     
                                                                        
                                                                     
                                                                        
                                                                     
                                                                        
                                                                     
                                                                        
                                                                     
                                                                        
                                                                     
                                                                        
                                                                     
                                                                        
                                                                     
                                                                        
                                                                     
                                                                        
                                                                     
                                                                        
                                                                     
                                                                        
                                                                     
                                                                        
                                                                     
                                                                        
                                                                     
                                                                        
                                                                     
                                                                        
                                                                     
                                                                        
                                                                     
                                                                        
                                                                     
                                                                        
                                                                     
                                                                        
                                                                     
                                                                        
                                                                     
                                                                        
                                                                     
                                                                        
                                                                     
                                                                        
                                                                     
                                                                        
                                                                     
                                                                        
                                                                     
                                                                        
                                                                     
                                                                        
                                                                     
                                                                        
                                                                     
                                                                        
                                                                     
                                                                        
                                                                     
                                                                        
                                                                     
                                                                        
                                                                     
                                                                        
                                                                     
                                                                        
                                                                     
                                                                        
                                                                     
                                                                        
                                                                     
                                                                        
                                                                     
                                                                        
                                                                     
                                                                        
                                                                    