Реконструкция областного молодежного центра «Полёт» в Орле
© Мезонпроект
Реконструкция областного молодежного центра «Полёт» в Орле – угловой вид на кровлю
© Мезонпроект
Но поскольку для города «Полет» является знаковым и важным объектом, все последние десять лет шли постоянные поиски решения и разговоры о его возвращении. Главная проблема, конечно, в недостатке средств. Только в 2023 появилась надежда и администрации города удалось провести тендер на разработку проекта реконструкции, по результатам которого заказ получило бюро «Мезонпроект». Кроме самого центра, проект предусматривает развитие прилегающей территории. Через вытянутый участок земли перед главным входом проходит основной пешеходный маршрут, чтобы сохранить внутригородские связи и создать дополнительную точку притяжения, на участке сформируют открытую общественную зону.
К сожалению, ужасное текущее состояние объекта не позволило сохранить здание целиком. «Там очень красивые стальные конструкции кровли, – говорит архитектор проекта Пётр Топчиев,– но как-то утеплить их, не скрыв при этом основные достоинства (ажурность и прозрачность) невозможно, поэтому мы развили образ единой парящей кровли старого здания в новом качестве, разумеется предусмотрев все мероприятия по замыканию теплого контура». В результате в новом «Полете» останутся только фрагменты старых фундаментов. Также известно, что за поздней обшивкой стен находятся мозаики советского времени, их раскроют и попробуют перенести в новый зал, если, конечно, качество и состояние позволят.
Реконструкция областного молодежного центра «Полёт» в Орле – амфитеатр и главный фасад
© Мезонпроект
Реконструкция областного молодежного центра «Полёт» в Орле – боковой фасад со скалодромом
© Мезонпроект
Реконструкция областного молодежного центра «Полёт» в Орле – развертка фасада
© Мезонпроект
Реконструкция областного молодежного центра «Полёт» в Орле – развертка фасада
© Мезонпроект
Но новый проект безусловно стремится сохранить дух места, демонстрирует явную преемственность и уважение к своему предшественнику. Сами архитекторы определяют стиль, в котором он выполнен, как романтический футуризм в современной (хочется еще добавить функционалистской) трактовке, что само по себе является отсылкой к архитектурному стилю конца 1970–начала 1980 годов – времени строительства первоначального здания.
Реконструкция областного молодежного центра «Полёт» в Орле – общий план
© Мезонпроект
Главным элементом стала экспрессивная кровля, острый угол которой маркирует центральный вход. Смелая консоль с сильным выносом отдает дань козырьку старого клуба и визуализирует саму идею полета. Точно также и сплошное витражное остекление главного фасада недвусмысленно считывается как напоминание о схожем решении фасада уходящего здания центра. Перед входом будет организована площадь и общественная зона с амфитеатром, что даст возможность проводить различные мероприятия под открытым небом. Остекление очень важно для создания эффекта взаимопроникновения внешнего и внутреннего пространств. Чтобы еще больше подчеркнуть это, внутри вестибюля, зеркально площади, будет создана общественная зона, также с амфитеатром. Еще усложнит правила взаимодействия здания с окружением нижняя поверхность консоли: ее покроют стальными листами, фактура которых имитирует поверхность воды. Такие же листы можно будет найти и в оформлении некоторых внутренних зон.
Реконструкция областного молодежного центра «Полёт» в Орле – фойе
© Мезонпроект
Реконструкция областного молодежного центра «Полёт» в Орле – главный зал
© Мезонпроект
Заданный кровлей мотив углов и граней продолжится и в решении ландшафта. «Полет» расположен в глубине квартала, так что длинная и узкая полоска городской территории, ведущая ко входу от Наугорского шоссе (именно с него осуществляется въезд на парковку и начинается основная пешеходная дорожка), очень важна для формирования общей сценографии и установления тесных связей с окружением, тем более, что сложная угловатая фальцевая кровля полнее всего раскроется в движении. В начале этого участка, в самом узком его месте, располагается газораспределительный узел, который невозможно никак передвинуть и трудно замаскировать. Прямо перед ним архитекторы предложили устроить небольшую защищенную зону для спокойного отдыха. Далее, связанные и одновременно разделенные пешеходной дорожкой, ведущей к амфитеатру, расположатся столы для пинг-понга, батуты и скейт парк. Отдельного внимания удостоили старинную иву, которую обязательно сохранят и она продолжит выполнять роль одного из главных украшений всего ландшафта. Последними элементами активной городской среды, формируемой вокруг центра, станут скалодром у бокового фасада и зона тренажеров напротив него.
Реконструкция областного молодежного центра «Полёт» в Орле – зона кафе
© Мезонпроект
Реконструкция областного молодежного центра «Полёт» в Орле – зона коворкинга
© Мезонпроект
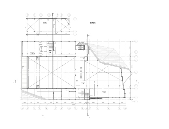
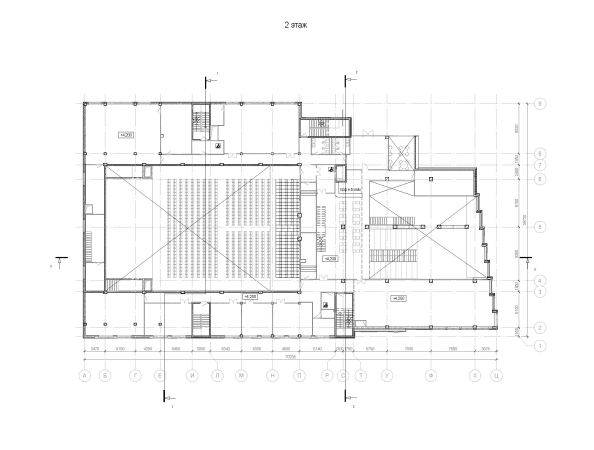
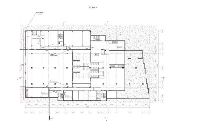
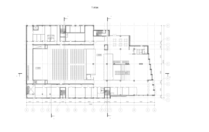
Само здание планируется облицевать композитными панелями из алюминия нейтрального серого света. Металлическую обшивку используют и во внутренних, довольно темных зонах, но в сочетании со светлым деревом и яркими акцентами мебели. Центр получит очень плотную компоновку. Будет добавлен полноценный подземный этаж, в котором расположится фитнес-центр а также учебные студии звукозаписи и видеомонтажа. Концертный зал, рассчитанный на 600 мест, сохранится практически в тех же габаритах, что и старый, хотя общая площадь всей постройки значительно увеличится и превысит 6000 м2. Часть передних рядов планируется сделать телескопическими, чтобы создать более гибкое пространство, которое можно будет использовать не только для концертов разных жанров, но и для кинопоказов, встреч, лекций и других мероприятий. По бокам от зала и вокруг большого атриума прямо перед ним на трех уровнях расположатся различные функциональные зоны: гардероб и артистические, комнаты администрации центра и отдела по работе с молодежью, кафе, коворкинг, медицинский кабинет, большой двусветный зал для занятий хореографией, отдельное подразделение по работе с волонтерами и другие помещения.
Андрей Колпиков, архитектор бюро «Мезонпроект», главный архитектор проекта, Мезонпроект
Молодежный центр действительно очень нужен Орлу, так как объектов подобного назначения в городе критически не хватает. Департамент молодежной политики, выступивший заказчиком проекта, и само руководство центра, которое продолжает работать и надеется на новую главу в жизни «Полёта», очень четко и подробно сформулировали все функциональные пожелания. Благодаря этому нам удалось создать предельно компактную компоновку и уместить в одном объеме довольно разные по своим требованиям помещения. Сейчас наша главная задача вместе с технологами выстроить четкие рабочие схемы взаимодействия между всеми функциональными зонами. В данный момент проект проходит государственную экспертизу, а руководство города активно ищет средства на его реализацию. Хочется верить, что все сложится.
Центр «Полет» не является охраняемым объектом. Тем не менее, архитекторы бюро «Мезонпроект» проявили внимание и уважение к памяти жителей города. Несмотря на отсутствие ограничений и невозможность сохранить даже отдельные фрагменты существующего здания, новый клуб должен стать его полноправным наследником. Это стремление проявляется не только в функциональной программе, материалах, заимствовании объемно-планировочных решений и использовании ретроспективных стилистических приемов, но и в том, каким образом новый объект выстраивает свое взаимоотношение с городом.
Реконструкция областного молодежного центра «Полёт» в Орле – разрезы
© Мезонпроект



