Клубный дом премиум-класса «Аристократ»
Фотография © Мезонпроект
Дом стоит на границе леса, из-за которого почти не слышно шоссе, обстановка вокруг, по городским меркам – самая что ни на есть спокойная. Его архитектурное решение точно отвечает маркетинговой задаче: как известно, в формате московского премиального клубного дома наиболее востребовано декорированное направление, совмещающее в себе образ дворца с достаточной степенью украшенности. Сейчас распространено его определение как «ар-деко», не совсем верное, поскольку к общей «богатой и импозантной» образности примешиваются и модерн, и эклектика, а ар-деко – лишь ближайший по времени прообраз. Александра Кузьмина и Илья Машков работают в данной области давно и достаточно успешно – в частности, прямым предшественником дома «Аристократ» очевидно служит построенный в 2009 году «Дом Академии наук» на улице Сергея Капицы, прямо напротив входа в здание Академии Юрия Платонова, тоже расположенное в тихой природной зоне, недалеко от склона Москвы-реки. Кирпичный фон, штукатурные детали, консоли, каннелюры, скульптуры. Цоколь, аттик, карниз, пилястры. Декоративные вставки, ажурные металлические балконы. В целом этот набор образует minimum minimorum репрезентативно-респектабельного дома. Его несомненное достоинство – комфортный масштаб, насыщенная фактура; главный риск, сопряженный с работой в этом жанре, приветствуемом заказчиками и маркетологами – интерпретация исторических прообразов. Причем риск обоюдный: плохо сделать слишком похоже, но плохо и сделать грубее, крупнее или проще. Профессиональное сообщество, знакомое с понятием «минимализм», декоративный подход приемлет с трудом, однако просто общество, изголодавшееся на минималистской диете, напротив, требует большего. Казалось бы, за прошедшие 30 лет «фактурному голоду» пора бы пройти; и между тем декорированные здания востребованы и сейчас. Это вызов, и работы Мезонпроекта дают на него свой ответ. Достаточно детализированный, спропорционированный, по-своему сдержанный; балансирующий на грани обобщенного неогрека, но с палладианским симметричным П-образным планом, модерна, который выступает на грани театрализованных ориенталистских «египетских» увлечений, – и современной орнаментальной архитектуры, чьим приемам постепенно сдают свои позиции «реалистичный» ордер и декоративная скульптура, узнаваемые элементы доходных домов периода историзма.
Если сравнивать «Аристократ» 2017 года с домом академиков 2009 – между ними 8 лет, но много пропорциональных перекличек, как между родными братьями – разница будет в том, что общий тон из контрастного коричнево-бежевого стал светлым, кирпич приобрел почти телесный оттенок, а декоративные элементы получили большую степень обобщения. Энергичные лотосовидные орнаменты и консоли-горгульи уступили место легким зеленоватым решеткам и майоликовым вставкам, чье родство с любимой многими керамикой Абрамцева и Талашкина совершенно очевидно.
Клубный дом премиум-класса «Аристократ»
Фотография © Мезонпроект
Вообще говоря, изразец и майолика – известная слабость любого анти-модерниста, городского созерцателя, жаждущего увидеть что-то радостное для глаза. Такая радость – изразец второй половины XVII века в Ярославле, дом Перцовой на Пречистенской набережной, Спас из уже упомянутого Талашкино; но и не только они, а любая вставка из стеклянной цветной поливы, которую удается заметить на фасадах города. Мы цепляемся за эти цветные рельефы, и наверное не будет преувеличением сказать, что за праздник цвета в числе прочего и любим архитектуру модерна. Дом «Аристократ» откликается на тему: между окнами в широких рамках помещены «изразцы» с цветочными рисунками, птицами и грифонами, аттики над ризалитами украшены крупными майоликами. Рисунки крупные и яркие, что справедливо, так как они служат декоративными пятнами и рассчитаны на рассмотрение издали. В то же время низкая степень детализации характерна для более поздних художников, что так или иначе приближает решение к современности.
Обобщение декоративных деталей тоже характерно. Большую роль играют решетки: непрозрачные металлические и прозрачные белые ветилляционные на парковом фасаде, балконные повсеместно. Пилястры – на самом деле тонкие вертикальные тяги. Аттик получает ребра – условные каннелюры, но без желобков, скорее полосатый рельеф. Консолей мало, скульптуры нет, преобладают крупные поребрики. В целом декор стал не только светлее, но лаконичнее и легче.
Клубный дом премиум-класса «Аристократ»
Фотография © Мезонпроект
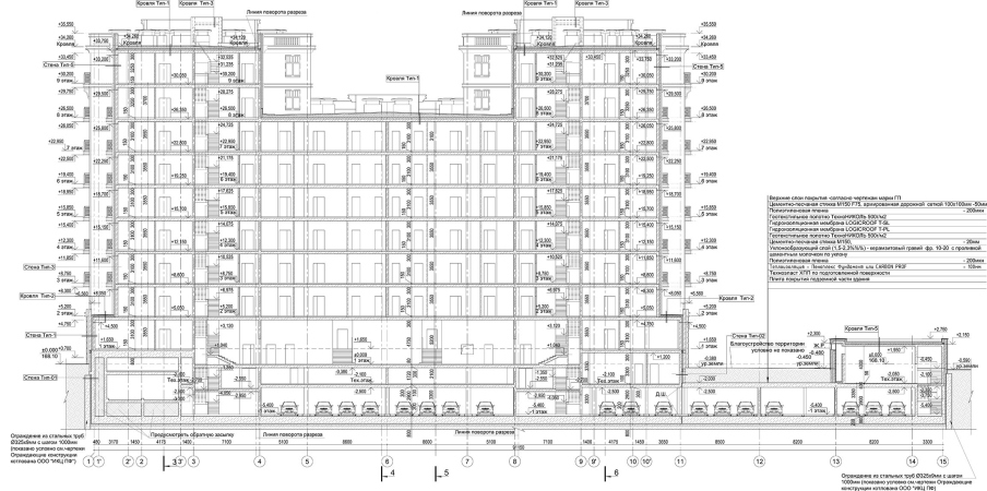
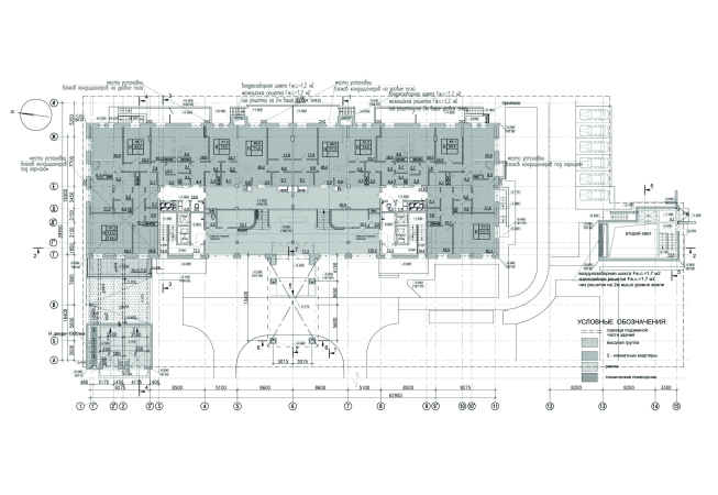
Дом спланирован «покоем» – буквой П, усложнен ризалитами на торцах и группами лоджий в основной части. Цокольный этаж, в отличие от светлого основного объема облицован темным гранитом, усложнен горизонтальными плашками руста и дополнительно утяжелен массивным портиком, вытянутым между крыльями дома далеко вперед, к улице Вересаева, как будто несколько даже дальше, чем требовалось для того, чтобы обеспечить комфортный выход в бархатном платье из лимузина.
Клубный дом премиум-класса «Аристократ»
Фотография © Мезонпроект
Клубный дом премиум-класса «Аристократ»
Фотография © Мезонпроект
«В проекте цокольный ярус был декорирован богаче, – рассказывает Илья Машков. – Планировалось, что в нижней части дом должен быть богатым, даже «барским», праздничным, торжественным, а вверху становился бы более сдержанным. Венчающий карниз первого этажа выполнен не по проекту, первый этаж оказался аскетичным и диссонирует с верхним».
Клубный дом премиум-класса «Аристократ», проект
© Мезонпроект
Клубный дом премиум-класса «Аристократ», проект
© Мезонпроект
Квартиры в доме – достаточно просторные, что соответствует его классу; на углах гостиные площадью по 40 м2, и с тремя окнами. По контуру цокольного этажа и на кровле центральной части, чья высота несколько меньше, чем у крыльев, появляются террасы, вверху – небольшой сад, зеленая кровля. В лобби на входе жителей встречает парадная двойная лестница.
Итак, фасады клубного дома, в целом не уходя от обобщенного историзма, переосмыслены в духе современной декоративности. Его тон – светлый, что призвано, в числе прочего, облегчить объем. Семи-девяти-этажная высота делает дом комфортным примером городской застройки на фоне 12-15-этажного окружения, а деликатная орнаментальность и уверенная поступь симметричного «покоя» превращает его в подобие дворца перед сосновым парком в самом начале Рублевского шоссе. Класс жилья говорит сам за себя: в Москве он «просит, даже требует» украшенного решения. Но в данном случае мы наблюдаем новую ступеньку эволюции подхода к декорированию: элементы исторического фасада становятся практически знаками самих себя, достаточно лаконичными и светлыми, чтобы чтобы не выглядеть избыточно. Они уступают фокус внимания другим мотивам: лентам орнамента, фактурному кирпичу и вставкам цветной керамики, привлекательной, как картины на стене.




