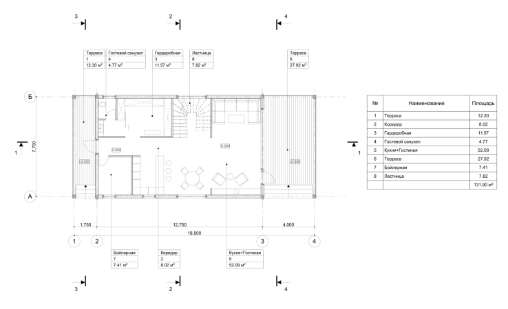
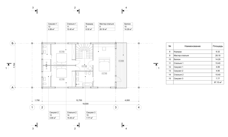
Дом СЛАЙС. Планировки 1 и 2 этажей. Они же были выставлены на презентации дома
                © Архитектурная мастерская Тотана Кузембаева
        Тотан Кузембаев на презентации дома СЛАЙС, 10.2021 
                Фотография: Архи.ру
        Выставка Владимира Дубосарского «В мире животных» на Фотография: Архи.ру
                Фотография: Архи.ру
        Выставка Владимира Дубосарского «В мире животных» на Фотография: Архи.ру
                Фотография: Архи.ру
        Гольф-поле служит осью территории «Курорта Пирогово», его петля начинается почти от въезда и вторит очертаниям полуострова между бухтой Тихая и 2-м Пироговским заливом. Многие дома VIP-пансионата, как известно, группируются вдоль гольф-поля и даже носят названия по номерам лунок. Новый дом, спроектированный Тотаном Кузембаевым, тоже стоит на небольшом возвышении на границе гольф-поля, у третьей лунки. Его название СЛАЙС происходит, как поясняют архитекторы, от названия бокового крученого удара клюшкой.
Дом СЛАЙС
                © Архитектурная мастерская Тотана Кузембаева
        Дом вытянут между подъездной дорогой, где на восточном торце расположен лаконичный вход и небольшая веранда, и полем, куда обращены террасы обоих этажей с отличным видом на закат и модным безимпостным стеклом ограждений.
Дом СЛАЙС. Вид с террасы 2 этажа на гольф-поле
                Фотография: Архи.ру
        Дом СЛАЙС. Терраса 2 этажа
                Фотография: Архи.ру
        Забора, согласно местным правилам, нет, приватность дому обеспечивает ряд сосен, посаженных перед террасой, также как и небольшой лесок, на границе которого он расположен. Со стороны поля дом различим, но не выходит на него, скорее даже скрывается за полупрозрачным рядом деревьев.
Дом СЛАЙС. Вид от гольф-поля, 10.2021
                Фотография: Архи.ру
        Форма нового дома, по словам авторов, соединяет традиционные черты – простой прямоугольный объем с двумя этажами внутри, скатную кровлю с далекими выносами карнизов – с техническими новшествами современного домостроения.
Безимпостное стекло ограждений мы уже упоминали, оно хорошо сочетается со структурным остеклением: большие плоскости стекол снаружи оказываются в одной плоскости с деревянной стеной, светлая деревянная поверхность чередуется с темными пятнами, получается контрастно и несколько неожиданно, особенно потому, что размеры окон разные, а их расположение асиммерично и исходит из планировки: на западном торце и по бокам большие окна «в пол», а окна спален, кухни и технических зон меньше, именно они образуют асимметрию пятен. Задуманный эффект во многом строится на сопоставлении ровной деревянной поверхности и блестящего прозрачного стекла, на образности внезапных безрамных «вырезов» в деревянных стенах и даже на попытке добиться чего-то сродни «деревянному хайтеку».
Скажу отдельно о лестнице на 2 этаж: она запланирована деревянная, винтовая вокруг металлического стержня, с ограждением из моллированного стекла, помещена в нишу у южной стены, между гардеробом и «диванной» частью гостиной (сейчас в доме размещена временная лестница, ее планируется заменить на полагающуюся по проекту, поэтому ниже показываем рендер).
Дом СЛАЙС
                © Архитектурная мастерская Тотана Кузембаева
        Южная стена при лестнице почти полностью остеклена: высокое окно внизу, квадратное вверху, напротив в северной стене – тоже вертикальное окно, они образуют своего рода поперечную световую ось внутри, работают на освещение гостиной и делят протяженные боковые фасады на две неравные части, работая, таким образом, на пропорциональность и регулярность.
Дом СЛАЙС. Вид с юга
                Фотография: Архи.ру
        Дом СЛАЙС, вид с севера
                Фотография © Алексей Коноплёв / предоставлена Архитектурной мастерской Тотана Кузембаева
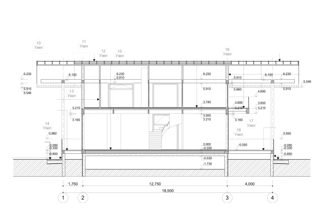
        Другое новшество заключается в том, что дом полностью собран из CLT – поперечно-клееных – панелей, даже кровля и перегородки. В отсутствие отделки фактура панелей хорошо доступна для рассмотрения в интерьерах, в том числе и в разрезе, и снаружи за слоем краски бежевого оттенка, полупрозрачной (согласно замыслу она должна быть еще несколько прозрачнее и хорошо показывать текстуру дерева). Панели изготовлены на расположенном в поселке Сокол Вологодской области на заводе Sokol CLT и дом, таким образом, стал первым примером практики применения поперечно-клееных панелей российского производства.
Для каркаса, балок потолка и опор, поддерживающих карнизы, использован клееный брус. Кровля отделана медью, цоколь – кортеном.
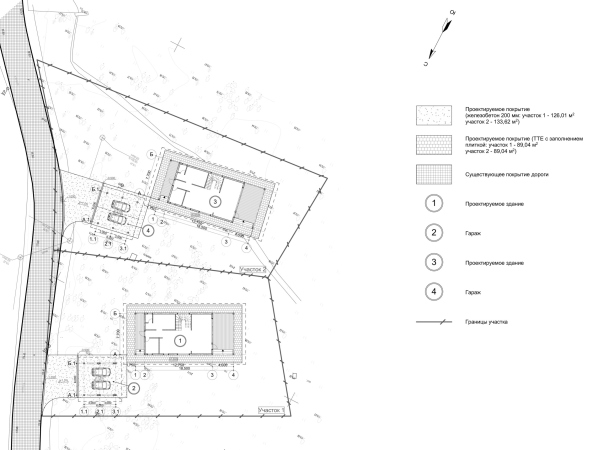
Но главное новшество проекта состоит в том, что дом типовой и рассчитан на тиражирование. Планируется второй, такой же двухэтажный дом на соседнем со СЛАЙСом участке – в проекте они, как видим, соседствуют и поставлены под небольшим углом друг к другу.
Для того, чтобы понять, насколько необычно это решение, надо понимать, что такое «Курорт Пирогово». Его называли подмосковным Вайсенхофом и меценатским проектом по взращиванию современной российской архитектуры. Для Пирогова работали многие известные авторы, в 2000-е годы это место было постоянным источником публикаций в архитектурных и дизайнерских журналах. Больше всех, надо признать, за всю историю ПИРогова здесь построил именно Тотан Кузембаев.
И все же у «Курорта Пирогово» еще не было стандартизированных проектов и здесь мы тоже, вероятно, имеем дело с новым трендом, характерным для конца 2010-х – начала 2020-х в целом. В «большой» архитектуре он представлен разнообразными конкурсами типовых проектов, и жилья, и больниц, – сейчас, совсем недавно, завершился проведенный ДОМом.рф конкурс на проекты для индивидуального жилого строительства.
Конечно, проект повторного применения на территории VIP-курорта, работы давнего автора этих мест, его здесь с гордостью называют «настоящим бумажным архитектором», и просто очень известного мастера деревянного авангарда Тотана Кузембаева, не может быть совсем уж типовым: уже сейчас идет речь о вариациях, в том числе 1-этажном доме площадью 300 м2, об уточнениях и доработках. Дом большой, качественный и дорогой, в том числе благодаря использованию CLT-панелей, и еще, особенно, благодаря прекрасному виду на гольф-поле. И все же – остается только удивляться тому, как тонко в «клязьминском Вайсенхофе» улавливают актуальные тенденции развития современной российской архитектуры.

 
                         
            
            
         
                                                                                 
                            
 
                             
                             
                             
                             
                             
                             
                             
                                         
                                         
                                         
                                         
                                         
                                         
                             
                             
                             
                                         
                                         
                                         
                                         
                                         
                                         
                                         
                                         
                                         
                                         
                                         
                                         
                                         
                                         
                                         
                                         
                                         
                                                                                 
                     
                                                                        
                                                                     
                                                                        
                                                                     
                                                                        
                                                                     
                                                                        
                                                                     
                                                                        
                                                                     
                                                                        
                                                                     
                                                                        
                                                                     
                                                                        
                                                                     
                                                                        
                                                                     
                                                                        
                                                                     
                                                                        
                                                                     
                                                                        
                                                                     
                                                                        
                                                                     
                                                                        
                                                                     
                                                                        
                                                                     
                                                                        
                                                                     
                                                                        
                                                                     
                                                                        
                                                                     
                                                                        
                                                                     
                                                                        
                                                                     
                                                                        
                                                                     
                                                                        
                                                                     
                                                                        
                                                                     
                                                                        
                                                                     
                                                                        
                                                                     
                                                                        
                                                                     
                                                                        
                                                                     
                                                                        
                                                                     
                                                                        
                                                                     
                                                                        
                                                                     
                                                                        
                                                                     
                                                                        
                                                                     
                                                                        
                                                                     
                                                                        
                                                                     
                                                                        
                                                                     
                                                                        
                                                                     
                                                                        
                                                                     
                                                                        
                                                                     
                                                                        
                                                                     
                                                                        
                                                                     
                                                                        
                                                                     
                                                                        
                                                                     
                                                                        
                                                                     
                                                                        
                                                                     
                                                                        
                                                                     
                                                                        
                                                                     
                                                                        
                                                                     
                                                                        
                                                                     
                                                                        
                                                                     
                                                                        
                                                                     
                                                                        
                                                                     
                                                                        
                                                                     
                                                                        
                                                                     
                                                                        
                                                                     
                                                                        
                                                                     
                                                                        
                                                                     
                                                                        
                                                                     
                                                                        
                                                                     
                                                                        
                                                                     
                                                                        
                                                                     
                                                                        
                                                                     
                                                                        
                                                                     
                                                                        
                                                                     
                                                                        
                                                                     
                                                                        
                                                                     
                                                                        
                                                                     
                                                                        
                                                                     
                                                                        
                                                                     
                                                                        
                                                                     
                                                                        
                                                                     
                                                                        
                                                                     
                                                                        
                                                                     
                                                                        
                                                                    